Tuna / LUND

Scheelevägen 3E

Utgångspris: 4 250 000 kr
TIPSA
Högt belägen & ljus gavelfyra med dubbla balkonger!

  • Våning 5 av 7
  • Stilrent & välutrustat kök
  • Dubbla balkonger
  • Attraktivt gavelläge
  • Fönster med karaktär
  • Tre bra sovrum
  • Enhetliga ytskikt
  • Egna tvättmöjligheter
  • Badrum & gäst-wc
  • Parkering finns att tillgå
  • Garage i huset
  • Bostadsrättstillägg ingår
  • Möjlighet till odling
  • Eftertraktat område
  • Närhet till universitet
  • Skolor & barnomsorg
  • Mataffärer & service
  • Goda kommunikationer

Välkomna till ett hem som överraskar och imponerar – en underbar fyrarummare med dubbla balkonger och ett genomgående ljusflöde från hela tre väderstreck som skapar en otroligt rymd. Högt upp i huset, med hiss hela vägen upp, bor vi på ett lugnt och upphöjt läge med utsikt över omgivningen. Bostadens hjärta består av en öppen yta med vardagsrum, kök och matplats i ett - omgivet av asymmetriska fönster som skapar karaktär. Helt enkelt den självklara samlingsplatsen där vi gärna bjuder in till härliga stunder med nära och kära. Det genomgående köket går i tidlöst vitt och bjuder på full utrustning om delvis inbyggda vitvaror samt kyl och frys i fullhöjd - en fröjd för den matlagningsglade. Från vardagsrummet når vi en av bostadens två balkonger och den andra balkongen, i sydväst, nås från master bedroom lugnt beläget mot gården. Som om det inte vore nog har vi här ytterligare två sovrum, både badrum med tvättutrustning och gäst-wc i ljusa utföranden och lyxen om fönster. Lägg därtill kompletta ljusa ytskikt i sampel med klassisk parkett som utgör den perfekta basen att sätta vår egen prägel!

Området är lummigt och trivsamt, med närhet till allt vi behöver – ett stenkast till matbutik, skolor och universitet, samt goda kommunikationer för en enkel och smidig vardagspendling.

Varmt välkommen att uppleva denna fantastiska bostad på plats!

Snabbfakta
Avgift:
6 107 kr
I avgiften ingår värme, bostadsrättstillägg och vatten. Ett obligatoriskt tillägg om 169 kr/månad tillkommer för Telia Triple Play: bredband (100/100), digital-TV paket Lagom och IP-telefoni (ej samtalskostnad).
Rum:
4 rum och kök
Boarea:
96 kvm
Våning:
5 av 7
Utgångspris:
4 250 000 kr
Byggnadsår:
2021
e-prospekt
Visningar
  • Bokad visning! boka via erikolsson.se för att kontrollera lediga tider
    Måndag 20 oktober 16:30 - 16:50
    Boka
Mäklare

Karin

Lekander

ANSVARIG
MÄKLARE

Högt belägen & ljus gavelfyra med dubbla balkonger!

  • Våning 5 av 7
  • Stilrent & välutrustat kök
  • Dubbla balkonger
  • Attraktivt gavelläge
  • Fönster med karaktär
  • Tre bra sovrum
  • Enhetliga ytskikt
  • Egna tvättmöjligheter
  • Badrum & gäst-wc
  • Parkering finns att tillgå
  • Garage i huset
  • Bostadsrättstillägg ingår
  • Möjlighet till odling
  • Eftertraktat område
  • Närhet till universitet
  • Skolor & barnomsorg
  • Mataffärer & service
  • Goda kommunikationer

Välkomna till ett hem som överraskar och imponerar – en underbar fyrarummare med dubbla balkonger och ett genomgående ljusflöde från hela tre väderstreck som skapar en otroligt rymd. Högt upp i huset, med hiss hela vägen upp, bor vi på ett lugnt och upphöjt läge med utsikt över omgivningen. Bostadens hjärta består av en öppen yta med vardagsrum, kök och matplats i ett - omgivet av asymmetriska fönster som skapar karaktär. Helt enkelt den självklara samlingsplatsen där vi gärna bjuder in till härliga stunder med nära och kära. Det genomgående köket går i tidlöst vitt och bjuder på full utrustning om delvis inbyggda vitvaror samt kyl och frys i fullhöjd - en fröjd för den matlagningsglade. Från vardagsrummet når vi en av bostadens två balkonger och den andra balkongen, i sydväst, nås från master bedroom lugnt beläget mot gården. Som om det inte vore nog har vi här ytterligare två sovrum, både badrum med tvättutrustning och gäst-wc i ljusa utföranden och lyxen om fönster. Lägg därtill kompletta ljusa ytskikt i sampel med klassisk parkett som utgör den perfekta basen att sätta vår egen prägel!

Området är lummigt och trivsamt, med närhet till allt vi behöver – ett stenkast till matbutik, skolor och universitet, samt goda kommunikationer för en enkel och smidig vardagspendling.

Varmt välkommen att uppleva denna fantastiska bostad på plats!

Visningar
  • Bokad visning! boka via erikolsson.se för att kontrollera lediga tider
    Måndag 20 oktober 16:30 - 16:50
    Boka
TIPSA

Karin

Lekander

ANSVARIG
MÄKLARE

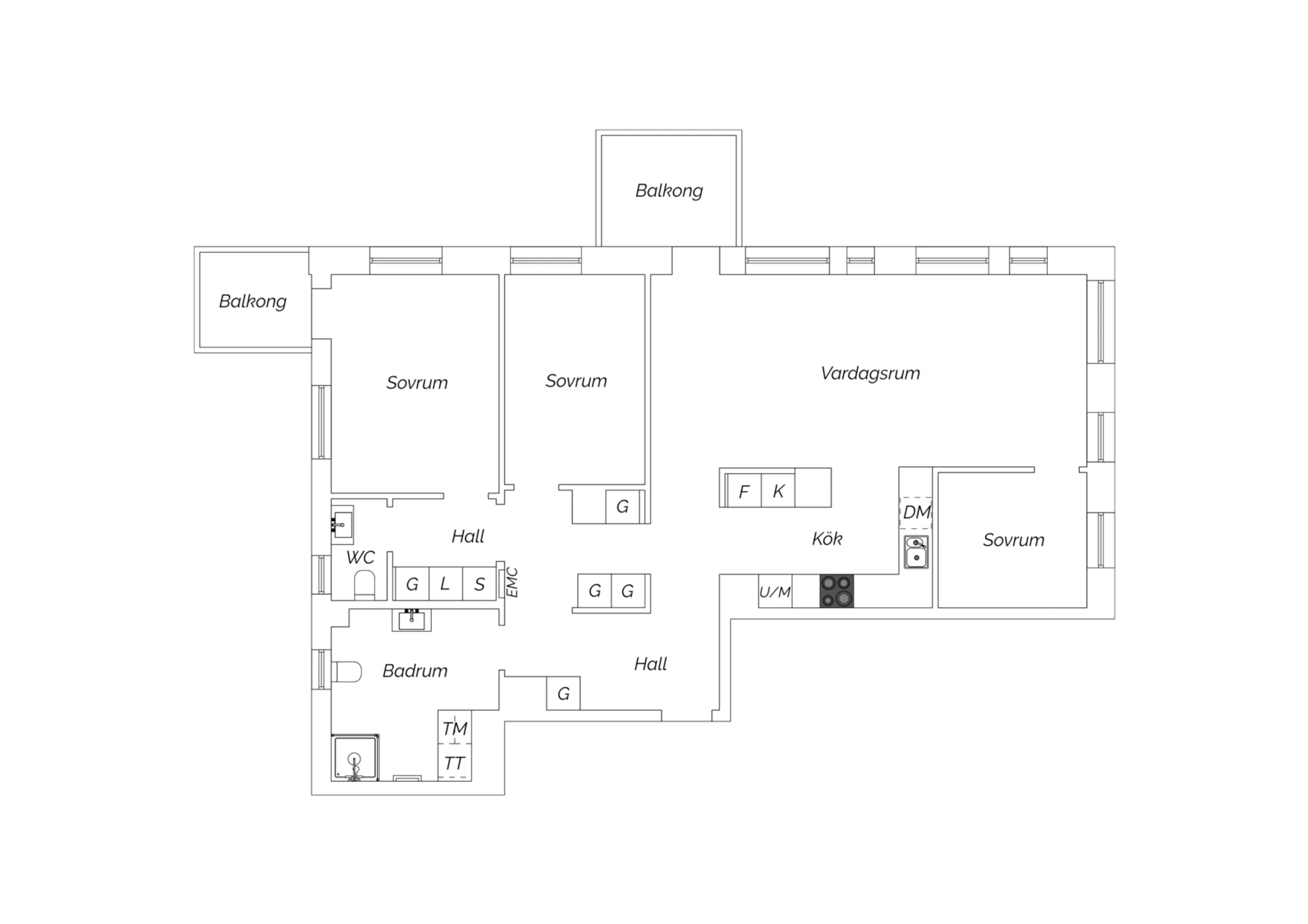
Rumsbeskrivning - Scheelevägen 3E

HALL

Parkettgolv och vita väggar. Plats för avhängning och ytterligare förvaring i garderober.

KÖK

Parkettgolv och vita väggar. Vit köksinredning och vitt kakel ovan ljus marmorerad bänkskiva. Köket är utrustat med keramisk häll, fläkt, inbyggd ugn, inbyggd mikrovågsugn, diskmaskin samt kyl och frys i fullhöjd. Infällda spotlights ovan bänk.

VARDAGSRUM

Parkettgolv och vita väggar. Rymmer soffgrupp och större matplats. Utgång till balkong i nordväst.

SOVRUM

Parkettgolv och vita väggar. Rymmer dubbelsäng. Utgång till balkong i sydväst.

SOVRUM

Parkettgolv och vita väggar. Rymmer enkelsäng.

SOVRUM

Parkettgolv och vita väggar. Rymmer enkelsäng.

BADRUM

Ljusgrå klinker och vitt kakel. Badrummet är inrett med wc, handfat med vit kommod, spegel, dusch med vikbara glasväggar, handdukstork, förvaringsskåp ovan arbetsbänk samt tvättmaskin och torktumlare. Ljusbringande fönster.

GÄST-WC

Grå klinker och vitt kakel samt vita väggar. Inrett med wc, handfat med vit kommod och spegel. Ljusbringande fönster.

FÖRRÅD

Nuvarande lägenhetsinnehavare disponerar över ett källarförråd.

Fakta – Scheelevägen 3E

Bostadstyp: Bostadsrätt
Kommun: Lund
Storlek: 4 rum och kök, 96 kvm boarea
Areakälla: föreningens information
Våning: 5 av 7
Lägenhetsnummer: 4141 (1401)
Utgångspris: 4 250 000 kr
Månadsavgift: 6 107 kr
I avgiften ingår värme, bostadsrättstillägg och vatten. Ett obligatoriskt tillägg om 169 kr/månad tillkommer för Telia Triple Play: bredband (100/100), digital-TV paket Lagom och IP-telefoni (ej samtalskostnad).
Andelstal: Andel av årsavgift 1,652 %
Indirekt nettoskuldsättning: 1 189 751 kr
Bostadsrättens indirekta nettoskuldsättning anger hur stor andel av bostadsrättsföreningens lån som indirekt belastar bostadsrätten. Andelen beräknas som andelstalet för avgifter multiplicerat med föreningens nettoskuldsättning. Den består av räntebärande skulder med avdrag för räntebärande tillgångar och likvida medel. Underlagen för beräkningen kommer från föreningen.
Energiprestanda: 57 kWh/kvm och år
Energiklass: C
Tillträde: Gärna inom 3 månader efter kontraktsskrivning.

Fakta – Brf Scheele Promenad 2

Äkta/oäkta förening: Äkta
Äger föreningen marken: Ja
Antal lägenheter: 83
Antal lokaler: 1
Allmänt om föreningen: Brf Scheele Promenad 2 köpte fastigheten 2020. Föreningens lokal upplåts med hyresrätt. Till föreningen hör adressen Scheelevägen 3.

I samtliga lägenheter finns tvättmaskin och torktumlare, ingen gemensam tvättstuga finns. I föreningen finns cykel- och barnvagnsrum.

På gården finns möjligheter till samvaro och odling samt lekplats för de minsta.

Föreningen är ansluten till Medicon Village för energiförsörjning genom den innovativa tekniken Ectogrid från E.ON. Genom detta system får föreningen överskottsvärme från Medicon Village, som används för att värma upp byggnaden. I utbyte levererar föreningen kyla till Medicon Village för deras processer.
Parkering: I föreningen finns 58 garageplatser, varav 27 är försedda med laddstolpe, som nås med hiss i huset. Plats kan hyras till en kostnad om ca 1 000 kr/månad, med laddstolpe ca 1 250 kr/mån + förbrukning. I dagsläget finns lediga garageplatser utan el.

Föreningen är ansluten till bilpool där medlemskapet är rabatterat för medlemmar.
Överlåtelseavgift och pantsättning: En överlåtelseavgift tas ut om ca 1 470 kr som betalas av köparen. Vid belåning av bostaden tas en pantsättningsavgift ut om ca 588 kr/pant. Beloppen är beräknade på prisbasbeloppet för år 2025.
Hus
Byggår: 2021
Byggnadstyp: Flerfamiljshus
Hiss: Hiss finns
Uppvärmning: Markvärmepump (el)
Tv och internet: Föreningen är ansluten till digital-TV och internet via Telia (Triple Play).
Renoveringar
2021 stod husen klara.
2024 utfördes en OVK samt en radonmätning med gott resultat, utfallet var långt under gränsvärdena. Samma år utfördes ett garantiärende om fasadarbete och installerades 17 st laddplatser.

Föreningen planerar troligen under året att behandla träfönster och entrépartier. Föreningen planerar även under 2026 en stamspolning. I dagsläget inga vidare beslut tagna.

All information gällande föreningen har inhämtats genom årsredovisningen och kontrollerats med representant från föreningen. Slutgiltig köpare uppmanas att kontakta representant från föreningen för att stämma av ovanstående information.

Driftkostnader

Totalsumma: 9 240 kr/år

I driftkostnaden ingår följande:
El: 6 840 kr/år
Försäkring: 2 400 kr/år

Driftkostnaden är beräknad på 3 personers hushåll.
Angiven driftkostnad är beräknad enligt schablon. Kostnaderna kan vara både högre och lägre för ny boende.

  • Denna bostad
  • Bostäder till salu via Erik Olsson

En riktigt lyckad

bostadsaffär

När du hittat ditt drömboende hjälper vi dig gärna att sälja din nuvarande bostad. För oss är det viktigt att du känner dig trygg både när du köper och säljer bostad via Erik Olsson. Därför är våra mäklare bland de vassaste och mest engagerade i branschen. Vi anstränger oss gärna lite extra för att din bostadsförsäljning ska bli perfekt. Hos oss får du en riktigt lyckad bostadsaffär – och bäst betalt.

Intresseanmälan

Få kontakt med en mäklare som är expert på just ditt område.

✶ Obligatoriska fält

Tillbaka till toppen