Rinnebäck / Kävlinge

Skånegatan 9

Föreslagen budstart: 3 995 000 kr
TIPSA
Renoverad villa på eftertraktat läge!

  • 1-plansvilla med källare
  • Öppen planlösning
  • Öppet upp i nock
  • Vackert kök med köksö
  • Ljusinsläpp
  • 3 bra sovrum
  • Helkaklat badrum
  • Nytt värmesystem
  • Vattenburen golvvärme
  • Rymlig källare med potential
  • Lummig trädgård
  • Altan i västerläge
  • Planteringar & fruktträd
  • Barn & familjevänligt område
  • Gångavstånd till Rinnebäcksskolan
  • Närhet till tåg och service

Välkommen till ett stilfullt och välskött hem.
Invändigt möts du av en generös och socialt utformad bostad med öppen och genomtänkt planlösning. Det imponerande taklyftet ger en härlig känsla av rymd med öppet upp mot nock och rikligt med naturligt ljus som strömmar in genom stora fönsterpartier.

Det smakfulla köket, utrustat med en central köksö, bjuder in till både matlagning och umgänge. Härifrån har du kontakt med både matplats och vardagsrum vilket är perfekt för det moderna familjelivet.

Fastigheten har nyligen fått ett nytt och energieffektivt uppvärmningssystem installerat, med vattenburen golvvärme som ger en behaglig temperatur och komfort året runt.

I den rymliga källaren finns stora möjligheter, kanske ett hobbyrum, hemmakontor eller extra sovutrymmen? Här finns plats för att förverkliga dina idéer.

Utomhus väntar en uppvuxen trädgård med planteringar och egna fruktträd. På altanen i soligt västerläge kan du njuta av eftermiddags- och kvällssolen i lugn och ro.

Bostaden ligger i ett lugnt och barnvänligt kvarter med närhet till både lekplatser, natur och service. Med kort promenadavstånd till omtyckta Rinnebäcksskolan och goda kommunikationer via tåg och buss är detta ett optimalt läge för familjen.

Ett harmoniskt hem i ett populärt område – varmt välkommen på visning!

Snabbfakta
Rum:
5
Varav sovrum:
3
Boarea:
85 kvm
Biarea:
85 kvm
Tomtarea:
752 kvm
Föreslagen budstart:
3 995 000 kr
Byggnadsår:
1965
Fastighetsbeteckning:
Moränen 7
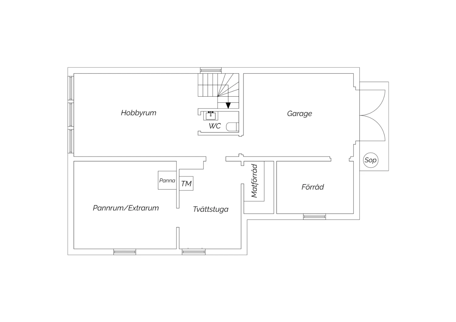
Planritning
Visningar
  • Bokad visning! boka via erikolsson.se för att kontrollera lediga tider
    Söndag 19 oktober 16:45 - 17:45
    Boka
Mäklare

Izabella

Engdahl

ANSVARIG
MÄKLARE

Renoverad villa på eftertraktat läge!

  • 1-plansvilla med källare
  • Öppen planlösning
  • Öppet upp i nock
  • Vackert kök med köksö
  • Ljusinsläpp
  • 3 bra sovrum
  • Helkaklat badrum
  • Nytt värmesystem
  • Vattenburen golvvärme
  • Rymlig källare med potential
  • Lummig trädgård
  • Altan i västerläge
  • Planteringar & fruktträd
  • Barn & familjevänligt område
  • Gångavstånd till Rinnebäcksskolan
  • Närhet till tåg och service

Välkommen till ett stilfullt och välskött hem.
Invändigt möts du av en generös och socialt utformad bostad med öppen och genomtänkt planlösning. Det imponerande taklyftet ger en härlig känsla av rymd med öppet upp mot nock och rikligt med naturligt ljus som strömmar in genom stora fönsterpartier.

Det smakfulla köket, utrustat med en central köksö, bjuder in till både matlagning och umgänge. Härifrån har du kontakt med både matplats och vardagsrum vilket är perfekt för det moderna familjelivet.

Fastigheten har nyligen fått ett nytt och energieffektivt uppvärmningssystem installerat, med vattenburen golvvärme som ger en behaglig temperatur och komfort året runt.

I den rymliga källaren finns stora möjligheter, kanske ett hobbyrum, hemmakontor eller extra sovutrymmen? Här finns plats för att förverkliga dina idéer.

Utomhus väntar en uppvuxen trädgård med planteringar och egna fruktträd. På altanen i soligt västerläge kan du njuta av eftermiddags- och kvällssolen i lugn och ro.

Bostaden ligger i ett lugnt och barnvänligt kvarter med närhet till både lekplatser, natur och service. Med kort promenadavstånd till omtyckta Rinnebäcksskolan och goda kommunikationer via tåg och buss är detta ett optimalt läge för familjen.

Ett harmoniskt hem i ett populärt område – varmt välkommen på visning!

Visningar
  • Bokad visning! boka via erikolsson.se för att kontrollera lediga tider
    Söndag 19 oktober 16:45 - 17:45
    Boka
TIPSA

Izabella

Engdahl

ANSVARIG
MÄKLARE

Rumsbeskrivning - Skånegatan 9

ENTRÈ PLAN

HALL

Klinker på golvet med vattenburen golvvärme och vitmålade väggar. Bra avhängningsmöjlighet och förvaring i inbyggd garderob.

KÖK

Klinker på golvet med vattenburen golvvärme och vitmålade väggar. Beige köksinredning från IKEA (2022) och ljus komposit bänkskiva. Köket är inrett med induktionshäll med inbyggd fläkt (IKEA, 2022), inbyggd varmluftsugn (IKEA, 2022), mikrovågsugn (IKEA, 2022) och diskmaskin (2025), inbyggt skafferi, kyl och frys (Samsung, 2017). Stor köksö med sittplatser.

VARDAGSRUM/MATPLATS

Klinker på golvet med vattenburen golvvärme och vitmålade väggar med fondvägg med mörkgrön ton. Öppet upp i nock och utgång till altan i västerläge.

BADRUM

Blått klinker på golvet med elburen golvvärme och blått/vitt kakel på väggarna. Badrummet är inrett med vägghängd WC, handfat med kommod, spegel, handdukstork, takdusch med vikbara glasdörrar och infällda spotlights.

SOVRUM

Klinker på golvet med vattenburen golvvärme och målade väggar i mörkgrön ton.

SOVRUM

Klinker på golvet med vattenburen golvvärme och vitmålade väggar. Inbyggda garderober.

SOVRUM

Klinker på golvet med vattenburen golvvärme och vitmålade väggar.

KÄLLARE

ALLRUM

Klinker på golvet och vitmålade väggar.

WC

Mörkt klinker på golvet och ljust kakel på väggar. Inrett med WC, handfat med kommod, spegel och förvaringsskåp.

TVÄTTSTUGA

Klinker på golvet och vitmålade väggar. Utrustat med tvättmaskin, torktumlare samt avfuktare och bra plats för klädtorkning.

PANNRUM

Klinker på golvet och vitmålade väggar. Luft/vatten värmepanna från Viessman 2017.

Fakta – Skånegatan 9

Bostadstyp: Villa
Kommun: Kävlinge
Fastighetsbeteckning: Moränen 7
Storlek: 5 rum, 85 kvm boarea, 85 kvm biarea
Varav sovrum: 3
Areakälla: taxeringsinformation
Föreslagen budstart: 3 995 000 kr
Energiprestanda: 109 kWh/kvm och år
Energiklass: D
Planbestämmelser: Stadsplan (1967-02-14) Tomtindelning (1962-12-10)
Upplåtelseform: Friköpt
Pantbrev: Det finns 4 st pantbrev uttaget om sammanlagt 3 230 000 kr
Taxeringsvärde: 2 654 000 kr
Taxeringsår: 2024
Byggnadsvärde: 1 471 000 kr
Markvärde: 1 183 000 kr
Fastighetsavgift: 10 074 kr/år

Fakta – Byggnaden

Hus
Byggnadstyp: 1-plansvilla med källare
Byggår: 1965
Fasad: Tegel
Stomme: Trä
Fönster: 3-glas
Tak: Tegel
Grundläggning: Betongplatta
Uppvärmning: Värmepump luft/vatten, vattenburen golvvärme entréplan & radiatorer i källare.
Vatten och avlopp: Kommunalt vatten året om. Kommunalt avlopp
Ventilation: Självdrag
Övrigt om byggnaden: RENOVERINGAR:
Av föregående ägare:
2009 renoverades taket.

Av nuvarande ägare:
2021-2022 renoverades entréplan genom en öppnare planlösning, höjning av innertak upp till nock och samtliga väggar, golv och innertak är nya.
Nytt värmesystem med vattenburen golvvärme samt nya radiatorer i källare installerades.
All el och samtliga vattenledningar drogs om i hela huset.
Dörr ut till altan/trädgård sattes in med stålram runt om.
Nytt kök med köksö monterades.
Badrummet renoverades av Fasad och interiör.
2024 ny ytterdörr monterades och torktumlare installerades.
2025 byggdes nytt altantak och ny WC samt handfat införskaffades till WC i källare.

ÖVRIGT:
Fiber finns indraget.
Tomt, uteplats och bilplats
Tomtarea: 752 kvm
Tomttyp: Trädgårdstomt
Beskrivning uteplats: Mysig altan i västerläge om ca 25 kvm med sol från ca 11.00 till solnedgång. Lummig trädgård med gräsmatta, planteringar och fruktträd.
Beskrivning bilplats: Parkering på gata.

Driftkostnader

Totalsumma: 43 275 kr/år

I driftkostnaden ingår följande:
Uppvärmning: 23 000 kr/år
El: 10 000 kr/år
VA: 8 000 kr/år
Renhållning: 2 275 kr/år

Driftkostnaden är beräknad på 5 personers hushåll.
Driftskostnaden är baserad på säljarens faktiska kostnad och kan variera beroende på antal personer i hushållet, levnadsvanor och avtal. Hemförsäkring tillkommer.
Försäkringsbolag: Tre Kronor
Fullvärde: Ja
Elförbrukning: 15 000 kWh/år

Utöver detta tillkommer kostnad för fastighetsavgift/skatt på 10 074 kr/år.

  • Denna bostad
  • Bostäder till salu via Erik Olsson

En riktigt lyckad

bostadsaffär

När du hittat ditt drömboende hjälper vi dig gärna att sälja din nuvarande bostad. För oss är det viktigt att du känner dig trygg både när du köper och säljer bostad via Erik Olsson. Därför är våra mäklare bland de vassaste och mest engagerade i branschen. Vi anstränger oss gärna lite extra för att din bostadsförsäljning ska bli perfekt. Hos oss får du en riktigt lyckad bostadsaffär – och bäst betalt.

Intresseanmälan

Få kontakt med en mäklare som är expert på just ditt område.

✶ Obligatoriska fält

Tillbaka till toppen