Norra Fäladen / Lund

Markaskälsvägen 2

Utgångspris: 7 400 000 kr
TIPSA
Stor familjevilla på hörntomt med stora sällskapsytor och solig trädgård

  • Plats för hela familjen
  • Ljusfyllda rum
  • Stora sällskapsytor
  • Luftiga atmosfär
  • Generöst kök
  • Två kaminer
  • 6 sovrum
  • Flexibel planlösning
  • Uteplatser med sol hela dagen
  • Grönskande hörntomt
  • Lättskött trädgård
  • Fruktträd & bärbuskar
  • Carport med stort förråd
  • Barnvänligt & lugnt område
  • Närhet till skolor & förskolor
  • Nära till grönområden
  • Matbutiker & service inom gångavstånd
  • Utmärkta bussförbindelser

På en trivsam hörntomt i ett lugnt och barnvänligt område väntar denna rymliga 1 1/2-plansvilla som erbjuder både generösa ytor och en välplanerad disposition för hela familjen. Här möts vi direkt av en stor och välkomnande hall som öppnar upp mot husets ljusa sällskapsytor.

Vardagsrummet är rymligt och inbjudande, med vackra fönsterdörrar och glaspartier som leder ut mot altanen och den grönskande trädgården. Här finns gott om plats för både vardagsliv och festliga middagar, och en av husets två kaminer skapar extra värme och stämning under årets kallare månader. Intill ligger matsalen med plats för ett stort bord – perfekt för större sällskap och familjemiddagar.

Vidare bjuds vi in det ljusa och välutrustade köket med granitbänkskiva, vinkyl, rikligt med förvaringsutrymmen och arbetsytor som gör matlagningen till en ren glädje. Husets praktiska planlösning erbjuder flera sovrum i olika storlekar och gott om förvaring i så väl garderober som i kattvinden, vilket gör att hela familjen får plats och kan trivas länge.

Utomhusmiljön är lika generös som insidan. Två uteplatser ger sol från morgon till kväll och den lättskötta trädgården bjuder på både fruktträd - äpple, päron och plommon - samt bärbuskar och en storslagen magnolia som blommar vackert på våren. Här finns plats för lek, odling och avkoppling. Lägg därtill en carport med stort förråd som ger både trygg parkering och extra förvaringsutrymme.

Läget är idealiskt för barnfamiljer med närhet till flera skolor, förskolor, matbutiker, simhall och grönområden - allt inom bekvämt gångavstånd. Bussförbindelserna är utmärkta med hållplats endast 100 meter bort, vilket gör vardagen smidig.

Ett hem som kombinerar charm, funktionalitet och ett fantastiskt läge - varmt välkommen att upptäcka mer!

Snabbfakta
Rum:
9
Varav sovrum:
6
Boarea:
239 kvm
Biarea:
2 kvm
Tomtarea:
754 kvm
Utgångspris:
7 400 000 kr
Byggnadsår:
1967
Fastighetsbeteckning:
Saköret 3
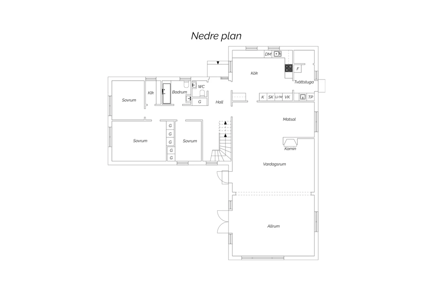
Planritning
e-prospekt
Mäklare

Karin

Lekander

ANSVARIG
MÄKLARE

Stor familjevilla på hörntomt med stora sällskapsytor och solig trädgård

  • Plats för hela familjen
  • Ljusfyllda rum
  • Stora sällskapsytor
  • Luftiga atmosfär
  • Generöst kök
  • Två kaminer
  • 6 sovrum
  • Flexibel planlösning
  • Uteplatser med sol hela dagen
  • Grönskande hörntomt
  • Lättskött trädgård
  • Fruktträd & bärbuskar
  • Carport med stort förråd
  • Barnvänligt & lugnt område
  • Närhet till skolor & förskolor
  • Nära till grönområden
  • Matbutiker & service inom gångavstånd
  • Utmärkta bussförbindelser

På en trivsam hörntomt i ett lugnt och barnvänligt område väntar denna rymliga 1 1/2-plansvilla som erbjuder både generösa ytor och en välplanerad disposition för hela familjen. Här möts vi direkt av en stor och välkomnande hall som öppnar upp mot husets ljusa sällskapsytor.

Vardagsrummet är rymligt och inbjudande, med vackra fönsterdörrar och glaspartier som leder ut mot altanen och den grönskande trädgården. Här finns gott om plats för både vardagsliv och festliga middagar, och en av husets två kaminer skapar extra värme och stämning under årets kallare månader. Intill ligger matsalen med plats för ett stort bord – perfekt för större sällskap och familjemiddagar.

Vidare bjuds vi in det ljusa och välutrustade köket med granitbänkskiva, vinkyl, rikligt med förvaringsutrymmen och arbetsytor som gör matlagningen till en ren glädje. Husets praktiska planlösning erbjuder flera sovrum i olika storlekar och gott om förvaring i så väl garderober som i kattvinden, vilket gör att hela familjen får plats och kan trivas länge.

Utomhusmiljön är lika generös som insidan. Två uteplatser ger sol från morgon till kväll och den lättskötta trädgården bjuder på både fruktträd - äpple, päron och plommon - samt bärbuskar och en storslagen magnolia som blommar vackert på våren. Här finns plats för lek, odling och avkoppling. Lägg därtill en carport med stort förråd som ger både trygg parkering och extra förvaringsutrymme.

Läget är idealiskt för barnfamiljer med närhet till flera skolor, förskolor, matbutiker, simhall och grönområden - allt inom bekvämt gångavstånd. Bussförbindelserna är utmärkta med hållplats endast 100 meter bort, vilket gör vardagen smidig.

Ett hem som kombinerar charm, funktionalitet och ett fantastiskt läge - varmt välkommen att upptäcka mer!

TIPSA

Karin

Lekander

ANSVARIG
MÄKLARE

Rumsbeskrivning - Markaskälsvägen 2

NEDRE PLAN

HALL

Beige klinker och vita väggar. Plats för avhängning och förvaring i garderob samt klädkammare. Golvvärme (el).

KÖK

Beige klinker och vita väggar. Beige köksinredning och vitt kakel ovan svart bänkskiva i granit. Köket är utrustat med kyl (Electrolux), induktionshäll (Electrolux), fläkt (Fjäräs), inbyggd ugn, (Husqvarna), inbyggd mikrovågsugn (Bosch), diskmaskin (Cylinda) och vinkyl (Cylinda). Golvvärme (el) och spotlights i tak samt under överskåp.

VARDAGSRUM

Parkettgolv och vita väggar. Här finns en kamin.

ALLRUM

Parkettgolv och vita väggar.

SOVRUM

Ljus heltäckningsmatta och vita väggar. Förvaring i garderober.

SOVRUM

Laminatgolv och vita väggar.

SOVRUM

Rosa heltäckningsmatta och vita väggar. Förvaring i garderober.

BADRUM

Ljus klinker och ljust kakel. Badrummet är inrett med WC, handfat, spegelskåp och badkar.

WC

Vit och rosa klinker samt vita väggar. Är inrett med WC, handfat och spegel.

TVÄTTSTUGA

Beige klinker och vita väggar. Är inrett med arbetsbänk, vask, trådbackar, städskåp och tvättmaskin samt torktumlare från Miele. Här finns även en frys (Electrolux).

ÖVRE PLAN

HALL

Vitlaserat trägolv och vita väggar. Förvaring i garderober och kattvind. Här finns även en kamin.

ALLRUM

Vitlaserat trägolv och vita väggar.

SOVRUM

Vitlaserat trägolv och vita väggar. Förvaring i garderob och klädkammare.

SOVRUM

Vitlaserat trägolv och vita väggar. Förvaring i garderober.

SOVRUM

Vitlaserat trägolv och vita väggar.

BADRUM

Vitt klinker och blått kakel. Badrummet är inrett med WC, handfat med kommod, spegelskåp och dusch med vikbara duschväggar i glas.

ÖVRIGT

239 kvm boarea och 2 kvm biarea enligt faktiskt uppmätning. 229 kvm boarea och 0 kvm biarea enligt taxeringsinformation.

Fakta – Markaskälsvägen 2

Bostadstyp: Villa
Kommun: Lund
Besiktad och försäkrad: Bostaden är besiktad och säljaren avser att teckna en försäkring mot dolda fel.
Fastighetsbeteckning: Saköret 3
Storlek: 9 rum, 239 kvm boarea, 2 kvm biarea
Varav sovrum: 6
Areakälla: faktisk uppmätn norm SS 021053
Utgångspris: 7 400 000 kr
Energiprestanda: 109 kWh/kvm och år
Energiklass: D
Servitut, samfälligheter, etc: Gemensamhetsanläggning: Lund norra fäladen ga:1 ändamål: Vägar, Elledning och/eller belysning, Grönområden, Garage och/eller parkering
Avtalsservitut Förbud värmecentral mm
Last: Avtalsservitut Förbud värmecentral mm, 12-IM3-67/1787.1
Planbestämmelser: Tomtindelning (1966-10-12) Stadsplan (1966-07-20)
Upplåtelseform: Friköpt
Pantbrev: Det finns 6 st pantbrev uttaget om sammanlagt 747 000 kr
Taxeringsvärde: 7 004 000 kr
Taxeringsår: 2024
Byggnadsvärde: 4 152 000 kr
Markvärde: 2 852 000 kr
Fastighetsavgift: 10 074 kr/år

Fakta – Byggnaden

Hus
Byggnadstyp: 1½-plansvilla i vinkel
Byggår: 1967
Ombyggt 1977
Fasad: Tegel & puts
Stomme: Betong
Fönster: 2-glas
Tak: Tegel
Grundläggning: Betongplatta
Uppvärmning: Direkt El och golvvärme (el)
Vatten och avlopp: Kommunalt vatten året om. Kommunalt avlopp
Övrigt om byggnaden: RENOVERINGAR:
2024 installerades en ny diskmaskin.
2023 installerades solceller på taket.
2015 lades nya takpannor.
2012 installerades ny induktionshäll.
ca 2010-2019 monterades nya fönster i hall på övre plan och diverse målarbete utomhus genomfördes.
ca 2000-2009 lades nytt tak på carporten.
2007 lades nytt golv och golvvärme i hallen på nedre plan.
2004 renoverades köket och nya vitvaror installerades.
2003 renoverades badrummet på övre plan.

TV/BREDBAND:
Fiber finns i fastigheten.
Tomt, uteplats och bilplats
Tomtbeskrivning: Hörntomt med lättskött gräsyta runt huset med en härlig grönska av buskar, fruktträd och blomsterrabatter.
Tomtarea: 754 kvm
Tomttyp: Trädgårdstomt
Beskrivning uteplats: Två stenlagda uteplatser i syd/sydost i husets vinkel.
Beskrivning bilplats: Carport och uppfart med plats för 2 bilar.

Driftkostnader

Totalsumma: 62 120 kr/år

I driftkostnaden ingår följande:
Uppvärmning: 37 044 kr/år
VA: 8 755 kr/år
Väg/samfällighetsavgift: 2 500 kr/år
Renhållning: 4 249 kr/år
Försäkring: 9 572 kr/år

Driftkostnaden är beräknad på 2 personers hushåll.
Angiven driftkostnad är beräknad enligt säljarens kostnader. De faktiska kostnaderna kan variera beroende på familjesammansättning och levnadssätt. Uppvärmning- och elförbrukning ca 32 173 kWh/år. Beräknad årsproduktion från solcellerna är ca 2 138 kWh/år. I samfällighetsavgiften ingår skötsel och städning av grönområde.
Fullvärde: Ja

Utöver detta tillkommer kostnad för fastighetsavgift/skatt på 10 074 kr/år.

  • Denna bostad
  • Bostäder till salu via Erik Olsson

En riktigt lyckad

bostadsaffär

När du hittat ditt drömboende hjälper vi dig gärna att sälja din nuvarande bostad. För oss är det viktigt att du känner dig trygg både när du köper och säljer bostad via Erik Olsson. Därför är våra mäklare bland de vassaste och mest engagerade i branschen. Vi anstränger oss gärna lite extra för att din bostadsförsäljning ska bli perfekt. Hos oss får du en riktigt lyckad bostadsaffär – och bäst betalt.

Intresseanmälan

Få kontakt med en mäklare som är expert på just ditt område.

✶ Obligatoriska fält

Tillbaka till toppen