Råbylund / LUND

Sankta Magnhilds väg 14B

Utgångspris: 3 495 000 kr
TIPSA
Familjevänligt drömhem i två plan med balkong i sydvästläge!

  • Nyproducerad från 2022
  • Tvåplanslägenhet
  • Balkong i sydväst
  • Grönskande fri vy
  • Välplanerade kvadratmeter
  • Genomtänkt planlösning
  • Parkeringsplats ingår
  • Genomgående parkettgolv
  • Dubbla badrumsmiljöer
  • Egna tvättmöjligheter
  • Kvalitetskök från HTH
  • Trevligt område
  • Gemensam lekyta för barn
  • Bra kommunikationer
  • Nära förskola och skola
  • Gångavstånd till Råbysjön

Välkommen till ett modernt och trivsamt hem från 2022, ett boende med genomgående hög standard och känsla för detaljer. Bostaden är smart planerad i två våningsplan och erbjuder ett ljust, luftigt intryck med stilrena materialval och harmoniskt ekgolv i hela hemmet.

Den generösa balkongen vetter mot sydväst, vilket ger sol stora delar av förmiddagen och framåt kvällen, perfekt för avkoppling eller en middag i kvällssolen. Eftersom det inte finns några grannar ovanför råder här en lugn och ostörd atmosfär.

Det eleganta köket från HTH är utrustat med kvalitativa vitvaror från Siemens, en plats där funktion möter design. Två helkaklade badrum och egna tvättmöjligheter underlättar vardagen ytterligare.

Parkeringsplats ingår och gör vardagslogistiken smidig. Med närhet till både förskolor, skolor och kollektivtrafik har du allt du behöver inom bekvämt räckhåll.

Området kring bostaden är både smakfullt bebyggt och harmoniskt planerat, med grönskande omgivningar och trygga kvarter, en idyll för barnfamiljen. Här bor du i ett lugnt och trivsamt kvarter där arkitekturen samspelar med naturen, vilket skapar en inbjudande och hemtrevlig känsla redan från första steget utanför dörren.

På promenadavstånd ligger Råbysjön – Lunds största sjö – en naturskön oas som lockar till picknickar, lekstunder, skridskoåkning och avkopplande promenader längs vattnet. En plats där hela familjen kan skapa minnen året om, omgiven av vacker natur och rogivande vyer.

Ett hem som kombinerar bekvämlighet, stil och ett utmärkt läge – varmt välkommen!

Snabbfakta
Avgift:
6 457 kr
I avgiften ingår bostadsrättstillägg och parkeringsplats. Det tillkommer obligatoriska tillägg om ca 203 kr/månad för TV/bredband/IP-telefoni och ca 430 kr/månad för vattentillägg. Kostnaden för vatten debiteras efter schablon och avräknas en gång per år.
Rum:
5 rum och kök
Boarea:
100 kvm
Våning:
Våning 2-3 av 3
Utgångspris:
3 495 000 kr
Byggnadsår:
2022
e-prospekt
Visningar
  • Bokad visning! boka via erikolsson.se för att kontrollera lediga tider
    Söndag 19 oktober 14:30 - 15:00
    Boka
Mäklare

Izabella

Engdahl

ANSVARIG
MÄKLARE

Familjevänligt drömhem i två plan med balkong i sydvästläge!

  • Nyproducerad från 2022
  • Tvåplanslägenhet
  • Balkong i sydväst
  • Grönskande fri vy
  • Välplanerade kvadratmeter
  • Genomtänkt planlösning
  • Parkeringsplats ingår
  • Genomgående parkettgolv
  • Dubbla badrumsmiljöer
  • Egna tvättmöjligheter
  • Kvalitetskök från HTH
  • Trevligt område
  • Gemensam lekyta för barn
  • Bra kommunikationer
  • Nära förskola och skola
  • Gångavstånd till Råbysjön

Välkommen till ett modernt och trivsamt hem från 2022, ett boende med genomgående hög standard och känsla för detaljer. Bostaden är smart planerad i två våningsplan och erbjuder ett ljust, luftigt intryck med stilrena materialval och harmoniskt ekgolv i hela hemmet.

Den generösa balkongen vetter mot sydväst, vilket ger sol stora delar av förmiddagen och framåt kvällen, perfekt för avkoppling eller en middag i kvällssolen. Eftersom det inte finns några grannar ovanför råder här en lugn och ostörd atmosfär.

Det eleganta köket från HTH är utrustat med kvalitativa vitvaror från Siemens, en plats där funktion möter design. Två helkaklade badrum och egna tvättmöjligheter underlättar vardagen ytterligare.

Parkeringsplats ingår och gör vardagslogistiken smidig. Med närhet till både förskolor, skolor och kollektivtrafik har du allt du behöver inom bekvämt räckhåll.

Området kring bostaden är både smakfullt bebyggt och harmoniskt planerat, med grönskande omgivningar och trygga kvarter, en idyll för barnfamiljen. Här bor du i ett lugnt och trivsamt kvarter där arkitekturen samspelar med naturen, vilket skapar en inbjudande och hemtrevlig känsla redan från första steget utanför dörren.

På promenadavstånd ligger Råbysjön – Lunds största sjö – en naturskön oas som lockar till picknickar, lekstunder, skridskoåkning och avkopplande promenader längs vattnet. En plats där hela familjen kan skapa minnen året om, omgiven av vacker natur och rogivande vyer.

Ett hem som kombinerar bekvämlighet, stil och ett utmärkt läge – varmt välkommen!

Visningar
  • Bokad visning! boka via erikolsson.se för att kontrollera lediga tider
    Söndag 19 oktober 14:30 - 15:00
    Boka
TIPSA

Izabella

Engdahl

ANSVARIG
MÄKLARE

Rumsbeskrivning - Sankta Magnhilds väg 14B

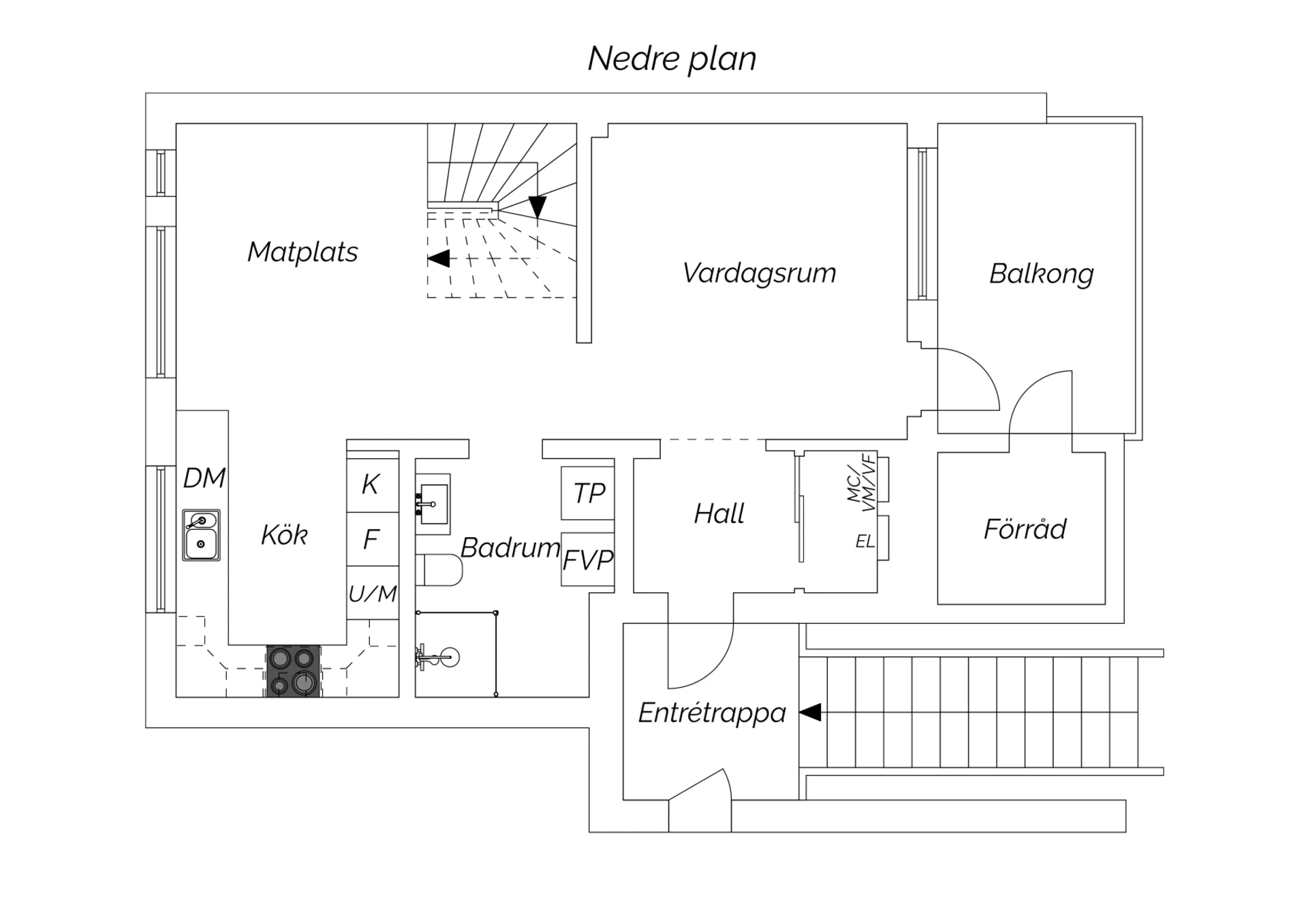
NEDRE PLAN

HALL

Ljusgrå klinker och målade väggar. Plats för avhängning och ytterligare förvaringsmöjligheter i skjutdörrsgarderob.

KÖK

Ekholm och målade väggar. Vit köksinredning från HTH och grått kakel ovan ljus bänkskiva i laminat. Köket är inrett med hel kyl, hel frys, induktionshäll, fläkt, inbyggd varmluftsugn, inbyggd mikrovågsugn och integrerad diskmaskin. Samtliga vitvaror från Siemens.

VARDAGSRUM

Ekgolv och målade väggar. Utgång till balkongen i sydväst.

BADRUM

Marmorerad klinker och kakel i gråbeige ton. Badrummet är inrett med WC, handfat med kommod, spegelskåp, takdusch med vikbara duschväggar, tvättmaskin (2025) och torktumlare.

ÖVRE PLAN

ALLRUM

Ekgolv och målade väggar.

SOVRUM

Ekgolv och målade väggar. Förvaringsmöjlighet i garderober från HTH.

SOVRUM

Ekgolv och målade väggar. Förvaringsmöjlighet i garderober från HTH.

SOVRUM

Ekgolv och målade väggar. Förvaringsmöjlighet i garderober från HTH.

BADRUM

Grå klinker och vitt kakel. Badrummet är inrett med WC, handfat med kommod, spegelskåp och badkar.

FÖRRÅD

Förråd finns i samband med lägenheten, access via balkongen.

Fakta – Sankta Magnhilds väg 14B

Bostadstyp: Bostadsrätt
Kommun: Lund
Storlek: 5 rum och kök, 100 kvm boarea
Areakälla: föreningens information
Våning: Våning 2-3 av 3
Lägenhetsnummer: 39 (11-1102) (1101)
Utgångspris: 3 495 000 kr
Månadsavgift: 6 457 kr
I avgiften ingår bostadsrättstillägg och parkeringsplats. Det tillkommer obligatoriska tillägg om ca 203 kr/månad för TV/bredband/IP-telefoni och ca 430 kr/månad för vattentillägg. Kostnaden för vatten debiteras efter schablon och avräknas en gång per år.
Andelstal: Andel i förening 2,379 %, andel av årsavgift 2,377 %
Indirekt nettoskuldsättning: 1 296 299 kr
Bostadsrättens indirekta nettoskuldsättning anger hur stor andel av bostadsrättsföreningens lån som indirekt belastar bostadsrätten. Andelen beräknas som andelstalet för avgifter multiplicerat med föreningens nettoskuldsättning. Den består av räntebärande skulder med avdrag för räntebärande tillgångar och likvida medel. Underlagen för beräkningen kommer från föreningen.
Energiprestanda: 80 kWh/kvm och år
Energiklass: D

Fakta – Brf Prästkragen i Södra Råbylund

Äkta/oäkta förening: Äkta
Äger föreningen marken: Ja
Antal lägenheter: 50
Allmänt om föreningen: Brf Prästkragen i Södra Råbylund. Föreningen är en äkta bostadsrättsförening, bildades 2015 och uppfördes av OBOS. Föreningen köpte fastigheten 2021-2022. Föreningen består av 50 bostäder fördelat på 14 huskroppar med en variation mellan fristående villor, flerbostads-och parhus i 2- och 3-plan. 7 st radhus i tre plan, med en marklägenhet i bottenplan, och en etagelägenhet på de två översta planen. 6 st fristående hus i två plan samt 1 st parhus i två plan.

Föreningens ekonomiska förvaltning sköts av SBC.

I föreningen finns gemensamma ytor med boulebana, lek för barn och 25 odlingslådor (kösystem tillämpas) på den gemensamma trädgården i mitten av området.

Varje lägenhet är utrustad med egna tvättmöjligheter.

Det finns ett rullande schema för gräsklippning och zoner för städning/ogräs/skottning samt trädgårdsdagar vår/höst.

För mer information om föreningen:
https://brfprastkragenlund.se/
Besök gärna föreningens hemsida för mer information: https://brfprastkragenlund.se/
Parkering: Föreningen har totalt 50 parkeringsplatser och 6 st handikappsplatser samt 10 st elbilsladdningsplatser. Föreningen har ett avtal med Elaway, där varje enskild medlem behöver teckna ett separat avtal. Till varje bostad ingår en nyttjanderätt till en parkeringsplats som är uppmärkt. De friliggande husen har parkeringar i egen carport.
Överlåtelseavgift och pantsättning: En överlåtelseavgift tas ut om ca 1 470 kr som betalas av köparen. Vid belåning av bostaden tas en pantsättningsavgift ut om ca 588 kr/pant. Beloppen är beräknade på prisbasbeloppet för år 2025.
Hus
Byggår: 2022
Byggnadstyp: Flerfamiljshus
Hiss: Hiss finns ej
Fönster: 3-glas
Uppvärmning: Värmepump-frånluft (el)
Tv och internet: Föreningen är ansluten till Triple Play med TV (paket lagom), fiberoptiskt bredband (500/500) och bredbandstelefoni via Telia.
Bilplats: Till bostaden ingår 1 parkeringsplats i närheten av bostaden.
Renoveringar
I dagsläget finns inga genomförda renoveringar då fastigheterna är nybyggda.
Föreningen genomgår dock en åtgärdsplan för förhöjda ljudvolymer mellan lägenheterna. Ett garantiärende som ännu inte har ett slutdatum eller en fast plan i dagens läge

OVK är planerad till 2027.

All information gällande föreningen har inhämtats genom årsredovisningen och kontrollerats med representant från föreningen. Slutgiltig köpare uppmanas att kontakta representant från föreningen för att stämma av ovanstående information.

Driftkostnader

Totalsumma: 14 400 kr/år

I driftkostnaden ingår följande:
Uppvärmning: 14 400 kr/år

Driftkostnaden är beräknad på 5 personers hushåll.
Uppvärmningsposten inkluderar hushållsel. Driftskostnaden är baserad på säljarens faktiska kostnad och kan variera beroende på antal personer i hushållet, levnadsvanor och avtal. Hemförsäkring tillkommer.

  • Denna bostad
  • Bostäder till salu via Erik Olsson

En riktigt lyckad

bostadsaffär

När du hittat ditt drömboende hjälper vi dig gärna att sälja din nuvarande bostad. För oss är det viktigt att du känner dig trygg både när du köper och säljer bostad via Erik Olsson. Därför är våra mäklare bland de vassaste och mest engagerade i branschen. Vi anstränger oss gärna lite extra för att din bostadsförsäljning ska bli perfekt. Hos oss får du en riktigt lyckad bostadsaffär – och bäst betalt.

Intresseanmälan

Få kontakt med en mäklare som är expert på just ditt område.

✶ Obligatoriska fält

Tillbaka till toppen