/ Genarp

Björnstorp 864

Föreslagen budstart: 4 195 000 kr
TIPSA
Trevlig poolvilla med fri utsikt ut över åkrar och fält!

  • Poolområde
  • Generös uteplats
  • Vidsträckt utsikt
  • Skyddad trädgård
  • Öppna sällskapsytor
  • Möjlighet till avskilt kontor
  • Braskamin
  • Idyllisk by
  • Naturnära
  • Enkelt att pendla till Malmö/Lund

Välskött 1-planshus med familjevänlig planlösning och en härlig trädgård med stort poolområde. Beläget på lantligt läge i idylliska Björnstorp by strax utanför Dalby. Här bor man lugnt och trivsamt, med naturen nära men med ett bra pendlingsmöjligheter till såväl Malmö som Lund.
Huset erbjuder i nuvarande planlösning 3 rymliga sovrum samt ett kontor i en del av förrådet som isolerats och inretts. Kök och vardagsrum hänger i hop i en öppen planlösning som inbjuder till social samvaro. Vardagsrummet separeras från trädgården av ett stort skjutglasparti som kan öppnas upp under sommaren och sudda ut gränsen mellan inne och ute.
Trädgården på baksidan öppnar upp sig som en dold skatt, helt osynlig från vägen. Här har man ett eget paradis med stor pool, ett rejält trädäck med möjlighet till uteplatser i flera olika lägen och dessutom gräsmatta med lekytor och odlingsbäddar. Från hela baksidan har man en vidsträckt utsikt ut över åkrar och fält bort mot Romelåsens vackra sluttningar. Perfekt för den som vill bo i en ostörd och rofylld miljö!

Björnstorp är en härligt plats att bo på tack vare sitt natursköna läge och sin närhet till flera städer i regionen. Den lilla byn har en härlig känsla och de boende i området har bra gemenskap.
En gång i veckan besöks Björnstorp av en lantbuss där man kan handla bl a matvaror.
De flesta som bor i Björnstorp har sina barn på förskolor och skolor i Dalby dit det går skolbuss. Man kan även välja att ha sina barn i barnomsorg i Genarp, ca 5 km från Björnstorp. Om man föredrar den populära Waldorfskolan i Hardeberga, finns det möjlighet till skolbuss dit.
Till och från Björnstorp tar man sig med buss. Man tar sig enkelt till Malmö med Skåneexpressen 8, som är en direktbuss som stannar på hållplats Knivsåsen som ligger på cykelavstånd. Till Lund går buss 160, och såväl Lund som Malmö nås på under 30 min med bil. Dalby ligger ca 5 minuter bort med bil.
Välkomna att boka tid för visning för att se mer!

Snabbfakta
Rum:
4
Varav sovrum:
3
Boarea:
128 kvm
Biarea:
45 kvm
Tomtarea:
1008 kvm
Föreslagen budstart:
4 195 000 kr
Byggnadsår:
1975
Fastighetsbeteckning:
Önneslöv 14:30
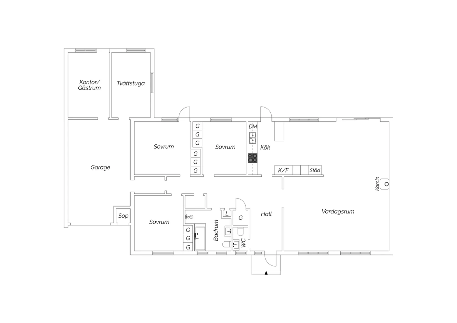
Planritning
e-prospekt
Visningar
  • Bokad visning! boka via erikolsson.se för att kontrollera lediga tider
    Söndag 19 oktober 13:00 - 13:30
    Boka
Mäklare

Karin

Ekström

ANSVARIG
MÄKLARE

Trevlig poolvilla med fri utsikt ut över åkrar och fält!

  • Poolområde
  • Generös uteplats
  • Vidsträckt utsikt
  • Skyddad trädgård
  • Öppna sällskapsytor
  • Möjlighet till avskilt kontor
  • Braskamin
  • Idyllisk by
  • Naturnära
  • Enkelt att pendla till Malmö/Lund

Välskött 1-planshus med familjevänlig planlösning och en härlig trädgård med stort poolområde. Beläget på lantligt läge i idylliska Björnstorp by strax utanför Dalby. Här bor man lugnt och trivsamt, med naturen nära men med ett bra pendlingsmöjligheter till såväl Malmö som Lund.
Huset erbjuder i nuvarande planlösning 3 rymliga sovrum samt ett kontor i en del av förrådet som isolerats och inretts. Kök och vardagsrum hänger i hop i en öppen planlösning som inbjuder till social samvaro. Vardagsrummet separeras från trädgården av ett stort skjutglasparti som kan öppnas upp under sommaren och sudda ut gränsen mellan inne och ute.
Trädgården på baksidan öppnar upp sig som en dold skatt, helt osynlig från vägen. Här har man ett eget paradis med stor pool, ett rejält trädäck med möjlighet till uteplatser i flera olika lägen och dessutom gräsmatta med lekytor och odlingsbäddar. Från hela baksidan har man en vidsträckt utsikt ut över åkrar och fält bort mot Romelåsens vackra sluttningar. Perfekt för den som vill bo i en ostörd och rofylld miljö!

Björnstorp är en härligt plats att bo på tack vare sitt natursköna läge och sin närhet till flera städer i regionen. Den lilla byn har en härlig känsla och de boende i området har bra gemenskap.
En gång i veckan besöks Björnstorp av en lantbuss där man kan handla bl a matvaror.
De flesta som bor i Björnstorp har sina barn på förskolor och skolor i Dalby dit det går skolbuss. Man kan även välja att ha sina barn i barnomsorg i Genarp, ca 5 km från Björnstorp. Om man föredrar den populära Waldorfskolan i Hardeberga, finns det möjlighet till skolbuss dit.
Till och från Björnstorp tar man sig med buss. Man tar sig enkelt till Malmö med Skåneexpressen 8, som är en direktbuss som stannar på hållplats Knivsåsen som ligger på cykelavstånd. Till Lund går buss 160, och såväl Lund som Malmö nås på under 30 min med bil. Dalby ligger ca 5 minuter bort med bil.
Välkomna att boka tid för visning för att se mer!

Visningar
  • Bokad visning! boka via erikolsson.se för att kontrollera lediga tider
    Söndag 19 oktober 13:00 - 13:30
    Boka
TIPSA

Karin

Ekström

ANSVARIG
MÄKLARE

Rumsbeskrivning - Björnstorp 864

ENTRÉ

Ljus och välkomnande hall som leder vidare in i kök och vardagsrum. Direkt innanför dörren finns plats att hänga av sig ytterkläder, och mer förvaring finns runt hörnet i en klädkammare.

GÄST WC

I anslutning till hallen finns en gäst wc i originalutförande, med wc och tvättställ.

VARDAGSRUM

Härligt vardagsrum i vinkel, med generösa ytor och fönster i två väderstreck som låter ljuset flöda genom rummet. Ett stort skjutfönsterparti ut mot baksidan ger en vidsträckt utsikt och skapar en vacker fond att vila blicken på. Här kan man öppna upp under sommaren och integrera uteplatsen med vardagsrummet. För den kyliga årstiden finns här en braskamin som sprider en härlig värme.

KÖK

Köket renoverades 2008, och är inrett i en smakfull och tidlös stil med ekfärgade luckor som kompletteras av svart kakel och vita bänkskivor. Bra arbetsytor med en köksö för extra avlastning och förvaring. Vitvarorna består av spishäll, inbyggnadsugn samt kombiugn/mikro, kyl och frys i fullhöjd och en diskmaskin. Samtliga vitvaror är från 2008, med undantag från spisfläkten som byttes 2017 och diskmaskin från 2021. I köket ryms även ett köksbord för minst 6 personer och det är öppen planlösning in mot vardagsrummet.

SOVRUM

Huset erbjuder idag tre bra sovrum. Ett lite större sovrum, med plats för dubbelsäng, samt två något mindre rum som passar utmärkt som barnrum eller kontor. Samtliga av rummen har inbyggda garderober för förvaring.

BADRUM

Rymligt badrum i originalutförande, inrett med såväl dusch som badkar.

GARAGE

I anslutning till huset finns ett garage, med stor separat tvättstuga samt ett inrett rum som kan fungera som kontor eller gästrum. Ingång direkt från huset eller via garageporten.

TRÄDGÅRD

Generös trädgård med en privat känsla. Intill huset löper ett stort trädäck som fortsätter hela vägen runt poolen och skapar en trevlig yta att umgås på. Här kan man välja mellan flera olika lägen att sitta på. För den odlingsintresserade finns flera odlingslådor och även en gräsmatta för lek och bollspel. Från hela baksidan kan man njuta av en ostörd utsikt ut över åkrar och fält.

Fakta – Björnstorp 864

Bostadstyp: Villa
Kommun: Lund
Fastighetsbeteckning: Önneslöv 14:30
Storlek: 4 rum, 128 kvm boarea, 45 kvm biarea
Varav sovrum: 3
Areakälla: taxeringsinformation
Föreslagen budstart: 4 195 000 kr
Energiklass: G
Upplåtelseform: Friköpt
Pantbrev: Det finns 8 st pantbrev uttaget om sammanlagt 2 889 250 kr
Taxeringsvärde: 2 946 000 kr
Taxeringsår: 2024
Byggnadsvärde: 2 027 000 kr
Markvärde: 919 000 kr
Fastighetsavgift: 10 074 kr/år
Tillträde: Flexibelt

Fakta – Byggnaden

Hus
Byggnadstyp: 1-plansvilla med vidbyggt garage
Byggår: 1975
Fasad: Tegel
Stomme: Siporex
Fönster: 2-glas/3-glas
Bjälklag: Trä och ERGE
Utvändigt plåtarbete: Lackerad plåt
Tak: Betongpannor
Grundläggning: Krypgrund (plast finns, utlagd av Anticimex)
Uppvärmning: Luft/luftvärmepump 2009, oljefyllda elradiatorer
Vatten och avlopp: Kommunalt vatten året om. Kommunalt avlopp
Ventilation: FTX
Övrigt om byggnaden: 2008- Totalrenovering av kök.
2010- Ny varmvattenberedare.
2015- Samtliga ytskikt utom kök målade/tapetserade, takvärmen kopplades ur och ersattes med oljefyllda elradiatorer, ny ytterbelysning installerades.
2016- Lås monterades på samtliga fönster, nya utkast på stuprör runt villadelen, stora trädäcket påbörjades.
2017- Ny takmassa på garagetak, färdigställande av stora trädäcket.
2018- Ny köksfläkt med utdrag installerades, radiatorer i wc och badrum installerades.
2021- Byggt utomhuspool. Lagt nytt golv/gipsplattor i garage och tvättstuga.
2022- Installerat FTX aggregat för ventilation. Installerat braskamin i vardagsrum.
2023- Installation av skjutglaspartier i vardagsrum.
2025- Ny ekparkett i större delen av huset.

Elburen golvvärme finns installerad i köket.
Radonmätning utförd med godkända värden.
Fiber finns indraget.
Tomt, uteplats och bilplats
Tomtarea: 1008 kvm
Tomttyp: Trädgårdstomt
Beskrivning bilplats: Uppfart med plats för flera bilar.
Garage.
Övriga byggnader
Vidbyggt garage av träregelkonstruktion med papptak. I garaget finns även tvättstuga och förrådsdel.

Driftkostnader

Totalsumma: 54 337 kr/år

I driftkostnaden ingår följande:
El: 41 000 kr/år
VA: 9 223 kr/år
Sotning: 800 kr/år
Renhållning: 3 314 kr/år

Driftkostnaden är beräknad på 4 personers hushåll.
Observera att driftskostnaderna är baserade på säljarens faktiska kostnader och kan variera. I elkostnaden ingår uppvärmning av pool under sommarhalvåret.
Försäkringsbolag: Folksam
Fullvärde: Ja
Elförbrukning: 21 000 kWh/år

Utöver detta tillkommer kostnad för fastighetsavgift/skatt på 10 074 kr/år.

  • Denna bostad
  • Bostäder till salu via Erik Olsson

En riktigt lyckad

bostadsaffär

När du hittat ditt drömboende hjälper vi dig gärna att sälja din nuvarande bostad. För oss är det viktigt att du känner dig trygg både när du köper och säljer bostad via Erik Olsson. Därför är våra mäklare bland de vassaste och mest engagerade i branschen. Vi anstränger oss gärna lite extra för att din bostadsförsäljning ska bli perfekt. Hos oss får du en riktigt lyckad bostadsaffär – och bäst betalt.

Intresseanmälan

Få kontakt med en mäklare som är expert på just ditt område.

✶ Obligatoriska fält

Tillbaka till toppen