Vävland / Timrå

Hovsmedsvägen 8

Utgångspris: 2 100 000 kr
TIPSA
Välskött familjevilla på eftertraktad adress!

  • Stor trädgård och generöst tralldäck
  • Rymlig familjevilla med genomtänkt planlösning
  • Barnvänligt område
  • Naturnära livsstil
  • Närhet till service i Timrå centrum

Välkommen till en rymlig familjevilla med stor trädgård i populära Vävland.
Villan erbjuder en praktisk och social planlösning fördelad på två våningsplan samt källare. Här väntar en bekväm vardag i naturskön omgivning. Området är perfekt för barnfamiljer med närhet till natur, badplats, skola och dagis, allt som underlättar vardagslogistiken.

Bostaden är väl underhållen och på entréplan möts du av en rymlig och ljus hall. Köket har alla förutsättningar för trivsam matlagning med generösa arbetsytor och gott om förvaring. Köket och hallen är även utrustade med golvvärme för extra komfort. På entréplan finns också ett öppet vardagsrum med kamin, från vardagsrummet nås det stora tralldäcket/verandan i sydväst- och nordvästläge, med jacuzzi och gott om plats för utemöbler.

På övre plan finns tre mysiga sovrum med snedtak, varav det största är renoverat och har heltäckningsmatta. Här finns även ett badrum med golvvärme, dusch och WC samt ett sällskapsrum för umgänge med familj och vänner.

Källarplanet rymmer ett sovrum, en rejäl tvättstuga med bastu, WC samt gott om praktiska förvaringsutrymmen. Även tvättstugan och WC:n här är utrustade med golvvärme.

Bostaden ligger i familjevänliga Vävland, endast 2,8 km från Timrå centrum. Här finns vårdcentral, apotek, skolor, butiker, frisörer, livsmedelsbutiker, systembolag, gym och badhus. Naturen i området bjuder på fiskeplatser, fina strövområden och badsjöar – perfekta utflyktsmål för hela familjen.
Varmt välkommen på visning!

Snabbfakta
Rum:
6
Varav sovrum:
4
Boarea:
110 kvm
Biarea:
60 kvm
Tomtarea:
850 kvm
Utgångspris:
2 100 000 kr
Byggnadsår:
1939
Fastighetsbeteckning:
Vävland 2:18
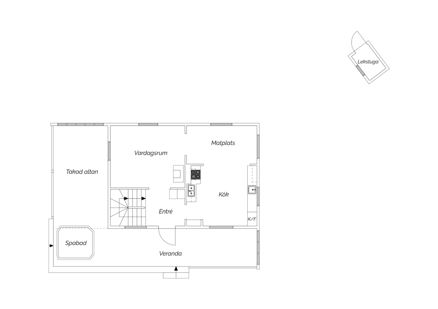
Planritning
e-prospekt
Visningar
  • Anmälan krävs!
    Måndag 20 oktober 16:30 - 17:00
    Boka
Mäklare

Rasmus

Israelsson

ANSVARIG
MÄKLARE

Välskött familjevilla på eftertraktad adress!

  • Stor trädgård och generöst tralldäck
  • Rymlig familjevilla med genomtänkt planlösning
  • Barnvänligt område
  • Naturnära livsstil
  • Närhet till service i Timrå centrum

Välkommen till en rymlig familjevilla med stor trädgård i populära Vävland.
Villan erbjuder en praktisk och social planlösning fördelad på två våningsplan samt källare. Här väntar en bekväm vardag i naturskön omgivning. Området är perfekt för barnfamiljer med närhet till natur, badplats, skola och dagis, allt som underlättar vardagslogistiken.

Bostaden är väl underhållen och på entréplan möts du av en rymlig och ljus hall. Köket har alla förutsättningar för trivsam matlagning med generösa arbetsytor och gott om förvaring. Köket och hallen är även utrustade med golvvärme för extra komfort. På entréplan finns också ett öppet vardagsrum med kamin, från vardagsrummet nås det stora tralldäcket/verandan i sydväst- och nordvästläge, med jacuzzi och gott om plats för utemöbler.

På övre plan finns tre mysiga sovrum med snedtak, varav det största är renoverat och har heltäckningsmatta. Här finns även ett badrum med golvvärme, dusch och WC samt ett sällskapsrum för umgänge med familj och vänner.

Källarplanet rymmer ett sovrum, en rejäl tvättstuga med bastu, WC samt gott om praktiska förvaringsutrymmen. Även tvättstugan och WC:n här är utrustade med golvvärme.

Bostaden ligger i familjevänliga Vävland, endast 2,8 km från Timrå centrum. Här finns vårdcentral, apotek, skolor, butiker, frisörer, livsmedelsbutiker, systembolag, gym och badhus. Naturen i området bjuder på fiskeplatser, fina strövområden och badsjöar – perfekta utflyktsmål för hela familjen.
Varmt välkommen på visning!

Visningar
  • Anmälan krävs!
    Måndag 20 oktober 16:30 - 17:00
    Boka
TIPSA

Rasmus

Israelsson

ANSVARIG
MÄKLARE

Rumsbeskrivning - Hovsmedsvägen 8

Entréplan

Hall

Vid entréplan välkomnas du av en öppen hall med goda avhängningsmöjligheter. Klinkergolv med golvvärme och ljusa ytskikt samt direkt anslutning till bostadens kök, vardagsrum och trapphuset till övre- samt källarplan.

Vardagsrum

Rymligt vardagsrum som fylls av ett härligt ljusflöde tack vare de stora fönsterpartierna i två väderstreck. Här finns generöst med utrymme för en större soffgrupp samt diverse möblemang. Här finns även en eldningsbar kamin för extra mysfaktor.

Kök

Modernt och tidslöst kök med gråa skåpluckor, ljusgrått kakel och ljusa ytskikt samt rejäla arbetsytor. För extra komfort finns även golvvärme installerat. Maskinpark i form av hel kyl och frys, integrerad diskmaskin, fläkt, spis och ugn. Här finns även god förvaring i över- och underskåp samt i skafferi. Intill köket finns en rymlig matplats med utrymme för 6-8 stolsplatser.

Övre plan

Hall

Hall med utrymme för soffgrupp och diverse möblemang, nytt laminatgolv och ljusa ytskikt. Här nås tre av bostadens sovrum och ett rymligt badrum.

Badrum

Generöst badrum med helkakalde väggar och klinkergolv med golvvärme. Här finns duschhörna, badrumsskåp för förvaring av handdukar samt hygienprodukter, handfat och wc.

Sovrum & sovalkov

Två tilltagna sovrum och en sovalkov med ljusa ytskikt, ljuvligt ljusflöde och heltäckningsmatta. Upprepande god förvaring och utrymme för större säng samt diverse möblemang. Trägolv i lilla sovrummet.

Källarplan

Sovrum

Rejält sovrum med generöst utrymme för dubbelsäng, heltäckningsmatta på golvet och ljusa ytskikt. Detta är ett perfekt ungdomsrum då det är avskilt från övriga rum från bostaden med extra privat känsla.

Tvättstuga

Rejäl tvättstuga utrustad med tvättmaskin, tvättho, bastu och badkar samt golvvärme. Här finns goda arbetsytor och förvaring i över- och underskåp.

Toalett

Praktiskt gästtoalett utrustad med golvvärme, wc, handfat och spegel.

Fakta – Hovsmedsvägen 8

Bostadstyp: Villa
Kommun: Timrå
Fastighetsbeteckning: Vävland 2:18
Storlek: 6 rum, 110 kvm boarea, 60 kvm biarea
Varav sovrum: 4
Areakälla: taxeringsinformation
Utgångspris: 2 100 000 kr
Energiklass: F
Planbestämmelser: Stadsplan (1975-03-18)
Upplåtelseform: Friköpt
Pantbrev: Det finns 6 st pantbrev uttaget om sammanlagt 1 768 000 kr
Taxeringsvärde: 1 394 000 kr
Taxeringsår: 2024
Byggnadsvärde: 1 122 000 kr
Markvärde: 272 000 kr
Fastighetsavgift: 10 074 kr/år

Fakta – Byggnaden

Hus
Byggnadstyp: 1½-plansvilla med källare
Byggår: 1939
Fasad: Trä
Stomme: Trä
Fönster: 3-glas
Bjälklag: Trä
Grundmur: Betong
Tak: Plåt
Grundläggning: Källargrund
Uppvärmning: Direktverkande el, braskamin, elgolvvärme.
Vatten och avlopp: Kommunalt vatten året om. Kommunalt avlopp
Ventilation: Självdrag
Övrigt om byggnaden: Tidigare ägare:
1999 ny el
2000 dränering
2001 Nytt yttertak, tilläggsisolering på vind samt golv
2002 Renovering av tvättstuga/ bastu, nytt ingående vatten och avlopp från tomtgränsen till huset
2005 Nytt kök samt vitvaror.
2007 Ommålning av fasad.
2008 Renovering av badrum på övre plan.
2020 Trappen.
2020 Sovrum nere.
2020 Golv på övervåningen.
2019 Målat om köket.
2020 Installation av jacuzzi.
2020 Lagt in golv i lekstugan samt ommålning

Befintlig ägare:
2022- Sovrum på övervåningen
2025- Städförråd på övervåningen
Tomt, uteplats och bilplats
Tomtbeskrivning: Trädgårdstomt med fruktträd och grönskande gräsmatta
Tomtarea: 850 kvm
Tomttyp: Trädgårdstomt
Beskrivning uteplats: Stort tralldäck som omfamnar huset.
Beskrivning bilplats: Bilplats med fyra bilplatser, varav två med elstolpe.
Övriga byggnader
På fastigheten finns även en lekstuga samt redskapsbod.

Driftkostnader

Totalsumma: 62 998 kr/år

I driftkostnaden ingår följande:
El: 41 981 kr/år
VA: 8 822 kr/år
Sotning: 660 kr/år
Renhållning: 2 888 kr/år
Försäkring: 8 647 kr/år

Driftkostnaden är beräknad på 3 personers hushåll.
Försäkringsbolag: Folksam
Fullvärde: Ja
Nätbolag: Eon
Elförbrukning: 21 521 kWh/år

Utöver detta tillkommer kostnad för fastighetsavgift/skatt på 10 074 kr/år.

  • Denna bostad
  • Bostäder till salu via Erik Olsson

En riktigt lyckad

bostadsaffär

När du hittat ditt drömboende hjälper vi dig gärna att sälja din nuvarande bostad. För oss är det viktigt att du känner dig trygg både när du köper och säljer bostad via Erik Olsson. Därför är våra mäklare bland de vassaste och mest engagerade i branschen. Vi anstränger oss gärna lite extra för att din bostadsförsäljning ska bli perfekt. Hos oss får du en riktigt lyckad bostadsaffär – och bäst betalt.

Intresseanmälan

Få kontakt med en mäklare som är expert på just ditt område.

✶ Obligatoriska fält

Tillbaka till toppen