Centrala handen / Handen

Nynäsvägen 98

Utgångspris: 1 995 000 kr
TIPSA

  • Nyproducerad 2019/2020
  • Gavellägenhet
  • 53 väldisponerade kvadratmeter
  • Inglasad balkong
  • Sol från lunch till eftermiddag
  • insynsfritt
  • Sobra färgval
  • Modernt kök
  • Gott om förvaring
  • Helkaklat badrum med kombimaskin
  • Förråd i bostaden
  • Gångavstånd till gym, matbutiker, restauranger och rudansjön
  • Stenkast från Haninge C och pendeltåg
  • Ca 20 minuter med pendeltåg till City
  • Nära till naturområden, badplats och grönska

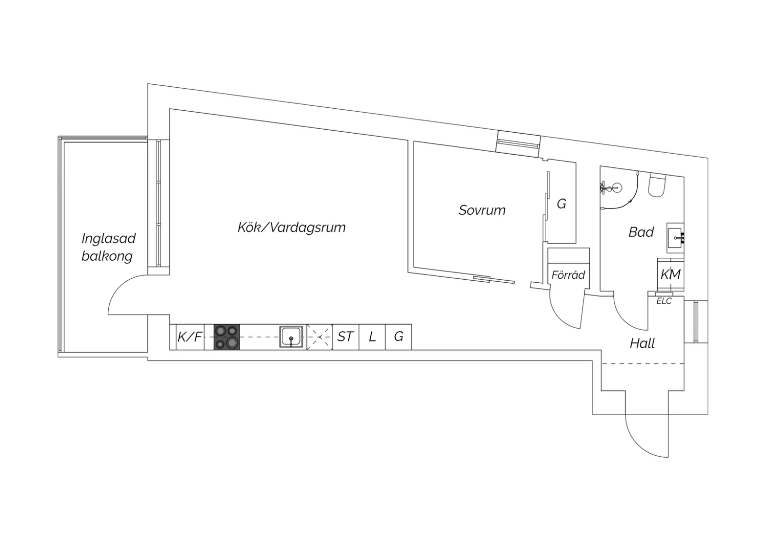
Välkommen till denna stilfulla och mycket väldisponerade gavel 2:a med nyproduktions år 2019/2020. Söker du en rejält tilltagen bostad med inglasad balkong, moderna materialval och öppen planlösning så har du hittat helt rätt! Öppna ytor och generöst med fönsterpartier ger lägenheten ljus och rymd. Sobert modernt kök med vitvaror från Siemens. Kök och vardagsrum finner man i ett och samma rum med plats för både soffgrupp och matgrupp. Stilrent badrum med dusch och kombimaskin från Bosch. På den inglasade balkongen finns utrymme för möblering med loungegrupp och solläge i sydväst.

Trivsam förening med garage, övernattningsrum, cykel- och bilpool i föreningen. Här bor du med ett fantastiskt läge centralt i Haninge - Handen med goda kommunikationer i form av bussar och pendeltåg samt shopping och nöjen men även nära härliga naturområden som till exempel Rudans Naturreservat och Slätmossens Naturpark.

Här är det bara att flytta in och njuta!

Snabbfakta
Avgift:
3 686 kr
I avgiften ingår värme, kallvatten och bostadsrättstillägg. Obligatoriskt tillägg om 229 kr/månad för TV, bredband & IP-telefoni. Varmvatten och hushållsel debiteras efter faktisk förbrukning.
Rum:
2 rum och kök
Boarea:
53,5 kvm
Våning:
3 av 7
Utgångspris:
1 995 000 kr
Byggnadsår:
2019
Planritning
Visningar
  • Välkommen på visning!
    Söndag 19 oktober 14:00 - 14:20
    Boka
Mäklare

Gustav

Larsson

ANSVARIG
MÄKLARE

  • Nyproducerad 2019/2020
  • Gavellägenhet
  • 53 väldisponerade kvadratmeter
  • Inglasad balkong
  • Sol från lunch till eftermiddag
  • insynsfritt
  • Sobra färgval
  • Modernt kök
  • Gott om förvaring
  • Helkaklat badrum med kombimaskin
  • Förråd i bostaden
  • Gångavstånd till gym, matbutiker, restauranger och rudansjön
  • Stenkast från Haninge C och pendeltåg
  • Ca 20 minuter med pendeltåg till City
  • Nära till naturområden, badplats och grönska

Välkommen till denna stilfulla och mycket väldisponerade gavel 2:a med nyproduktions år 2019/2020. Söker du en rejält tilltagen bostad med inglasad balkong, moderna materialval och öppen planlösning så har du hittat helt rätt! Öppna ytor och generöst med fönsterpartier ger lägenheten ljus och rymd. Sobert modernt kök med vitvaror från Siemens. Kök och vardagsrum finner man i ett och samma rum med plats för både soffgrupp och matgrupp. Stilrent badrum med dusch och kombimaskin från Bosch. På den inglasade balkongen finns utrymme för möblering med loungegrupp och solläge i sydväst.

Trivsam förening med garage, övernattningsrum, cykel- och bilpool i föreningen. Här bor du med ett fantastiskt läge centralt i Haninge - Handen med goda kommunikationer i form av bussar och pendeltåg samt shopping och nöjen men även nära härliga naturområden som till exempel Rudans Naturreservat och Slätmossens Naturpark.

Här är det bara att flytta in och njuta!

Visningar
  • Välkommen på visning!
    Söndag 19 oktober 14:00 - 14:20
    Boka
TIPSA

Gustav

Larsson

ANSVARIG
MÄKLARE

Fakta – Nynäsvägen 98

Bostadstyp: Bostadsrätt
Kommun: Haninge
Storlek: 2 rum och kök, 53,5 kvm boarea
Areakälla: föreningens information
Våning: 3 av 7
Obs, våning 3 i hissen.
Våning 2 enligt Skatteverket numrering
Lägenhetsnummer: 232450002 (1203)
Utgångspris: 1 995 000 kr
Månadsavgift: 3 686 kr
I avgiften ingår värme, kallvatten och bostadsrättstillägg. Obligatoriskt tillägg om 229 kr/månad för TV, bredband & IP-telefoni. Varmvatten och hushållsel debiteras efter faktisk förbrukning.
Andelstal: Andel i förening 0,9 %, andel av årsavgift 0,935 %
Indirekt nettoskuldsättning: 598 229 kr
Bostadsrättens indirekta nettoskuldsättning anger hur stor andel av bostadsrättsföreningens lån som indirekt belastar bostadsrätten. Andelen beräknas som andelstalet för avgifter multiplicerat med föreningens nettoskuldsättning. Den består av räntebärande skulder med avdrag för räntebärande tillgångar och likvida medel. Underlagen för beräkningen kommer från föreningen.
Energiprestanda: 85 kWh/kvm och år
Energiklass: C

Fakta – Brf Framsidan

Äkta/oäkta förening: Äkta
Äger föreningen marken: Ja
Antal lägenheter: 122
Antal lokaler: 2
Allmänt om föreningen: Brf Framsidan köpte fastigheten 2016. Föreningens lokaler upplåtes med hyresrätt.

Föreningen förvärvade fastigheten maj 2021.

Föreningen har 4 cykelrum och samtliga är placerade i alla fyra trapphus på entréplan samt båda planen i garaget. Föreningen har även en cykelpool och en bilpool med två bilar.
Föreningen har även två övernattningslägenheter ett lite mindre övernattningsrum som kostar 200 kr/natt och det större övernattningsrummet som ligger intill gemensamhetslokalen kostar 300 kr/natt. OBS! Notera att priserna kan ändras. Senaste uppdateringen på priset är från 2024-04-16.

Föreningen har ett källsorteringsrum.

Ekonomi:
Föreningen höjde avgiften med 12% från 2025-08-01. Detta för att föreningen lån lagts om med ny ränta.

Framtida höjningar av avgiften är inte att utesluta.
Parkering: Föreningen disponerar över 42 platser i garaget som delas med samfällighetsföreningen. Hyran för kallgarage kan hyras till en kostnad om 1 000 kr/månad och elbil 1500 kr/månad. Det finns även en bilpool med 2 elbilar. 4 av garageplatserna har laddstolpar, dock tillhör 2 av dessa bilpoolsbilarna.
Överlåtelseavgift och pantsättning: En överlåtelseavgift tas ut om ca 1 470 kr som betalas av köparen. Vid belåning av bostaden tas en pantsättningsavgift ut om ca 588 kr/pant. Beloppen är beräknade på prisbasbeloppet för år 2025.
Hus
Byggår: 2019
Byggnadstyp: Flerfamiljshus
Hiss: Hiss finns
Fönster: 3-glas
Ventilation: Mekanisk
Uppvärmning: Fjärrvärme
Tv och internet: Föreningen är ansluten till TV (basutbud), bredband samt IP-telefoni via Telia.
Renoveringar
Då fastigheterna är uppförda 2019 finns inga utförda renoveringar. Dock är baksidan/gemensamhetsytor utomhus fortfarande pågående projekt.

Planerat underhåll:
OVK 2023
Underhåll av entréer, portat mm. 2023
Underhåll av luftbehandlingssystem. 2024
Kontroller och besiktningar. 2024
Underhåll avloppsvattensystem i byggnad. 2026
Underhåll av luftbehandlingssystem. 2027
Kontroller och besiktningar. 2027
Underhåll av entréer, portat mm. 2028
Underhåll av gemensamma utrymmen. 2028
Underhåll av Fasader, balkonger, loftgångar,
altaner, terrasser, fönster, fönsterdörrar. 2030
Underhåll av gemensamma utrymmen. 2030
Underhåll av luftbehandlingssystem 2030
Kontroller och besiktningar 2030

Driftkostnader

Totalsumma: 8 360 kr/år

I driftkostnaden ingår följande:
El: 5 500 kr/år
VA: 1 060 kr/år
Försäkring: 1 800 kr/år

Driftkostnaden är beräknad på 1 persons hushåll.
Driftkostnaden är beräknad enligt schablon och ej ytterligare kontrollerad. Driftkostnaden för ny ägare/boende kan vara högre/lägre. VA: avser kostanden för varmvatten

  • Denna bostad
  • Bostäder till salu via Erik Olsson

En riktigt lyckad

bostadsaffär

När du hittat ditt drömboende hjälper vi dig gärna att sälja din nuvarande bostad. För oss är det viktigt att du känner dig trygg både när du köper och säljer bostad via Erik Olsson. Därför är våra mäklare bland de vassaste och mest engagerade i branschen. Vi anstränger oss gärna lite extra för att din bostadsförsäljning ska bli perfekt. Hos oss får du en riktigt lyckad bostadsaffär – och bäst betalt.

Intresseanmälan

Få kontakt med en mäklare som är expert på just ditt område.

✶ Obligatoriska fält

Tillbaka till toppen