Ribby / Västerhaninge

Ribby allé 60

Föreslagen budstart: 1 495 000 kr
TIPSA

  • Familjärt och barnvänligt område
  • Väldisponerad planlösning
  • Genomgående gott skick
  • Fullutrustat kök
  • Generös balkong
  • Egen entré
  • Separat förråd
  • Sovrum med garderober
  • Helkaklat badrum
  • Närservice inom bekvämt avstånd
  • Gångavstånd till kommunikationer
  • Barnvänligt område
  • Närhet till förskola och skolor
  • Naturnära läge
  • Närhet till Årsta havsbad med golfbanor och bad

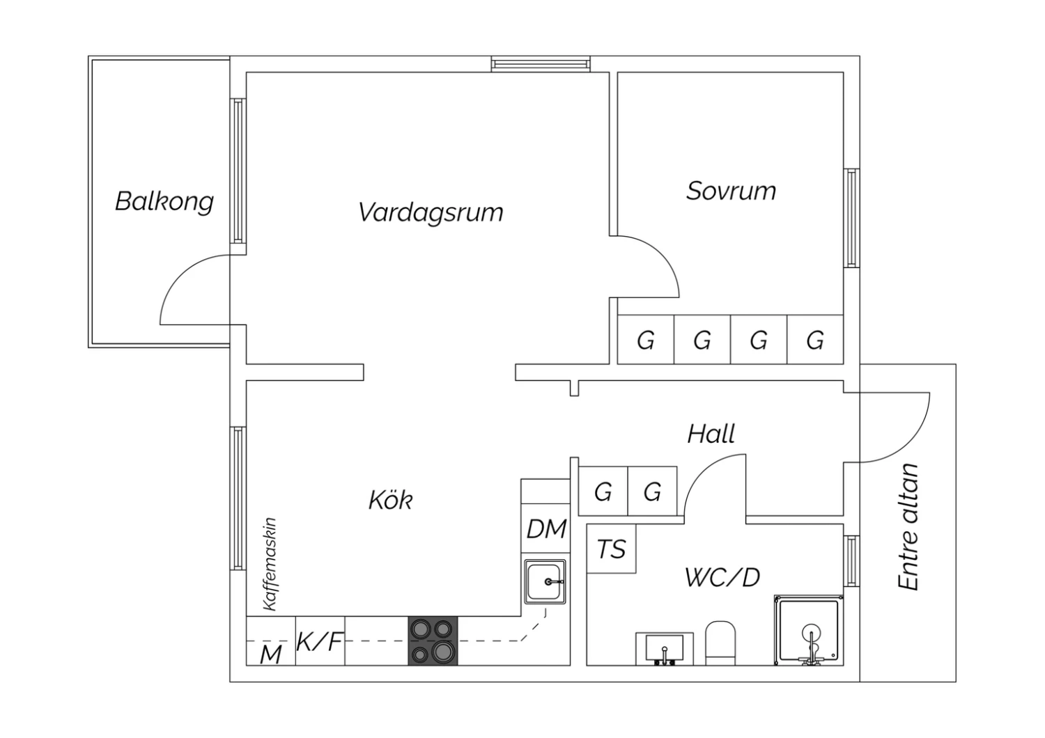
Välkommen till Ribby Allé 50 och denna Välskötta och fina tvåa om 53 kvm. Belägen en trappa upp erbjuder denna lägenhet en väldisponerad planlösning, stor balkong med perfekt solläge samt genomgående generösa ytor. Bostaden består utav ett generöst renoverat kök med matplats, helkaklat badrum med tvättstapel, vardagsrum med utgång till balkongen samt ett gediget sovrum med förvaring i 4a garderober.

Här har du det perfekta boendet för dig som värderar en familjär och lugn boendemiljö men med ändå korta avstånd till närservice, skolor, förskolor, kommunikationer, natur, golfbanor och bad.

Välkommen!

Snabbfakta
Avgift:
6 232 kr
inklusive värme, vatten & bredband, kabel-Tv (Bas)
Rum:
2 rum
Boarea:
53 kvm
Våning:
1 av 1
Föreslagen budstart:
1 495 000 kr
Byggnadsår:
2006
Planritning
Visningar
  • Välkommen på visning - boka dig gärna!
    Söndag 26 oktober 11:00 - 11:30
    Boka
Mäklare

Gustav

Larsson

ANSVARIG
MÄKLARE

  • Familjärt och barnvänligt område
  • Väldisponerad planlösning
  • Genomgående gott skick
  • Fullutrustat kök
  • Generös balkong
  • Egen entré
  • Separat förråd
  • Sovrum med garderober
  • Helkaklat badrum
  • Närservice inom bekvämt avstånd
  • Gångavstånd till kommunikationer
  • Barnvänligt område
  • Närhet till förskola och skolor
  • Naturnära läge
  • Närhet till Årsta havsbad med golfbanor och bad

Välkommen till Ribby Allé 50 och denna Välskötta och fina tvåa om 53 kvm. Belägen en trappa upp erbjuder denna lägenhet en väldisponerad planlösning, stor balkong med perfekt solläge samt genomgående generösa ytor. Bostaden består utav ett generöst renoverat kök med matplats, helkaklat badrum med tvättstapel, vardagsrum med utgång till balkongen samt ett gediget sovrum med förvaring i 4a garderober.

Här har du det perfekta boendet för dig som värderar en familjär och lugn boendemiljö men med ändå korta avstånd till närservice, skolor, förskolor, kommunikationer, natur, golfbanor och bad.

Välkommen!

Visningar
  • Välkommen på visning - boka dig gärna!
    Söndag 26 oktober 11:00 - 11:30
    Boka
TIPSA

Gustav

Larsson

ANSVARIG
MÄKLARE

Fakta – Ribby allé 60

Bostadstyp: Bostadsrätt
Kommun: Haninge
Storlek: 2 rum, 53 kvm boarea
Areakälla: föreningens information
Våning: 1 av 1
Lägenhetsnummer: 50
Föreslagen budstart: 1 495 000 kr
Månadsavgift: 6 232 kr
inklusive värme, vatten & bredband, kabel-Tv (Bas)
Andelstal: Andel i förening 1,326 %, andel av årsavgift 1,301 %
Indirekt nettoskuldsättning: 491 728 kr
Bostadsrättens indirekta nettoskuldsättning anger hur stor andel av bostadsrättsföreningens lån som indirekt belastar bostadsrätten. Andelen beräknas som andelstalet för avgifter multiplicerat med föreningens nettoskuldsättning. Den består av räntebärande skulder med avdrag för räntebärande tillgångar och likvida medel. Underlagen för beräkningen kommer från föreningen.
Energiprestanda: 87 kWh/kvm och år
Energiklass: D

Fakta – HSB Brf Lupinen i Haninge

Äger föreningen marken: Ja
Antal lägenheter: 68
Allmänt om föreningen: HSB BRF Lupinen
Lupinens bostadsrättsförening färdigställdes i början av 2006. Föreningen består av totalt 68 stycken lägenheter. Området andas "radhus-känsla" där två stycken av husen består av vardera sex stycken lägenheter och resten av husen innehåller fyra stycken lägenheter. Lägenheterna varierar i storlek mellan ett till fyra rum. Till varje lägenheten hör ett uteförråd.

Enligt lantmäteriförrättning 2006 bildades Ribby Ängars Samfällighetsförening bestående av Brf
Lupinen och de 16 villafastigheter, som gränsar till brf Lupinen. Ribby Ängars Samfällighetsförening,
ska sköta underhåll av gator och gångvägar, gatubelysning, dagavlopp etc.
Samfällighetsföreningen ansvarar för avtalet med Tele 2 avseende telefon, kabel TV och bredband.
Alla anläggningarna ägs av brf Lupinen.
Brf Lupinen äger 68 av 84 andelar i samfällighetsföreningen och villafastigheterna 1 andel var.

Ekonomi:
Föreningen utförde en indexhöjning av avgifterna med 2 % från och med 1 januari 2025. Framtida indexhöjningar är inte att utesluta.

För medlemskap i föreningen krävs medlemskap i HSB Stockholm
För medlemskap i föreningen krävs en ägarandel om minst 10% av bostadsrätten.

Föreningens hemsida: www.hsb.se/stockholm/brf/lupinen/
Parkering: Föreningen har för uthyrning 24 parkeringsplatser med elstolpe för motorvärmare och Typ 2 ladduttag för elbil (3,7 kw) och 35 platser utan. Eftersom vi har 68 lägenheter så betyder det att vi ibland har parkeringsplats kö.
Parkeringsplatser utan elstolpe kan hyras för 300 kr/mån
Parkeringsplatser med elstolpe kan i mån av tillgång hyras för 400 kr/mån plus förbrukad el.

För mer information kring ledig parkeringsplatser eller byte av parkeringsplats vänligen kontakta föreningen.
Överlåtelseavgift och pantsättning: En överlåtelseavgift tas ut om ca 2 058 kr som betalas av köparen. Vid belåning av bostaden tas en pantsättningsavgift ut om ca 882 kr/pant. Beloppen är beräknade på prisbasbeloppet för år 2025.
Hus
Byggår: 2006
Byggnadstyp: Flerbostadshus
Hiss: Hiss finns ej
Fönster: 3-glas
Ventilation: Frånluftsventilation
Uppvärmning: Fjärrvärme
Tv och internet: Föreningen har ett gemensamt avtal vad gäller TV/Bredband/Telefoni via Tele2

Kabel TV, Tele 2 basutbud
Bredband, 250 Mbits
Telefon, abonnemangsavgift - samtalsavgifter tillkommer

Är ni intresserad av att utöka något eller förändra ovanstående vänligen kontakta Tele2 för ytterligare hjälp. Genom föreningens avtal finns en viss rabatt.

Kontakta Com Hem
Renoveringar
RENOVERINGAR

Utförda renoveringar/underhåll:
2015 - Långtidsmätning av radon enligt SSM (resultat 30 Bq/m3. Gränsvärdet är 200 Bq/m3)
2016 - Fasadtvätt av husknutar, balkonger och loftgångar.
2016 - Stamspolning (samtliga hus)
2016 - Reparationer av snickeri på balkonger och trappor (11 hus)
2018-2019 - Målning av samtliga hus
2024-2025 målning av fasad


Föreningen har en underhållsplan som man följer.

Driftkostnader

Totalsumma: 8 200 kr/år

I driftkostnaden ingår följande:
El: 6 000 kr/år
Försäkring: 2 200 kr/år

Driftkostnaden är beräknad på 2 personers hushåll.
Angiven driftkostnad är beräknad enligt schablon. Kostnaderna kan vara både högre och lägre för ny ägare/boende.

  • Denna bostad
  • Bostäder till salu via Erik Olsson

En riktigt lyckad

bostadsaffär

När du hittat ditt drömboende hjälper vi dig gärna att sälja din nuvarande bostad. För oss är det viktigt att du känner dig trygg både när du köper och säljer bostad via Erik Olsson. Därför är våra mäklare bland de vassaste och mest engagerade i branschen. Vi anstränger oss gärna lite extra för att din bostadsförsäljning ska bli perfekt. Hos oss får du en riktigt lyckad bostadsaffär – och bäst betalt.

Intresseanmälan

Få kontakt med en mäklare som är expert på just ditt område.

✶ Obligatoriska fält

Tillbaka till toppen