Centrala Tyresö / Tyresö

Siklöjevägen 18

Utgångspris: 1 995 000 kr
TIPSA
Renoverad, Egen ingång, Två uteplatser!

Varmt välkommen till Siklöjevägen 18 och till en trea om 68 kvm med två uteplatser! Med naturen runt knuten och gångavstånd till Tyresö centrum hittar man denna välplanerade bostad som renoverades under 2024! Bostaden har ett praktiskt och socialt kök och vardagsrum i öppenplanlösning med utgång till balkong, två bra sovrum för olika behov, ett rymligt badrum med badkar och tvättmaskin. Hela lägenheten har vitmålade väggar och golv av snygg, ljus och enhetlig laminat!

Bostaden är mycket bra belägen med närhet till Tyresö Centrum där kommersiell service, matbutiker, vårdcentral och systembolag, restauranger mm. erbjuds. Vid Tyresö C. finns även busstation där flera busslinjer trafikerar bla. bussar som tar dig till Gullmarsplan på ca 20 minuter. För den aktiva finns Tyresö rackethall, Tyresö golf och Tyresö simhall bara ett stenkast från lägenheten och för barnfamiljen finns även ett flertal skolor för olika åldrar i området!

Snabbfakta
Avgift:
6 488 kr
Inkl. Vatten, värme, TV-kanaler (basutbud), bredband (250)
Rum:
3 rum och kök
Boarea:
68 kvm
Våning:
2 av 7
Utgångspris:
1 995 000 kr
Byggnadsår:
1993
Visningar
  • Välkommen på visning! boka gärna in dig vidare in i annonsen!
    Söndag 19 oktober 14:00 - 14:30

    Kontakta mäklaren

Mäklare

Sara

Blomgren

REG. FASTIGHETSMÄKLARE

Renoverad, Egen ingång, Två uteplatser!

Varmt välkommen till Siklöjevägen 18 och till en trea om 68 kvm med två uteplatser! Med naturen runt knuten och gångavstånd till Tyresö centrum hittar man denna välplanerade bostad som renoverades under 2024! Bostaden har ett praktiskt och socialt kök och vardagsrum i öppenplanlösning med utgång till balkong, två bra sovrum för olika behov, ett rymligt badrum med badkar och tvättmaskin. Hela lägenheten har vitmålade väggar och golv av snygg, ljus och enhetlig laminat!

Bostaden är mycket bra belägen med närhet till Tyresö Centrum där kommersiell service, matbutiker, vårdcentral och systembolag, restauranger mm. erbjuds. Vid Tyresö C. finns även busstation där flera busslinjer trafikerar bla. bussar som tar dig till Gullmarsplan på ca 20 minuter. För den aktiva finns Tyresö rackethall, Tyresö golf och Tyresö simhall bara ett stenkast från lägenheten och för barnfamiljen finns även ett flertal skolor för olika åldrar i området!

Visningar
  • Välkommen på visning! boka gärna in dig vidare in i annonsen!
    Söndag 19 oktober 14:00 - 14:30

    Kontakta mäklaren

TIPSA

Sara

Blomgren

REG. FASTIGHETSMÄKLARE

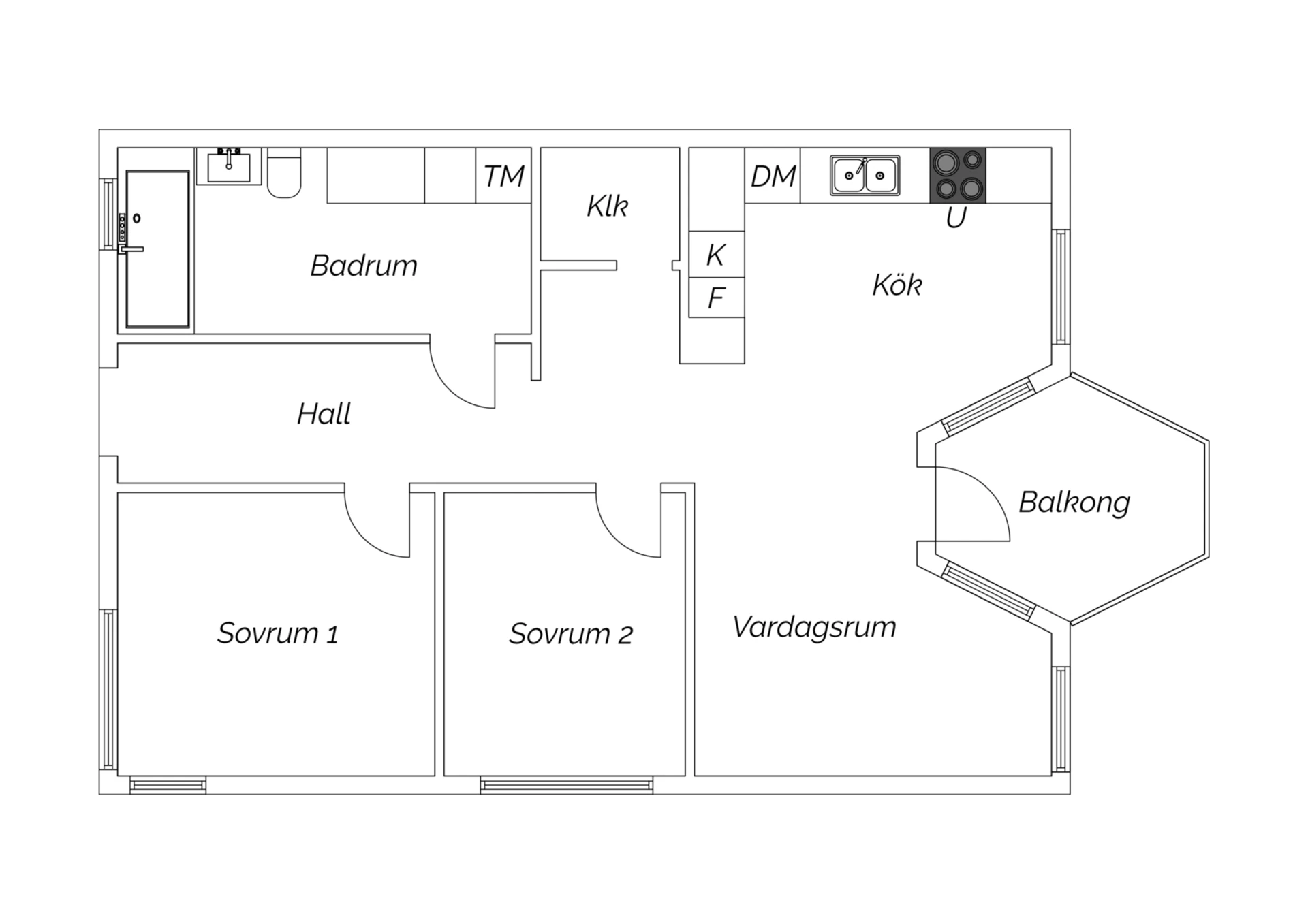
Rumsbeskrivning - Siklöjevägen 18

HALL

En generös och praktisk hall med plats för avhängning och förvaring samt hallmöbel. Här finns även en klädkammare för extra förvaringsmöjligheter. Väggarna är vitmålade och golvet kläs av ljus laminat

VARDAGSRUM

Kök och vardagsrum i öppen planlösning med utgång till balkong. Köket som renoverades 2024 går i vacker grön ton och är utrustat med kombinerad kyl och frys, glas häll med spisfläkt och diskmaskin, inbyggd mikrovågsugn samt ugn. Här finns matplats för ca 6-8 personer. Väggarna är vit målade och golvet är av ljus laminat

SOVRUM 1

Ett väl tilltaget sovrum med två fönster i olika väderstreck som skapar ett härligt ljus. Här finns plats för stor säng och annat möblemang. Golven är av laminat och väggarna går i vitt

SOVRUM 2

Ett praktiskt sovrum/ barnrum/ kontor med plats för säng och annat möblemang. Väggarna går i vit nyans och golvet är av laminat

BADRUM

Ett rymligt och helkaklat badrum med badkar, kommod, WC, vädringsfönster och tvättbänk med tvättmaskin. Väggarna har vitt kakel och golvet kläs av ljus klinker

Fakta – Siklöjevägen 18

Bostadstyp: Bostadsrätt
Kommun: Tyresö
Storlek: 3 rum och kök, 68 kvm boarea
Areakälla: föreningens information
Våning: 2 av 7
Markplan med egen ingång
Lägenhetsnummer: 33
Utgångspris: 1 995 000 kr
Månadsavgift: 6 488 kr
Inkl. Vatten, värme, TV-kanaler (basutbud), bredband (250)
Andelstal: Andel i förening 0,911 %, andel av årsavgift 0,904 %
Indirekt nettoskuldsättning: 463 517 kr
Bostadsrättens indirekta nettoskuldsättning anger hur stor andel av bostadsrättsföreningens lån som indirekt belastar bostadsrätten. Andelen beräknas som andelstalet för avgifter multiplicerat med föreningens nettoskuldsättning. Den består av räntebärande skulder med avdrag för räntebärande tillgångar och likvida medel. Underlagen för beräkningen kommer från föreningen.
Energiklass: E

Fakta – Bostadsrättsföreningen Laxtrappan

Äkta/oäkta förening: Äkta
Antal lägenheter: 98
Allmänt om föreningen: Brf Laxtrappan bildades 1991 och föreningens fastighet består av tre stycken flerbostadshus på adress Siklöjevägen 14-24.
I föreningsavgiften ingår bostadsrättstillägg.
Föreningen står står för elavtalet och debiterar innehavare för faktisk förbrukning ett kvartal i efterskott.
Parkering: Föreningen tillhandahåller 93 bilplatser i carport och 24 st har laddstationer, 300kr/mån. Kontakta Birgit Kasoulaki på 070-441 1669 för avtal.
Överlåtelseavgift och pantsättning: En överlåtelseavgift tas ut om ca 1 470 kr som betalas av köparen. Vid belåning av bostaden tas en pantsättningsavgift ut om ca 588 kr/pant. Beloppen är beräknade på prisbasbeloppet för år 2025.
Hus
Byggår: 1993
Byggnadstyp: Flerfamiljshus
Hiss: Hiss finns
Fönster: 3-glas
Ventilation: Mekanisk (endast frånluft)
Uppvärmning: Fjärrvärme, värmepump frånluft (el)
Tv och internet: Tillhandahålls av Telia. Hastighet på bredbandet är 250 MB. Modemet tillhör lägenheten och skall lämnas kvar vid utflyttning.
Renoveringar
2019 Nytt elskåp vid övre garaget samt riktning av garagegrindar
2019 Hårdgörande av ytor på baksidan för uppställning av brandfordon, föreläggande
från SBFF
2019 Installation av IMD för el, gemensamma abonnemang med individuella
undermätare
2019 Installation av ny fjärrvärmecentral inkl styr och regler
2019 Nya elpatroner för varmvattenberedning i 14-16 och 18-20, 22-24 byttes 2014
2019 Byte av radiatorventiler och termostater i alla lägenheter, lokaler och trapphus
2019 Installation av sitsar i alla hissar och trapphus, nb
2019 Installation av el-energimätning för värmepumpar och ackumulatortankar
2019 Nytt tryck på orienteringstavlan vid infarten samt nya glasskåp i trapphusen
2019 Asfaltering av ojämna ytor vid entréer samt handikappanpassning av trottoaren
2019 Montering av staket vid 14 för att förhindra lövsamling vid porten
2019 Inköp av brandsläckare och filtar till alla lägenheter
2020 Installation av 12 laddstationer, ger 24 motorvärmaruttag och 24 ladduttag
2020 Tvätt av tak på cykelrum, soprum och entréer
Föreningen har en underhållsplan.

Driftkostnader

Totalsumma: 4 800 kr/år

I driftkostnaden ingår följande:
El: 4 200 kr/år
Försäkring: 600 kr/år

Driftkostnaderna kan variera och beror på förbrukning samt tecknade avtal
Elförbrukning: 4 200 kWh/år

  • Denna bostad
  • Bostäder till salu via Erik Olsson

En riktigt lyckad

bostadsaffär

När du hittat ditt drömboende hjälper vi dig gärna att sälja din nuvarande bostad. För oss är det viktigt att du känner dig trygg både när du köper och säljer bostad via Erik Olsson. Därför är våra mäklare bland de vassaste och mest engagerade i branschen. Vi anstränger oss gärna lite extra för att din bostadsförsäljning ska bli perfekt. Hos oss får du en riktigt lyckad bostadsaffär – och bäst betalt.

Intresseanmälan

Få kontakt med en mäklare som är expert på just ditt område.

✶ Obligatoriska fält

Tillbaka till toppen