Handen / Haninge

Arkens väg 8

Utgångspris: 1 750 000 kr
TIPSA
Välplanerad & stilren 2:a från 2009. Mini-terrass i soligt läge. Perfekt för både paret och singeln!

  • Mini-terrass i soligt läge
  • Stilren design
  • Hörnläge
  • Fönster i flera väderstreck
  • Generös takhöjd
  • Välplanerat
  • Rymligt sovrum
  • Byggt 2009
  • Bredband ingår i avgift
  • Externt förråd
  • Härligt ljusinsläpp
  • Gott om förvaring
  • Genomgående fint parkettgolv
  • Gångavstånd till pendeltåg
  • Nära Haninge centrum
  • Närhet till natur och sjö
  • Förening som äger marken

Kontakta mäklare för visning!

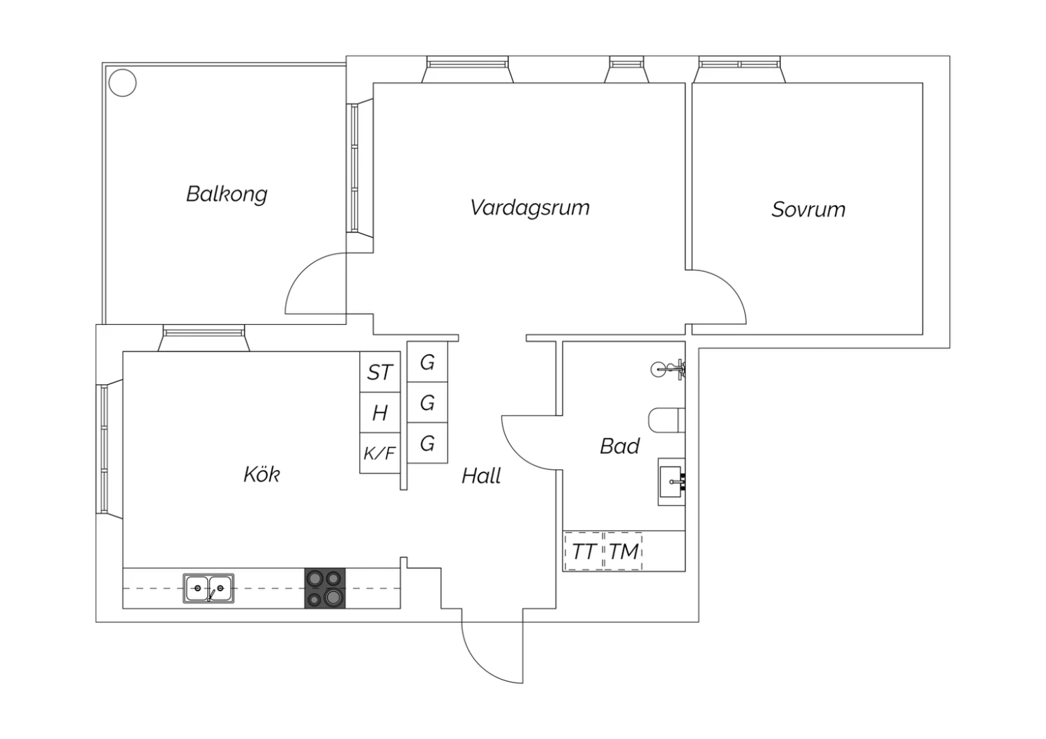
Välkommen till denna ljusa och välplanerade tvåa om 56 kvm med generös takhöjd byggd 2009, som kombinerar modern design med genomtänkt funktion. Här bor du i ett attraktivt hörnläge med fönster i flera väderstreck som släpper in ett fantastiskt ljus under hela dagen. Ett boende som passar perfekt både för paret och singeln.

Den soliga mini-terrassen blir snabbt din favoritplats, gott om plats för önskat möblemang och här skiner solen större delar av dagen. Vardagsrummet är lättmöblerat med naturlig plats för TV. Det rymliga sovrummet erbjuder gott om plats för både säng, kontorsplats och förvaring. Badrummet är helkaklat och utrustad med bland annat tvättmaskin och torktumlare. Stilrent kök i vitt med gott om arbetsyta och förvaring, här finns även plats för matbord.

En bostad som erbjuder både komfort, stil och ett läge att trivas i under lång tid framöver.

Enligt lägenhetsförteckningen är bostaden 1 RoK. Disponeras idag som en 2 RoK.

Källarförråd tillhör lägenheten!

Här bor du i ett lugnt och trivsamt område med närhet till allt du önskar. Gångavstånd till Haninge centrum som erbjuder bra shopping, gym, matbutiker, systembolag, restauranger och övrig service. Ytterligare utbud finns i Port 73 med flertal butiker, möbeljättar, större klädmärken och restauranger. I närheten finns även större matbutiker såsom Ica Maxi och Willys. Flertal skolor och förskolor inom bekvämt avstånd.
Gott om grönska och natur med fina strövområden runt hörnet. Rudans friluftsområde erbjuder härliga promenadstråk, utegym, badplats och fiske. Vidare finns Slätmossens naturpark endast en kort promenad bort. För den aktive finns bland annat Torvalla idrottsplats med simhall, fotbollsplan och tennisplan.

Utmärkta kommunikationer i form av gångavstånd till pendel och bussstation ett stenkast från bostaden. Handens pendeltågstation tar tar dig in till stadspulsen på ca 20 minuter. Bussförbindelser som tar dig runt i Haninge, söderort och in mot Gullmarsplan. Nynäsvägen (väg 73) nås enkelt med bil.

Snabbfakta
Avgift:
5 105 kr
I avgiften ingår värme, vatten, bredband, telefoni, TV och bostadsrättstillägg. El debiteras utefter förbrukning månadsvis på avin.
Rum:
2 rum
Boarea:
56 kvm
Våning:
1 av 5
Utgångspris:
1 750 000 kr
Byggnadsår:
2009
Planritning
Planlösning
Visningar
  • Kontakta mäklare för att boka tid för visning!
    Söndag 19 oktober

    Kontakta mäklaren

Mäklare

David

Folke

ANSVARIG
MÄKLARE

Välplanerad & stilren 2:a från 2009. Mini-terrass i soligt läge. Perfekt för både paret och singeln!

  • Mini-terrass i soligt läge
  • Stilren design
  • Hörnläge
  • Fönster i flera väderstreck
  • Generös takhöjd
  • Välplanerat
  • Rymligt sovrum
  • Byggt 2009
  • Bredband ingår i avgift
  • Externt förråd
  • Härligt ljusinsläpp
  • Gott om förvaring
  • Genomgående fint parkettgolv
  • Gångavstånd till pendeltåg
  • Nära Haninge centrum
  • Närhet till natur och sjö
  • Förening som äger marken

Kontakta mäklare för visning!

Välkommen till denna ljusa och välplanerade tvåa om 56 kvm med generös takhöjd byggd 2009, som kombinerar modern design med genomtänkt funktion. Här bor du i ett attraktivt hörnläge med fönster i flera väderstreck som släpper in ett fantastiskt ljus under hela dagen. Ett boende som passar perfekt både för paret och singeln.

Den soliga mini-terrassen blir snabbt din favoritplats, gott om plats för önskat möblemang och här skiner solen större delar av dagen. Vardagsrummet är lättmöblerat med naturlig plats för TV. Det rymliga sovrummet erbjuder gott om plats för både säng, kontorsplats och förvaring. Badrummet är helkaklat och utrustad med bland annat tvättmaskin och torktumlare. Stilrent kök i vitt med gott om arbetsyta och förvaring, här finns även plats för matbord.

En bostad som erbjuder både komfort, stil och ett läge att trivas i under lång tid framöver.

Enligt lägenhetsförteckningen är bostaden 1 RoK. Disponeras idag som en 2 RoK.

Källarförråd tillhör lägenheten!

Här bor du i ett lugnt och trivsamt område med närhet till allt du önskar. Gångavstånd till Haninge centrum som erbjuder bra shopping, gym, matbutiker, systembolag, restauranger och övrig service. Ytterligare utbud finns i Port 73 med flertal butiker, möbeljättar, större klädmärken och restauranger. I närheten finns även större matbutiker såsom Ica Maxi och Willys. Flertal skolor och förskolor inom bekvämt avstånd.
Gott om grönska och natur med fina strövområden runt hörnet. Rudans friluftsområde erbjuder härliga promenadstråk, utegym, badplats och fiske. Vidare finns Slätmossens naturpark endast en kort promenad bort. För den aktive finns bland annat Torvalla idrottsplats med simhall, fotbollsplan och tennisplan.

Utmärkta kommunikationer i form av gångavstånd till pendel och bussstation ett stenkast från bostaden. Handens pendeltågstation tar tar dig in till stadspulsen på ca 20 minuter. Bussförbindelser som tar dig runt i Haninge, söderort och in mot Gullmarsplan. Nynäsvägen (väg 73) nås enkelt med bil.

Visningar
  • Kontakta mäklare för att boka tid för visning!
    Söndag 19 oktober

    Kontakta mäklaren

TIPSA

David

Folke

ANSVARIG
MÄKLARE

Fakta – Arkens väg 8

Bostadstyp: Bostadsrätt
Kommun: Haninge
Storlek: 2 rum, 56 kvm boarea
Areakälla: föreningens information
Våning: 1 av 5
Lägenhetsnummer: 00072 (1101)
Utgångspris: 1 750 000 kr
Månadsavgift: 5 105 kr
I avgiften ingår värme, vatten, bredband, telefoni, TV och bostadsrättstillägg. El debiteras utefter förbrukning månadsvis på avin.
Andelstal: Andel i förening 1,003 %, andel av årsavgift 1,003 %
Indirekt nettoskuldsättning: 507 092 kr
Bostadsrättens indirekta nettoskuldsättning anger hur stor andel av bostadsrättsföreningens lån som indirekt belastar bostadsrätten. Andelen beräknas som andelstalet för avgifter multiplicerat med föreningens nettoskuldsättning. Den består av räntebärande skulder med avdrag för räntebärande tillgångar och likvida medel. Underlagen för beräkningen kommer från föreningen.
Energiprestanda: 94 kWh/kvm och år
Energiklass: D
Tillträde: Enligt överenskommelse

Fakta – HSB BRF Fyrspännaren I Haninge

Äger föreningen marken: Ja
Antal lägenheter: 81
Antal lokaler: 11
Allmänt om föreningen: Brf HSB BRF Fyrspännaren I Haninge köpte fastigheten 2008. Föreningens lokaler upplåtes med hyresrätt. Till föreningen hör Arkens Väg 2, Arkens Väg 4, Arkens Väg 6 och Arkens Väg 8.

Föreningens gemensamma tvättstuga finns på Arkens väg 8, där bokar du även din tvättid på tavlan utanför med låscylindern.

Lägenhetsfördelning:
10 st 1 rum och kök
29 st 2 rum och kök
23 st 3 rum och kök
16 st 4 rum och kök
3 st 5 rum och kök

Ventilation:
Det är förbjudet att ansluta köksfläktar med motor. Detta då det påverkar hela fastighetens ventilation.
Godkända är köksfläktar/kåpor utan inbyggd motor.

Ekonomi:
Från och med den 1 februari 2025 höjdes avgifterna på lägenheterna med 3%. Inga beslut finns om eventuella justeringar för 2026
Besök gärna föreningens hemsida för mer information: https://www.hsb.se/stockholm/brf/fyrspannaren/
Parkering: Föreningen har totalt 86 parkeringsplatser. 19 parkeringsplatser utomhus, 67 garageplatser fördelade i 3 garage varav 7 utav dessa 67 är utlånade till Brf Konjaksskutan. Garageplats kan hyras till en kostnad om 700 kr/månad och parkeringsplats kan hyras till en kostnad om 350 kr/månad.

I garagen finns även laddplatser för 13 el-bilar som kan hyras till en kostnad om 700 kr/månad + 2 kr per Kwh.
Kontakta https://se.mer.eco/shop/ för teckning av abonnemang.

Fjärrkontroll till garage så utgår en deposition på 800 kr/st.
Överlåtelseavgift och pantsättning: En överlåtelseavgift tas ut om ca 1 470 kr som betalas av köparen. Vid belåning av bostaden tas en pantsättningsavgift ut om ca 588 kr/pant. Beloppen är beräknade på prisbasbeloppet för år 2025.
Hus
Byggår: 2009
Byggnadstyp: Flerfamiljshus
Hiss: Hiss finns
Ventilation: Mekanisk (endast frånluft)
Uppvärmning: Fjärrvärme
Tv och internet: Föreningen är ansluten till bredband via Telenor (250/100) och TV via Tele2.
Renoveringar
2016 Garage Garantiåtgärder, gård Nytt tätskikt på gård, mark Installation av ny trappa och fönster Fönsterputsning.
2017 Låssystem Aptusläsare till soprumsdörrarna, mark Spolning av dagvattenbrunnar och ventilation Filterbyte.
2018 Taksäkerhet Montering av gångbryggor och mark Linjemarkering p-platser samt avbärarräcken.
2019 Fasad Garantiåtgärd tätning av fogar, invändigt bygg Brandtätningar inom byggnaden och soprum Målning av golven.
2020 Ventilation OVK besiktning samt kanalrensning
2021 Tele Porttelefon/låssystem
2022 Avlopp Stamspolning

Huset är byggt 2009 och inga stora renoveringar är planerade till 2022-2023.

Driftkostnader

Totalsumma: 4 560 kr/år

I driftkostnaden ingår följande:
El: 4 560 kr/år

Angiven driftkostnad är beräknad enligt schablon. Kostnaderna kan vara både högre och lägre för ny ägare/boende. Kostnad för hemförsäkring tillkommer

  • Denna bostad
  • Bostäder till salu via Erik Olsson

En riktigt lyckad

bostadsaffär

När du hittat ditt drömboende hjälper vi dig gärna att sälja din nuvarande bostad. För oss är det viktigt att du känner dig trygg både när du köper och säljer bostad via Erik Olsson. Därför är våra mäklare bland de vassaste och mest engagerade i branschen. Vi anstränger oss gärna lite extra för att din bostadsförsäljning ska bli perfekt. Hos oss får du en riktigt lyckad bostadsaffär – och bäst betalt.

Intresseanmälan

Få kontakt med en mäklare som är expert på just ditt område.

✶ Obligatoriska fält

Tillbaka till toppen