Drottninghög / HELSINGBORG

Gulkullagatan 28C

Föreslagen budstart: 2 995 000 kr
TIPSA
Stilrent radhus med uteplats, två badrum och uppfart för två bilar!

  • Inflyttningsklart och välskött hem
  • Stor uteplats med plats för utemöbler och grill
  • Fyra rymliga sovrum totalt
  • Två badrum för bekvämlighet
  • Modernt kök med full maskinpark
  • Separat kök och vardagsrum
  • Vardagsrum med matsal i fil
  • Praktisk tvättdel på entréplan
  • Vitmålade väggar och parkettgolv
  • Uppfart med två bilar
  • Nära skolor och förskolor
  • Nära natur och grönområden
  • Goda kommunikationer till stad

Välkommen till ett modernt och smakfullt radhus som bjuder på ett trivsamt boende för hela familjen. Redan på uppfarten, med plats för två bilar, möts du av en inbjudande fasad och en välkomnande entré under skyddande tak. Härifrån kliver du in i en ljus och praktisk hall där vardagen får en smidig start.

På entréplanet väntar ett stilrent kök i klassisk färgsättning – en plats för matlagning och vardagsmiddagar där både form och funktion samspelar. Vidare hittar du ett generöst vardagsrum med stora fönster som bjuder in ljuset och skapar en harmonisk atmosfär. Härifrån tar du dig enkelt ut till den soliga uteplatsen, en privat oas som inbjuder till allt från lata sommardagar till härliga kvällar med vänner och familj.

På samma plan finns ett fräscht badrum med dusch samt en smart tvättdel, perfekt integrerad för att underlätta vardagens sysslor.

En trappa upp öppnar den privata delen av huset upp sig med flera rymliga sovrum, alla i en lugn och neutral stil som gör det enkelt att inreda efter egen smak. Här finns också ytterligare ett badrum, vilket ger bekvämlighet för både familj och gäster.

Bostaden kombinerar genomtänkta materialval, bra förvaringslösningar och en planlösning som fungerar lika bra i vardagen som vid sociala tillfällen. Här bor ni med närhet till stormarknader, skolor, goda bussförbindelser.

Detta är ett hem där du kan flytta in och trivas från första stund – och stanna länge.

Snabbfakta
Avgift:
6 495 kr
I avgiften ingår värme och parkeringsplats samt bostadsrättstillägg.
Rum:
5 rum och kök
Boarea:
117 kvm
Föreslagen budstart:
2 995 000 kr
Byggnadsår:
2021/2022
Mäklare

Shanga

Rostam

ANSVARIG
MÄKLARE

Stilrent radhus med uteplats, två badrum och uppfart för två bilar!

  • Inflyttningsklart och välskött hem
  • Stor uteplats med plats för utemöbler och grill
  • Fyra rymliga sovrum totalt
  • Två badrum för bekvämlighet
  • Modernt kök med full maskinpark
  • Separat kök och vardagsrum
  • Vardagsrum med matsal i fil
  • Praktisk tvättdel på entréplan
  • Vitmålade väggar och parkettgolv
  • Uppfart med två bilar
  • Nära skolor och förskolor
  • Nära natur och grönområden
  • Goda kommunikationer till stad

Välkommen till ett modernt och smakfullt radhus som bjuder på ett trivsamt boende för hela familjen. Redan på uppfarten, med plats för två bilar, möts du av en inbjudande fasad och en välkomnande entré under skyddande tak. Härifrån kliver du in i en ljus och praktisk hall där vardagen får en smidig start.

På entréplanet väntar ett stilrent kök i klassisk färgsättning – en plats för matlagning och vardagsmiddagar där både form och funktion samspelar. Vidare hittar du ett generöst vardagsrum med stora fönster som bjuder in ljuset och skapar en harmonisk atmosfär. Härifrån tar du dig enkelt ut till den soliga uteplatsen, en privat oas som inbjuder till allt från lata sommardagar till härliga kvällar med vänner och familj.

På samma plan finns ett fräscht badrum med dusch samt en smart tvättdel, perfekt integrerad för att underlätta vardagens sysslor.

En trappa upp öppnar den privata delen av huset upp sig med flera rymliga sovrum, alla i en lugn och neutral stil som gör det enkelt att inreda efter egen smak. Här finns också ytterligare ett badrum, vilket ger bekvämlighet för både familj och gäster.

Bostaden kombinerar genomtänkta materialval, bra förvaringslösningar och en planlösning som fungerar lika bra i vardagen som vid sociala tillfällen. Här bor ni med närhet till stormarknader, skolor, goda bussförbindelser.

Detta är ett hem där du kan flytta in och trivas från första stund – och stanna länge.

TIPSA

Shanga

Rostam

ANSVARIG
MÄKLARE

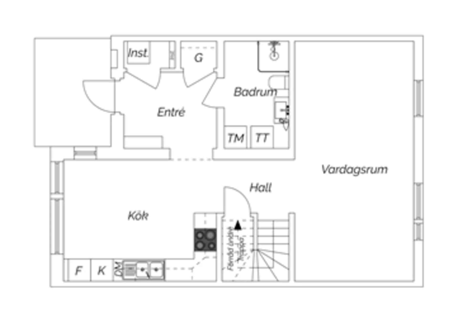
Rumsbeskrivning - Gulkullagatan 28C

Bottenplan

Hall

Ljusa väggar och slitstark mörk klinker välkomnar dig in i en praktisk hall med gott om plats för avhängning. Här finns direkt tillgång till garderob och badrum. Planlösningen är genomtänkt för att ge både smidighet och rymd.

Badrum

Stilrent badrum med grå klinker och vitt kakel i klassiskt utförande. Här finns kommod, spegelskåp med LED-belysning, WC och dusch. Den smarta tvättdelen är utrustad med tvättmaskin och torktumlare, perfekt för en smidig vardag.

Kök

Ett modernt och funktionellt kök med vita släta luckor, aluminiummönstrad laminatbänkskiva och vitt kakel som stänkskydd. Full maskinpark med induktionshäll, inbyggnadsugn, mikrovågsugn, diskmaskin samt kyl och frys i rostfritt. Här finns gott om arbetsyta och plats för matgrupp intill stora fönster.

Vardagsrum

Ljust och luftigt vardagsrum med vacker ekparkett och stora fönsterpartier som ger ett fantastiskt ljusinsläpp. Fondvägg med marmorskiva är en stilfull detalj i rummet. Den öppna planlösningen mot matplatsen skapar en social yta perfekt för umgänge. Från vardagsrummet leder dubbeldörrar ut till den generösa uteplatsen.

Uteplats

Stor, insynsskyddad träbelagd uteplats med plats för både loungemöbler, matgrupp och grill.

Ovanplan

Sovrum 1

Rymligt sovrum med ekparkett, vitmålade väggar och inbyggd förvaring. Gott om plats för dubbelsäng och kompletterande möbler.

Sovrum 2

Trivsamt sovrum med ekparkett och vitmålade väggar. Passar utmärkt som barnrum, gästrum eller hemmakontor.

Sovrum 3

Ett ljust rum med ekparkett, vitmålade väggar, fondvägg i rosa och garderob. Perfekt för barn, tonåring eller som arbetsrum.

Sovrum 4

Ytterligare ett flexibelt rum med ekparkett som kan användas som sovrum, kontor eller hobbyrum.

Badrum

Ljust badrum med grå klinker och vitt kakel, utrustat med kommod, spegelskåp med LED-belysning, WC och duschkabin.

Fakta – Gulkullagatan 28C

Bostadstyp: Radhus
Kommun: Helsingborg
Storlek: 5 rum och kök, 117 kvm boarea
Areakälla: föreningens information
Lägenhetsnummer: B02R
Föreslagen budstart: 2 995 000 kr
Månadsavgift: 6 495 kr
I avgiften ingår värme och parkeringsplats samt bostadsrättstillägg.
Andelstal: Andel i förening 3,226 %, andel av årsavgift 3,226 %
Indirekt nettoskuldsättning: 1 397 675 kr
Bostadsrättens indirekta nettoskuldsättning anger hur stor andel av bostadsrättsföreningens lån som indirekt belastar bostadsrätten. Andelen beräknas som andelstalet för avgifter multiplicerat med föreningens nettoskuldsättning. Den består av räntebärande skulder med avdrag för räntebärande tillgångar och likvida medel. Underlagen för beräkningen kommer från föreningen.
Energiprestanda: 59 kWh/kvm och år
Energiklass: B

Fakta – Brf BoKlok Melba

Hus
Byggår: 2021/2022
Byggnadstyp: Radhus
Hiss: Hiss finns ej
Fönster: 3-glas
Ventilation: FTX
Uppvärmning: Fjärrvärme
Bilplats: Plats för 2 bilar på uppfarten.

Driftkostnader

Totalsumma: 16 620 kr/år

I driftkostnaden ingår följande:
El: 9 000 kr/år
VA: 4 320 kr/år
Försäkring: 3 300 kr/år

Driftkostnaden är beräknad på 5 personers hushåll.
Driftkostnaderna kan komma att variera beroende på egen förbrukning. Enligt schablon och är en uppskattad kostnad för boendet.

  • Denna bostad
  • Bostäder till salu via Erik Olsson

En riktigt lyckad

bostadsaffär

När du hittat ditt drömboende hjälper vi dig gärna att sälja din nuvarande bostad. För oss är det viktigt att du känner dig trygg både när du köper och säljer bostad via Erik Olsson. Därför är våra mäklare bland de vassaste och mest engagerade i branschen. Vi anstränger oss gärna lite extra för att din bostadsförsäljning ska bli perfekt. Hos oss får du en riktigt lyckad bostadsaffär – och bäst betalt.

Intresseanmälan

Få kontakt med en mäklare som är expert på just ditt område.

✶ Obligatoriska fält

Tillbaka till toppen