Laröd / HELSINGBORG

Wachtmeisters väg 12

Föreslagen budstart: 11 500 000 kr
TIPSA
Renoverad funkisinspirerad 60-talsvilla med havsnära läge i Laröd

  • Stort 60-talshus med funkisstil
  • 198 kvm boyta med generösa ytor
  • Fyra sovrum varav ett med egen klädkammare och badrum
  • Två badrum och en extra gäst-WC på entreplan och badrum i källare
  • Stort nyrenoverat kök och matrum med plats för stort matbord
  • Vardagsrum i fil med härligt ljusinsläpp
  • Stämningsfull braskamin för extra trivsel
  • Rymlig källare med vardagsrum och sovrum
  • Bastu och badrum i källarplanet
  • Praktisk tvättstuga och flera förvaringsutrymmen
  • Dubbelgarage med gott om plats
  • Fantastisk trädgård på cirka 1 000 kvm
  • Sydeuropeisk känsla med nya plattor och pergola
  • Altaner både på fram- och baksidan
  • Lummig, insynsskyddad och rogivande utemiljö
  • Toppläge i Laröd nära hav, natur och service

Välkommen till Wachtmeisters väg 12 i Laröd – ett 60-talshus med karaktär och tydliga drag av funkisstil, beläget på ett av områdets mest eftertraktade lägen, bara ett stenkast från havet. Här erbjuds en boendemiljö som förenar generösa ytor, funktionell planlösning och en underbar trädgård som känns som en egen grön oas.
Den ståtliga villan omfattar hela 198 kvm boyta och rymmer allt en familj kan önska. Här finns fyra väl tilltagna sovrum, två badrum och en extra gäst-WC. I det ena sovrummet har man dessutom lyxen av en egen klädkammare och ett privat badrum – perfekt som föräldrasvit.

Husets hjärta är det stora, moderna köket – nyligen renoverat med påkostade materialval, generösa arbetsytor och plats för ett rejält matbord. Här kan både vardagsmiddagar och större bjudningar avnjutas. Intill ligger vardagsrummet i fil, med stora fönsterpartier som ger rikligt ljusinsläpp och en luftig atmosfär. Här finns också en stämningsfull braskamin som gör rummet extra inbjudande under årets kallare månader – en plats för umgänge, värme och avkoppling.

Den rymliga källaren erbjuder ytterligare ett vardagsrum, perfekt som tv- eller hobbyrum, samt ett extra sovrum. Här finns också en tvättstuga, ett badrum och en bastu i äldre stil – redo för den som vill skapa en personlig spaavdelning. Utöver detta finns flera praktiska förvaringsutrymmen, vilket gör det lätt att hålla ordning.

På den generösa tomten om cirka 1 000 kvm breder en underbar trädgård ut sig – både lummig och smakfullt planerad. Här har nylagda plattor, inspirerade av sydeuropeisk stil, skapat en solig uteplats med pergola där man kan njuta av lediga dagar och långa kvällar. Både på fram- och baksidan finns altaner som ger gott om plats för umgänge och avkoppling. Trädgården bjuder dessutom på flera insynsskyddade vrår där man kan dra sig undan och bara njuta av lugnet. Det är en grönskande oas med både lekytor för barnen och härliga platser för de vuxna att koppla av.
Förutom generösa boytor och en härlig tomt erbjuder huset också ett stort dubbelgarage, perfekt för både bilar och extra förvaring.

Wachtmeisters väg är ett av Helsingborgs mest attraktiva områden, uppskattat för sin närhet till både havet och stadens service. Här bor man i ett lugnt och tryggt villaområde, med promenadavstånd till strand, bad och vackra rekreationsområden.

Snabbfakta
Rum:
6
Varav sovrum:
5 - 6
Boarea:
198 kvm
Biarea:
144 kvm
Tomtarea:
1047 kvm
Föreslagen budstart:
11 500 000 kr
Byggnadsår:
1965
Fastighetsbeteckning:
Gripenberg 7
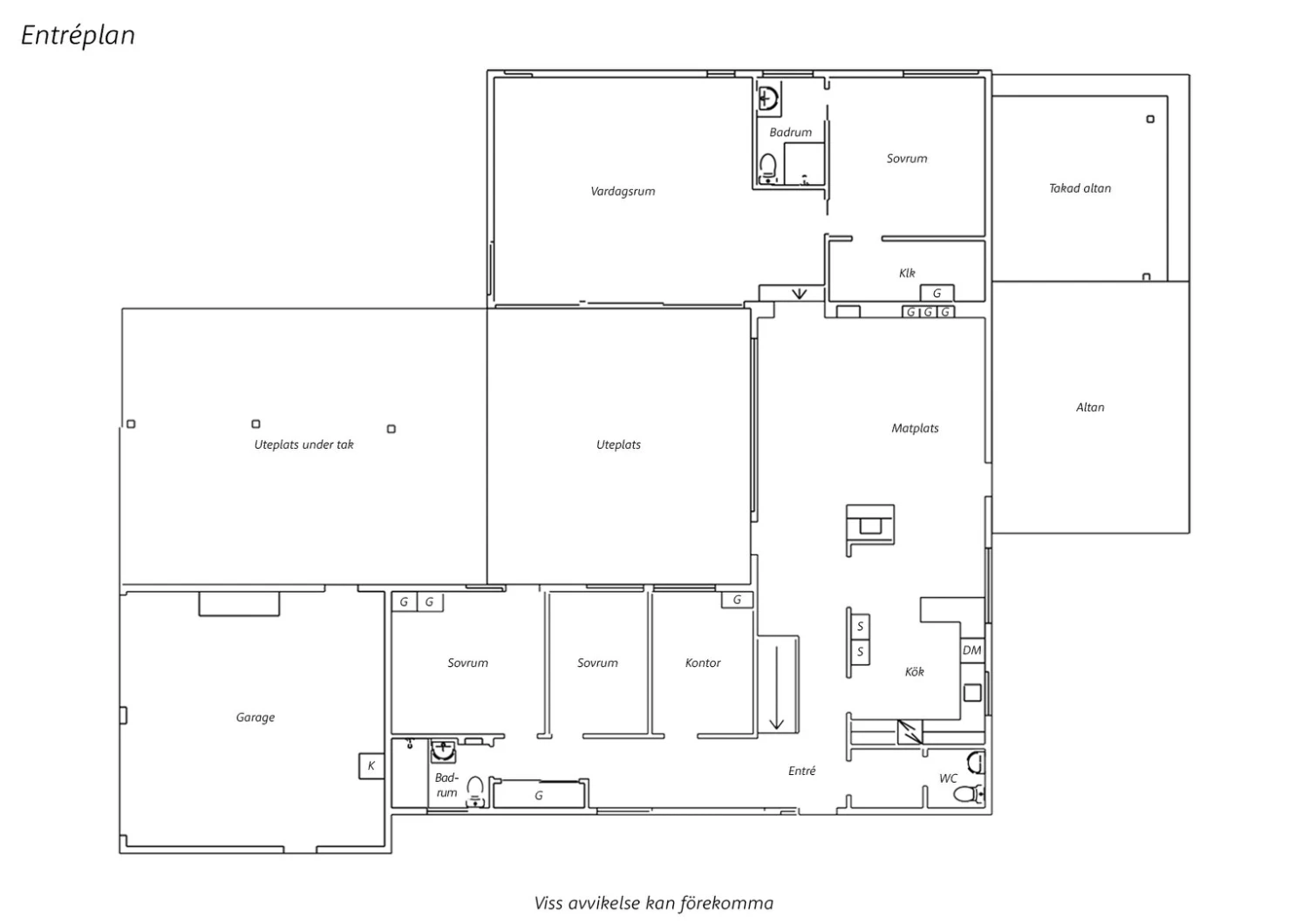
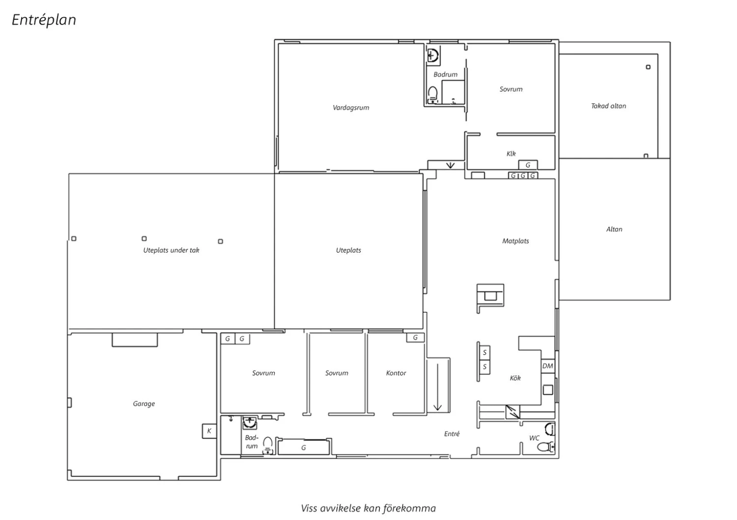
Planritning
Visningar
  • Anmälan krävs!
    Söndag 19 oktober

    Kontakta mäklaren

Mäklare

Ida

Andersson

ANSVARIG
MÄKLARE

Renoverad funkisinspirerad 60-talsvilla med havsnära läge i Laröd

  • Stort 60-talshus med funkisstil
  • 198 kvm boyta med generösa ytor
  • Fyra sovrum varav ett med egen klädkammare och badrum
  • Två badrum och en extra gäst-WC på entreplan och badrum i källare
  • Stort nyrenoverat kök och matrum med plats för stort matbord
  • Vardagsrum i fil med härligt ljusinsläpp
  • Stämningsfull braskamin för extra trivsel
  • Rymlig källare med vardagsrum och sovrum
  • Bastu och badrum i källarplanet
  • Praktisk tvättstuga och flera förvaringsutrymmen
  • Dubbelgarage med gott om plats
  • Fantastisk trädgård på cirka 1 000 kvm
  • Sydeuropeisk känsla med nya plattor och pergola
  • Altaner både på fram- och baksidan
  • Lummig, insynsskyddad och rogivande utemiljö
  • Toppläge i Laröd nära hav, natur och service

Välkommen till Wachtmeisters väg 12 i Laröd – ett 60-talshus med karaktär och tydliga drag av funkisstil, beläget på ett av områdets mest eftertraktade lägen, bara ett stenkast från havet. Här erbjuds en boendemiljö som förenar generösa ytor, funktionell planlösning och en underbar trädgård som känns som en egen grön oas.
Den ståtliga villan omfattar hela 198 kvm boyta och rymmer allt en familj kan önska. Här finns fyra väl tilltagna sovrum, två badrum och en extra gäst-WC. I det ena sovrummet har man dessutom lyxen av en egen klädkammare och ett privat badrum – perfekt som föräldrasvit.

Husets hjärta är det stora, moderna köket – nyligen renoverat med påkostade materialval, generösa arbetsytor och plats för ett rejält matbord. Här kan både vardagsmiddagar och större bjudningar avnjutas. Intill ligger vardagsrummet i fil, med stora fönsterpartier som ger rikligt ljusinsläpp och en luftig atmosfär. Här finns också en stämningsfull braskamin som gör rummet extra inbjudande under årets kallare månader – en plats för umgänge, värme och avkoppling.

Den rymliga källaren erbjuder ytterligare ett vardagsrum, perfekt som tv- eller hobbyrum, samt ett extra sovrum. Här finns också en tvättstuga, ett badrum och en bastu i äldre stil – redo för den som vill skapa en personlig spaavdelning. Utöver detta finns flera praktiska förvaringsutrymmen, vilket gör det lätt att hålla ordning.

På den generösa tomten om cirka 1 000 kvm breder en underbar trädgård ut sig – både lummig och smakfullt planerad. Här har nylagda plattor, inspirerade av sydeuropeisk stil, skapat en solig uteplats med pergola där man kan njuta av lediga dagar och långa kvällar. Både på fram- och baksidan finns altaner som ger gott om plats för umgänge och avkoppling. Trädgården bjuder dessutom på flera insynsskyddade vrår där man kan dra sig undan och bara njuta av lugnet. Det är en grönskande oas med både lekytor för barnen och härliga platser för de vuxna att koppla av.
Förutom generösa boytor och en härlig tomt erbjuder huset också ett stort dubbelgarage, perfekt för både bilar och extra förvaring.

Wachtmeisters väg är ett av Helsingborgs mest attraktiva områden, uppskattat för sin närhet till både havet och stadens service. Här bor man i ett lugnt och tryggt villaområde, med promenadavstånd till strand, bad och vackra rekreationsområden.

Visningar
  • Anmälan krävs!
    Söndag 19 oktober

    Kontakta mäklaren

TIPSA

Ida

Andersson

ANSVARIG
MÄKLARE

Rumsbeskrivning - Wachtmeisters väg 12

ENTRÉPLAN

Hall

WC

Den charmiga gäst-WC:n har en tidstypisk känsla med mjuka rosa väggkakel som kombineras med ljusa väggar upptill. Här finns handfat med spegelskåp ovanför samt wc. Ett praktiskt och trivsamt utrymme som gör vardagen smidigare och ger gäster en välkomnande känsla.

Kök

Köket renoverades 2023 och är idag en modern och stilfull samlingspunkt i hemmet. Här möts tidlösa materialval och funktion i perfekt harmoni. Köksluckor i elegant ek skapar en varm och naturlig känsla, vackert kombinerat med en exklusiv bänkskiva i slitstark kompositsten som ger både karaktär och hållbarhet. Den fullutrustade maskinparken består av ugn, micro, kyl, frys, fläkt och häll – allt smakfullt integrerat för att underlätta både vardagsmatlagning och festliga middagar. På golvet ligger ett exklusivt ekparkettgolv som förstärker helhetsintrycket och ger en varm ton till rummet. De vitmålade, släta väggarna skapar en ljus och stilren bakgrund som framhäver kökets moderna uttryck. Här får du ett kök som inte bara är praktiskt och funktionellt, utan även en inbjudande plats för umgänge och njutning.

Matsal

Matsalen är generös och rymmer utan problem ett stort matsalsbord, perfekt för både vardagsmiddagar och festliga bjudningar. Från rummet finns en direkt utgång till altanen, vilket gör det enkelt att förlänga middagen utomhus under sommarhalvåret. En stämningsfull braskamin skapar både värme och atmosfär, och blir en naturlig samlingspunkt under årets kallare dagar. Exklusivt ekparkettgolv samt vitmålade släta väggar.

Vardagsrum

Vardagsrummet är rymligt och inbjudande med gott om plats för en generös soffgrupp och kompletterande möblemang efter behov. De puderrosa väggarna skapar en mjuk och behaglig atmosfär. Exklusivt ekparkettgolv. Här ges alla möjligheter att skapa en både representativ och ombonad miljö där familj och vänner kan samlas för såväl vardagsliv som festliga tillfällen.

Master bedroom m klädkammare & badrum

Det rogivande sovrummet har mjukt puderrosa väggar som skapar en varm och harmonisk känsla. Här finns gott om plats för en dubbelsäng och kompletterande möbler, vilket gör rummet både praktiskt och inbjudande. Exklusivt ekparkettgolv. Intill sovrummet ligger en rymlig klädkammare med smarta PAX-garderober som ger generös förvaring. Till rummet hör även ett eget badrum, utrustat med dusch, kommod med handfat, spegelskåp och wc – en privat och bekväm lösning som gör detta sovrum till en perfekt föräldrasvit.

Sovrum

Ett ljust och trivsamt sovrum med fönster som vetter mot trädgården och ger ett fint ljusinsläpp. Rummet har plats för säng och skrivbord, vilket gör det perfekt som barn- eller tonårsrum men fungerar lika bra som gästrum eller hemmakontor. De vitmålade väggarna skapar en neutral bas som gör det enkelt att inreda efter behov och stil. En flexibel yta med många möjligheter. Exklusivt ekparkettgolv samt vitmålade släta väggar.

Sovrum

Ett harmoniskt sovrum med fint ljusinsläpp och direkt utgång till trädgården, vilket skapar en härlig kontakt mellan inne och ute. Här finns plats för dubbelsäng och ytterligare möbler som skrivbord eller sminkbord. Garderoberna ger gott om förvaring och de ljusa väggarna tillsammans med det vackra parkettgolvet skapar en stilren och tidlös bas.

Kontor

Detta rum kan med fördel användas som sovrum eller kontor beroende på behov. Exklusivt ekparkettgolv samt vitmålade släta väggar.

Badrum

Det stilrena badrummet är inrett med smakfullt stenliknande klinker på både golv och väggar, vilket ger en exklusiv och tidlös känsla. Den generösa duschen med takdusch skapar en härlig spa-atmosfär, samtidigt som golvets mosaikmönstrade plattor tillför en elegant detalj. En modern kommod med ovanpåliggande handfat, spegelskåp och svarta bänkskivor ger rummet både funktionalitet och karaktär. Här finns även komfort i form av handdukstork och välplanerad belysning som förstärker den lyxiga känslan. Ett badrum där varje detalj bidrar till en avslappnande och stilfull vardag.

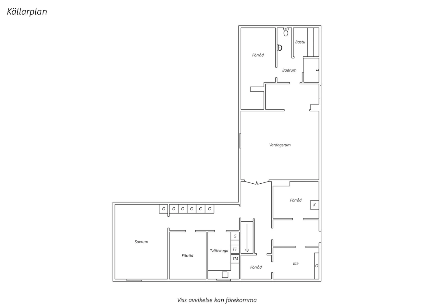
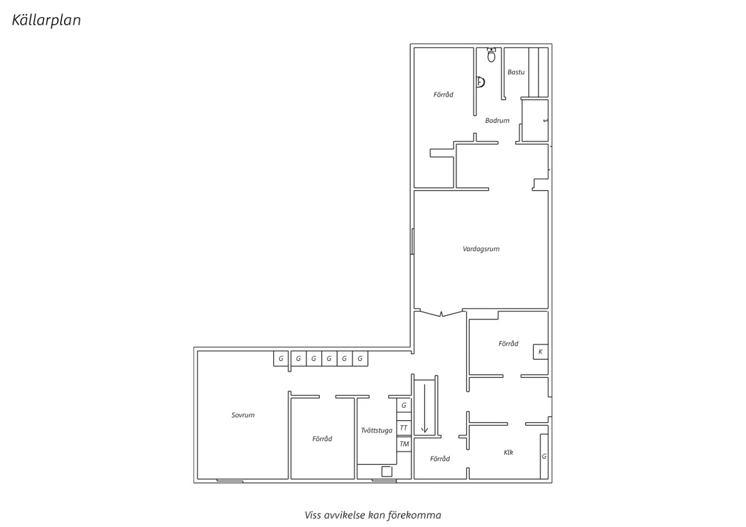
KÄLLARPLAN

Vardagsrum

I källarplanet finns ett stort allrum som lämpar sig perfekt som tv-rum, lekrum eller en mysig samlingsplats för hela familjen. Här finns gott om plats för både soffgrupp och annan möblering, vilket gör rummet flexibelt och lätt att anpassa efter behov. Ljusa väggar och ett fint parkettgolv skapar en hemtrevlig känsla, medan rummet i sig bjuder på en ombonad atmosfär där både barn och vuxna gärna tillbringar tid.

Sovrum

I källaren finns ett rofyllt sovrum som passar utmärkt som gästrum eller tonårsrum. Här finns gott om plats för dubbelsäng och kompletterande möbler, och rummet ramas in av ljusa väggar tillsammans med en mörkare fondvägg som ger en modern och harmonisk känsla. Ett högt sittande fönster släpper in naturligt ljus och skapar trivsel, medan det praktiska klinkergolvet är både slitstarkt och lättskött. Ett ombonat utrymme där gäster eller familjemedlemmar kan känna sig helt hemma.

Tvättstuga

I källarplanet finns en praktisk tvättstuga med gott om arbetsyta och förvaring. Här finns både tvättmaskin och torktumlare placerade sida vid sida, vilket gör tvättarbetet smidigt. Längs väggen löper en generös bänkskiva med ho och gott om skåp både ovan- och underskåp, vilket ger bra plats för sortering, vikning och förvaring av tvättartiklar. Ett högt sittande fönster släpper in dagsljus och bidrar till en ljusare atmosfär. Ett funktionellt utrymme som gör vardagen enklare.

Badrum/bastu

Klinkergolv på golvet. Dusch, handfat, wc samt bastu.

Förråd

Fakta – Wachtmeisters väg 12

Bostadstyp: Villa
Kommun: Helsingborg
Besiktad och försäkrad: Bostaden är besiktad och säljaren avser att teckna en försäkring mot dolda fel.
Fastighetsbeteckning: Gripenberg 7
Storlek: 6 rum, 198 kvm boarea, 144 kvm biarea
Varav sovrum: 5 - 6
Areakälla: taxeringsinformation
Föreslagen budstart: 11 500 000 kr
Energiprestanda: 113 kWh/kvm och år
Energiklass: D
Planbestämmelser: Detaljplan (2000-01-26)
Upplåtelseform: Friköpt
Pantbrev: Det finns 8 st pantbrev uttaget om sammanlagt 6 375 000 kr
Taxeringsvärde: 7 371 000 kr
Taxeringsår: 2024
Byggnadsvärde: 4 672 000 kr
Markvärde: 2 699 000 kr
Fastighetsavgift: 10 074 kr/år
Omgivning
Kommunikation: Området har goda kommunikationer både med kollektivtrafik och bil. Busslinjer trafikerar sträckan mellan Laröd och Helsingborgs centrum regelbundet, vilket gör det enkelt att pendla till både arbete och skolor. Med bil når man Helsingborgs city på cirka 10 minuter och har dessutom smidig anslutning till motorvägen E4/E6 för längre resor mot Malmö, Göteborg eller Stockholm.
Allmänt om området: Laröd är ett av Helsingborgs mest attraktiva villaområden, känt för sin naturnära miljö, närheten till havet och sin familjevänliga atmosfär. Området präglas av lugna gator, lummiga trädgårdar och ett harmoniskt boende där man verkligen kan njuta av både stillhet och bekvämlighet. Med sin kustnära placering bjuder Laröd på vackra promenadstråk, grönområden och strandbad bara några minuter bort.
Närservice: I Laröd finns en välsorterad ICA-butik, vårdcentral, bibliotek, gym samt restauranger och caféer. För barnfamiljer finns förskolor, grundskolor och fritidsaktiviteter på nära håll. För ett bredare utbud ligger Helsingborgs centrum bara en kort bilresa bort, med shopping, kultur och nöjen.
Övrigt: Laröd erbjuder även ett rikt förenings- och fritidsliv med tennisbanor, golfbanor, ridanläggningar och idrottsföreningar i närheten. Naturen är alltid nära, med både strand, skog och vackra rekreationsområden som Pålsjö skog och Sofiero slottspark inom bekvämt avstånd. Området uppskattas av både barnfamiljer, par och äldre som söker livskvalitet i en trygg och trivsam miljö.

Fakta – Byggnaden

Hus
Byggnadstyp: 1-plansvilla med källare
Byggår: 1965
Ombyggt 2019
Fasad: Tegel/trä
Stomme: Tegel
Fönster: 3-glas
Bjälklag: Trä
Utvändigt plåtarbete: Lackerad plåt
Grundmur: Betong
Tak: Papp
Grundläggning: Källare
Uppvärmning: Fjärrvärme samt luft/luft
Vatten och avlopp: Kommunalt vatten året om. Kommunalt avlopp
Ventilation: Självdrag
Övrigt om byggnaden: 2021
- Byte av bjälklag i vardagsrum – Hittarps Bygg
- Byte av undergolv i matrum och hall
- Byte av alla parkettgolv på entréplan
- Målning av hela entréplan
- Byte av delar av elsystem på entréplan
- Diverse elarbeten – IBC Elinstallation
- Diverse elarbeten – IBC Elinstallation

2022
- Diverse elarbeten – IBC Elinstallation

2023
- Renovering av murstock – Hittarps Bygg
- Ommålning av matrum och hall
- Ny gästtoalett, inklusive förändring av planlösning
- Nytt kök, inklusive förändring av planlösning
- Bänkskiva inkl. montering – Kvik
- Blandare – Kvik
- Tillverkning av träluckor – Bucks & Spurs
- Köksstommar, vitvaror – Ikea
- Ny altan på baksidan – Hittarps Bygg
- Pergola på baksidan – Willabgarden
- Service av värmefläktar – JS Energi

2024
- Ny stenläggning i atrium uteplats – Johan Nilsson
- Entreprenad AB
- Ny stenläggning i atrium uteplats – Stenbutiken i Viken
- Byte av el i garaget och uteplatsen – IBC Elinstallation
Tomt, uteplats och bilplats
Tomtarea: 1047 kvm

Driftkostnader

Totalsumma: 69 618 kr/år

I driftkostnaden ingår följande:
Uppvärmning: 48 694 kr/år
VA: 7 887 kr/år
Renhållning: 4 136 kr/år
Försäkring: 8 901 kr/år

Driftkostnaden är beräknad på 5 personers hushåll.
Uppvärmning är ink uppvärmning och el.
Försäkringsbolag: Länsförsäkringar
Fullvärde: Ja
Nätbolag: Telia
Elleverantör: Öresundskraft

Utöver detta tillkommer kostnad för fastighetsavgift/skatt på 10 074 kr/år.

Dokument

  • Denna bostad
  • Bostäder till salu via Erik Olsson

En riktigt lyckad

bostadsaffär

När du hittat ditt drömboende hjälper vi dig gärna att sälja din nuvarande bostad. För oss är det viktigt att du känner dig trygg både när du köper och säljer bostad via Erik Olsson. Därför är våra mäklare bland de vassaste och mest engagerade i branschen. Vi anstränger oss gärna lite extra för att din bostadsförsäljning ska bli perfekt. Hos oss får du en riktigt lyckad bostadsaffär – och bäst betalt.

Intresseanmälan

Få kontakt med en mäklare som är expert på just ditt område.

✶ Obligatoriska fält

Tillbaka till toppen