/ Vallåkra

Ekebyvägen 560

Föreslagen budstart: 6 495 000 kr
TIPSA
Lyxig familjevilla med generösa ytor, hög standard och garage

  • Låga driftkostnader
  • Vattenburen golvvärme
  • Öppen planlösning
  • Förberett för kamin
  • Lyxigt spabadkar
  • Stora skjutdörrspartier
  • Garage med golvvärme
  • Modern Plejd belysning
  • Yale Doorman
  • Nära skolor och service

Välkommen till en modern och energisnål villa om hela 174 kvm, en bostad som kombinerar genomtänkt design, kvalitet och komfort på allra högsta nivå. Här möts stilrena materialval och generösa ytor i en öppen planlösning som bjuder in till både umgänge och avkoppling.

Redan i hallen möts du av ett stilrent intryck med vita väggar och klinkergolv som leder dig vidare in i det imponerande köket. Köket är en dröm för den matlagningsintresserade med ljusgrå luckor och full utrustning i rostfritt. Den stora köksön med inbyggd fläkt och rund diskho utgör hemmets självklara samlingspunkt. Härifrån öppnar sig rummet mot det fantastiska vardagsrummet där skjutdörrspartier i glas suddar ut gränsen mellan ute och inne. Det öppna upp till nock ger rymd och ljus som tillsammans skapar en storslagen känsla. För den som drömmer om extra mysfaktor finns dessutom förberett för kamin.

Samtliga golv har vattenburen golvvärme, och med energiklass B får du ett modernt och energieffektivt hem.

Master bedroom erbjuder både plats för dubbelsäng och egen klädförvaring samt direktaccess till ett privat badrum. Genom glasade skjutdörrar når du den grönskande trädgården utanför. Övriga sovrum är trivsamt inredda i varma färger med stora fönster och altandörrar som släpper in gott om ljus. Ett extra allrum ger flexibilitet , perfekt som kontor, lekrum eller lounge.

Båda badrummen är helkaklade och eleganta, det ena med dusch är förberett för handfat för köparens smak, det andra inrett med handfatskommod och spabadkar för extra vardagslyx. Tvättstugan är rymlig och praktisk med groventré till garaget, gott om arbetsyta och förvaring.

Det inbyggda garaget om cirka 39 kvm har plats för två bilar, värme i klinkergolvet och ett eget förråd, en perfekt lösning för både bil och hobby.

Här har inget lämnats åt slumpen, från Plejd styrd belysning och spotlights i alla rum till Yale Doorman och stilrena kakelsocklar.

Bostaden ligger med ett utmärkt läge mellan Gantofta, Påarp och Bårslöv, nära skolor, förskolor, tågstation, livsmedelsbutiker och pizzerior. En perfekt plats för familjen som söker ett bekvämt, påkostat och energieffektivt hem i ett lugnt och barnvänligt område.

Välkomna på visning med mäklare Ali Mroveh på Erik Olsson i Helsingborg

Snabbfakta
Rum:
5
Varav sovrum:
4
Boarea:
174 kvm
Biarea:
39 kvm
Tomtarea:
929 kvm
Föreslagen budstart:
6 495 000 kr
Byggnadsår:
2023
Fastighetsbeteckning:
Bårslöv 9:11
Mäklare

Ali

Mroveh

ANSVARIG
MÄKLARE

Lyxig familjevilla med generösa ytor, hög standard och garage

  • Låga driftkostnader
  • Vattenburen golvvärme
  • Öppen planlösning
  • Förberett för kamin
  • Lyxigt spabadkar
  • Stora skjutdörrspartier
  • Garage med golvvärme
  • Modern Plejd belysning
  • Yale Doorman
  • Nära skolor och service

Välkommen till en modern och energisnål villa om hela 174 kvm, en bostad som kombinerar genomtänkt design, kvalitet och komfort på allra högsta nivå. Här möts stilrena materialval och generösa ytor i en öppen planlösning som bjuder in till både umgänge och avkoppling.

Redan i hallen möts du av ett stilrent intryck med vita väggar och klinkergolv som leder dig vidare in i det imponerande köket. Köket är en dröm för den matlagningsintresserade med ljusgrå luckor och full utrustning i rostfritt. Den stora köksön med inbyggd fläkt och rund diskho utgör hemmets självklara samlingspunkt. Härifrån öppnar sig rummet mot det fantastiska vardagsrummet där skjutdörrspartier i glas suddar ut gränsen mellan ute och inne. Det öppna upp till nock ger rymd och ljus som tillsammans skapar en storslagen känsla. För den som drömmer om extra mysfaktor finns dessutom förberett för kamin.

Samtliga golv har vattenburen golvvärme, och med energiklass B får du ett modernt och energieffektivt hem.

Master bedroom erbjuder både plats för dubbelsäng och egen klädförvaring samt direktaccess till ett privat badrum. Genom glasade skjutdörrar når du den grönskande trädgården utanför. Övriga sovrum är trivsamt inredda i varma färger med stora fönster och altandörrar som släpper in gott om ljus. Ett extra allrum ger flexibilitet , perfekt som kontor, lekrum eller lounge.

Båda badrummen är helkaklade och eleganta, det ena med dusch är förberett för handfat för köparens smak, det andra inrett med handfatskommod och spabadkar för extra vardagslyx. Tvättstugan är rymlig och praktisk med groventré till garaget, gott om arbetsyta och förvaring.

Det inbyggda garaget om cirka 39 kvm har plats för två bilar, värme i klinkergolvet och ett eget förråd, en perfekt lösning för både bil och hobby.

Här har inget lämnats åt slumpen, från Plejd styrd belysning och spotlights i alla rum till Yale Doorman och stilrena kakelsocklar.

Bostaden ligger med ett utmärkt läge mellan Gantofta, Påarp och Bårslöv, nära skolor, förskolor, tågstation, livsmedelsbutiker och pizzerior. En perfekt plats för familjen som söker ett bekvämt, påkostat och energieffektivt hem i ett lugnt och barnvänligt område.

Välkomna på visning med mäklare Ali Mroveh på Erik Olsson i Helsingborg

TIPSA

Ali

Mroveh

ANSVARIG
MÄKLARE

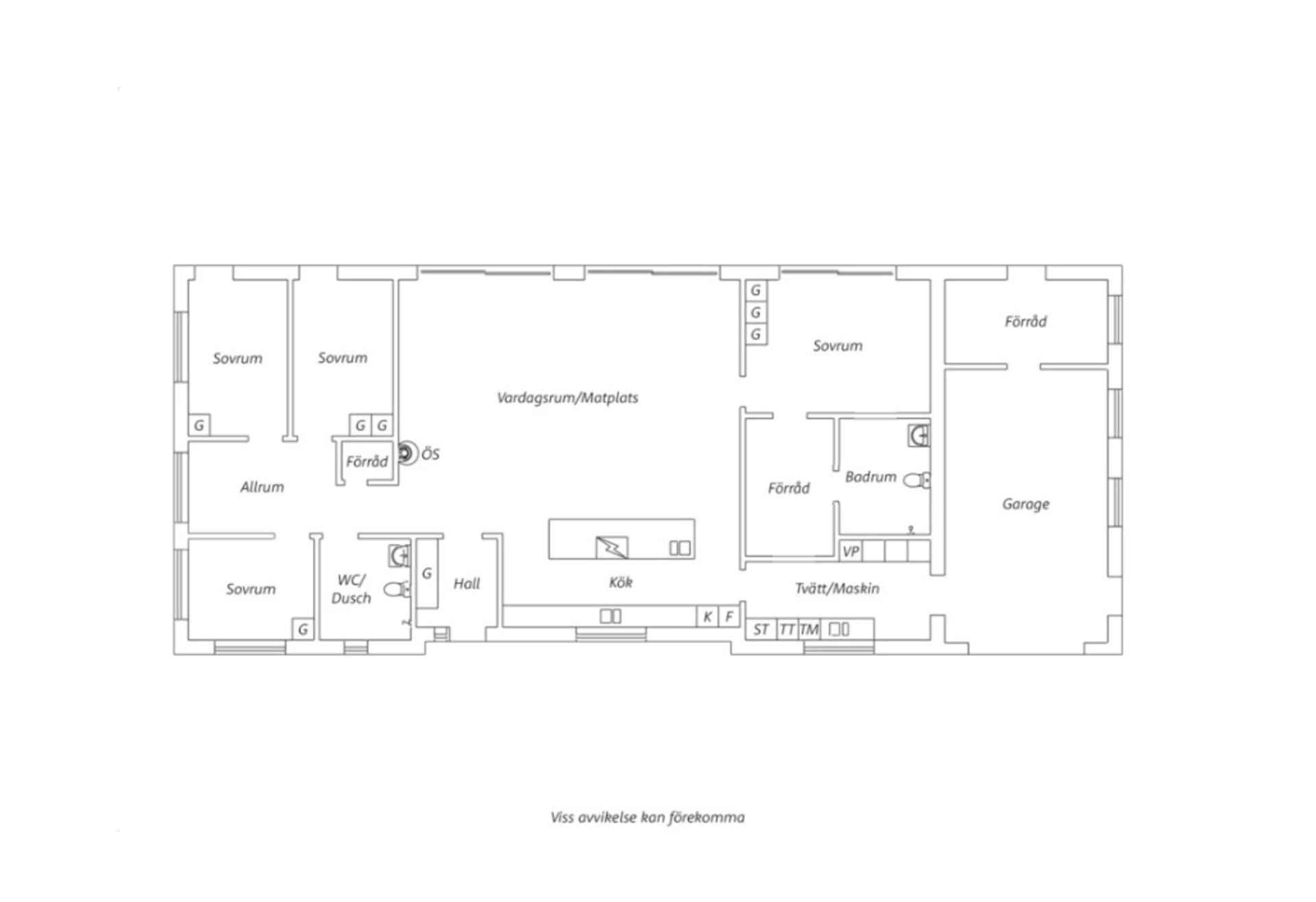
Rumsbeskrivning - Ekebyvägen 560

Golvvärme

Vattenburen golvvärme i hela huset.

Hall

Plats för avhängning, vita väggar, klinkergolv.

Kök

Ljusgrå luckor, bänkskiva med marmorerad dekorplast. Rostfri hel kyl och frys, fristående diskmaskin, ugn i arbetshöjd och ett överkantshängt fönster ovanför rostfri diskho. Rund diskho och 90 cm spishäll med inbyggd fläkt i köksön. Öppen planlösning med vardagsrum.

Vardagsrum

Ett verkligen fantastiskt rum med stora skjutdörrs partier som öppnar upp kök och vardagsrum i enhet med natur samt öppet upp till nock. Plats till soffmöblemang och matbord med mera.

Kamin

Förberett installation för kamin.

Energisnålt hus

Energiklass B

Sovrum 1

Plats till dubbelsäng, egen stor garderob och ifrån garderoben ingång till eget badrum. Skjutdörrar i glas öppnar upp till gräsmatta utanför, beiga väggar och laminatgolv.

Badrum

Helkaklat, vikbar duschvägg, elektrisk handukstork, vägghängd wc. Förberett för installation av handfat.

Sovrum 2

Beiga väggar, Pergo laminatgolv 12mm, ett överkantshängt fönster och altandörr i helglas.

Sovrum 3

Beiga väggar, Pergo laminatgolv 12mm, altandörr i helglas.

Sovrum 4

Blåa väggar, pergo laminatgolv 12mm och två överkantshängda fönster.

Allrum

Ett öppet utrymme där man kan ha kontor, allrum eller annan förvaring. Vita väggar, laminatgolv och ett överkantshängt fönster.

Badrum 2

Helkaklat med spabadkar under ett fönster, elektrisk handusttork, vit handfatskommod med spegelskåp, wc.

Tvättstuga

Rymlig och helkaklad med grov entré från garaget. Tvättmaskin och torktumlare i arbetshöjd, ljusgrå skåpsluckor under marmorerad laminatbänkskiva med diskho och fönster ovan.

Förråd

Garage ca 35kvm

Inbyggt garage med plats till två bilar. (Wisniowski garageport 3 m.) Klinker i beige kulör på golvet med golvvärme. Förråd i garaget. Groventré från tvättstugan till garaget.

Detaljer

Klinker 90*90 i garaget, vardagsrum, kök, tvättstugan både vägg och golv. I garage och vardagsrum finns socklar i kakel. Fönster belysning i alla rum i form av mini spottar. Plejd i hela huset, även ute belysning. 2 dörrar med Yale doorman.

Fakta – Ekebyvägen 560

Bostadstyp: Villa
Kommun: Helsingborg
Fastighetsbeteckning: Bårslöv 9:11
Storlek: 5 rum, 174 kvm boarea, 39 kvm biarea
Varav sovrum: 4
Föreslagen budstart: 6 495 000 kr
Energiprestanda: 54 kWh/kvm och år
Energiklass: B
Upplåtelseform: Friköpt
Pantbrev: Det finns 4 st pantbrev uttaget om sammanlagt 3 500 000 kr
Omgivning
Allmänt om området: På baksidan finns 4,5 hektar åkermark. Närmaste granne är 150 m bort.
Övrigt: Mitten av Gantofta, Påarp och Bårslöv. Bårslöv förskola. Pizzeria och livsmedel i Bårslöv, Gantofta Ica möllan, Pizzeria, förskolor, järnvägsstation.

Fakta – Byggnaden

Hus
Byggnadstyp: 1-plansvilla
Byggår: 2023
Fasad: Puts
Stomme: Lättbetong
Fönster: 3-glas isoler
Bjälklag: Trä
Utvändigt plåtarbete: Lackerad plåt
Tak: Betongpannor
Grundläggning: Betongplatta
Uppvärmning: Luft/vatten. LK system
Vatten och avlopp: Mini reningsverk. WSB clean 5PE. Borrad brunn för dricksvatten. Testat ok en gång per år. Filtersystem för mangan och järnfilter. Bredvid pumpen finns en buffert tank på 100liter.
Ventilation: FTX
Tomt, uteplats och bilplats
Tomtarea: 929 kvm

Driftkostnader

Totalsumma: 37 000 kr/år

I driftkostnaden ingår följande:
El: 24 000 kr/år
Renhållning: 2 400 kr/år
Försäkring: 6 000 kr/år
Övrigt: 4 600 kr/år

Driftkostnaden är beräknad på 3 personers hushåll.
Uppvärmning ingår i elkostnad. Övrigt avser: Serviceavtal Mini reningsverk, Water system.
Försäkringsbolag: Länsförsäkringar
Fullvärde: Ja

  • Denna bostad
  • Bostäder till salu via Erik Olsson

En riktigt lyckad

bostadsaffär

När du hittat ditt drömboende hjälper vi dig gärna att sälja din nuvarande bostad. För oss är det viktigt att du känner dig trygg både när du köper och säljer bostad via Erik Olsson. Därför är våra mäklare bland de vassaste och mest engagerade i branschen. Vi anstränger oss gärna lite extra för att din bostadsförsäljning ska bli perfekt. Hos oss får du en riktigt lyckad bostadsaffär – och bäst betalt.

Intresseanmälan

Få kontakt med en mäklare som är expert på just ditt område.

✶ Obligatoriska fält

Tillbaka till toppen