Hagastaden / STOCKHOLM

Hagaesplanaden 111

Eller högstbjudande: 15 990 000 kr
TIPSA

  • Inflyttningsklar, bli först att flytta in
  • Etagelägenhet
  • Egen takterrass på ca 46 kvm med fint solläge och utsikt över parken
  • Utekök och grill på terrassen
  • Stor balkong mot Norra Stationsparken
  • Genomgående sober färgskala och vackra materialval
  • Välutrustat kök med integrerade vitvaror
  • Golvvärme i hela lägenheten
  • Lyxigt master bedroom med klädkammare och eget badrum
  • Badrum med tvättmaskin och torktumlare
  • Källarförråd
  • Energieffektiv byggnad möjliggör Gröna bolån

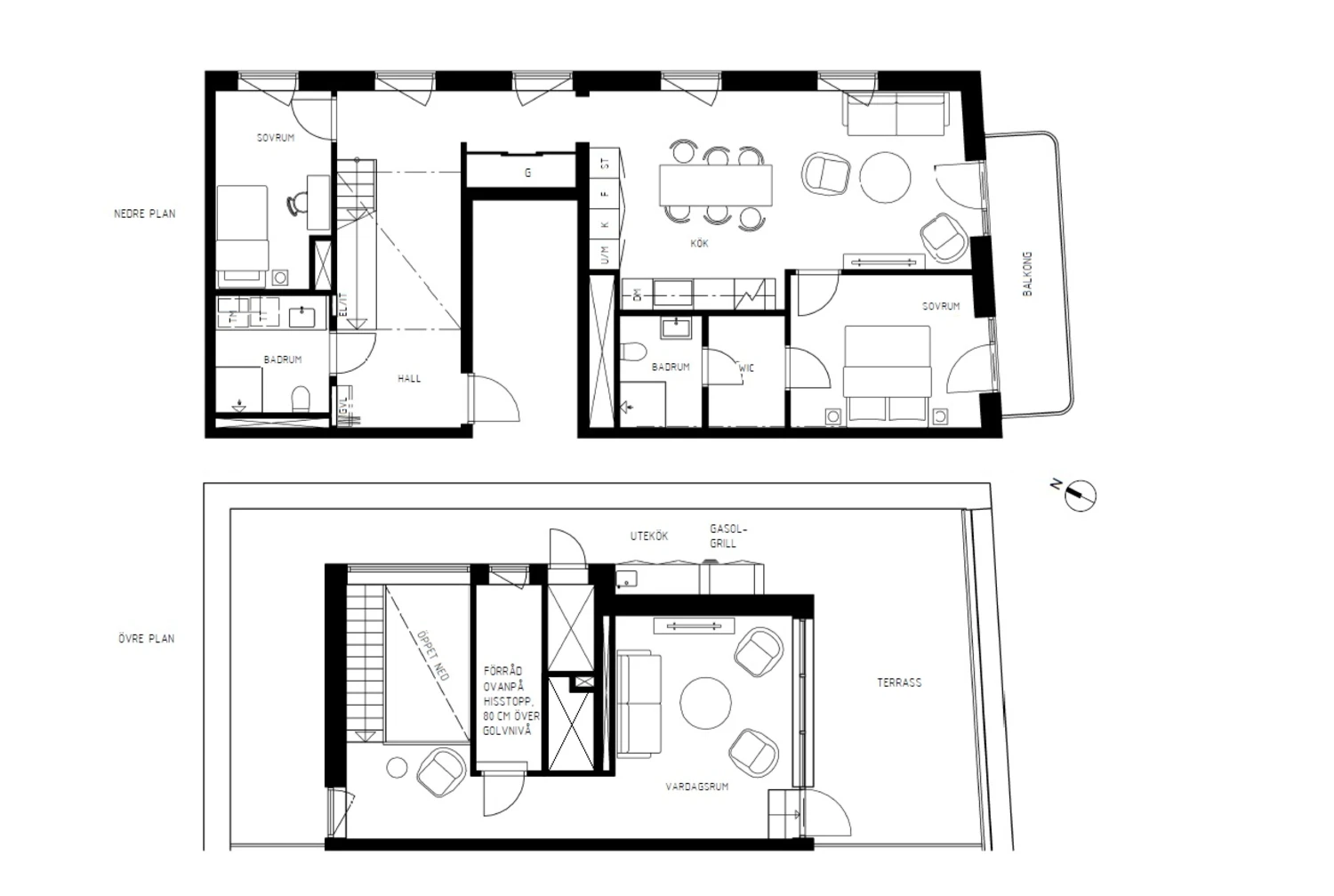
Högst upp i ett av Lokstallarna Östras hus finns denna inbjudande etagelägenhet med egen takterrass samt stor balkong mot Norra Stationsparken. Takterrassen om ca 46 kvm nås från lägenhetens övre våning och den sträcker sig runt tre sidor med den djupare delen i soligt söderläge mot parken, här finns ytor med plats för såväl matgrupp som soffor för mysigt häng. Med ett utekök utrustat med gasolgrill, diskho samt kyl blir det ett nöje att fixa middagen eller drinken här uppe. När vädret inte tillåter att sitta på terrassen kan man istället njuta av utsikten mot himmel och takåsar från det övre vardagsrummet, ett ljust och härligt rum med stort fönsterparti mot terrassen.

Köket hittar vi på entrévåningen, ett kök med vackra materialval där varma toner av mörkbetsad ek kombineras med ljusa sandfärgade luckor och bänkskiva i natursten. Välutrustat med micro och ugn i högskåp, i övrigt är vitvarorna integrerade vilket ger ett stilrent intryck. Matplatsen kan rymma både familj och vänner till middag och ligger i öppen planlösning mot det nedre vardagsrummet. Härifrån når man den stora balkongen med fint solläge och utsikt över Norra Stationsparken. Balkongen når man även från lägenhetens master bedroom, ett lyxigt sovrum med klädkammare och badrum ensuite. På entréplan finns ytterligare ett sovrum samt ett badrum med egen tvättmaskin och torktumlare. Och inte att förglömma, den välkomnande hallen med dubbel takhöjd, som direkt du kommer in i lägenheten ger en känsla av att det här är ett hem utöver det vanliga.

Snabbfakta
Avgift:
6 560 kr
inkl värme och kallvatten. Varmvatten och hushållsel mäts separat och debiteras enligt faktisk förbrukning (se driftskostnad för uppskattning av kostnad).
Rum:
4 rum och kök
Boarea:
116 kvm
Våning:
7 av 7
Eller högstbjudande:
15 990 000 kr
Byggnadsår:
2024
Planritning
Visningar
  • Hagaesplanaden 111, välkommen på visning!
    Torsdag 23 oktober 16:45 - 17:15

    Kontakta mäklaren

Mäklare

Lisa

Forsblad Beckman

ANSVARIG
MÄKLARE

  • Inflyttningsklar, bli först att flytta in
  • Etagelägenhet
  • Egen takterrass på ca 46 kvm med fint solläge och utsikt över parken
  • Utekök och grill på terrassen
  • Stor balkong mot Norra Stationsparken
  • Genomgående sober färgskala och vackra materialval
  • Välutrustat kök med integrerade vitvaror
  • Golvvärme i hela lägenheten
  • Lyxigt master bedroom med klädkammare och eget badrum
  • Badrum med tvättmaskin och torktumlare
  • Källarförråd
  • Energieffektiv byggnad möjliggör Gröna bolån

Högst upp i ett av Lokstallarna Östras hus finns denna inbjudande etagelägenhet med egen takterrass samt stor balkong mot Norra Stationsparken. Takterrassen om ca 46 kvm nås från lägenhetens övre våning och den sträcker sig runt tre sidor med den djupare delen i soligt söderläge mot parken, här finns ytor med plats för såväl matgrupp som soffor för mysigt häng. Med ett utekök utrustat med gasolgrill, diskho samt kyl blir det ett nöje att fixa middagen eller drinken här uppe. När vädret inte tillåter att sitta på terrassen kan man istället njuta av utsikten mot himmel och takåsar från det övre vardagsrummet, ett ljust och härligt rum med stort fönsterparti mot terrassen.

Köket hittar vi på entrévåningen, ett kök med vackra materialval där varma toner av mörkbetsad ek kombineras med ljusa sandfärgade luckor och bänkskiva i natursten. Välutrustat med micro och ugn i högskåp, i övrigt är vitvarorna integrerade vilket ger ett stilrent intryck. Matplatsen kan rymma både familj och vänner till middag och ligger i öppen planlösning mot det nedre vardagsrummet. Härifrån når man den stora balkongen med fint solläge och utsikt över Norra Stationsparken. Balkongen når man även från lägenhetens master bedroom, ett lyxigt sovrum med klädkammare och badrum ensuite. På entréplan finns ytterligare ett sovrum samt ett badrum med egen tvättmaskin och torktumlare. Och inte att förglömma, den välkomnande hallen med dubbel takhöjd, som direkt du kommer in i lägenheten ger en känsla av att det här är ett hem utöver det vanliga.

Visningar
  • Hagaesplanaden 111, välkommen på visning!
    Torsdag 23 oktober 16:45 - 17:15

    Kontakta mäklaren

TIPSA

Lisa

Forsblad Beckman

ANSVARIG
MÄKLARE

Rumsbeskrivning - Hagaesplanaden 111

Allmänt

Målade väggar. Parkettgolv från Kährs, enstav i ljus ek. Golvvärme. Fönsterbänkar i natursten kvartsit. Massiva innerdörrar. Garderober från Marbodal.

Hall

Hatthylla i svart metall och valnöt. Säkerhetsdörr. Digitalt lås, Yale Linus.

Kök

Kök från Marbodal med underskåp i brunbetsad ek, överskåp samt högskåp med lackad lucka i kulör sand. Bänkskiva med uppvik i natursten kvartsit. Blandare från Tapwell. Ledbelysning under bänskåp och vit spotlightskena i tak. Integrerad kyl, frys samt diskmaskin. Induktionshäll. Ugn och micro i högskåp. Samtliga vitvaror från Siemens. Integrerad spiskåpa från Franke.

Badrum/tvätt

Granitkeramik från Bricmate på väggar och golv samt målade väggar. Bänkskiva i natursten kvartsit med underlimmat tvättställ. Oval spegel med belysning. Överskåp i rökt ek. Takdusch och tvättställsblandare från Tapwell. Tvättmaskin och torktumlare från Bosch.

Badrum

Granitkeramik från Bricmate på väggar och golv samt målade väggar. Kommod med lådor och oval spegel med belysning. Takdusch och tvättställsblandare från Tapwell.

Fakta – Hagaesplanaden 111

Bostadstyp: Bostadsrätt
Kommun: Stockholm
Storlek: 4 rum och kök, 116 kvm boarea
Areakälla: föreningens information
Våning: 7 av 7
Lägenhetsnummer: 07072 (1702)
Eller högstbjudande: 15 990 000 kr
Månadsavgift: 6 560 kr
inkl värme och kallvatten.
Varmvatten och hushållsel mäts separat och debiteras enligt faktisk förbrukning (se driftskostnad för uppskattning av kostnad).
Andelstal: Andel av årsavgift 1,66 %
Indirekt nettoskuldsättning: 1 555 420 kr
Bostadsrättens indirekta nettoskuldsättning anger hur stor andel av bostadsrättsföreningens lån som indirekt belastar bostadsrätten. Andelen beräknas som andelstalet för avgifter multiplicerat med föreningens nettoskuldsättning. Den består av räntebärande skulder med avdrag för räntebärande tillgångar och likvida medel. Underlagen för beräkningen kommer från föreningen.
Energiklass: B
Tillträde: Enligt överenskommelse
Omgivning
Allmänt om området: Hagastaden är en växande stadsdel med flertalet populära restauranger, caféer och barer i området. Hemköp och Coop finns precis i närheten och likaså systembolag och gym. Vill man ta en paus från stadspulsen ligger Hagaparkens grönskande lugn inom kort promenadavstånd. Kommunikationerna är goda med bussar från bland annat Torsplan, på cirka 10 minuters promenad nås Odenplan med t-bana, bussar och pendeltåg. År 2028 beräknas den nya tunnelbanelinjen stå klar, den blir en förlängning av grön linje från Odenplan med ny station i Hagastaden.

Fakta – Brf Lokstallarna Östra

Äger föreningen marken: Ja
Antal lägenheter: 109
Antal lokaler: 5
Allmänt om föreningen: Föreningen har två gemensamma takterrasser. Den ena har plats för umgänge och matlagning och den andra har ett utegym.
Alla lägenheter har tillgång till ett förråd. Hissen går ner till förrådsplan.
Parkering: Föreningen förfogar inte över egna parkeringsplatser utan har tillgång till ett offentligt garage som förvaltas av Stockholm Parkering. Garaget nås via ett separat trapphus som ligger i Lokstallarna Västra. Inget trapphus går med hiss ner i garaget utan alla måste gå via detta separata trapphus eller något annat trapphus i området (trapphusen ägs av Stockholm Parkering som äger garaget och sköter uthyrning av parkeringsplatser).

För mer info om P-hus Hagastaden besök stockholmparkering.se

Det finns två bilpoolsplatser som administreras av OurGreenCar som de boende kan ansluta sig till utan att behöva betala månadsavgift de fem första åren tack vare att Einar Mattsson täcker upp och betalar den summan.
Överlåtelseavgift och pantsättning: En överlåtelseavgift tas ut om ca 1 470 kr som betalas av köparen. Vid belåning av bostaden tas en pantsättningsavgift ut om ca 588 kr/pant. Beloppen är beräknade på prisbasbeloppet för år 2025.
Hus
Byggår: 2024
Hiss: Hiss finns
Ventilation: Från- och tilluftsventilation med värmeåtervinning
Uppvärmning: Vattenburen golvvärme i lägenheten. Fastigheten är ansluten till fjärrvärme.
Tv och internet: I huset finns ett öppet fibernät via Zmarket. Det gör att medlemmarna själva kan välja leverantör för bredband, IP-TV och IP-telefoni.

Driftkostnader

Totalsumma: 19 450 kr/år

I driftkostnaden ingår följande:
El: 9 050 kr/år
VA: 7 400 kr/år
Försäkring: 3 000 kr/år

Driftkostnaden är beräknad på 4 personers hushåll.
Eftersom ingen har bott i bostaden är driftskostnad beräknad enligt schablon. Driftskostnaden för ny ägare kan bli högre eller lägre.

  • Denna bostad
  • Bostäder till salu via Erik Olsson

En riktigt lyckad

bostadsaffär

När du hittat ditt drömboende hjälper vi dig gärna att sälja din nuvarande bostad. För oss är det viktigt att du känner dig trygg både när du köper och säljer bostad via Erik Olsson. Därför är våra mäklare bland de vassaste och mest engagerade i branschen. Vi anstränger oss gärna lite extra för att din bostadsförsäljning ska bli perfekt. Hos oss får du en riktigt lyckad bostadsaffär – och bäst betalt.

Intresseanmälan

Få kontakt med en mäklare som är expert på just ditt område.

✶ Obligatoriska fält

Tillbaka till toppen