Ekerö / EKERÖ

Utkiksgränd 3

Budstart: 4 990 000 kr
TIPSA
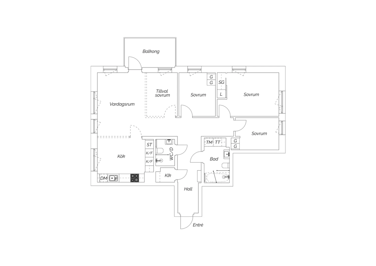
Stilren fyrarummare med dubbla badrum, balkong och möjlighet till fem rum

Välkommen till ett hem som kombinerar modern elegans med praktisk funktion och generösa ytor för hela familjen. Här bor du i en ljus och välplanerad fyrarummare med balkong mot grön och lugn innergård – en bostad som med enkelhet kan disponeras som fem rum för den som önskar ytterligare ett sovrum eller ett hemmakontor.

Redan i hallen möts du av en välkomnande atmosfär med gott om förvaring i en rymlig klädkammare. Härifrån nås bostadens två badrum – båda med stilren design, helkaklade väggar, klinkergolv och moderna detaljer som glasväggar, spotlights och egen tvättdel med både tvättmaskin och torktumlare.

Köket från Vedum går i en modern och tidlös stil med släta vita luckor, grå bänkskiva och integrerade vitvaror från Electrolux. Här finns gott om arbetsyta, dubbla kyl/frysar och plats för stora middagar i öppen planlösning mot det ljusa vardagsrummet – bostadens naturliga samlingspunkt.

Från vardagsrummet nås den trivsamma balkongen som bjuder på sol och vy mot föreningens lugna innergård – perfekt för morgonkaffet, middagar i kvällssolen eller avkopplande stunder med familj och vänner.

De tre befintliga sovrummen är välplanerade med gott om garderober, och master bedroom med bra yta för dubbelsäng och förvaring. Tack vare planlösningen finns dessutom möjlighet att skapa ett fjärde sovrum – utan att göra avkall på rymd och ljus.

Genomgående vitmålade väggar, trestavsparkett och smakfulla materialval skapar en harmonisk och enhetlig känsla i hela hemmet.

Här erbjuds ett boende som är både funktionellt och elegant – ett hem som växer med familjen och anpassar sig efter livets alla skeden.

Familjevänligt område i Ekerö Strand
Tegelbruket byggs i det nya familjevänliga området Ekerö Strand, med ett lugnt läge intill Mälaren och Tappströmskanalen. Mitt emot kvarteret ligger en nybyggd förskola och det är gångavstånd till flera förskolor och skolor. I populära Ekebyhov hittar du det nyanlagda aktivitetsområdet med lekpark, skatepark, utegym och hundrastgård. Ett stenkast från kvarteret ligger Tappströmskanalen, som har en vacker strandpromenad och brygga med glasskiosk.

Intill Ekerö Centrum
I Tegelbruket bor du precis intill Ekerö Centrum och har nära till allt du behöver. I Ekerö Centrum finns det ett brett utbud av butiker och restauranger samt vårdcentral, gym, bio och bibliotek. Det är också en knutpunkt, härifrån går bussar till Brommaplan där du kan byta till tunnelbanans gröna linje. Från Tappström går även pendlarbåten till Klara Mälarstrand i Stockholm.

Snabbfakta
Avgift:
5 677 kr
I avgiften ingår värme och kallvatten. Obligatoriskt tillägg på 230 kr/mån för tv/bredband.
Rum:
4 rum och kök
Boarea:
95 kvm
Våning:
1 av 4
Budstart:
4 990 000 kr
Planritning
Visningar
  • Öppen visning, föranmäl dig gärna
    Söndag 19 oktober 12:05 - 12:35

    Kontakta mäklaren

Mäklare

Christian

Karatas

ANSVARIG
MÄKLARE

Stilren fyrarummare med dubbla badrum, balkong och möjlighet till fem rum

Välkommen till ett hem som kombinerar modern elegans med praktisk funktion och generösa ytor för hela familjen. Här bor du i en ljus och välplanerad fyrarummare med balkong mot grön och lugn innergård – en bostad som med enkelhet kan disponeras som fem rum för den som önskar ytterligare ett sovrum eller ett hemmakontor.

Redan i hallen möts du av en välkomnande atmosfär med gott om förvaring i en rymlig klädkammare. Härifrån nås bostadens två badrum – båda med stilren design, helkaklade väggar, klinkergolv och moderna detaljer som glasväggar, spotlights och egen tvättdel med både tvättmaskin och torktumlare.

Köket från Vedum går i en modern och tidlös stil med släta vita luckor, grå bänkskiva och integrerade vitvaror från Electrolux. Här finns gott om arbetsyta, dubbla kyl/frysar och plats för stora middagar i öppen planlösning mot det ljusa vardagsrummet – bostadens naturliga samlingspunkt.

Från vardagsrummet nås den trivsamma balkongen som bjuder på sol och vy mot föreningens lugna innergård – perfekt för morgonkaffet, middagar i kvällssolen eller avkopplande stunder med familj och vänner.

De tre befintliga sovrummen är välplanerade med gott om garderober, och master bedroom med bra yta för dubbelsäng och förvaring. Tack vare planlösningen finns dessutom möjlighet att skapa ett fjärde sovrum – utan att göra avkall på rymd och ljus.

Genomgående vitmålade väggar, trestavsparkett och smakfulla materialval skapar en harmonisk och enhetlig känsla i hela hemmet.

Här erbjuds ett boende som är både funktionellt och elegant – ett hem som växer med familjen och anpassar sig efter livets alla skeden.

Familjevänligt område i Ekerö Strand
Tegelbruket byggs i det nya familjevänliga området Ekerö Strand, med ett lugnt läge intill Mälaren och Tappströmskanalen. Mitt emot kvarteret ligger en nybyggd förskola och det är gångavstånd till flera förskolor och skolor. I populära Ekebyhov hittar du det nyanlagda aktivitetsområdet med lekpark, skatepark, utegym och hundrastgård. Ett stenkast från kvarteret ligger Tappströmskanalen, som har en vacker strandpromenad och brygga med glasskiosk.

Intill Ekerö Centrum
I Tegelbruket bor du precis intill Ekerö Centrum och har nära till allt du behöver. I Ekerö Centrum finns det ett brett utbud av butiker och restauranger samt vårdcentral, gym, bio och bibliotek. Det är också en knutpunkt, härifrån går bussar till Brommaplan där du kan byta till tunnelbanans gröna linje. Från Tappström går även pendlarbåten till Klara Mälarstrand i Stockholm.

Visningar
  • Öppen visning, föranmäl dig gärna
    Söndag 19 oktober 12:05 - 12:35

    Kontakta mäklaren

TIPSA

Christian

Karatas

ANSVARIG
MÄKLARE

Fakta – Utkiksgränd 3

Bostadstyp: Bostadsrätt
Kommun: Ekerö
Storlek: 4 rum och kök, 95 kvm boarea
Areakälla: Enligt ekonomisk plan
Våning: 1 av 4
Lägenhetsnummer: 31104
Budstart: 4 990 000 kr
Månadsavgift: 5 677 kr
I avgiften ingår värme och kallvatten. Obligatoriskt tillägg på 230 kr/mån för tv/bredband.
Andelstal: Andel i förening 1,276 %
Indirekt nettoskuldsättning: 1 096 900 kr
Bostadsrättens indirekta nettoskuldsättning anger hur stor andel av bostadsrättsföreningens lån som indirekt belastar bostadsrätten. Andelen beräknas som andelstalet för avgifter multiplicerat med föreningens nettoskuldsättning. Den består av räntebärande skulder med avdrag för räntebärande tillgångar och likvida medel. Underlagen för beräkningen kommer från föreningen.

Fakta – BRF Tegelbruket På Ekerö

Antal lägenheter: 98
Antal lokaler: 2
Allmänt om föreningen: BRF Tegelbruket På Ekerö är en äkta bostadsrättsförening. I föreningen finns 98 lägenheter och 2 lokaler. Föreningen äger marken.

I föreningen finns cykel- och barnvagnsförråd.

På trevliga innergården finns cykelparkering.

Föreningen har en grönskande inner­gård med gott om mysiga platser där du kan koppla av med familj och vänner eller ta en stund för dig själv. Växtligheten på gården har valts med stor omsorg och följer årstidernas skift­ningar. Här har man även en sandlåda och en klätterställning för barnen.
Parkering: Föreningen har 41 st öppna p-platser för 500 kr/mån, 15 st öppna p-plastser laddplatser för 800 kr/mån, 2 st öppna hushållsplatser för 400kr/mån samt 14 st öppna hushållsplatser laddplatser för 700kr/mån. För närvarande inga lediga platser, dock ingen som står i kö.
Hus
Hiss: Hiss finns
Tv och internet: Föreningen har tecknat kollektivt avtal med Telia tripple-play för 230 kr/månad för Bredband och TV.

Driftkostnader

Totalsumma: 10 489 kr/år

I driftkostnaden ingår följande:
El: 4 855 kr/år
VA: 3 034 kr/år
Försäkring: 2 600 kr/år

Driftkostnaden är beräknad på 4 personers hushåll.
Enligt ekonomisk plan

  • Denna bostad
  • Bostäder till salu via Erik Olsson

En riktigt lyckad

bostadsaffär

När du hittat ditt drömboende hjälper vi dig gärna att sälja din nuvarande bostad. För oss är det viktigt att du känner dig trygg både när du köper och säljer bostad via Erik Olsson. Därför är våra mäklare bland de vassaste och mest engagerade i branschen. Vi anstränger oss gärna lite extra för att din bostadsförsäljning ska bli perfekt. Hos oss får du en riktigt lyckad bostadsaffär – och bäst betalt.

Intresseanmälan

Få kontakt med en mäklare som är expert på just ditt område.

✶ Obligatoriska fält

Tillbaka till toppen