Löddesnäs / Bjärred

Domarevägen 1

Föreslagen budstart: 6 250 000 kr
TIPSA
Ljus familjevilla med tre sovrum, solig trädgård och insynsskyddad hörntomt

  • Öppen planlösning
  • Generöst ljusinsläpp
  • Tre sovrum
  • Badrum och WC
  • Gott om förvaring
  • Varmförråd och garage
  • Stora skjutdörrspartier
  • Uteplatser i soligt sydvästläge
  • Insynsskyddad tomt
  • Lättskött trädgård
  • Hörnläge
  • Barnvänligt område
  • Skola & förskola på nära håll
  • Nära fotbollsplan, basket och tennis
  • Kort promenad till havet
  • Kollektivtrafik nära

Välkommen till Löddesnäs och Domarevägen 1! Här bor du i ett hem med en härlig öppen planlösning där ljuset flödar in från flera håll och skapar en luftig atmosfär. Från de sociala ytorna når du enkelt trädgården via flera utgångar i markplan, vilket gör att inne och ute smälter samman på ett naturligt sätt.

Trädgården är lättskött och genomtänkt med vintergröna planteringar som ger liv året runt. Här finns flera uteplatser i soligt sydvästläge, perfekta för både stilla morgonkaffe och långa sommarkvällar. Den större delen av tomten är helt insynsskyddad tack vare grönskande murgröna och skapar en privat oas att njuta av i lugn och ro.

Bostaden erbjuder tre välplanerade sovrum, ett badrum samt en separat WC som är praktiskt för både familjeliv och gäster. Det finns dessutom gott om förvaring i både klädkammare, varmförråd och garage, vilket gör det enkelt att hålla ordning i vardagen.

Fastigheten är belägen på en hörntomt vilket förstärker känslan av frihet och avskildhet, och läget är barnvänligt och mycket uppskattat. Här erbjuds gångavstånd till skola, fotbollsplan, lekplatser, basketplan, tennisbana och busshållplats och på cykelavstånd finns all övrig service som Bjärred erbjuder, såsom mataffärer, restauranger, gym, apotek och frisör.

Välkommen på visning!

Snabbfakta
Rum:
5
Varav sovrum:
3
Boarea:
142 kvm
Biarea:
29 kvm
Tomtarea:
550 kvm
Föreslagen budstart:
6 250 000 kr
Byggnadsår:
1970
Fastighetsbeteckning:
Löddesnäs 9:16
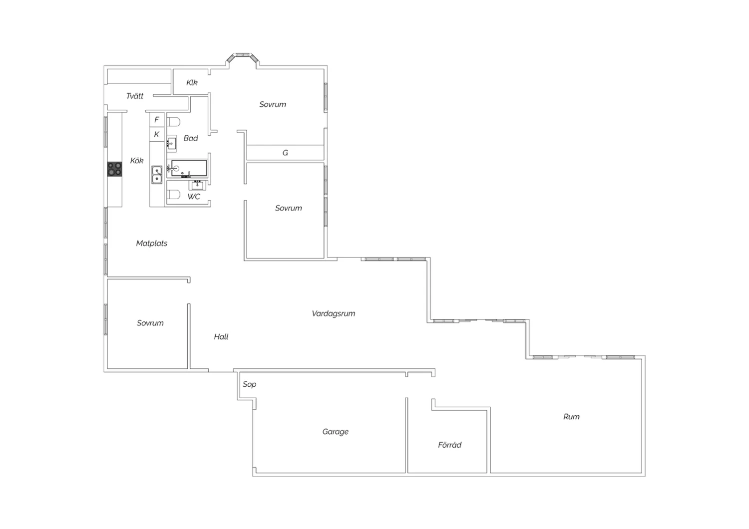
Planritning
e-prospekt
Visningar
  • Bokad visning, anmälan via boka-knappen, välkomna!
    Söndag 19 oktober 13:00 - 13:30
    Boka
Mäklare

Gustaf

Hafström

ANSVARIG
MÄKLARE

Ljus familjevilla med tre sovrum, solig trädgård och insynsskyddad hörntomt

  • Öppen planlösning
  • Generöst ljusinsläpp
  • Tre sovrum
  • Badrum och WC
  • Gott om förvaring
  • Varmförråd och garage
  • Stora skjutdörrspartier
  • Uteplatser i soligt sydvästläge
  • Insynsskyddad tomt
  • Lättskött trädgård
  • Hörnläge
  • Barnvänligt område
  • Skola & förskola på nära håll
  • Nära fotbollsplan, basket och tennis
  • Kort promenad till havet
  • Kollektivtrafik nära

Välkommen till Löddesnäs och Domarevägen 1! Här bor du i ett hem med en härlig öppen planlösning där ljuset flödar in från flera håll och skapar en luftig atmosfär. Från de sociala ytorna når du enkelt trädgården via flera utgångar i markplan, vilket gör att inne och ute smälter samman på ett naturligt sätt.

Trädgården är lättskött och genomtänkt med vintergröna planteringar som ger liv året runt. Här finns flera uteplatser i soligt sydvästläge, perfekta för både stilla morgonkaffe och långa sommarkvällar. Den större delen av tomten är helt insynsskyddad tack vare grönskande murgröna och skapar en privat oas att njuta av i lugn och ro.

Bostaden erbjuder tre välplanerade sovrum, ett badrum samt en separat WC som är praktiskt för både familjeliv och gäster. Det finns dessutom gott om förvaring i både klädkammare, varmförråd och garage, vilket gör det enkelt att hålla ordning i vardagen.

Fastigheten är belägen på en hörntomt vilket förstärker känslan av frihet och avskildhet, och läget är barnvänligt och mycket uppskattat. Här erbjuds gångavstånd till skola, fotbollsplan, lekplatser, basketplan, tennisbana och busshållplats och på cykelavstånd finns all övrig service som Bjärred erbjuder, såsom mataffärer, restauranger, gym, apotek och frisör.

Välkommen på visning!

Visningar
  • Bokad visning, anmälan via boka-knappen, välkomna!
    Söndag 19 oktober 13:00 - 13:30
    Boka
TIPSA

Gustaf

Hafström

ANSVARIG
MÄKLARE

Rumsbeskrivning - Domarevägen 1

HALL

Härdat vitlackat trägolv från Bjelin och mörkgrå klinker, väggar målade i vitt. Förvaring i garderob. Spotlights och säkerhetsdörr.

KÖK

Härdat vitlackat trägolv från Bjelin och väggar målade i vitt. Köksinredning från NordDesign Kök i vitt, bänkskiva i trä och rostfritt stål, stänkskydd i vitt kakel. Köket är utrustat med kyl/ frys (Husqvarna, 2013), induktionshäll, inbyggd ugn, inbyggd mikro, diskmaskin (Siemens, 2009) och fläkt (Siemens, 2022). Matplats för cirka 4 personer.

VARDAGSRUM

Härdat vitlackat trägolv från Bjelin i matsalsrummet och ljus klinker i allrum, väggar målade i vitt. Stora fönsterpartier med skjutdörrar för utgång till trädgården. Golvvärme (i tillbyggnad) och spotlights med dimmer.

SOVRUM

Härdat vitlackat trägolv från Bjelin och väggar målade i vitt. Förvaring i fem garderober och klädkammare med laminatparkett och vit strukturtapet.

SOVRUM

Härdat vitlackat trägolv från Bjelin och väggar målade i vitt. Förvaring i garderob.

SOVRUM

Härdat vitlackat trägolv från Bjelin och väggar målade i vitt. Förvaring i garderob.

BADRUM

Flerfärgad klinker och flerfärgad samt vitt kakel. Badrummet är utrustat med WC, handfat med kommod, spegel, dusch och badkar.

WC

Vit klinker och kakel. Badrummet är utrustat med WC, handfat med kommod och spegelskåp.

TVÄTTSTUGA

Laminatgolv och väggar delvis kaklade och delvis målade i vitt. Tvättstugan är utrustad med tvättmaskin (Bosch, 2010), torktumlare, arbetsbänk och överskåp.

VARMFÖRRÅD

Klinker och vitmålade väggar. Storlek cirka 6 kvm.

KALLGARAGE

Betongplatta och gipsskivor. Integrerat med huset. Storlek cirka 20 kvadratmeter, går att nå från huset och via garageport.

RENOVERINGAR

1999: Samtliga ytterväggsyllar byttes (dokumentation finns). 2005: Badrum renoverades. 2008: Gäst-WC renoverades. 2009: Nytt kök från Nord Design installerades. Tillbyggnad uppfördes med fönster och skjutdörrar från Schüco. 2011: Tvättstuga renoverades. 2012: Samtliga fönster och två altandörrar byttes till Elitfönster aluminium. Ny ytterdörr vid groventré installerades samt ny ytterpanel sattes. 2013: Fasaden målades. Ny kyl och frys från Husqvarna installerades. 2014: Ny takpapp lades. Trädäck anlades och trädgården gjordes i ordning. 2021: Ny ytterdörr från Diplomat installerades. Nya golv från Bjelin lades i hela huset, förutom i tillbyggnaden. 2022: Ny köksfläkt från Siemens installerades.

Fakta – Domarevägen 1

Bostadstyp: Villa
Kommun: Lomma
Fastighetsbeteckning: Löddesnäs 9:16
Storlek: 5 rum, 142 kvm boarea, 29 kvm biarea
Varav sovrum: 3
Areakälla: taxeringsinformation
Föreslagen budstart: 6 250 000 kr
Energiprestanda: 121 kWh/kvm och år
Energiklass: D
Planbestämmelser: Tomtindelning (1968-11-21) Stadsplan (1967-09-22)
Upplåtelseform: Friköpt
Pantbrev: Det finns 3 st pantbrev uttaget om sammanlagt 3 761 000 kr
Taxeringsvärde: 4 876 000 kr
Taxeringsår: 2024
Byggnadsvärde: 3 016 000 kr
Markvärde: 1 860 000 kr
Fastighetsavgift: 10 074 kr/år

Fakta – Byggnaden

Hus
Byggnadstyp: 1-plansvilla
Byggår: 1970
Ombyggt 2009
Fasad: Slammat tegel, trä och puts.
Stomme: Tegel och trä
Fönster: 3-glas, isolerrutor och energiglas
Tak: Papp och plåt
Grundläggning: Betongplatta
Uppvärmning: Vattenburen värme med luft-/vattenpump samt elpanna. Golvvärme i tillbyggnad.
Vatten och avlopp: Kommunalt vatten året om. Kommunalt avlopp
Ventilation: Mekanisk frånluft
Tomt, uteplats och bilplats
Tomtarea: 550 kvm
Tomttyp: Trädgårdstomt
Beskrivning uteplats: Altan om cirka 50 kvadratmeter i sydvästläge med sol större delen av dagen.
Beskrivning bilplats: Parkering i garage och på uppfart.

Driftkostnader

Totalsumma: 49 649 kr/år

I driftkostnaden ingår följande:
El: 31 649 kr/år
VA: 9 601 kr/år
Renhållning: 3 270 kr/år
Försäkring: 5 129 kr/år

Driftkostnaden är beräknad på 4 personers hushåll.
Observera att kostnaderna är beräknade enligt nuvarande ägares avtal och kan variera för nästa boende.
Fullvärde: Ja
Elförbrukning: 11 257 kWh/år

Utöver detta tillkommer kostnad för fastighetsavgift/skatt på 10 074 kr/år.

  • Denna bostad
  • Bostäder till salu via Erik Olsson

En riktigt lyckad

bostadsaffär

När du hittat ditt drömboende hjälper vi dig gärna att sälja din nuvarande bostad. För oss är det viktigt att du känner dig trygg både när du köper och säljer bostad via Erik Olsson. Därför är våra mäklare bland de vassaste och mest engagerade i branschen. Vi anstränger oss gärna lite extra för att din bostadsförsäljning ska bli perfekt. Hos oss får du en riktigt lyckad bostadsaffär – och bäst betalt.

Intresseanmälan

Få kontakt med en mäklare som är expert på just ditt område.

✶ Obligatoriska fält

Tillbaka till toppen