Skåre / Trelleborg

Klapperåsvägen 8

Föreslagen budstart: 5 750 000 kr
TIPSA
Stilfull och gedigen villa i eftertraktade Skåre!

  • Gedigen familjevilla
  • Solceller installerade 2024
  • Exklusiv inredd källare
  • 100 meter till havet
  • Smakfulla färger och materialval
  • Braskamin i vardagsrummet
  • Vackert anlagd trädgård
  • Fina uteplatser och utekök
  • Rymligt kök med matsalsdel
  • Genomgående klinkergolv
  • Promenadavstånd till småbåtshamn
  • Nära golf, bad och service

Välkommen till denna mycket välskötta villa i Skåres nyare del, endast ett stenkast från havet. Här erbjuds ett hem där gedigen konstruktion möter stilfull design och genomtänkta detaljer, en villa som genomsyras av både kvalitet och omtanke.

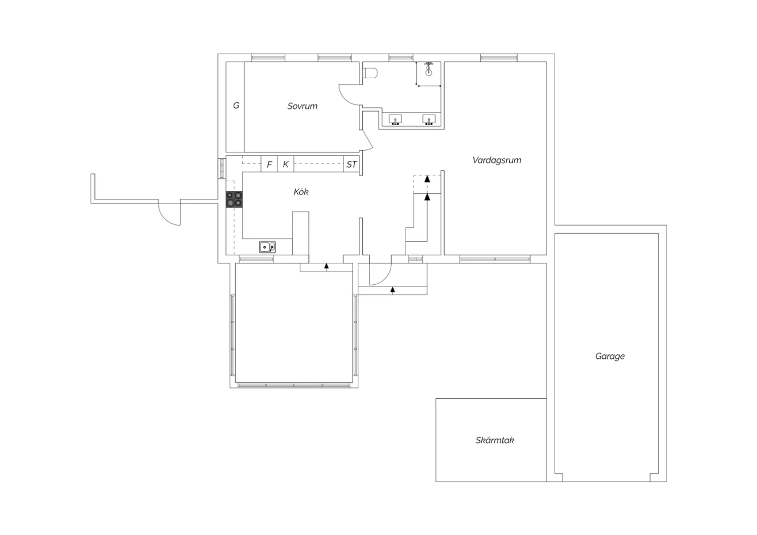
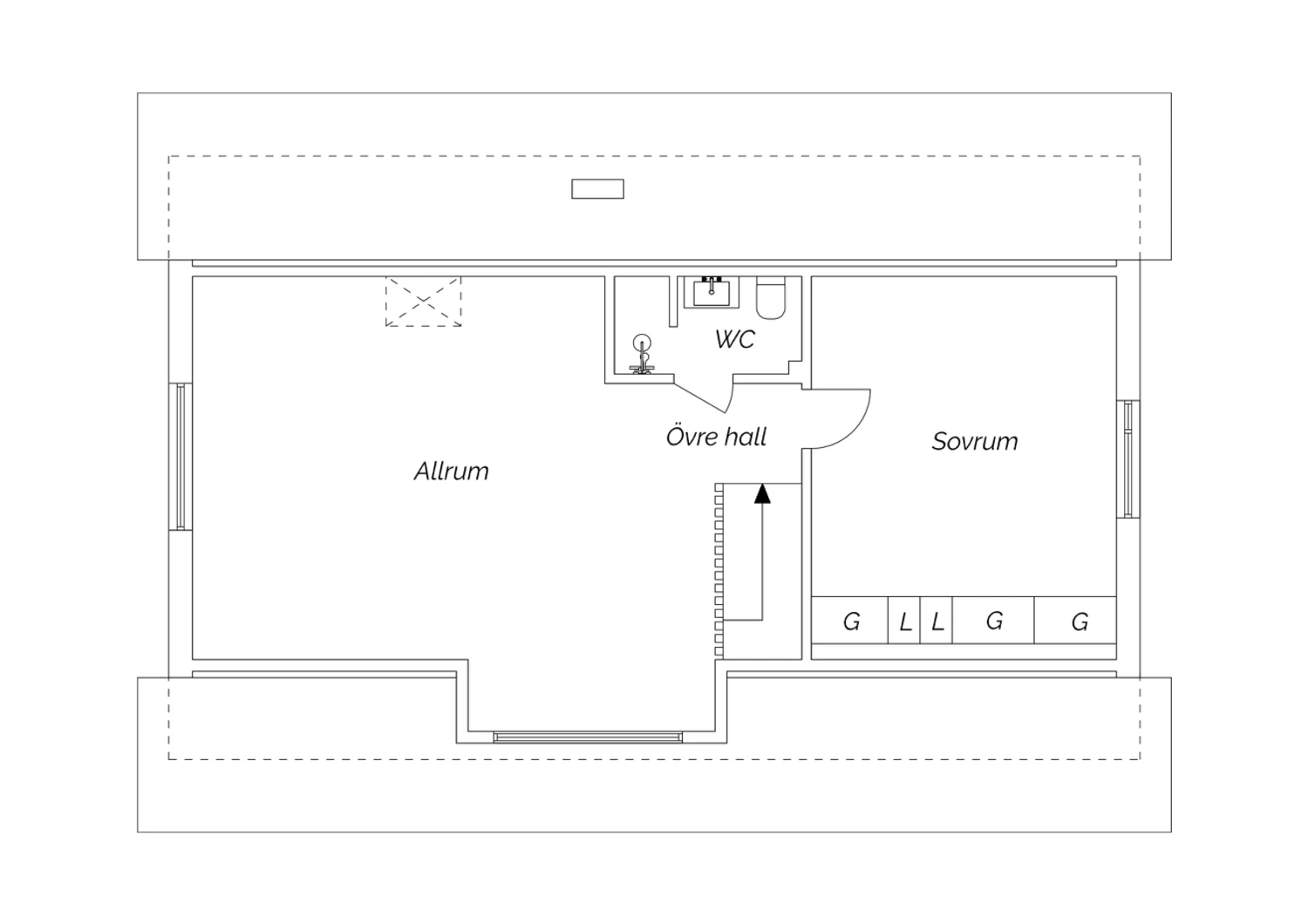
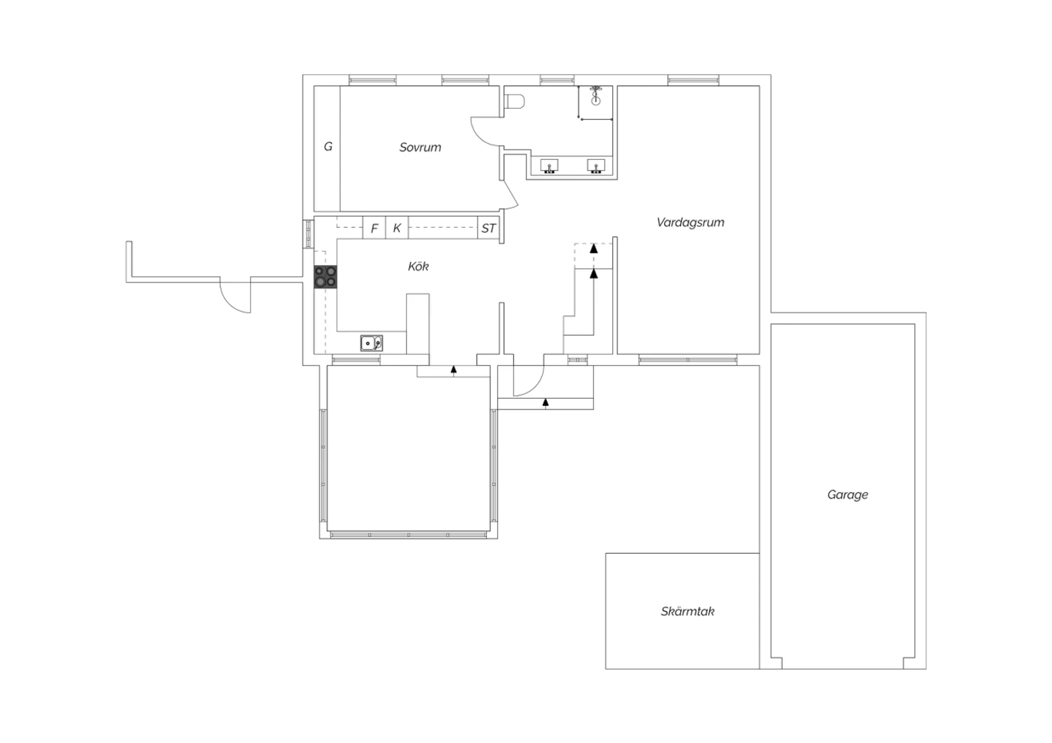
Huset om ca 160 kvm boarea kompletteras av en exklusivt inredd källare med hotellkänsla, vilket gör att varje kvadratmeter känns användbar. Den solida konstruktionen med betongbjälklag på alla plan ger en solid känsla av kvalitet. Interiören präglas av rymliga sällskapsytor, smakfulla färgval och gedigna material. I vardagsrummet skapar en elegant braskamin i täljsten både värme och atmosfär, och hela bottenvåningen har ett enhetligt och vackert klinkergolv. Köket ligger i direkt anslutning till den tillbyggda matsalen, där skjutbara glaspartier öppnar upp mot trädgården och knyter samman inne med ute på bästa sätt.

Utemiljön är minst lika imponerande som huset. Här väntar en parkliknande trädgård med stensättningar, vackra planteringar och välvuxna träd och buskar. Välplanerade uteplatser erbjuder sol och skugga efter behov, och det praktiska uteköket med matplats under tak blir sommarens givna samlingspunkt. På framsidan finns garage och uppfart för två bilar, medan baksidan bjuder på plats för odlingar och barnlek.

Läget är oslagbart. Här bor du endast 100 meter från havet och på promenadavstånd till Skåre småbåtshamn. En kort cykeltur tar dig till Skansarnas badplats med brygga och grillplats, Trelleborgs golfklubb nås på bara några minuter och Höllviken centrum ligger endast 8 km bort. Service finns nära till hands med både ICA Maxi och Trelleborg centrum på kort avstånd. En gång och cykelväg är planerad att anläggas mellan Skåre och Trelleborg. Planerad byggstart 2025-2026.

Detta är ett hem som förenar allt – gedigen kvalitet, lyxig känsla och ett eftertraktat läge. En villa som verkligen bör upplevas på plats.

Snabbfakta
Rum:
5
Varav sovrum:
3 - 4
Boarea:
160 kvm
Biarea:
82 kvm
Tomtarea:
791 kvm
Föreslagen budstart:
5 750 000 kr
Byggnadsår:
1970
Fastighetsbeteckning:
Maglarp 63:3
Planritning
e-prospekt
Visningar
  • Bokad visning - anmälan krävs
    Lördag 18 oktober 12:45 - 13:30
    Boka
Mäklare

Klaus

Lohmeier

ANSVARIG
MÄKLARE

Stilfull och gedigen villa i eftertraktade Skåre!

  • Gedigen familjevilla
  • Solceller installerade 2024
  • Exklusiv inredd källare
  • 100 meter till havet
  • Smakfulla färger och materialval
  • Braskamin i vardagsrummet
  • Vackert anlagd trädgård
  • Fina uteplatser och utekök
  • Rymligt kök med matsalsdel
  • Genomgående klinkergolv
  • Promenadavstånd till småbåtshamn
  • Nära golf, bad och service

Välkommen till denna mycket välskötta villa i Skåres nyare del, endast ett stenkast från havet. Här erbjuds ett hem där gedigen konstruktion möter stilfull design och genomtänkta detaljer, en villa som genomsyras av både kvalitet och omtanke.

Huset om ca 160 kvm boarea kompletteras av en exklusivt inredd källare med hotellkänsla, vilket gör att varje kvadratmeter känns användbar. Den solida konstruktionen med betongbjälklag på alla plan ger en solid känsla av kvalitet. Interiören präglas av rymliga sällskapsytor, smakfulla färgval och gedigna material. I vardagsrummet skapar en elegant braskamin i täljsten både värme och atmosfär, och hela bottenvåningen har ett enhetligt och vackert klinkergolv. Köket ligger i direkt anslutning till den tillbyggda matsalen, där skjutbara glaspartier öppnar upp mot trädgården och knyter samman inne med ute på bästa sätt.

Utemiljön är minst lika imponerande som huset. Här väntar en parkliknande trädgård med stensättningar, vackra planteringar och välvuxna träd och buskar. Välplanerade uteplatser erbjuder sol och skugga efter behov, och det praktiska uteköket med matplats under tak blir sommarens givna samlingspunkt. På framsidan finns garage och uppfart för två bilar, medan baksidan bjuder på plats för odlingar och barnlek.

Läget är oslagbart. Här bor du endast 100 meter från havet och på promenadavstånd till Skåre småbåtshamn. En kort cykeltur tar dig till Skansarnas badplats med brygga och grillplats, Trelleborgs golfklubb nås på bara några minuter och Höllviken centrum ligger endast 8 km bort. Service finns nära till hands med både ICA Maxi och Trelleborg centrum på kort avstånd. En gång och cykelväg är planerad att anläggas mellan Skåre och Trelleborg. Planerad byggstart 2025-2026.

Detta är ett hem som förenar allt – gedigen kvalitet, lyxig känsla och ett eftertraktat läge. En villa som verkligen bör upplevas på plats.

Visningar
  • Bokad visning - anmälan krävs
    Lördag 18 oktober 12:45 - 13:30
    Boka
TIPSA

Klaus

Lohmeier

ANSVARIG
MÄKLARE

Fakta – Klapperåsvägen 8

Bostadstyp: Villa
Kommun: Trelleborg
Fastighetsbeteckning: Maglarp 63:3
Storlek: 5 rum, 160 kvm boarea, 82 kvm biarea
Varav sovrum: 3 - 4
Areakälla: taxeringsinformation
Föreslagen budstart: 5 750 000 kr
Planbestämmelser: Byggnadsplan (1965-06-14)
Upplåtelseform: Friköpt
Pantbrev: Det finns 8 st pantbrev uttaget om sammanlagt 3 500 000 kr
Taxeringsvärde: 4 649 000 kr
Taxeringsår: 2024
Byggnadsvärde: 2 996 000 kr
Markvärde: 1 653 000 kr
Fastighetsavgift: 10 074 kr/år

Fakta – Byggnaden

Hus
Byggnadstyp: 1½-plansvilla med källare
Byggår: 1970
Fasad: Målad mexisten
Stomme: Betong/lättbetong
Fönster: 3-glas isolerrutor
Bjälklag: Betong
Tak: Betongpannor
Grundläggning: Källare/betongplatta
Uppvärmning: El med golvvärme i kök, badrum, matsal, v-rum, sov bv, tvättstuga, hall, källare
Vatten och avlopp: Kommunalt vatten året om. Kommunalt avlopp
Ventilation: Självdrag samt mekanisk i kök och på vinden.
Övrigt om byggnaden:
RENOVERINGAR
2013 - Nya fönster, Fönsterfabriken
2013 - Tilläggsisolering av vind, eget arbete
2018 - Nya fönster och renovering av takkupa, Fönsterfabriken
2018 - Motordriven markis med sol- och vindsensor vid takkupa
2020 - Ny el i kök och på uteplats, EA installationer
2021 - Utbyggnad matsal/uterum, ca 18 kvm
2021 - Trädäck, ca 15 kvm, eget arbete
2023 - Ny dragning av vatten, Trelleborgs rörservice
2023 - Ny luftvärmepump, Trelleborgs rörservice
2023 - Kalkfilter installerat (EMI 2500), Trelleborgs rörservice
2024 - Laddbox till bil, Byggcity
2024 - Tak över uteplatsen, Byggcity
2024 - Ny takpapp på garage och uteplats, Byggcity
2024 - Utekök, eget arbete
2024 - Omfogning gavlar, Byggcity
2024 - Ny ytterdörr (kodlås), Byggcity
2024 - Solpaneler, Byggcity
2025 - Köksfläkt
Tomt, uteplats och bilplats
Tomtarea: 791 kvm
Tomttyp: Trädgårdstomt

Driftkostnader

Totalsumma: 54 928 kr/år

I driftkostnaden ingår följande:
El: 42 728 kr/år
VA: 11 500 kr/år
Sotning: 500 kr/år
Väg/samfällighetsavgift: 200 kr/år

Driftkostnaden är beräknad på 2 personers hushåll.
Kostnaden för renhållning ingår i kostnaden för VA.
Försäkringsbolag: Trygg Hansa
Fullvärde: Ja
Elförbrukning: 22 000 kWh/år

Utöver detta tillkommer kostnad för fastighetsavgift/skatt på 10 074 kr/år.

  • Denna bostad
  • Bostäder till salu via Erik Olsson

En riktigt lyckad

bostadsaffär

När du hittat ditt drömboende hjälper vi dig gärna att sälja din nuvarande bostad. För oss är det viktigt att du känner dig trygg både när du köper och säljer bostad via Erik Olsson. Därför är våra mäklare bland de vassaste och mest engagerade i branschen. Vi anstränger oss gärna lite extra för att din bostadsförsäljning ska bli perfekt. Hos oss får du en riktigt lyckad bostadsaffär – och bäst betalt.

Intresseanmälan

Få kontakt med en mäklare som är expert på just ditt område.

✶ Obligatoriska fält

Tillbaka till toppen