Rörsjöstaden / Malmö

Drottninggatan 6B

Föreslagen budstart: 995 000 kr
TIPSA
Ljus etta på perfekt cityläge!

  • Vänd mot innergård
  • Rofyllt belägen lgh
  • Ljusa ytskikt
  • Generös takhöjd
  • Stort fönsterparti
  • Kvadratsmart
  • Fräscht kök
  • Välbevarat badrum
  • Nära till kommunikation
  • Trevlig förening
  • Lummig innergård
  • Sänkt avgift 2020 och 2021

I alltid lika populära Rörsjöstaden finner vi denna välplanerade 1,5:a med kokvrå. Bostaden ligger rofyllt belägen med fönster in mot innergården vilket skapar ljus men minimerar insynen. Tack vare de generösa fönsterpartierna mot innergården och den tilltagna takhöjden känns bostaden ljus och luftig alltigenom. Allrummet är lätt att möblera efter smak och tycke och här finns plats för både säng och soffgrupp. Därtill bjuder bostaden på trevlig kokvrå samt ett välbevarat fint badrum.

Den trevliga och lummiga innergården bjuder på både grill- och sittplatser som kan utnyttjas under sommarhalvårets långa kvällar. Berömda Brf Malmgården uppfördes 1935 av byggherren Erik Sigfrid Persson. Idén kring Malmgården var att kombinera modern komfort med gemenskap och konstfull elegans. Husets speciella själ har lockat många kreativa människor som lägger tid och kärlek på att förvalta dess unika värden. Idag är Malmgården en ännu dold skatt i populära Rörsjöstaden. Varmt välkomna på visning!

Snabbfakta
Avgift:
2 703 kr
I månadsavgiften ingår vatten och värme. Ett obligatoriskt tillägg för bredbandet på 80 kr samt en obligatorisk avgift för bostadsrättstillägg på 25 kr tillkommer.
Rum:
1,5 rum och kök
Boarea:
29 kvm
Våning:
2 av 6
Föreslagen budstart:
995 000 kr
Byggnadsår:
1935
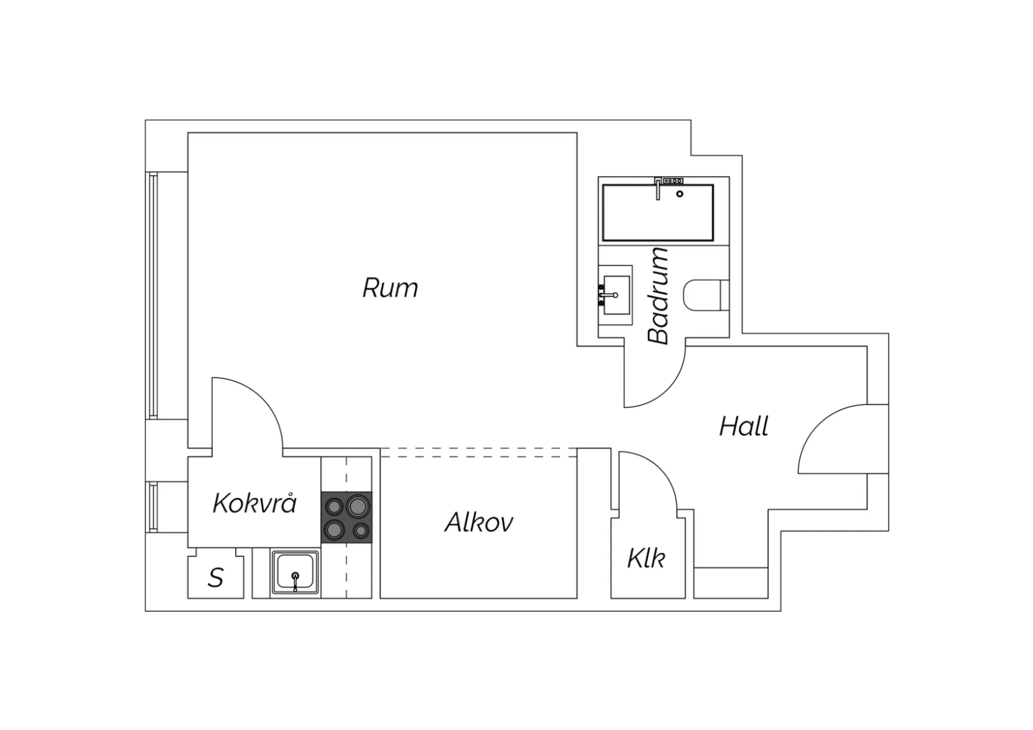
Planritning
Visningar
  • Boka dig via hemsidan!
    Onsdag 22 oktober 17:00 - 17:30
    Boka
Mäklare

Elin

Olsson

ANSVARIG
MÄKLARE

Ljus etta på perfekt cityläge!

  • Vänd mot innergård
  • Rofyllt belägen lgh
  • Ljusa ytskikt
  • Generös takhöjd
  • Stort fönsterparti
  • Kvadratsmart
  • Fräscht kök
  • Välbevarat badrum
  • Nära till kommunikation
  • Trevlig förening
  • Lummig innergård
  • Sänkt avgift 2020 och 2021

I alltid lika populära Rörsjöstaden finner vi denna välplanerade 1,5:a med kokvrå. Bostaden ligger rofyllt belägen med fönster in mot innergården vilket skapar ljus men minimerar insynen. Tack vare de generösa fönsterpartierna mot innergården och den tilltagna takhöjden känns bostaden ljus och luftig alltigenom. Allrummet är lätt att möblera efter smak och tycke och här finns plats för både säng och soffgrupp. Därtill bjuder bostaden på trevlig kokvrå samt ett välbevarat fint badrum.

Den trevliga och lummiga innergården bjuder på både grill- och sittplatser som kan utnyttjas under sommarhalvårets långa kvällar. Berömda Brf Malmgården uppfördes 1935 av byggherren Erik Sigfrid Persson. Idén kring Malmgården var att kombinera modern komfort med gemenskap och konstfull elegans. Husets speciella själ har lockat många kreativa människor som lägger tid och kärlek på att förvalta dess unika värden. Idag är Malmgården en ännu dold skatt i populära Rörsjöstaden. Varmt välkomna på visning!

Visningar
  • Boka dig via hemsidan!
    Onsdag 22 oktober 17:00 - 17:30
    Boka
TIPSA

Elin

Olsson

ANSVARIG
MÄKLARE

Rumsbeskrivning - Drottninggatan 6B

HALL

Fiskbensparkett och ljusa väggar. Förvaring finns i klädkammare och inbyggd garderob.

ALLRUM

Fiskbensparkett och ljusa väggar. Stort fönsterparti mot grönskande innergård.

SOVALKOV

Fiskbensparkett och ljusa väggar.

KOKVRÅ

Grå klinker och ljusa väggar. Ljusgrå köksinredning, bänkskiva i trä och mörktgrått kakel. Kokvrån är utrustad med ugn, spris, kyl/frys och fläkt.

BADRUM

Kaklat badrum. I badrummet finns dusch, WC, spegelskåp samt kommod.

ÖVRIGT

1 rum och kök enligt föreningens information. 1,5 rum och kök enligt planlösning (sovalkov).

Fakta – Drottninggatan 6B

Bostadstyp: Bostadsrätt
Kommun: Malmö
Storlek: 1,5 rum och kök, 29 kvm boarea
Areakälla: föreningens information
Våning: 2 av 6
Lägenhetsnummer: 0146 (1103)
Föreslagen budstart: 995 000 kr
Månadsavgift: 2 703 kr
I månadsavgiften ingår vatten och värme. Ett obligatoriskt tillägg för bredbandet på 80 kr samt en obligatorisk avgift för bostadsrättstillägg på 25 kr tillkommer.
Andelstal: Andel av årsavgift 0,187 %
Indirekt nettoskuldsättning: 258 085 kr
Bostadsrättens indirekta nettoskuldsättning anger hur stor andel av bostadsrättsföreningens lån som indirekt belastar bostadsrätten. Andelen beräknas som andelstalet för avgifter multiplicerat med föreningens nettoskuldsättning. Den består av räntebärande skulder med avdrag för räntebärande tillgångar och likvida medel. Underlagen för beräkningen kommer från föreningen.
Tillträde: 17 november 2025

Fakta – Brf Malmgården

Äkta/oäkta förening: Äkta
Äger föreningen marken: Ja
Antal lägenheter: 281, varav 13 hyresrätter
Antal lokaler: 11
Allmänt om föreningen: Brf Malmgården köpte fastigheten 2007. Föreningens lokaler är upplåtna med hyresrätt. Till föreningen hör adresserna Drottninggatan 6 A-C, Döbelnsgatan 2-10, Kungsgatan 27 A-B, 29 och Ehrensvärdsgatan 1-9.

I föreningen finns 4 stora tvättstugor och en mindre expresstvättstuga, samtliga är belägna i källaren. De stora tvättstugorna är utrustade med 3 tvättmaskiner, 1 torktumlare, 1 torkskåp och 1 torkrum samt 1 mangel.

Föreningen har en övernattningslägenhet på Ehrensvärdsgatan 7 som kan nyttjas mot en kostnad om ca 300 kr/dygn. Det finns även ateljéer på föreningens vind, som kan hyras av såväl utomstående som medlemmar. Kontakta förvaltare vid frågor.

Föreningen har en stor och fin innergård med mycket grönska, grillplats och utemöbler samt takterrass. På innergården finns även lekplats, cykelskjul och 2 källsorteringsstationer.

Föreningen anordnar två gemensamma städdagar av innergården om året.
Besök gärna föreningens hemsida för mer information: http://www.malmgarden.org
Parkering: I föreningen finns 50 garageplatser som kan hyras till en kostnad om ca 718 kr/månad respektive ca 884 kr/månad beroende på platsstorlek. MC-plats kan hyras till en kostnad om ca 640 kr/månad. Kösystem tillämpas. Kostnaden för garageplats indexhöjs årligen. I övrigt råder boendeparkering i området. För mer information se: www.malmo.se
Överlåtelseavgift och pantsättning: En överlåtelseavgift tas ut om ca 1 470 kr som betalas av köparen. Vid belåning av bostaden tas en pantsättningsavgift ut om ca 588 kr/pant. Beloppen är beräknade på prisbasbeloppet för år 2025.
Hus
Byggår: 1935
Byggnadstyp: Flerfamiljshus
Hiss: Hiss finns
Ventilation: Självdrag
Uppvärmning: Fjärrvärme
Tv och internet: Föreningen är ansluten till kabel-TV via Tele2 och fiberoptiskt bredband via Ownit.
Renoveringar
1997 renoverades fasaden.
2002 målades trappuppgångar. Samma år målades räcken på de franska balkongerna.
2004-2006 utfördes en löpande renovering av hissarna.
2010 renoverades en tvättstuga.
2012 byttes samtliga tappvattenstammar och elstammarna byttes samtidigt som ny el drogs fram till samtliga lägenheter.
2013 byttes garageporten i föreningen.
2014 renoverades lekplatsen på innergården och fönstren renoverades där behov fanns. Samma år utfördes även en kontroll av fasad, balkonger, fönster och socklar samt vissa åtgärder utfördes.
2015 renoverades en hyresrättslokal, gården fräschades upp och två miljöhus byggdes. Samma år gjordes tvättstugan på Drottninggatan om till en expresstvättstuga där två nya tvättmaskiner sattes in.
2016 utfördes dräneringsarbeten mot Ehrensvärdsgatan och Döbelnsgatan samt installation av fiberbredband i fastigheten och i samtliga lägenheter. Dessutom lades ett sedumtak på cykelskjulet för att förbättra vattenavrinningen och få ett estetiskt snyggt utseende.
2017/2018 utfördes omfogning av tegelfasaden, byte av fönster och balkongrenovering.
2018 restaurerades och återmonterades konstverket "Hemmets härd".
2019 byttes entréportar mot Kungsgatan 27A, 29 och Drottninggatan 6A samt utbyte av passagesystem. Det infördes även elektronisk bokning av tvättstuga som nu kan bokas via app.
2021 infördes gemensam el.
2022-2023 utfördes relining av avloppsstammarna.
2023 åtgärdades en vatteninträngning i skorstenen.
2025 har innergården fräschats upp av engagerade medlemmar.

Föreningen planerar att framöver måla om trapphusen, renovera undercentralerna, lägga om tak och renovera/byta fönster mot gata och gård. I dagsläget är inga vidare beslut tagna om när detta kommer ske.

All information gällande föreningen har inhämtats genom årsredovisningen och kontrollerats med representant från föreningen. Slutgiltig köpare uppmanas att kontakta representant från föreningen för att stämma av ovanstående information.
  • Denna bostad
  • Bostäder till salu via Erik Olsson

En riktigt lyckad

bostadsaffär

När du hittat ditt drömboende hjälper vi dig gärna att sälja din nuvarande bostad. För oss är det viktigt att du känner dig trygg både när du köper och säljer bostad via Erik Olsson. Därför är våra mäklare bland de vassaste och mest engagerade i branschen. Vi anstränger oss gärna lite extra för att din bostadsförsäljning ska bli perfekt. Hos oss får du en riktigt lyckad bostadsaffär – och bäst betalt.

Intresseanmälan

Få kontakt med en mäklare som är expert på just ditt område.

✶ Obligatoriska fält

Tillbaka till toppen