Gya / Höllviken

Gyavägen 8B

Föreslagen budstart: 8 495 000 kr
TIPSA
Välplanerad familjevilla med solceller, jacuzzi och närhet till havet – ett hem att växa i!

  • Biarea 75 kvm
  • Många soltimmar
  • Gångavstånd till stranden
  • Bra underhållet
  • Uterum
  • Lugnt område
  • Fiber
  • Välskött trädgård
  • Öppenspis
  • Swimspa
  • Nära förskola
  • Naturen runt hörnet
  • Garage

Välkommen till denna generösa och välskötta villa om ca 200 kvm, belägen i ett lugnt och barnvänligt område med närhet till såväl natur som service. Med en smart planlösning i 1,5 plan, gott om förvaringsmöjligheter och flera sociala ytor, erbjuder bostaden en perfekt miljö för den växande familjen.
Huset har en solcellsanläggning som producerar cirka 12 800 kWh per år, vilket ger låga driftkostnader och ett hållbart boende över tid.
Utomhusmiljön är både trivsam och funktionell – en insynsskyddad trädgård med lyxig jacuzzi/pool skapar fina möjligheter till rekreation och familjetid. Den stora uteplatsen i sydvästläge ger sol från förmiddag till sen kväll och passar utmärkt för sommarens måltider och lek.
Invändigt möts man av ljusa och delvis nyrenoverade ytor, där kök, vardagsrum och matsalsdel flyter samman på ett naturligt sätt. Här finns också flera rymliga sovrum, perfekt för både små och stora barn, samt bra förvaring och ett tillhörande garage.
Läget är idealiskt för barnfamiljer – gångavstånd till förskola, lekplatser och strand, samt närhet till skola och grönområden. Det är ett tryggt och lugnt område där barn kan leka fritt och där vardagen underlättas tack vare goda kommunikationer och service i närheten.

Ett hem där ni kan skapa minnen, växa tillsammans och njuta av både vardag och helg. Varmt välkommen att boka in en visning!

Snabbfakta
Rum:
7
Varav sovrum:
4 - 5
Boarea:
200 kvm
Biarea:
75 kvm
Tomtarea:
730 kvm
Föreslagen budstart:
8 495 000 kr
Fastighetsbeteckning:
Höllviken 10:43
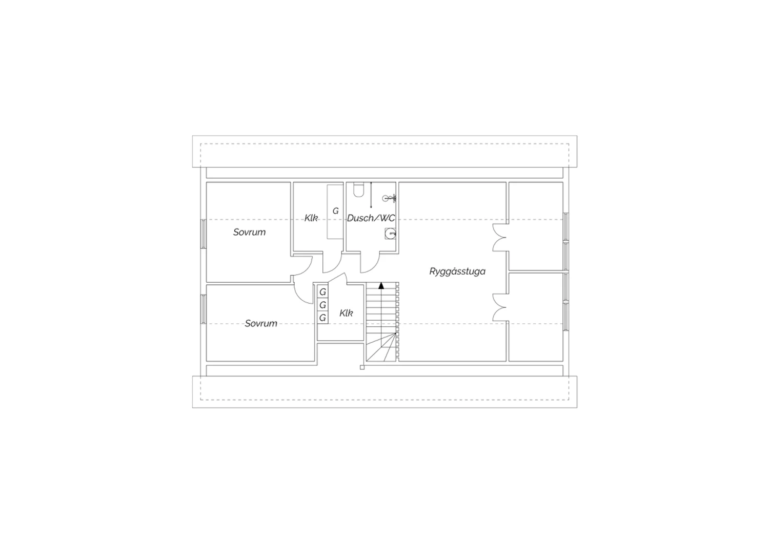
Planritning
Plan 1 Plan 2
Visningar
  • Bokad visning, kontakta mäklaren!
    Söndag 26 oktober 14:30 - 15:00
    Boka
Mäklare

Ola

Persson

ANSVARIG
MÄKLARE

Välplanerad familjevilla med solceller, jacuzzi och närhet till havet – ett hem att växa i!

  • Biarea 75 kvm
  • Många soltimmar
  • Gångavstånd till stranden
  • Bra underhållet
  • Uterum
  • Lugnt område
  • Fiber
  • Välskött trädgård
  • Öppenspis
  • Swimspa
  • Nära förskola
  • Naturen runt hörnet
  • Garage

Välkommen till denna generösa och välskötta villa om ca 200 kvm, belägen i ett lugnt och barnvänligt område med närhet till såväl natur som service. Med en smart planlösning i 1,5 plan, gott om förvaringsmöjligheter och flera sociala ytor, erbjuder bostaden en perfekt miljö för den växande familjen.
Huset har en solcellsanläggning som producerar cirka 12 800 kWh per år, vilket ger låga driftkostnader och ett hållbart boende över tid.
Utomhusmiljön är både trivsam och funktionell – en insynsskyddad trädgård med lyxig jacuzzi/pool skapar fina möjligheter till rekreation och familjetid. Den stora uteplatsen i sydvästläge ger sol från förmiddag till sen kväll och passar utmärkt för sommarens måltider och lek.
Invändigt möts man av ljusa och delvis nyrenoverade ytor, där kök, vardagsrum och matsalsdel flyter samman på ett naturligt sätt. Här finns också flera rymliga sovrum, perfekt för både små och stora barn, samt bra förvaring och ett tillhörande garage.
Läget är idealiskt för barnfamiljer – gångavstånd till förskola, lekplatser och strand, samt närhet till skola och grönområden. Det är ett tryggt och lugnt område där barn kan leka fritt och där vardagen underlättas tack vare goda kommunikationer och service i närheten.

Ett hem där ni kan skapa minnen, växa tillsammans och njuta av både vardag och helg. Varmt välkommen att boka in en visning!

Visningar
  • Bokad visning, kontakta mäklaren!
    Söndag 26 oktober 14:30 - 15:00
    Boka
TIPSA

Ola

Persson

ANSVARIG
MÄKLARE

Rumsbeskrivning - Gyavägen 8B

PLAN 1

ENTRÈ

Klinker och vita väggar. Trappa till plan två samt öppen planlösning mot vardagsrummet. Bra med platsbyggd förvaring.

VARDAGSRUM

Parkettgolv och ljus färg på väggar, mycket fönster i två väderstreck för bra ljusinsläpp. Öppen spis för mysiga höst och vinterkvällar.

KÖK

Klinker på golvet och ljus tapet på väggar. Ljusgrön köksinredning med bänkskiva i ljus laminat. Köket är utrustat med fläkt, diskmaskin, kyl, frys, ugn samt spishäll. Öppen planlösning mot vardagsrummet. samt plats för stort matbord.

MASTER

Matta på golvet och vit färg på väggarna. Bra storlek med mycket förvaring.

SOVRUM

Parkettgolv och ljus färg på väggarna Bra storlek som idag används som barnrum.

BADRUM

Renoverat helkaklat badrum. Badrummet är utrustat med wc, spegel, dusch, handfat med kommod.

WALK-IN-CLOSET

Bra garderob med plats för mycket förvaring.

GÄST WC

Klinker på golvet och ljusa väggar. Utrustat med wc, spegel, handfat.

TVÄTTSTUGA

Delvis kaklad tvättstuga. Bra med förvaring och egen ingång från garaget. Utrustad med tvättmaskin och torktumlare samt egen vask och diskbänk i laminat. Här hittar man även varmvattenberedaren.

PLAN 2

ALLRUM

Parkettgolv och vita väggar, mycket och stora fönster ut mot trädgården för bra ljusinsläpp. Är idag avdelat med stora ljudisolerade glasparti till två kontor men kan enkelt monteras ner till ett stortrum eller ha kvar och användas som barnrum.

SOVRUM

Parkettgolv och vita väggar, används idag som barnrum.

SOVRUM

Parkettgolv och vita väggar, används idag som barnrum.

BADRUM

Helkaklat badrum. Badrummet är utrustat med wc, spegelskåp, dusch, handfat med kommod.

GARAGE

Stort garage med mycket förvaringsutrymme.

Fakta – Gyavägen 8B

Bostadstyp: Villa
Kommun: Vellinge
Besiktad: Bostaden är förbesiktad av säljaren.
Fastighetsbeteckning: Höllviken 10:43
Storlek: 7 rum, 200 kvm boarea, 75 kvm biarea
Varav sovrum: 4 - 5
Areakälla: taxeringsinformation
Föreslagen budstart: 8 495 000 kr
Energiklass: C
Servitut, samfälligheter, etc: Gemensamhetsanläggning: Vellinge höllviken ga:3 ändamål: Vägar
Avtalsservitut Ledning mm
Last: Avtalsservitut Ledning mm, 12-IM2-71/2729.1
Planbestämmelser: Ändring av detaljplan (1995-11-09) Byggnadsplan (1984-02-29)
Upplåtelseform: Friköpt
Pantbrev: Det finns 14 st pantbrev uttaget om sammanlagt 3 789 000 kr
Taxeringsvärde: 5 433 000 kr
Taxeringsår: 2024
Byggnadsvärde: 2 886 000 kr
Markvärde: 2 547 000 kr
Fastighetsavgift: 10 074 kr/år
Tillträde: Enligt överenskommelse!

Fakta – Byggnaden

Hus
Byggnadstyp: 1½-plansvilla
Fasad: Tegel
Stomme: Trä
Fönster: 3-glas
Bjälklag: Trä
Utvändigt plåtarbete: Plåt
Tak: Betongpannor
Grundläggning: Betongplatta
Uppvärmning: Direkt El, Luft/Luft
Vatten och avlopp: Kommunalt vatten året om. Kommunalt avlopp
Ventilation: Självdrag
Tomt, uteplats och bilplats
Tomtarea: 730 kvm

Driftkostnader

Totalsumma: 40 629 kr/år

I driftkostnaden ingår följande:
Uppvärmning: 24 500 kr/år
VA: 1 529 kr/år
Sotning: 600 kr/år
Väg/samfällighetsavgift: 1 000 kr/år
Renhållning: 13 000 kr/år

Driftkostnaden är beräknad på 5 personers hushåll.
I angiven driftskostnad för 5 personer ( 2 vuxna 3 barn ) hushåll ingår hushållsel och uppvärmning samt elbil ca 24 500 kr/år, vatten och renhållning ca 14 529 kr/år samt samfällighetsavgift 1 000 och sotning ca 600 kr/år. Observera att kostnaderna är beräknade på nuvarande ägares förbrukning och kostnaderna kan därmed variera.
Försäkringsbolag: Dina Försäkringar
Fullvärde: Ja

Utöver detta tillkommer kostnad för fastighetsavgift/skatt på 10 074 kr/år.

  • Denna bostad
  • Bostäder till salu via Erik Olsson

En riktigt lyckad

bostadsaffär

När du hittat ditt drömboende hjälper vi dig gärna att sälja din nuvarande bostad. För oss är det viktigt att du känner dig trygg både när du köper och säljer bostad via Erik Olsson. Därför är våra mäklare bland de vassaste och mest engagerade i branschen. Vi anstränger oss gärna lite extra för att din bostadsförsäljning ska bli perfekt. Hos oss får du en riktigt lyckad bostadsaffär – och bäst betalt.

Intresseanmälan

Få kontakt med en mäklare som är expert på just ditt område.

✶ Obligatoriska fält

Tillbaka till toppen