Hedvägen / TRELLEBORG

Hedvägen 88

Föreslagen budstart: 1 350 000 kr
TIPSA
Stilren tvåa i toppskick med ljus och luftig känsla!

  • Renoverad
  • Bra ljusinsläpp
  • Rymligt sovrum
  • Förvaringsmöjligheter
  • Diskmaskin
  • Tvättmaskin
  • Välplanerad
  • Kök med matplats
  • Lugnt område
  • Möjlighet till parkering och garage
  • Nära centrum
  • Nära kollektivtrafiken

FÖR VISNING, VÄNLIGEN KONTAKTA MÄKLAREN!
Välkommen till denna smakfullt renoverade tvåa där varje kvadratmeter andas kvalitet och modern elegans. Lägenheten är i genomgående toppskick och bjuder på en ljus, harmonisk atmosfär tack vare stora fönsterpartier och noggrant utvalda material. Hallen erbjuder generösa förvaringslösningar som gör det enkelt att hålla ordning, medan köket kombinerar ljus och fräsch design med gott om arbetsyta och förvaring. Det helkaklade badrummet är rymligt och har egna tvättmöjligheter för ökad bekvämlighet. Vardagsrummet imponerar med sitt fina ljusinsläpp och har utgång till en trivsam balkong. Här bor du i en stilren och inbjudande bostad med hög standard – inflyttningsklar och redo att bli ditt nya hem.
Varmt välkommen på visning!

Snabbfakta
Avgift:
4 367 kr
I avgiften ingår vatten och värme. Upp till var och en att välja leverantör och paket när det kommer till TV/Bredband/IP-telefoni. Hushållselen debiteras månadsvis utefter faktisk förbrukning.
Rum:
2 rum och kök
Boarea:
55 kvm
Våning:
2 av 3
Föreslagen budstart:
1 350 000 kr
Byggnadsår:
1959
Visningar
  • Bokad visning! anmälan krävs. varmt välkomna!
    Torsdag 16 oktober 18:30 - 19:00

    Kontakta mäklaren

Mäklare

Wilma

Edin

ANSVARIG
MÄKLARE

Stilren tvåa i toppskick med ljus och luftig känsla!

  • Renoverad
  • Bra ljusinsläpp
  • Rymligt sovrum
  • Förvaringsmöjligheter
  • Diskmaskin
  • Tvättmaskin
  • Välplanerad
  • Kök med matplats
  • Lugnt område
  • Möjlighet till parkering och garage
  • Nära centrum
  • Nära kollektivtrafiken

FÖR VISNING, VÄNLIGEN KONTAKTA MÄKLAREN!
Välkommen till denna smakfullt renoverade tvåa där varje kvadratmeter andas kvalitet och modern elegans. Lägenheten är i genomgående toppskick och bjuder på en ljus, harmonisk atmosfär tack vare stora fönsterpartier och noggrant utvalda material. Hallen erbjuder generösa förvaringslösningar som gör det enkelt att hålla ordning, medan köket kombinerar ljus och fräsch design med gott om arbetsyta och förvaring. Det helkaklade badrummet är rymligt och har egna tvättmöjligheter för ökad bekvämlighet. Vardagsrummet imponerar med sitt fina ljusinsläpp och har utgång till en trivsam balkong. Här bor du i en stilren och inbjudande bostad med hög standard – inflyttningsklar och redo att bli ditt nya hem.
Varmt välkommen på visning!

Visningar
  • Bokad visning! anmälan krävs. varmt välkomna!
    Torsdag 16 oktober 18:30 - 19:00

    Kontakta mäklaren

TIPSA

Wilma

Edin

ANSVARIG
MÄKLARE

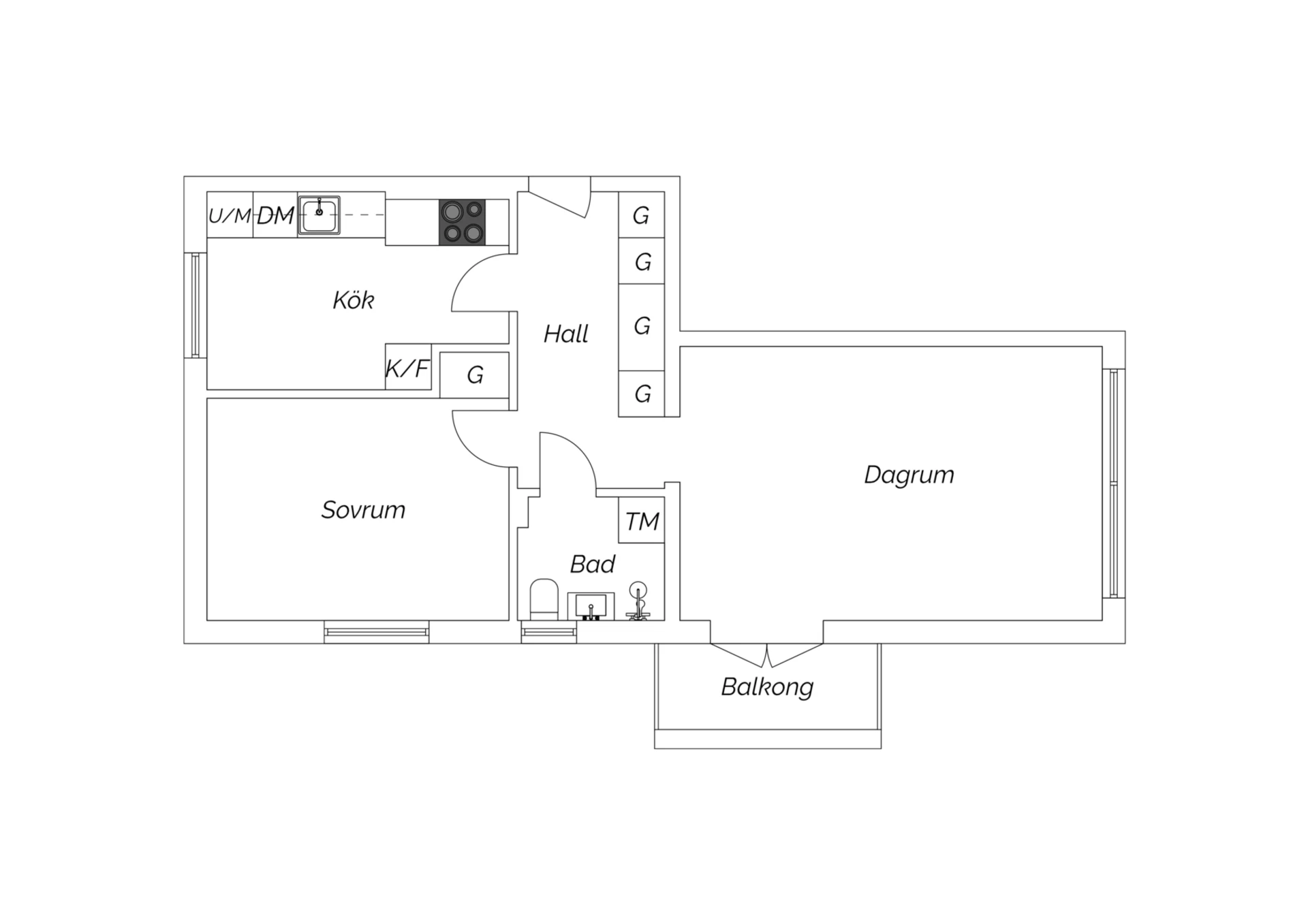
Rumsbeskrivning - Hedvägen 88

HALL

Parkettgolv, vita väggar samt inbyggda spotts. Goda förvaringsmöjligheter i garderober.

KÖK

Parkettgolv och vita väggar. Renoverat modernt kök. Den maskinella utrustningen består av häll, fläkt, ugn, mikrovågsugn, integrerad diskmaskin, kyl och frys.

SOVRUM

Parkettgolv och vita väggar. Stort fönster för ljusinsläpp.

BADRUM

Helkaklat badrum med ett fönster. Inredd med wc, handfat, kommod, spegel, tvättmaskin, dusch samt inbyggda spotts.

VARDAGSRUM

Parkettgolv med vita väggar. Stora fönster för ljusinsläpp samt utgång till balkong.

Fakta – Hedvägen 88

Bostadstyp: Bostadsrätt
Kommun: Trelleborg
Storlek: 2 rum och kök, 55 kvm boarea
Areakälla: föreningens information
Våning: 2 av 3
Lägenhetsnummer: 6 (1203)
Föreslagen budstart: 1 350 000 kr
Månadsavgift: 4 367 kr
I avgiften ingår vatten och värme. Upp till var och en att välja leverantör och paket när det kommer till TV/Bredband/IP-telefoni. Hushållselen debiteras månadsvis utefter faktisk förbrukning.
Andelstal: Andel i förening 13,282 %, andel av årsavgift 13,204 %
Indirekt nettoskuldsättning: 836 kr
Bostadsrättens indirekta nettoskuldsättning anger hur stor andel av bostadsrättsföreningens lån som indirekt belastar bostadsrätten. Andelen beräknas som andelstalet för avgifter multiplicerat med föreningens nettoskuldsättning. Den består av räntebärande skulder med avdrag för räntebärande tillgångar och likvida medel. Underlagen för beräkningen kommer från föreningen.
Energiprestanda: 110 kWh/kvm och år
Energiklass: E

Fakta – Brf Klockaren

Äkta/oäkta förening: Äkta
Äger föreningen marken: Äger marken
Antal lägenheter: 8
Allmänt om föreningen:

Föreningen har en gemensam tvättstuga placerad i källaren. Den är utrustad med 2 tvättmaskiner, 1 torktumlare och ett torkrum.

Det finns 5st platser som är gratis samt 5st garageplatser för 400 kr i månaden. OBS Garage #1 300 kr i månaden pga ingen carport.


Mycket har gjorts under dem senaste åren och därför har hyresavgiften samt avgiften för garage ökat markant.
Tidigare avgiftshöjningar:
2023 - 8%
2024 - 10%

Framöver är planen att höja med cirka 5% varje år för att bankerna kräver det.
(Kontrollerat 2025-05-14)
Parkering: Det finns 5st parkeringsplatser som är gratis samt 5st garageplatser för 400 kr i månaden. OBS Garage #1 300 kr i månaden pga ingen carport.
Hus
Byggår: 1959
Byggnadstyp: Flerfamiljshus
Hiss: Hiss finns ej
Uppvärmning: Fjärrvärme
Tv och internet: Fiber
Renoveringar
2016 - Nya termostater i lägenheterna
2023/2024 - Renovering av uteplats på tredje våningen med bl.a eps betong, tätskikt, ny helsvetsad brunn, nya plåtar och trätrall som slutprodukt. Renovering av balkar ovanför fönster och dörrar på andra våningen på södra delen av byggnaden med bl.a nya balkar och omfogning. Renovering av balkong samt brunn för lägenhet 1301 och 1302. Fiberinstallation. Renoverad tvättstuga. Fasad runt huset har renoverats/fixats. Relining har utförts i hela avloppssystemet

Kommande renoveringar:
Byte till säkerhetsdörrar har varit på tal, men har ej prioriterats. Koll/besiktning av tak har även diskuterats.

Informationen ovan är tagen från styrelsen, föreningens årsredovisning samt stadgar. Vi råder dig som köpare att kontrollera fakta som är av vikt för dig. Vi som mäklare eller Erik Olsson ansvarar ej för att uppgifterna från dessa källor är korrekta

Driftkostnader

Totalsumma: 2 700 kr/år

I driftkostnaden ingår följande:
VA: 2 700 kr/år

Driftkostnaden är beräknad på 2 personers hushåll.
Angiven driftkostnad är beräknad enligt schablon. Kostanden kan bli både högre och lägre för ny boende.

  • Denna bostad
  • Bostäder till salu via Erik Olsson

En riktigt lyckad

bostadsaffär

När du hittat ditt drömboende hjälper vi dig gärna att sälja din nuvarande bostad. För oss är det viktigt att du känner dig trygg både när du köper och säljer bostad via Erik Olsson. Därför är våra mäklare bland de vassaste och mest engagerade i branschen. Vi anstränger oss gärna lite extra för att din bostadsförsäljning ska bli perfekt. Hos oss får du en riktigt lyckad bostadsaffär – och bäst betalt.

Intresseanmälan

Få kontakt med en mäklare som är expert på just ditt område.

✶ Obligatoriska fält

Tillbaka till toppen