Regementstaden / BORÅS

Lagercrantz Plats 7B

Föreslagen budstart: 3 600 000 kr
TIPSA
134 kvm med högt i tak och härliga ytor. Balkong och parkering.

  • 134 kvm med 3 sovrum
  • Ca 70 kvm sällskapsyta med kök i öppen planlösning
  • Nästan 3,5 meter i takhöjd
  • Höga fönster med djupa stenbänkar
  • Balkong
  • Helkaklat badrum + gäst-WC
  • Tvättavdelning i badrummet
  • Parkeringsplats (300 kr/mån) ladstolpar finns på alla platser
  • Stabil förening med låg avgift och låga driftkostnader
  • Nära natur, stad, skolor och kommunikationer
  • Både vatten och värme ingår i avgiften

Staden på ena sidan – lugnet på den andra!

Låt oss presentera denna fantastiska 4:a i Regementstaden. Med sin generösa takhöjd på nästan 3,5 meter och stora spröjsade fönsterpartier skapas en riktig wow-känsla. Med hiss i huset tar du dig smidigt upp till våning 4 där denna bostad finns. Här har man milsvid utsikt över trädtopparna. Lägenheten mäter hela 134 kvm med en öppen och social planlösning mellan kök och vardagsrum på ca 70 kvm vilket blir en naturlig samlingspunkt för familj och vänner. På balkongen kan du njuta av morgon- och förmiddagssolen. Välplanerat kök från Vedum med full maskinell utrustning. Helkaklat badrum med en praktisk tvättavdelning med både tvättmaskin och torktumlare. Bostaden har genomgående parkettgolv och samtliga väggar är omålade 2022. Gott om förvaringsmöjligheter finns också. Större delen av lägenheten är nymålad 2022. Samma år fräschades köket upp med nytt kakel och nylackade köksluckor.

Här erbjuds tre sovrum, helkaklat badrum med tvättdel, gäst-WC, gott om förvaring samt en stor balkong med utsikt över den lugna innergården. Parkeringsplats ingår mot låg avgift (300 kr/mån), med möjlighet till fler via separat kö.

Du bor i en mycket stabil och välskött förening med låga driftkostnader tack vare bergvärme. Inga planerade avgiftshöjningar.

Brf Lagerkransen är belägen i en av de anrika militärkasernerna från Kungliga Älvsborgs Regemente, I15 och ingår som en del av det expanderande projektet Regementstaden. Området ligger naturskönt nära motionsspår och promenadvägar vid Pickesjön. Härifrån har du gångavstånd till skola, förskola, centrum, kommunikation och nära anslutning till R40.

En bostad med karaktär, rymd och livskvalitet – välkommen hem!

Mäklare Martin

Snabbfakta
Avgift:
8 591 kr
Bostadsrättstilägg, uppvärmning , vatten iptv och internet
Rum:
4 rum
Boarea:
134 kvm
Våning:
4 av 5
Föreslagen budstart:
3 600 000 kr
Byggnadsår:
1914
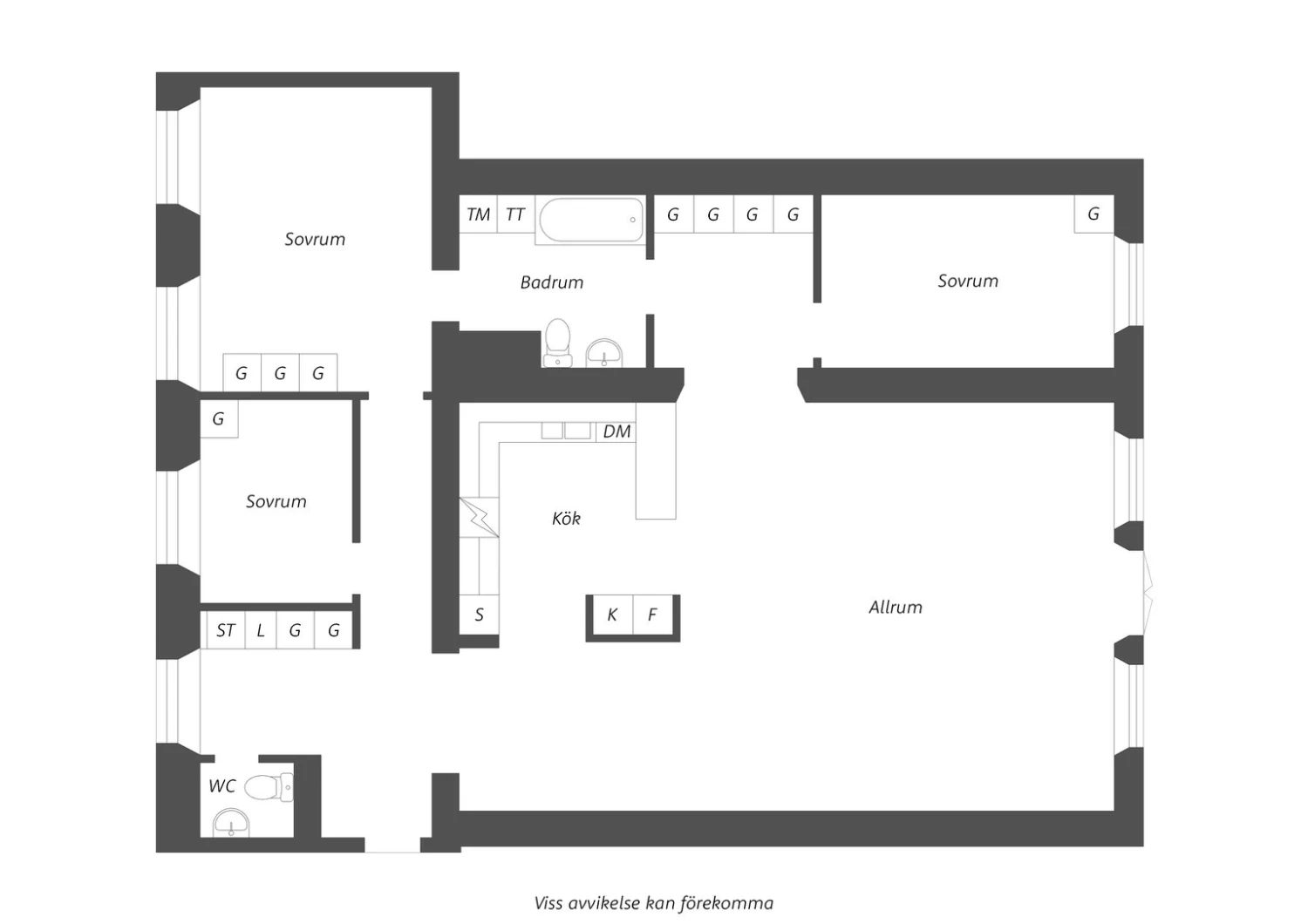
Planritning
Visningar
  • Boka dig för visning! välkommen
    Tisdag 21 oktober 17:30 - 18:00
    Boka
Mäklare

Martin

Strömberg

ANSVARIG
MÄKLARE

134 kvm med högt i tak och härliga ytor. Balkong och parkering.

  • 134 kvm med 3 sovrum
  • Ca 70 kvm sällskapsyta med kök i öppen planlösning
  • Nästan 3,5 meter i takhöjd
  • Höga fönster med djupa stenbänkar
  • Balkong
  • Helkaklat badrum + gäst-WC
  • Tvättavdelning i badrummet
  • Parkeringsplats (300 kr/mån) ladstolpar finns på alla platser
  • Stabil förening med låg avgift och låga driftkostnader
  • Nära natur, stad, skolor och kommunikationer
  • Både vatten och värme ingår i avgiften

Staden på ena sidan – lugnet på den andra!

Låt oss presentera denna fantastiska 4:a i Regementstaden. Med sin generösa takhöjd på nästan 3,5 meter och stora spröjsade fönsterpartier skapas en riktig wow-känsla. Med hiss i huset tar du dig smidigt upp till våning 4 där denna bostad finns. Här har man milsvid utsikt över trädtopparna. Lägenheten mäter hela 134 kvm med en öppen och social planlösning mellan kök och vardagsrum på ca 70 kvm vilket blir en naturlig samlingspunkt för familj och vänner. På balkongen kan du njuta av morgon- och förmiddagssolen. Välplanerat kök från Vedum med full maskinell utrustning. Helkaklat badrum med en praktisk tvättavdelning med både tvättmaskin och torktumlare. Bostaden har genomgående parkettgolv och samtliga väggar är omålade 2022. Gott om förvaringsmöjligheter finns också. Större delen av lägenheten är nymålad 2022. Samma år fräschades köket upp med nytt kakel och nylackade köksluckor.

Här erbjuds tre sovrum, helkaklat badrum med tvättdel, gäst-WC, gott om förvaring samt en stor balkong med utsikt över den lugna innergården. Parkeringsplats ingår mot låg avgift (300 kr/mån), med möjlighet till fler via separat kö.

Du bor i en mycket stabil och välskött förening med låga driftkostnader tack vare bergvärme. Inga planerade avgiftshöjningar.

Brf Lagerkransen är belägen i en av de anrika militärkasernerna från Kungliga Älvsborgs Regemente, I15 och ingår som en del av det expanderande projektet Regementstaden. Området ligger naturskönt nära motionsspår och promenadvägar vid Pickesjön. Härifrån har du gångavstånd till skola, förskola, centrum, kommunikation och nära anslutning till R40.

En bostad med karaktär, rymd och livskvalitet – välkommen hem!

Mäklare Martin

Visningar
  • Boka dig för visning! välkommen
    Tisdag 21 oktober 17:30 - 18:00
    Boka
TIPSA

Martin

Strömberg

ANSVARIG
MÄKLARE

Rumsbeskrivning - Lagercrantz Plats 7B

Hall

Rymlig hall med gott om plats för avhängning av ytterkläder och skor. Ytterligare förvaring finns i flertalet garderober. Precis innanför entrédörren ligger ett antracitgrått klinkergolv som övergår i en fin ekparkett med matchande golvlister och väggarna är målade en fin blå kulör.

Gäst -Wc

I anslutning till hallen finns en gäst-WC. Klinkergolv och vita kaklade väggar med mossaik grön vägg bakom wc-stolen.

Vardagsrum

Vidare in i bostaden möts man av det stora, luftiga vardagsrummet på ca 70 kvm som är integrerat med köket.Här har du möjlighet att duka upp till långbord vid högtider och middagsbjudningar för nära och kära. Dessutom ryms en stor soffgrupp. Målade väggar med en snygg akustikpanel vid tv-delen. På golvet ligger det ett parkettgolv. I taket sitter det spotlights. Här når du bostadens balkong som är rymlig med plats för bord, stolar och grill. Tack vare de stora fönsterpartierna flödar dagsljuset fritt. Från vardagsrummet har man utgång till den mysiga balkongen med milsvid utsikt över trädtopparna och Göta. Ta med frukostbrickan ut och njut av morgon- och förmiddagssolen.

Kök

Välplanerat kök i vinkel från Vedum där inredningen består av ljusa luckor och bänkskiva i sten. Mellan bänkskiva och överskåp sitter det kakelplattor. Här finns det gott om förvaring- och arbetsyta där köksbänken förlängs och skapar en extra trevlig samlingspunkt tillsammans med vänner medans maten står och puttrar på spisen. Köket har full maskinell utrustning så som induktionshäll, fläkt, ugn och mikro i ergonomisk arbetshöjd, diskmaskin samt kyl och frys i fullhöjd. Köket är uppfräschat under 2022 med nylackade köksluckor och nytt kakel.

Badrum

Helkaklat badrum med ett mörkare klinkergolv och golvvärme, vitt kakel på väggarna samt mörkare plattor i duschzonen. Badrumsinredningen består av kommod, WC samt dusch. I badrummet finns en praktisk tvättavdelning utrustad både med tvättmaskin och torktumlare, arbetsbänk och överskåp till förvaring.

Sovrum

Bostadens första sovrum är idag inrett med enkelsäng och garderober till förvaring. Perfekt storlek för hemmakontor, barnrum eller gästrum. Inred efter eget behov och önskemål.

Sovrum 2

I bostadens master bedroom ryms dubbelsäng med tillhörande möblemang. Här finns garderober till förvaring. Härlig heltäckningsmatta som matchas ihop med de fina målade väggarna. En extra fin inredningsdetalj är det vackra kupolfönstret som ger en sekelskifteskänsla och som på ett fint sätt får dagsljuset att flöda in i rummet. Ingång till det stora badrummet.

Sovrum 3

Sovrum med parkettgolv och ljusa väggar.

Hall

Utanför sovrum 3 mellan badrummet och sovrummet finns det ytterligare garderober.

Fakta – Lagercrantz Plats 7B

Bostadstyp: Bostadsrätt
Kommun: Borås
Storlek: 4 rum, 134 kvm boarea
Areakälla: föreningens information
Våning: 4 av 5
Föreslagen budstart: 3 600 000 kr
Månadsavgift: 8 591 kr
Bostadsrättstilägg, uppvärmning , vatten iptv och internet
Andelstal: Andel i förening 2,792 %, andel av årsavgift 2,792 %
Indirekt nettoskuldsättning: 921 776 kr
Bostadsrättens indirekta nettoskuldsättning anger hur stor andel av bostadsrättsföreningens lån som indirekt belastar bostadsrätten. Andelen beräknas som andelstalet för avgifter multiplicerat med föreningens nettoskuldsättning. Den består av räntebärande skulder med avdrag för räntebärande tillgångar och likvida medel. Underlagen för beräkningen kommer från föreningen.
Energiklass: D
Omgivning
Allmänt om området: Området Regementsstaden ligger naturskönt nära motionsspår och promenadvägar vid Pickesjön och Ramnasjön.
Från Brf Lagerkransen har du också gångavstånd till skola, förskola, centrum, kommunikationer och nära anslutning
till R40 & R27.
Kommunikation: Busslinje nr 6 går mellan Borås Resecentrum och Regementstaden.
Parkering: I området finns både gratis gästparkering samt avgiftsbelagd parkering.
Det finns även parkeringsplatser med laddstolpe. Dessa p-platser är tillgängliga för vem som helst.

Fakta – BRF Lagerkransen I Borås

Äger föreningen marken: Ja
Antal lägenheter: 44
Allmänt om föreningen: Brf Lagerkransen är belägen i en av den anrika militärkasernen kasern II från Kungliga Älvsborgs Regemente och ingår som en del av det expanderande projektet Regementsstaden.

Huset (Brf Lagerkransen - Kasern II) byggdes 1914 och förvärvades i början 2000-talet av PEAB för att byggas om till bostadsrätter.

Ombyggnaden stod klar 2011 och då skedde också inflyttning av de första medlemmarna i föreningen.

Gemensamma utrymmen:
- Till varje lägenheten hör ett förråd, dessa finns i källaren på Lagercrantz Plats 7B
- I källaren på Lagercrantz Plats 7B finns en gemensam tvättstuga
- Tre cykelförråd
- Utanför entréerna finns en stensatt uteplats och pergola med bord och stolar
- Föreningen har en lekplats som finns vid gaveln på Lagercrantz Plats 7B
Besök gärna föreningens hemsida för mer information: https://lagerkransen.bostadsratterna.se/
Parkering: Till Brf Lagerkransen i Borås finns 44 parkeringsplatser.
En parkeringsplats finns tillgänglig till varje lägenhet, denna kan för närvarande hyras av medlemmarna till en kostnad av 300kr/månad per plats.

Önskar man inte själv nyttja parkeringsplatsen hyrs den ut via styrelsen.

Föreningen hyr dessutom ytterligare 7 st extraplatser som det finns kö till.

Annars finns det gott om parkering på den stora allmänna parkeringen som ligger i anslutning till fastigheten. Där betalar man en avgift 8-18 vardagar. Det är också möjligt att teckna månadskort på denna parkering.
Överlåtelseavgift och pantsättning: En överlåtelseavgift tas ut om ca 1 433 kr som betalas av köparen. Vid belåning av bostaden tas en pantsättningsavgift ut om ca 573 kr/pant. Beloppen är beräknade på prisbasbeloppet för år 2025.
Hus
Byggår: 1914
Ombyggt 2011
Byggnadstyp: Flerfamiljsvilla
Hiss: Hiss finns
Fönster: 3
Ventilation: mekanisk frånluft med återvinning
Uppvärmning: Bergvärme samt värmeåtervinning
Tv och internet: TV:
I huset finns tillgång till kabel-TV från Sappa AB. Sappa har ett stort basutbud med 17 digitala kanaler som ingår. Det finns också ca 160 kanaler i olika paket som man själv kan välja att prenumerera på.

BREDBAND:
Alla lägenheter har fiberanslutning med bredbandsleverantör: Bahnhof.
Bilplats: Finns en per lägenhet, kostar 300:-

Driftkostnader

Totalsumma: 7 200 kr/år

I driftkostnaden ingår följande:
El: 4 800 kr/år
Försäkring: 2 400 kr/år

  • Denna bostad
  • Bostäder till salu via Erik Olsson

En riktigt lyckad

bostadsaffär

När du hittat ditt drömboende hjälper vi dig gärna att sälja din nuvarande bostad. För oss är det viktigt att du känner dig trygg både när du köper och säljer bostad via Erik Olsson. Därför är våra mäklare bland de vassaste och mest engagerade i branschen. Vi anstränger oss gärna lite extra för att din bostadsförsäljning ska bli perfekt. Hos oss får du en riktigt lyckad bostadsaffär – och bäst betalt.

Intresseanmälan

Få kontakt med en mäklare som är expert på just ditt område.

✶ Obligatoriska fält

Tillbaka till toppen