Göta / Göta

Biodlarvägen 1

Utgångspris: 1 295 000 kr
TIPSA
Stilren tvåa i markplan med solig uteplats – byggd 2019!

Välkommen till ett modernt och trivsamt boende i hjärtat av Göta, denna välplanerade tvårummare på entréplan erbjuder ett bekvämt och stilrent hem med egen uteplats – perfekt för såväl morgonkaffet som kvällens grillstunder.

Byggd 2019 bjuder bostaden på genomgående moderna materialval, energieffektiva lösningar och en ljus, öppen planlösning. Här får du ett hem där du bara kan flytta in och trivas från dag ett!

Några av höjdpunkterna i detta magiska hem:

Entréplan – inga trappor, enkel tillgång med barnvagn, cykel eller rullator
Stor uteplats i soligt läge – perfekt för odling, umgänge och avkoppling
Ljust kök med öppen planlösning mot vardagsrummet – socialt och inbjudande
Rymligt sovrum med god förvaring
Fräscht och stort badrum med tvättmaskin, torktumlare och förvaring
Energieffektiv byggnad från 2019 – låga driftkostnader och moderna bekvämligheter

Bostaden är belägen i ett lugnt och omtyckt område med närhet till natur, gångavstånd till Göta älv, samt goda kommunikationer till både Lilla Edet och Trollhättan. Här bor du i ett tryggt och växande område – perfekt för såväl unga par som äldre som söker ett lättskött och bekvämt boende.

Missa inte chansen att förvärva denna pärla – boka in din visning redan idag!

Snabbfakta
Avgift:
3 596 kr
Inklusive värme, vatten, renhållning, parkering.
Rum:
2 rum
Boarea:
55 kvm
Våning:
1 av 2
Utgångspris:
1 295 000 kr
Byggnadsår:
2019
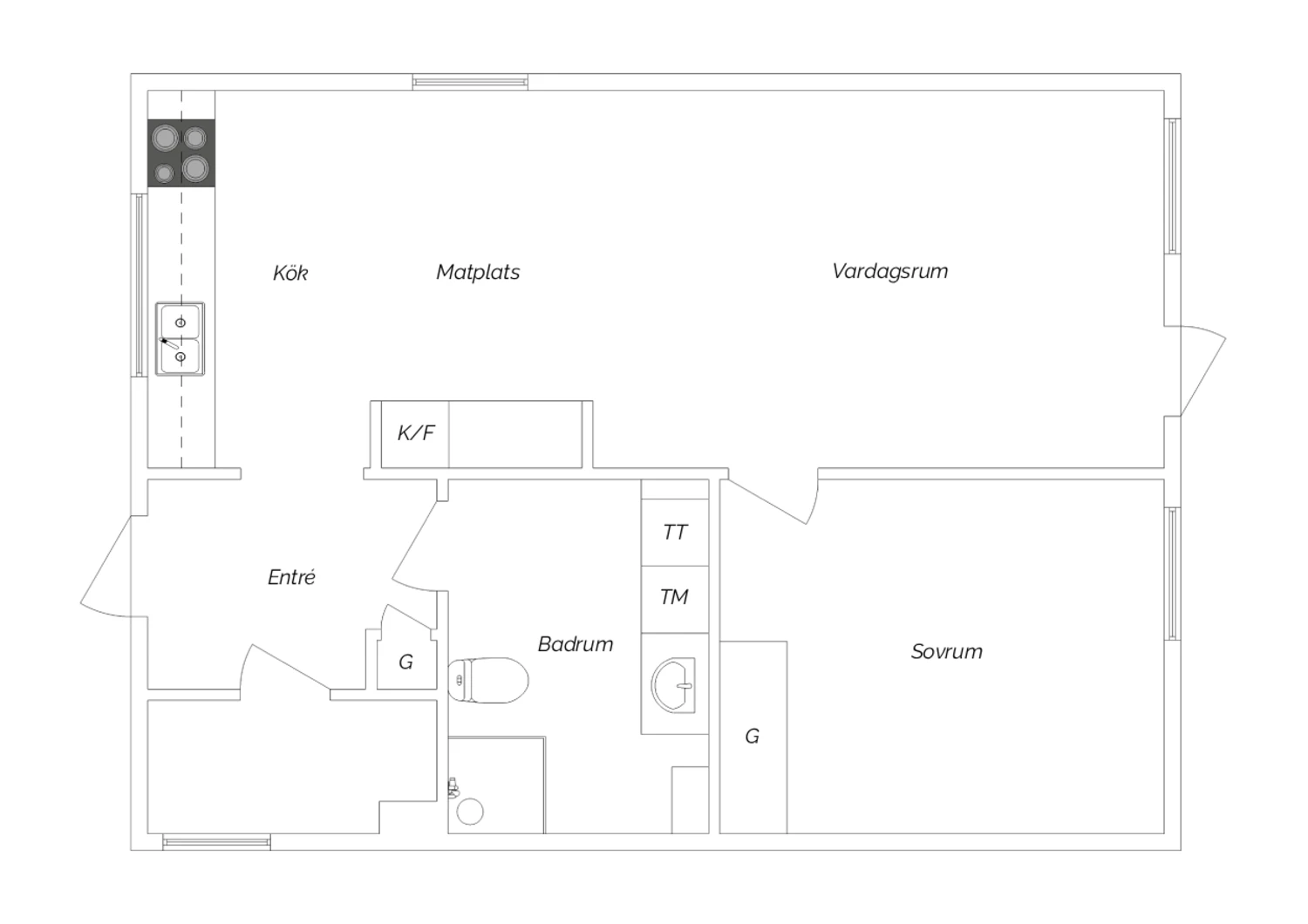
Planritning
Visningar
  • Varmt välkommen på visning, tidsbokning krävs!
    Tisdag 21 oktober 17:00 - 17:30
    Boka
Mäklare

Beatrice

Hindgren

ANSVARIG
MÄKLARE

Stilren tvåa i markplan med solig uteplats – byggd 2019!

Välkommen till ett modernt och trivsamt boende i hjärtat av Göta, denna välplanerade tvårummare på entréplan erbjuder ett bekvämt och stilrent hem med egen uteplats – perfekt för såväl morgonkaffet som kvällens grillstunder.

Byggd 2019 bjuder bostaden på genomgående moderna materialval, energieffektiva lösningar och en ljus, öppen planlösning. Här får du ett hem där du bara kan flytta in och trivas från dag ett!

Några av höjdpunkterna i detta magiska hem:

Entréplan – inga trappor, enkel tillgång med barnvagn, cykel eller rullator
Stor uteplats i soligt läge – perfekt för odling, umgänge och avkoppling
Ljust kök med öppen planlösning mot vardagsrummet – socialt och inbjudande
Rymligt sovrum med god förvaring
Fräscht och stort badrum med tvättmaskin, torktumlare och förvaring
Energieffektiv byggnad från 2019 – låga driftkostnader och moderna bekvämligheter

Bostaden är belägen i ett lugnt och omtyckt område med närhet till natur, gångavstånd till Göta älv, samt goda kommunikationer till både Lilla Edet och Trollhättan. Här bor du i ett tryggt och växande område – perfekt för såväl unga par som äldre som söker ett lättskött och bekvämt boende.

Missa inte chansen att förvärva denna pärla – boka in din visning redan idag!

Visningar
  • Varmt välkommen på visning, tidsbokning krävs!
    Tisdag 21 oktober 17:00 - 17:30
    Boka
TIPSA

Beatrice

Hindgren

ANSVARIG
MÄKLARE

Fakta – Biodlarvägen 1

Bostadstyp: Bostadsrätt
Kommun: Lilla Edet
Storlek: 2 rum, 55 kvm boarea
Areakälla: föreningens information
Våning: 1 av 2
Lägenhetsnummer: A21SG
Utgångspris: 1 295 000 kr
Månadsavgift: 3 596 kr
Inklusive värme, vatten, renhållning, parkering.
Andelstal: Andel i förening 0,782 %
Indirekt nettoskuldsättning: 659 145 kr
Bostadsrättens indirekta nettoskuldsättning anger hur stor andel av bostadsrättsföreningens lån som indirekt belastar bostadsrätten. Andelen beräknas som andelstalet för avgifter multiplicerat med föreningens nettoskuldsättning. Den består av räntebärande skulder med avdrag för räntebärande tillgångar och likvida medel. Underlagen för beräkningen kommer från föreningen.
Energiprestanda: 66 kWh/kvm och år
Energiklass: C
Omgivning
Allmänt om området: Brf Boklok Biodlaren bildades 2019-2020, i samband med att byggnaderna byggdes vid samma tid. Området är beläget i Göta , söder om centrala Lilla Edet.

Föreningen består av totalt 19 radhuslägenheter, 22 parhuslägenheter och 36
lägenheter i flerbostadhus. Fyra radhuslängor med sammanlagt 19 lägenheter, 11 parhus med 22 lägenheter och 5 flerbostadshus i två våningar med 36 lägenheter.
I varje bostadsrätt ingår kallförråd.

Hyra av extra parkering kostar 150:- / mån.

Gräsklippare och diverse trädgårdsredskap finns att låna av föreningen.

Fakta – Byggnaden

Hus
Byggår: 2019
Byggnadstyp: Flerfamiljshus
Hiss: Hiss finns ej
Fönster: 3-glas
Ventilation: FTX
Uppvärmning: Bergvärme

Driftkostnader

Totalsumma: 9 800 kr/år

I driftkostnaden ingår följande:
El: 7 500 kr/år
Försäkring: 2 300 kr/år

Driftkostnaden är beräknad på 2 personers hushåll.
Föreningen tar ut ett schablonvärde om 625 kr i månaden som avser elavgiften

  • Denna bostad
  • Bostäder till salu via Erik Olsson

En riktigt lyckad

bostadsaffär

När du hittat ditt drömboende hjälper vi dig gärna att sälja din nuvarande bostad. För oss är det viktigt att du känner dig trygg både när du köper och säljer bostad via Erik Olsson. Därför är våra mäklare bland de vassaste och mest engagerade i branschen. Vi anstränger oss gärna lite extra för att din bostadsförsäljning ska bli perfekt. Hos oss får du en riktigt lyckad bostadsaffär – och bäst betalt.

Intresseanmälan

Få kontakt med en mäklare som är expert på just ditt område.

✶ Obligatoriska fält

Tillbaka till toppen