/ Söderhamn

Rustkammaregatan 2

Föreslagen budstart: 6 500 000 kr
TIPSA
Anrika Rustkammaren - Historisk och totalrenoverad pärla från 1700-talet!

  • Söderhamns äldsta hus
  • Totalrenoverad
  • Kulturhistorisk
  • Centralt
  • Generös
  • Två garage
  • Anno 1700

Nu har vi nöjet att presentera något utöver de vanliga! Denna fastighet känner vissa av er säkert igen som tidigare Rustkammaren.

Denna unika byggnad uppfördes på 1720-talet som en del av Söderhamns anrika gevärsfaktori från 1600-talet. Ursprungligen ett vapenlager – fullt av musköter, pikar och kruthorn. Det här huset haft många liv, från ordenslokal till krukmakarverkstad, militär matsal och föreningslokal. Ett av Söderhamns få bevarade 1700-talshus – med en rik historia och karaktär som talar för sig själv.
Huset gjordes om till bostad av nuvarande ägare och här får du möjlighet att bo i rymliga utrymmen som har totalrenoverats, med undantag från vissa delar av källarplanet, och med hänsyn till husets kulturhistoriska värde. Dessutom är huset dränerat.

Inomhus finner du en tilltalande och rymlig planlösning med generösa sällskapsytor. Bostaden i två plan är totalrenoverad med eleganta val av ytskikt.
På entréplanet imponerar stora salen med sin rymd och takhöjd, och erbjuder gott om plats för både vardagsliv och festliga tillställningar. Köket är smakfullt och stilrent med generös förvaring och ett lyxigt urval av högkvalitativa vitvaror. En sann dröm för hemmakocken. Lilla salen används idag som vardagsrum och entréplanet rymmer också ett sovrum och helkaklat duschrum med WC. I anslutning till den inre hallen finns en gäst-WC. En trappa upp väntar en möblerbar hall med braskamin och utgång till balkong, tre sovrum varav ett med braskamin och ett med egen WC. Dessutom finns ett helkaklat duschrum med WC.

Utanför huset är det en vacker gårdsplan som välkomnar dig. Den mysiga trädgården bjuder in till både avkoppling och lek. Här råder ett fantastiskt solläge som låter dig njuta av solen från morgon till kväll. På fastigheten finns två garage som erbjuder skyddad parkering.

Livet på Rustkammaregatan innebär också närhet till allt! Här bor du centralt och med gångavstånd till centrum, butiker, restauranger och caféer. Runt hörnet finns mysiga promenadstråk och grönområden.

Varmt välkommen att kontakta ansvarig mäklare vid intresse!

Snabbfakta
Rum:
7
Varav sovrum:
3 - 4
Boarea:
291 kvm
Biarea:
85 kvm
Tomtarea:
1381 kvm
Föreslagen budstart:
6 500 000 kr
Byggnadsår:
1722
Fastighetsbeteckning:
Geten 6
Planritning
e-prospekt
Visningar
  • Bokad visning - anmälan krävs!
    Söndag 19 oktober 13:00 - 14:00
    Boka
  • Bokad visning - anmälan krävs!
    Onsdag 22 oktober 18:00 - 19:00
    Boka
Mäklare

Max

Bergström

ANSVARIG
MÄKLARE

Anrika Rustkammaren - Historisk och totalrenoverad pärla från 1700-talet!

  • Söderhamns äldsta hus
  • Totalrenoverad
  • Kulturhistorisk
  • Centralt
  • Generös
  • Två garage
  • Anno 1700

Nu har vi nöjet att presentera något utöver de vanliga! Denna fastighet känner vissa av er säkert igen som tidigare Rustkammaren.

Denna unika byggnad uppfördes på 1720-talet som en del av Söderhamns anrika gevärsfaktori från 1600-talet. Ursprungligen ett vapenlager – fullt av musköter, pikar och kruthorn. Det här huset haft många liv, från ordenslokal till krukmakarverkstad, militär matsal och föreningslokal. Ett av Söderhamns få bevarade 1700-talshus – med en rik historia och karaktär som talar för sig själv.
Huset gjordes om till bostad av nuvarande ägare och här får du möjlighet att bo i rymliga utrymmen som har totalrenoverats, med undantag från vissa delar av källarplanet, och med hänsyn till husets kulturhistoriska värde. Dessutom är huset dränerat.

Inomhus finner du en tilltalande och rymlig planlösning med generösa sällskapsytor. Bostaden i två plan är totalrenoverad med eleganta val av ytskikt.
På entréplanet imponerar stora salen med sin rymd och takhöjd, och erbjuder gott om plats för både vardagsliv och festliga tillställningar. Köket är smakfullt och stilrent med generös förvaring och ett lyxigt urval av högkvalitativa vitvaror. En sann dröm för hemmakocken. Lilla salen används idag som vardagsrum och entréplanet rymmer också ett sovrum och helkaklat duschrum med WC. I anslutning till den inre hallen finns en gäst-WC. En trappa upp väntar en möblerbar hall med braskamin och utgång till balkong, tre sovrum varav ett med braskamin och ett med egen WC. Dessutom finns ett helkaklat duschrum med WC.

Utanför huset är det en vacker gårdsplan som välkomnar dig. Den mysiga trädgården bjuder in till både avkoppling och lek. Här råder ett fantastiskt solläge som låter dig njuta av solen från morgon till kväll. På fastigheten finns två garage som erbjuder skyddad parkering.

Livet på Rustkammaregatan innebär också närhet till allt! Här bor du centralt och med gångavstånd till centrum, butiker, restauranger och caféer. Runt hörnet finns mysiga promenadstråk och grönområden.

Varmt välkommen att kontakta ansvarig mäklare vid intresse!

Visningar
  • Bokad visning - anmälan krävs!
    Söndag 19 oktober 13:00 - 14:00
    Boka
  • Bokad visning - anmälan krävs!
    Onsdag 22 oktober 18:00 - 19:00
    Boka
TIPSA

Max

Bergström

ANSVARIG
MÄKLARE

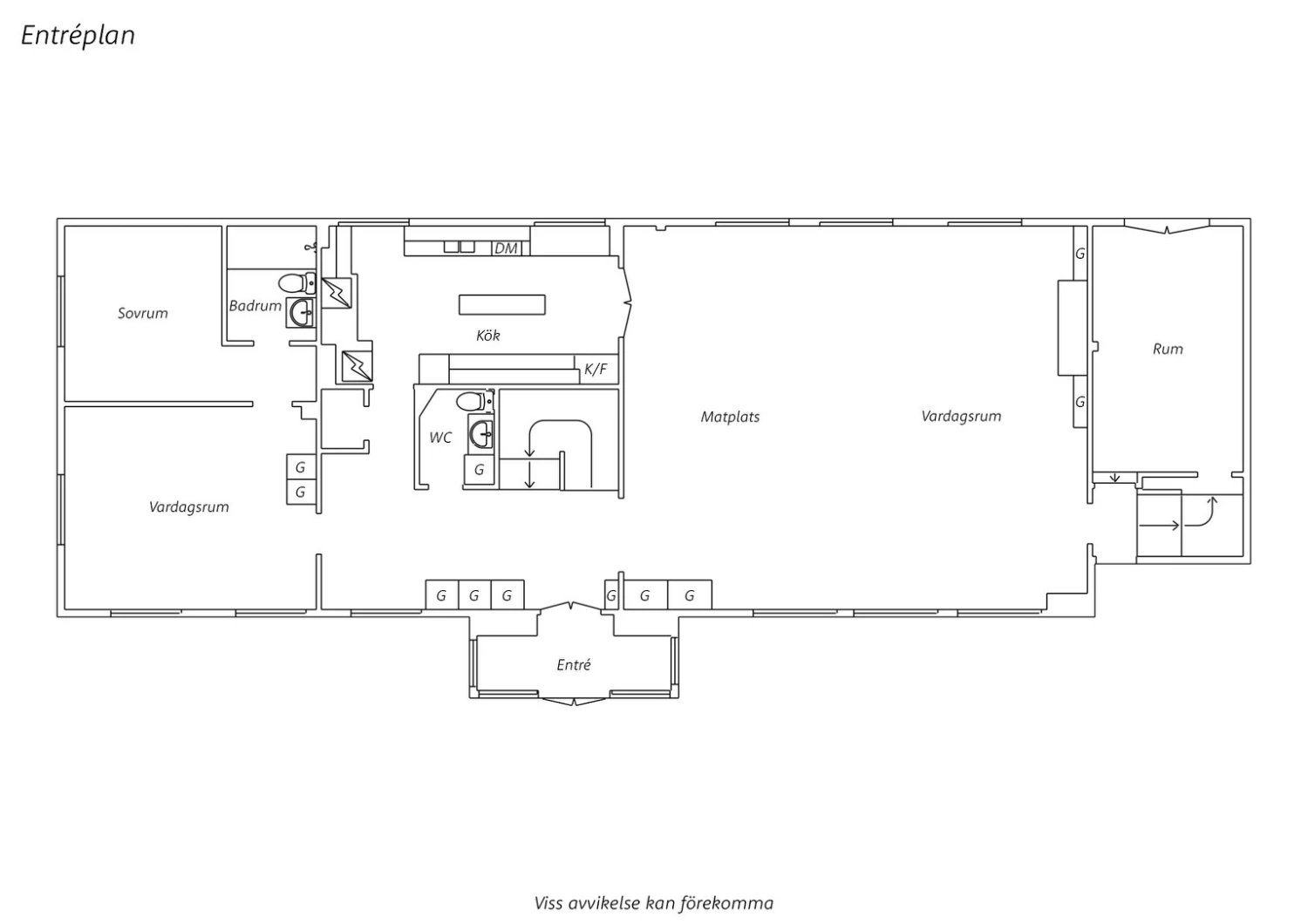
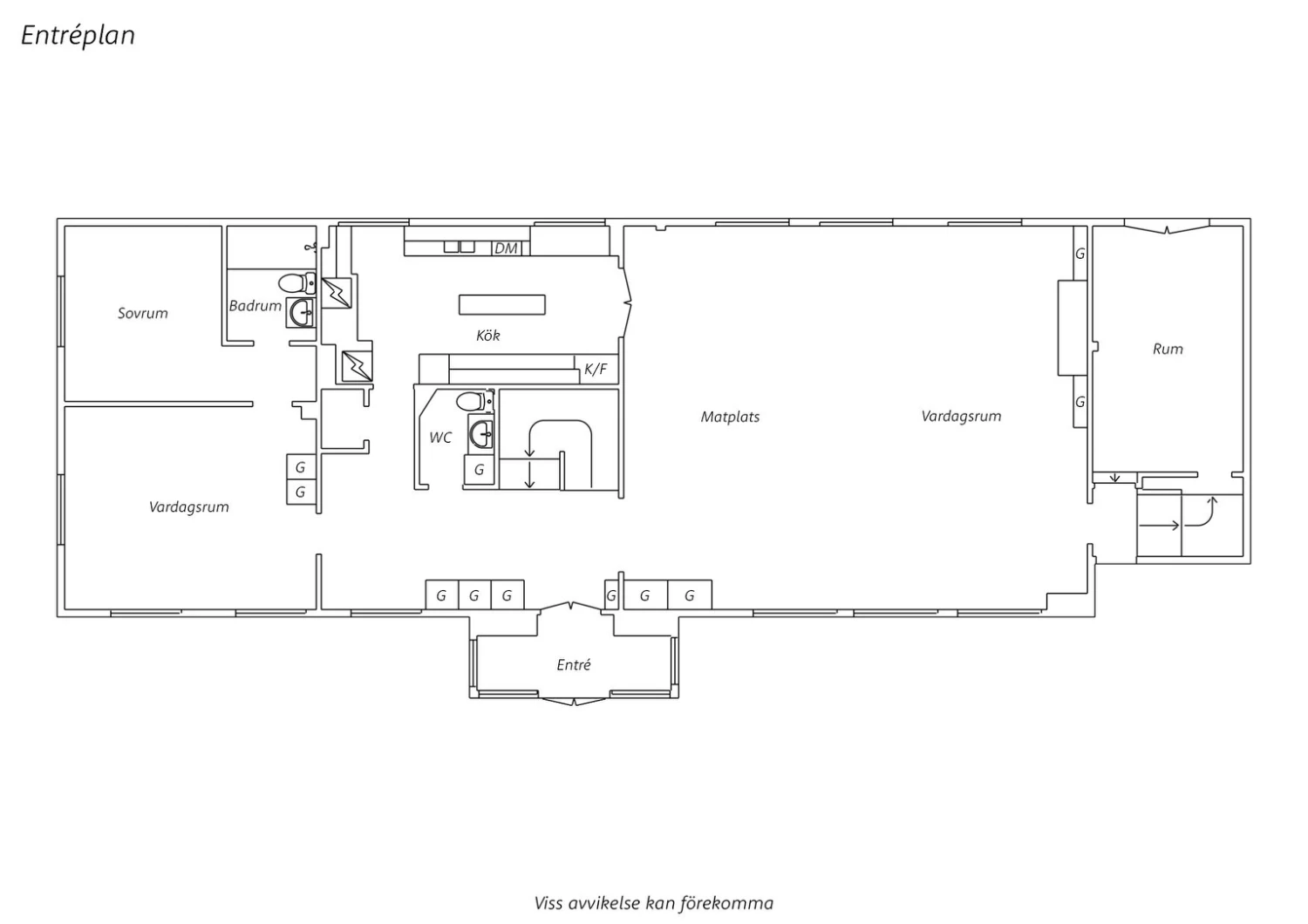
Rumsbeskrivning - Rustkammaregatan 2

ENTRÉPLAN

YTTRE HALL

Klinkergolv och vita väggar.

INRE HALL

Klinkergolv och vita väggar. Här finns möjlighet till avhängning och förvaring i garderober.

WC

Handfat och WC.

KÖK

Klinkergolv med golvvärme och vita väggar. Vita köksluckor, vitt kakel och stenbänkskiva. Den maskinella utrustningen består av köksfläkt, induktionshäll, inbyggnadsugn, inbyggnadsmikro, diskmaskin samt kyl och frys.

STORA SALEN

Parkettgolv och mönstrad tapet på väggar. Här finns plats för matgrupp och soffa med tillhörande möblemang.

LILLA SALEN/ALLRUM

Fiskbensparkett och vita väggar. Här finns plats för soffa med tillhörande möblemang.

DUSCHRUM MED WC

Beige klinkergolv och vitt kakel. Handfat i kommod, WC, dusch och handdukstork.

SOVRUM 1

Fiskbensparkett och vita väggar. Här finns plats för dubbelsäng med tillhörande möblemang.

ÖVRE PLAN

HALL /ALLRUM

Parkettgolv och ljus mönstrad tapet på väggar. Här finns möjlighet att inreda efter egna behov. Braskamin. Utgång till balkong

ARBETSRUM/HOBBYRUM

Trägolv och vita väggar samt röd timrad vägg. Används idag som hobbyrum men kan användas som sovrum.

SOVRUM 2

Trägolv och vita väggar. Här finns plats för dubbelsäng med tillhörande möblemang. Förvaring i platsbyggda garderober. Braskamin.

WC

Grått klinkergolv och vitt kakel på halva väggarna. Handfat och WC.

SOVRUM 3

Trägolv och vita väggar. Här finns plats för dubbelsäng med tillhörande möblemang.

DUSCHRUM MED WC

Grått klinkergolv och vitt kakel. Handfat i kommod, WC och bidé.

KÄLLARPLAN

VIN- OCH MATKÄLLARE

Möjlighet till förvaring enligt egna önskemål.

TVÄTTSTUGA

Grått klinkergolv och vitt kakel på väggar. Tvättmaskin, torktumlare och tvättho.

PANNRUM

Möjlighet till förvaring enligt egna önskemål.

FÖRRÅD

Möjlighet till förvaring enligt egna önskemål.

SVARVARBOD

Möjlighet till förvaring enligt egna önskemål.

WC

Handfat och WC. Förberett för bastu.

Fakta – Rustkammaregatan 2

Bostadstyp: Villa
Kommun: Söderhamn
Besiktad och försäkrad: Bostaden är besiktad och säljaren avser att teckna en försäkring mot dolda fel.
Fastighetsbeteckning: Geten 6
Storlek: 7 rum, 291 kvm boarea, 85 kvm biarea
Varav sovrum: 3 - 4
Areakälla: taxeringsinformation
Föreslagen budstart: 6 500 000 kr
Planbestämmelser: Detaljplan (2013-04-29) Fornlämning (1 st)
Upplåtelseform: Friköpt
Pantbrev: Det finns 7 st pantbrev uttaget om sammanlagt 80 000 kr
Taxeringsvärde: 2 235 000 kr
Taxeringsår: 2024
Byggnadsvärde: 1 822 000 kr
Markvärde: 413 000 kr
Fastighetsavgift: 10 074 kr/år

Fakta – Byggnaden

Hus
Byggnadstyp: 1½-plansvilla med källare
Byggår: 1722
Fasad: Trä
Stomme: Timmer
Fönster: 2-glas
Tak: Plåt
Grundläggning: Betongplatta och sten
Uppvärmning: Fjärrvärme
Vatten och avlopp: Kommunalt vatten året om. Kommunalt avlopp
Ventilation: Mekanisk (endast frånluft)
Övrigt om byggnaden:
RENOVERINGAR
Dränering av hela huset
Totalrenovering (med undantag från vissa delar av källarplanet) 2012-2025

PLANER OCH MARKREGLERINGAR
Akt: Namn (typ) 2182-P13/5
Status: Gällande
Beslutsdatum: 2013-04-29

Akt: L1950:3802
Status: Gällande fornlämning
Berörd kommun : Söderhamn

ÅTGÄRDER
Sammanläggning 1938-05-30
Tomtmätning 1938-05-11 2182-27/1938

TV OCH INTERNET
Fiber

PARKERING
Garage och uppfart

GEMENSAMHETSANLÄGGNINGAR
Inga gemensamhetsanläggningar.

ANDEL I SAMFÄLLIGHET
Inga andelar i samfällighet.

RÄTTIGHETER
Inga rättigheter.
Tomt, uteplats och bilplats
Tomtarea: 1381 kvm
Övriga byggnader
Två garage

Driftkostnader

Totalsumma: 80 674 kr/år

I driftkostnaden ingår följande:
Uppvärmning: 51 262 kr/år
El: 5 302 kr/år
VA: 6 708 kr/år
Sotning: 202 kr/år
Renhållning: 1 918 kr/år
Försäkring: 7 018 kr/år
Övrigt: 8 264 kr/år

Driftkostnaden är beräknad på 2 personers hushåll.
Övrigt avser kostnad för larm. Angiven driftkostnad enligt säljarens uppgifter. De faktiska kostnaderna kan variera beroende på familjesammansättning och levnadssätt.
Fullvärde: Ja

Utöver detta tillkommer kostnad för fastighetsavgift/skatt på 10 074 kr/år.

  • Denna bostad
  • Bostäder till salu via Erik Olsson

En riktigt lyckad

bostadsaffär

När du hittat ditt drömboende hjälper vi dig gärna att sälja din nuvarande bostad. För oss är det viktigt att du känner dig trygg både när du köper och säljer bostad via Erik Olsson. Därför är våra mäklare bland de vassaste och mest engagerade i branschen. Vi anstränger oss gärna lite extra för att din bostadsförsäljning ska bli perfekt. Hos oss får du en riktigt lyckad bostadsaffär – och bäst betalt.

Intresseanmälan

Få kontakt med en mäklare som är expert på just ditt område.

✶ Obligatoriska fält

Tillbaka till toppen