Lina Hage / SÖDERTÄLJE

Lodstigen 2

Föreslagen budstart: 1 350 000 kr
TIPSA
Renoverad tvåa nära kanalen - Inglasad uteplats

  • Stilren 2:a om 59 kvm
  • Renoverad 2022, inflyttningsklar
  • Stor, inglasad uteplats
  • Helkaklat badrum i modern stil
  • Nära kanalen och grönområden
  • Promenadstråk och natur runt hörnet
  • Lugnt område nära centrum
  • Stabil HSB-förening med god ekonomi
  • Hiss i huset för extra bekvämlighet
  • Service, skolor och kommunikationer nära

Välkommen till denna stilrena och välplanerade 2:a om 59 kvm med närhet till kommunikationer, service och centrala Södertälje. Bostaden totalrenoverades 2022 och präglas av ljusa ytskikt och smakfulla materialval som ger en modern och inbjudande känsla.

Här erbjuds ett luftigt vardagsrum, rymligt sovrum, helkaklat badrum samt ett fräscht kök med matplats. Den stora, inglasade och insynsskyddade uteplatsen blir en naturlig förlängning av hemmet och en självklar plats för avkoppling året om.

Föreningen är stabil med god ekonomi och förvaltning via HSB. Hiss finns i huset och i närområdet finner du förskola, skolor, matbutiker och goda kommunikationer.

Ett hem att trivas i – varmt välkommen på visning!

Snabbfakta
Avgift:
4 994 kr
Värme, vatten och basutbud av TV-kanaler. Bredband tillkommer med en obligatorisk kostnad om 125 kr/mån.
Rum:
2 rum
Boarea:
59 kvm
Våning:
−1 av 6
Föreslagen budstart:
1 350 000 kr
Byggnadsår:
1989
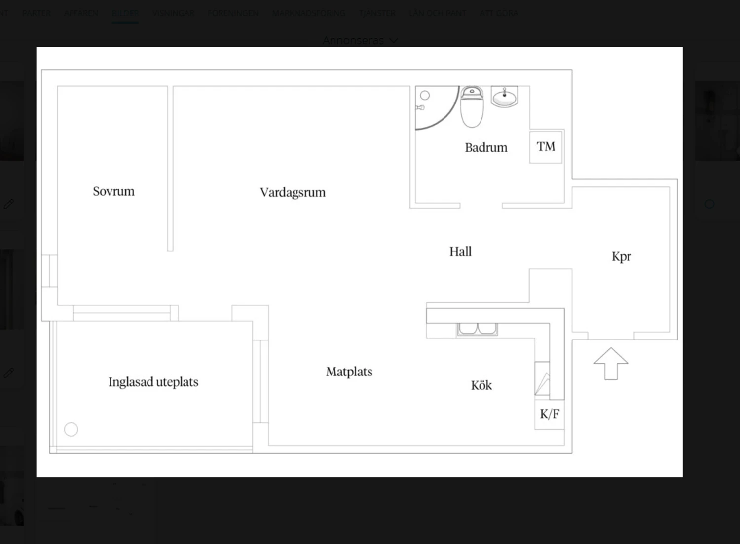
Planritning
e-prospekt
Visningar
  • Bokad visning - anmälan krävs!
    Söndag 19 oktober

    Kontakta mäklaren

Mäklare

Manhal

Anis

ANSVARIG
MÄKLARE

Renoverad tvåa nära kanalen - Inglasad uteplats

  • Stilren 2:a om 59 kvm
  • Renoverad 2022, inflyttningsklar
  • Stor, inglasad uteplats
  • Helkaklat badrum i modern stil
  • Nära kanalen och grönområden
  • Promenadstråk och natur runt hörnet
  • Lugnt område nära centrum
  • Stabil HSB-förening med god ekonomi
  • Hiss i huset för extra bekvämlighet
  • Service, skolor och kommunikationer nära

Välkommen till denna stilrena och välplanerade 2:a om 59 kvm med närhet till kommunikationer, service och centrala Södertälje. Bostaden totalrenoverades 2022 och präglas av ljusa ytskikt och smakfulla materialval som ger en modern och inbjudande känsla.

Här erbjuds ett luftigt vardagsrum, rymligt sovrum, helkaklat badrum samt ett fräscht kök med matplats. Den stora, inglasade och insynsskyddade uteplatsen blir en naturlig förlängning av hemmet och en självklar plats för avkoppling året om.

Föreningen är stabil med god ekonomi och förvaltning via HSB. Hiss finns i huset och i närområdet finner du förskola, skolor, matbutiker och goda kommunikationer.

Ett hem att trivas i – varmt välkommen på visning!

Visningar
  • Bokad visning - anmälan krävs!
    Söndag 19 oktober

    Kontakta mäklaren

TIPSA

Manhal

Anis

ANSVARIG
MÄKLARE

Rumsbeskrivning - Lodstigen 2

HALL:

Välkomnande hall med gott om plats för avhängning och förvaring. Ljusa ytskikt ger ett fräscht intryck och gör det enkelt att inreda efter egen smak. Här får du en praktisk och trivsam entré som sätter tonen för resten av bostaden.

KÖK:

Stilrent kök med ljusa materialval och gott om arbetsytor. Här finns plats för matbord intill fönstret som ger fint ljusinsläpp. Köket är renoverat 2022 och utrustat med moderna vitvaror, vilket gör det både funktionellt och trivsamt.

VARDAGSRUM:

Ljust och rymligt vardagsrum i öppen planlösning mot köket – en social yta som bjuder in till både umgänge och avkoppling. Från vardagsrummet nås den stora, inglasade uteplatsen som förlänger bostaden och blir en självklar plats att njuta av året runt.

BADRUM:

Helkaklat och modernt badrum med stilrena ytskikt. Här finns dusch, handfat och toalett samt egen tvättmaskin, vilket gör vardagen både smidig och bekväm.

SOVRUM:

Sovrum med plats för säng och förvaring. Ljusa väggar och fönster som släpper in dagsljus.

ÖVRIGT:

Stor, inglasad och insynsskyddad uteplats. Till lägenheten hör även ett förråd.

Fakta – Lodstigen 2

Bostadstyp: Bostadsrätt
Kommun: Södertälje
Storlek: 2 rum, 59 kvm boarea
Areakälla: Säljarens information. (Enligt föreningen utgör bostaden 1rok men är ombyggd till 2rok)
Våning: −1 av 6
Lägenhetsnummer: 088
Föreslagen budstart: 1 350 000 kr
Månadsavgift: 4 994 kr
Värme, vatten och basutbud av TV-kanaler. Bredband tillkommer med en obligatorisk kostnad om 125 kr/mån.
Andelstal: Andel i förening 0,453 %, andel av årsavgift 0,453 %
Indirekt nettoskuldsättning: 303 907 kr
Bostadsrättens indirekta nettoskuldsättning anger hur stor andel av bostadsrättsföreningens lån som indirekt belastar bostadsrätten. Andelen beräknas som andelstalet för avgifter multiplicerat med föreningens nettoskuldsättning. Den består av räntebärande skulder med avdrag för räntebärande tillgångar och likvida medel. Underlagen för beräkningen kommer från föreningen.
Tillträde: Enligt överenskommelse

Fakta – HSB Brf Kobben

Äkta/oäkta förening: Äkta
Äger föreningen marken: Ja
Antal lägenheter: 173
Allmänt om föreningen: Kobben är en bostadsrättsförening i Södertälje och består av adresserna Vatt Annas väg, Lodstigen samt Tegelstigen. Föreningen upplåter 173 lägenheter med bostadsrätt.

Föreningen äger fastigheterna Murarbasen 4, Mursleven 1 och Murlodet 1, vilka byggdes åren 1989-1990.
Parkering: Föreningen tillhandahåller totalt 165 garage- och p-platser som de hyr ut till medlemmarna. Till dessa är det separata köer. Dessutom har föreningen totalt 6 st gästparkeringar.

Parkeringsavgifter:
- Bilplats utan eluttag: 150 kr/månad
- Bilplats med eluttag: 200 kr/månad
- Bilplats under tak med eluttag: 375 kr/månad
- MC-plats under tak: 200 kr/månad
Överlåtelseavgift och pantsättning: En överlåtelseavgift tas ut om ca 1 208 kr som betalas av säljaren. Vid belåning av bostaden tas en pantsättningsavgift ut om ca 483 kr/pant. Beloppen är beräknade på prisbasbeloppet för år 2025.
Hus
Byggår: 1989
Byggnadstyp: Flerfamiljshus
Hiss: Hiss finns
Tv och internet: I avgiften ingår värme, vatten, bredband, kabel-TV (basutbud) samt bostadsrättstillägg.
Bilplats: Föreningen tillhandahåller totalt 165 garage- och p-platser som de hyr ut till medlemmarna. Till dessa är det separata köer. Dessutom har föreningen totalt 6 st gästparkeringar.
Renoveringar
Tidigare utförda renoveringar:
2007 - målning av fönsterkarmar, entréer och trapphus, gårdsupprustning på Tegelstigen/Vatt-Annas väg
2008 - successivt utbyte av maskiner i tvättstugor, invändig renovering av föreningslokalen Ekan, utökning av antal förråd, samt OVK-besiktning (obligatorisk ventilationskontroll)
2016 - samtliga trapphus förseddes med nya och strömsnåla armaturer, vilket i längden är en lönsam investering
2017 - Vindskivor
2017 - OVK
2018 - Stamrensning av kök- och badstam
2018 - Montering av postboxar
2019 - Termostatbyte i samtliga lägenheter
2019 - Tvättning av balkonger mm
2019 - Alla portar har fått nya anslagstavlor
2019 - Installation av passersystem i samtliga portar
2020 - Fönsterrenovering

Rensning av avloppsstammar sker löpande.

Projekt planeras inom en snar framtid: Byta hissar, renovera tvättstugor, måla om i trapphusen.
Styrelsens ambition är att genomföra dessa projekt utan att avgiftshöjning ska bli nödvändig.

Driftkostnader

Totalsumma: 4 500 kr/år

I driftkostnaden ingår följande:
El: 3 000 kr/år
Försäkring: 1 500 kr/år

Detta är nuvarande ägares uppskattade driftskostnader och kan variera bl.a. beroende på hur många personer som ingår i hushållet samt vilka avtal man väljer.

  • Denna bostad
  • Bostäder till salu via Erik Olsson

En riktigt lyckad

bostadsaffär

När du hittat ditt drömboende hjälper vi dig gärna att sälja din nuvarande bostad. För oss är det viktigt att du känner dig trygg både när du köper och säljer bostad via Erik Olsson. Därför är våra mäklare bland de vassaste och mest engagerade i branschen. Vi anstränger oss gärna lite extra för att din bostadsförsäljning ska bli perfekt. Hos oss får du en riktigt lyckad bostadsaffär – och bäst betalt.

Intresseanmälan

Få kontakt med en mäklare som är expert på just ditt område.

✶ Obligatoriska fält

Tillbaka till toppen