Östertälje / Södertälje

Gökvägen 5

Föreslagen budstart: 6 750 000 kr
TIPSA
Rymlig familjevilla i populära Östertälje i tre våningar med solceller, bergvärme & stor tomt!

  • Rymlig villa om totalt 288 kvm
  • Stor tomt om 1 113 kvm
  • Fyra sovrum och stora sociala ytor
  • Renoverat kök från 2014 med full maskinell utrustning
  • Badrum renoverat 2020
  • Relaxavdelning med bastu - renoverad 2019
  • Täljstenskamin för värme och trivsel
  • Bergvärmepump installerad 2019
  • Solpaneler från 2022 & nya fönster 3-glasfönster
  • Fiber indraget 2018
  • Tak omlagt 2019 med nya hängrännor och stuprör
  • Relinade avloppsrör 2020
  • Omdränerad entrésida och nordöstra sidan av huset
  • Stort dubbelgarage med elektriska portar samt två förråd för smidig förvaring
  • Energiklass B - kvalificerar för gröna lån

Välkommen till Gökvägen 5 - en rymlig och välskött villa på 1,5 plan med källare, byggd 1973 och belägen i hjärtat av familjevänliga Östertälje. Här möts du av ett hem som erbjuder både funktion, trivsel och stora sociala ytor. Med sina hela 184 kvm boyta och ytterligare 104 kvm biarea finns det gott om plats för familjens alla behov - från vardagens bestyr till festliga sammankomster.

Bostaden har löpande renoverats och moderniserats med bland annat nytt tak, bergvärme, solpaneler, renoverade badrum och nytt kök. Det gör att huset kombinerar den klassiska villakänslan med modern komfort och energieffektiva lösningar. Här finns fyra bra sovrum, flera sociala sällskapsytor, en inbjudande relaxavdelning med bastu samt gott om förvaring – en planlösning som passar lika bra för den växande barnfamiljen som för den som vill ha generösa utrymmen och plats för både vardag och hobby.

Utomhus väntar en stor, grönskande tomt om 1 113 kvm med plana gräsytor för lek, odling och umgänge. Här finns soliga uteplatser och altaner i flera väderstreck där du kan njuta av sommarens alla timmar. Den stora uppfarten och det stora dubbelgaraget gör det enkelt att parkera flera bilar och samtidigt ha gott om plats för cyklar, verktyg och hobby.

Läget är perfekt för barnfamiljen - lugnt och tryggt med gångavstånd till skolor och förskolor, nära fina grönområden och naturstråk för promenader och fritidsaktiviteter. Samtidigt har du utmärkta kommunikationer med både buss och pendeltåg som tar dig snabbt in till Södertälje centrum och Stockholm.

På Gökvägen 5 får ni helt enkelt ett hem som är redo att flyttas in i, där det mesta redan är gjort, men där det fortfarande finns plats för att sätta er egen prägel. Ett hus att trivas i!

Varmt välkommen på visning!

Snabbfakta
Rum:
7
Varav sovrum:
4 - 5
Boarea:
184 kvm
Biarea:
104 kvm
Tomtarea:
1113 kvm
Föreslagen budstart:
6 750 000 kr
Byggnadsår:
1973
Fastighetsbeteckning:
Vattenådran 5
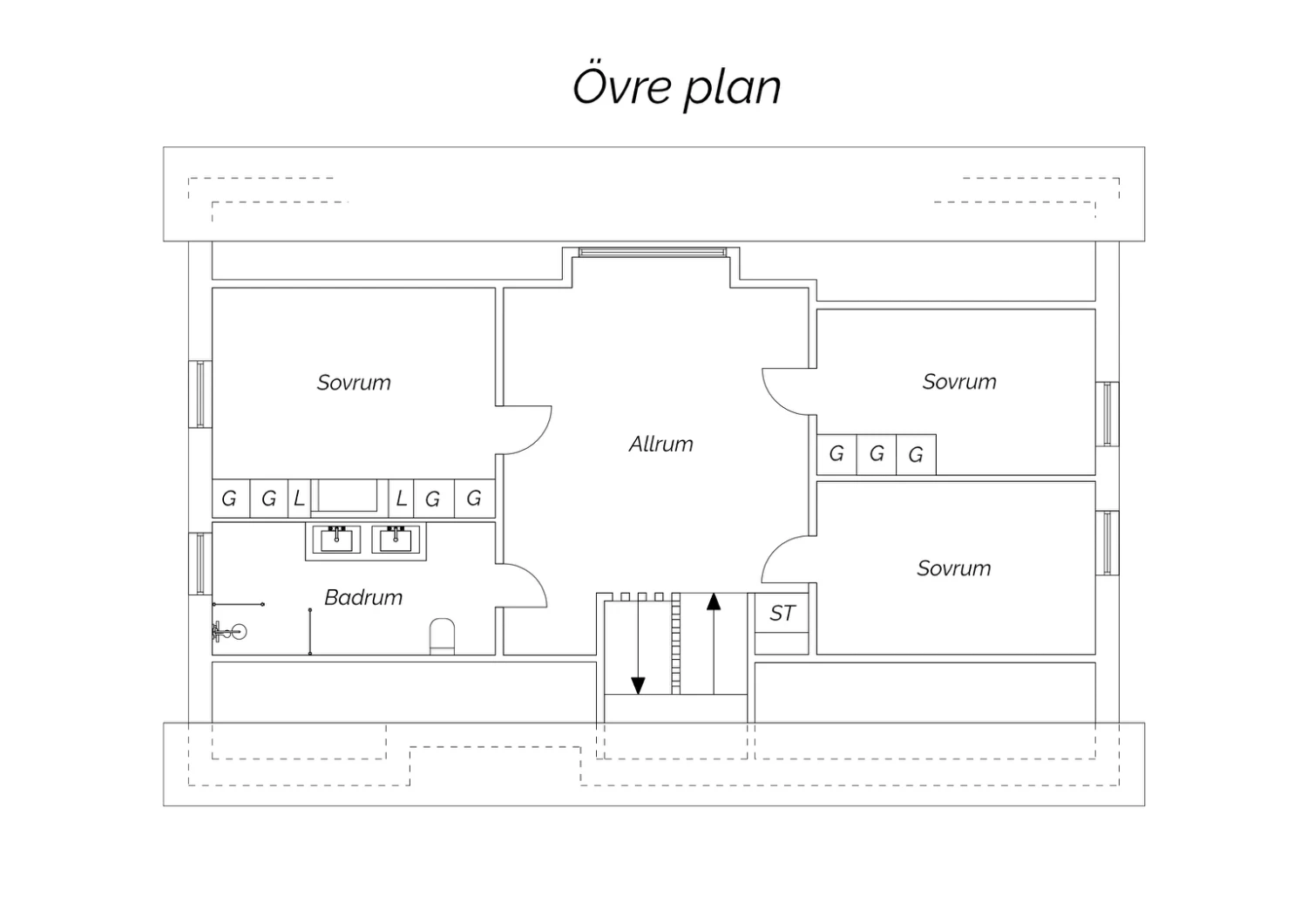
Planritning
e-prospekt
Visningar
  • Bokning krävs - kontakta mäklaren för att få information om tid!
    Söndag 19 oktober

    Kontakta mäklaren

Mäklare

Emma

Sollert

ANSVARIG
MÄKLARE

Rymlig familjevilla i populära Östertälje i tre våningar med solceller, bergvärme & stor tomt!

  • Rymlig villa om totalt 288 kvm
  • Stor tomt om 1 113 kvm
  • Fyra sovrum och stora sociala ytor
  • Renoverat kök från 2014 med full maskinell utrustning
  • Badrum renoverat 2020
  • Relaxavdelning med bastu - renoverad 2019
  • Täljstenskamin för värme och trivsel
  • Bergvärmepump installerad 2019
  • Solpaneler från 2022 & nya fönster 3-glasfönster
  • Fiber indraget 2018
  • Tak omlagt 2019 med nya hängrännor och stuprör
  • Relinade avloppsrör 2020
  • Omdränerad entrésida och nordöstra sidan av huset
  • Stort dubbelgarage med elektriska portar samt två förråd för smidig förvaring
  • Energiklass B - kvalificerar för gröna lån

Välkommen till Gökvägen 5 - en rymlig och välskött villa på 1,5 plan med källare, byggd 1973 och belägen i hjärtat av familjevänliga Östertälje. Här möts du av ett hem som erbjuder både funktion, trivsel och stora sociala ytor. Med sina hela 184 kvm boyta och ytterligare 104 kvm biarea finns det gott om plats för familjens alla behov - från vardagens bestyr till festliga sammankomster.

Bostaden har löpande renoverats och moderniserats med bland annat nytt tak, bergvärme, solpaneler, renoverade badrum och nytt kök. Det gör att huset kombinerar den klassiska villakänslan med modern komfort och energieffektiva lösningar. Här finns fyra bra sovrum, flera sociala sällskapsytor, en inbjudande relaxavdelning med bastu samt gott om förvaring – en planlösning som passar lika bra för den växande barnfamiljen som för den som vill ha generösa utrymmen och plats för både vardag och hobby.

Utomhus väntar en stor, grönskande tomt om 1 113 kvm med plana gräsytor för lek, odling och umgänge. Här finns soliga uteplatser och altaner i flera väderstreck där du kan njuta av sommarens alla timmar. Den stora uppfarten och det stora dubbelgaraget gör det enkelt att parkera flera bilar och samtidigt ha gott om plats för cyklar, verktyg och hobby.

Läget är perfekt för barnfamiljen - lugnt och tryggt med gångavstånd till skolor och förskolor, nära fina grönområden och naturstråk för promenader och fritidsaktiviteter. Samtidigt har du utmärkta kommunikationer med både buss och pendeltåg som tar dig snabbt in till Södertälje centrum och Stockholm.

På Gökvägen 5 får ni helt enkelt ett hem som är redo att flyttas in i, där det mesta redan är gjort, men där det fortfarande finns plats för att sätta er egen prägel. Ett hus att trivas i!

Varmt välkommen på visning!

Visningar
  • Bokning krävs - kontakta mäklaren för att få information om tid!
    Söndag 19 oktober

    Kontakta mäklaren

TIPSA

Emma

Sollert

ANSVARIG
MÄKLARE

Rumsbeskrivning - Gökvägen 5

ENTRÉPLAN

HALL

Välkomnande hall med bra plats för avhängning och förvaring, en naturlig knutpunkt som leder vidare in i bostaden.

KÖK

Renoverat 2014 med goda förvaringsmöjligheter bakom skåpluckor i mjukt trä, stora arbetsytor, vitt kakel ovanför samt full maskinell utrustning. Ett praktiskt, hemtrevligt och modernt kök där matlagningen blir en social del av vardagen. Här finns också plats för ett stort matbord invid fönster, perfekt för vardagsmåltiderna. Den maskinella utrustningen består av hel kyl och frys från Miele, diskmaskin, ugn, spis och köksfläkt.

MATSAL

Mellan kök och vardagsrummet finns ett perfekt rum att använda som matsal, där ni kan samla hela familjen eller vännerna kring ett stort matbord med plats för alla.

VARDAGSRUM

Generöst vardagsrum med fint ljusinsläpp från stora fönsterpartier och utgång till altan i härligt solläge. Här finns gott om plats för både soffgrupp och matsalsmöblemang.

ALTAN & TOMT

Från både vardagsrummet och matsalen nås husets stora trädäckade altan i soligt läge med plats för matbord, loungegrupp, grill, solbäddar m.m. Sedan har vi husets stora uppvuxna tomt om 1 113 kvm med plana gräsytor som inbjuder till lek, odling och sociala tillställningar. På uppfarten parkerar ni enkelt tre bilar och i det stora dubbelgaraget som bygges 2011 finns plats för ytterligare två, samt smidig förvaring i två förråd. Garaget har elektriska portar samt en laddbox för elbilar. Huset har dessutom solpaneler installerade från 2022, vilket ger både låga driftkostnader och en mer hållbar vardag.

SOVRUM

Ljust och rofyllt sovrum med plats för säng, skrivbord eller förvaring – passar lika bra som gästrum eller hemmakontor.

WC

Gästtoalett i anslutning till hallen, smidigt placerad för både boende och besökare.

ÖVRE PLAN

ALLRUM

På övre plan hittar vi de mer privata delarna med ett allrum, tre sovrum, ett stort badrum samt förvaring. Det rymliga allrummet som fungerar utmärkt som lekrum, TV-hörna eller arbetsplats.

TRE SOVRUM

De tre sovrummen, ett större och två något mindre, har alla plats för både dubbelsängar, garderober för smidig förvaring och diverse annan möbel.

BADRUM

Badrummet på övre plan renoverades 2020 med stora vita kakelplattor på väggar och grått klinkergolv med behaglig golvvärme för extra komfort. Här finns också ett frostat fönster som ger ett naturligt ljusinsläpp samt vädringsmöjliget. Badrummet är utrustat med WC, en stor platsbyggd dusch, ett dubbelhandfat med tillhörande dubbelkommod samt en stor spegel.

KÄLLARPLAN

GILLESTUGA

I källarplanet möts vi först av en stor gillestuga/allrum som kan användas som hobbyrum, ungdomsdel, hemmabio eller gym. Här finns också en fungerande eldstad för en extra myskänsla.

BASTU & RELAX

Inbjudande del med bastu, dusch och badkar, renoverad 2019 - en perfekt plats för avkoppling och vardagslyx. Vattenburen golvvärme under fötterna för extra behaglig känsla.

TVÄTTSTUGA

Praktisk och rymlig tvättstuga från mitten av 2010-talet med tvättmaskin, torktumlare arbetsbänk och gott om förvaringsutrymme.

WC

Även i källaren finns en mindre WC med äldre standard, funktionell för vardagen.

PANNRUM/FÖRRÅD

Plats för husets tekniska installationer samt extra förvaring.

ÖVRIGT

Mycket goda förvaringsmöjligheter för allt från säsongsprylar till sportutrustning.

Fakta – Gökvägen 5

Bostadstyp: Villa
Kommun: Södertälje
Besiktad: Bostaden är förbesiktad av säljaren.
Fastighetsbeteckning: Vattenådran 5
Storlek: 7 rum, 184 kvm boarea, 104 kvm biarea
Varav sovrum: 4 - 5
Areakälla: taxeringsinformation
Föreslagen budstart: 6 750 000 kr
Energiprestanda: 63 kWh/kvm och år
Energiklass: B
Servitut, samfälligheter, etc: Avtalsservitut Villa
Last: Avtalsservitut Villa, 01-IM9-28/181.1
Planbestämmelser: Tomtindelning (1968-05-03) Stadsplan (1966-10-21)
Upplåtelseform: Friköpt
Pantbrev: Det finns 9 st pantbrev uttaget om sammanlagt 1 741 000 kr
Taxeringsvärde: 5 806 000 kr
Taxeringsår: 2024
Byggnadsvärde: 3 852 000 kr
Markvärde: 1 954 000 kr
Fastighetsavgift: 10 074 kr/år

Fakta – Byggnaden

Hus
Byggnadstyp: 1½-plansvilla med källare
Byggår: 1973
Fasad: Mexitegel och träpanel
Stomme: Betong och trä
Fönster: 3-glas isolerfönster, 2-glas, betongglas
Tak: Sadeltak med betongpannor
Uppvärmning: Bergvärme, el-golvvärme i duschrum och tvättstuga, täljstenskamin
Vatten och avlopp: Kommunalt vatten året om. Kommunalt avlopp
Ventilation: Självdrag
Tomt, uteplats och bilplats
Tomtarea: 1113 kvm
Tomttyp: Trädgårdstomt

Driftkostnader

Totalsumma: 47 758 kr/år

I driftkostnaden ingår följande:
El: 22 442 kr/år
VA: 10 800 kr/år
Sotning: 768 kr/år
Renhållning: 3 048 kr/år
Försäkring: 10 700 kr/år

Driftkostnaden är beräknad på 2 personers hushåll.
11 523 kWh per år, varav 1 123 kWh står för elbilsladdning (2024). Pris för såld el via solceller: 3 315 kr. Elkostnad där skattereduktion på 60 öre per sold kWh ej är inräknad (uppgick till 5 679 kr)
Försäkringsbolag: If
Fullvärde: Ja
Nätbolag: Telge Energi
Elleverantör: Vattenfall
Elförbrukning: 11 523 kWh/år

Utöver detta tillkommer kostnad för fastighetsavgift/skatt på 10 074 kr/år.

  • Denna bostad
  • Bostäder till salu via Erik Olsson

En riktigt lyckad

bostadsaffär

När du hittat ditt drömboende hjälper vi dig gärna att sälja din nuvarande bostad. För oss är det viktigt att du känner dig trygg både när du köper och säljer bostad via Erik Olsson. Därför är våra mäklare bland de vassaste och mest engagerade i branschen. Vi anstränger oss gärna lite extra för att din bostadsförsäljning ska bli perfekt. Hos oss får du en riktigt lyckad bostadsaffär – och bäst betalt.

Intresseanmälan

Få kontakt med en mäklare som är expert på just ditt område.

✶ Obligatoriska fält

Tillbaka till toppen