Södermalm / STOCKHOLM

Rutger Fuchsgatan 8A

Utgångspris: 10 750 000 kr
TIPSA
Rymliga ytor & balkong mot lugn innergård

  • Balkong i soligt läge
  • Generös takhöjd
  • Tidstypiska 20 tals detaljer
  • Trägolv
  • Ljus och luftig känsla
  • Mycket välplanerad
  • Öppen och social planlösning
  • Renoverad innergård
  • Platsbyggda utemöbler, pergola och grill
  • Föreningen äger marken
  • Flera mataffärer i närområdet
  • Nytorget & Vitabergsparken
  • Blecktornsparkerna
  • Årstaviken i närheten med promenadvägar längs vattnet
  • Eriksdalsbadet på gångavstånd

Välkommen till denna härliga lägenhet med rymliga och ljusa rum samt ett lugnt läge. När ni kliver innanför dörren infinner sig genast en harmonisk känsla. Lägenheten välkomnar med en stor och inbjudande hall och tar er vidare in i köket som har en öppen och social planlösning mot vardagsrummet. Här finns två stora fönster med djupa fönsternischer.
Lägenheter har fyra bra sovrum med med inbyggd förvaring och platsbyggda lösningar. Underbart master bedroom med stor walk in closet och arbetshörna. Här har ni även utgång till lägenhetens stora balkong i soligt läge. Här finns även badrum med badkar samt ytterligare ett badrum med dusch för bästa komfort. Ett boende som karaktäriseras av vackra trägolv, generös takhöjd och mycket välplanerade ytor.

Här bor ni på populära och omtyckta Rutger Fuchsgatan. I dessa kvarter är det inte långt till vare sig nöjen eller grönområden. Fantastiskt utbud av restauranger med ramen, falafel, burgare, koreanskt, libanesiskt och grekiskt. Samtidigt som det är nära till SoFo:s och Nytorgets utbud av caféer, restauranger och butiker. På behagligt promenadavstånd når ni även Eriksdalslunden med småbåtshamn, sommarcafé och bad samt Årstaviken med vacker natur. Från porten är det mycket nära till tunnelbanan och områdets utmärkta service.

Snabbfakta
Avgift:
9 075 kr
I avgiften ingår värme, vatten, tv (grundutbud) via Tele2 och bredband. Till avgiften tillkommer balkongfond om ca 50 kr/månad.
Rum:
5 rum
Boarea:
115 kvm
Våning:
2 av 5
Utgångspris:
10 750 000 kr
Byggnadsår:
1927
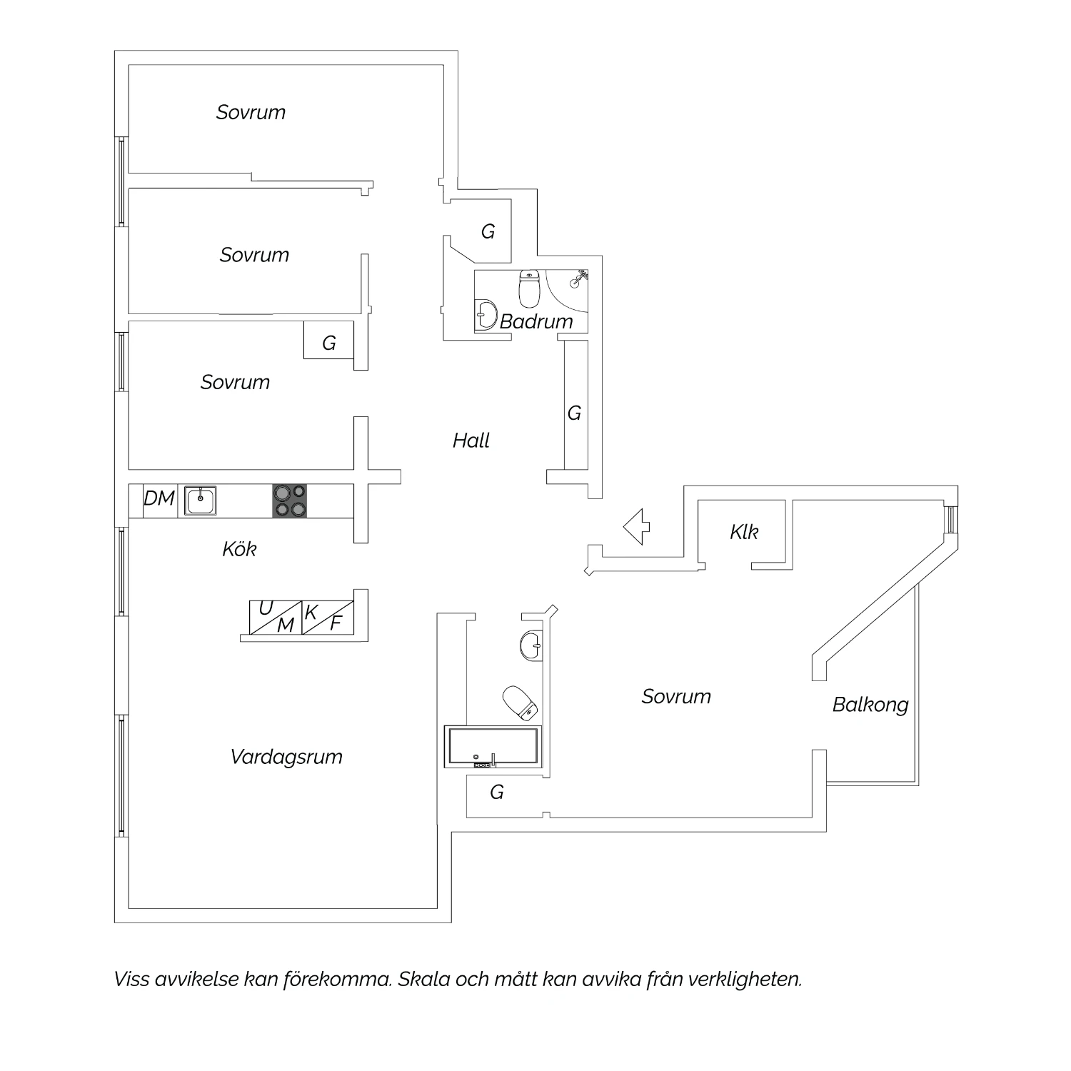
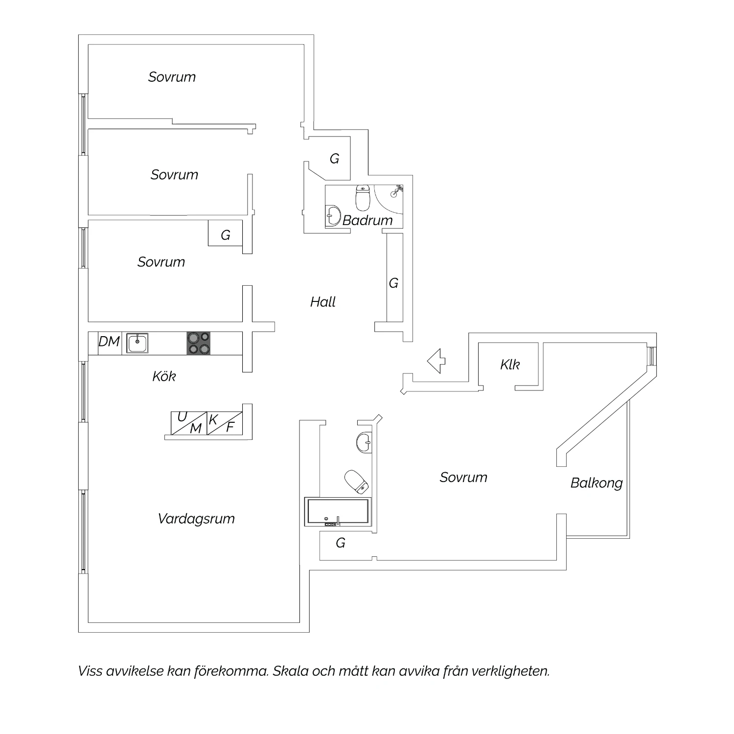
Planritning
Planritning
Objektbeskrivning
Mäklare

Lotta

Röhnisch

ANSVARIG
MÄKLARE

Rymliga ytor & balkong mot lugn innergård

  • Balkong i soligt läge
  • Generös takhöjd
  • Tidstypiska 20 tals detaljer
  • Trägolv
  • Ljus och luftig känsla
  • Mycket välplanerad
  • Öppen och social planlösning
  • Renoverad innergård
  • Platsbyggda utemöbler, pergola och grill
  • Föreningen äger marken
  • Flera mataffärer i närområdet
  • Nytorget & Vitabergsparken
  • Blecktornsparkerna
  • Årstaviken i närheten med promenadvägar längs vattnet
  • Eriksdalsbadet på gångavstånd

Välkommen till denna härliga lägenhet med rymliga och ljusa rum samt ett lugnt läge. När ni kliver innanför dörren infinner sig genast en harmonisk känsla. Lägenheten välkomnar med en stor och inbjudande hall och tar er vidare in i köket som har en öppen och social planlösning mot vardagsrummet. Här finns två stora fönster med djupa fönsternischer.
Lägenheter har fyra bra sovrum med med inbyggd förvaring och platsbyggda lösningar. Underbart master bedroom med stor walk in closet och arbetshörna. Här har ni även utgång till lägenhetens stora balkong i soligt läge. Här finns även badrum med badkar samt ytterligare ett badrum med dusch för bästa komfort. Ett boende som karaktäriseras av vackra trägolv, generös takhöjd och mycket välplanerade ytor.

Här bor ni på populära och omtyckta Rutger Fuchsgatan. I dessa kvarter är det inte långt till vare sig nöjen eller grönområden. Fantastiskt utbud av restauranger med ramen, falafel, burgare, koreanskt, libanesiskt och grekiskt. Samtidigt som det är nära till SoFo:s och Nytorgets utbud av caféer, restauranger och butiker. På behagligt promenadavstånd når ni även Eriksdalslunden med småbåtshamn, sommarcafé och bad samt Årstaviken med vacker natur. Från porten är det mycket nära till tunnelbanan och områdets utmärkta service.

TIPSA

Lotta

Röhnisch

ANSVARIG
MÄKLARE

Rumsbeskrivning - Rutger Fuchsgatan 8A

HALL

Trägolv och ljusa väggar. Platsbyggd garderobsvägg, bokhylla och hatthylla.

KÖK

Trägolv och ljusa väggar. Ljusa skåpsluckor och grått kakel ovan arbetsytor. Diskmaskin, gashäll, kyl/frys, ugn och micro. Stort fönster med djup fönsternisch.

VARDAGSRUM

Trägolv och ljusa väggar. Stort fönster med djup fönsternisch.

SOVRUM

Trägolv och ljusa väggar. Pardörrar öppnar upp mot lägenhetens balkong i sydväst. Inbyggd garderob och stor walk in closet. Arbetshörna med fönster.

BADRUM

Klinkergolv och kaklade väggar. Handfat, spegel, wc, handduksvärmare och badkar samt infällda spotlights i taket.

SOVRUM

Trägolv och ljusa väggar. Platsbyggda bokhyllor och garderob. Stort fönster med djup fönsternisch.

BADRUM

Klinkergolv och kaklade väggar. Handfat med kommod, spegel och wc samt dusch med vikbara duschväggar.

SOVRUM

Trägolv och ljusa väggar. Fönster.

SOVRUM

Trägolv och ljusa väggar. Fönster.

FÖRRÅD

Till lägenheten hör två källarförråd.

Fakta – Rutger Fuchsgatan 8A

Bostadstyp: Bostadsrätt
Kommun: Stockholm
Storlek: 5 rum, 115 kvm boarea
Areakälla: föreningens information
Våning: 2 av 5
Lägenhetsnummer: 1202 1203
Utgångspris: 10 750 000 kr
Månadsavgift: 9 075 kr
I avgiften ingår värme, vatten, tv (grundutbud) via Tele2 och bredband. Till avgiften tillkommer balkongfond om ca 50 kr/månad.
Andelstal: Andel av årsavgift 6,243 %
Indirekt nettoskuldsättning: 289 979 kr
Bostadsrättens indirekta nettoskuldsättning anger hur stor andel av bostadsrättsföreningens lån som indirekt belastar bostadsrätten. Andelen beräknas som andelstalet för avgifter multiplicerat med föreningens nettoskuldsättning. Den består av räntebärande skulder med avdrag för räntebärande tillgångar och likvida medel. Underlagen för beräkningen kommer från föreningen.
Energiprestanda: 133 kWh/kvm och år
Energiklass: E
Tillträde: Enligt överenskommelse

Fakta – Brf Kroken 11

Äkta/oäkta förening: Äkta
Äger föreningen marken: Ja, föreningen äger marken.
Antal lägenheter: 38
Antal lokaler: 1
Allmänt om föreningen: Brf Kroken 11. Föreningen är en äkta bostadsrättsförening.

Föreningen har en gemensam och mycket trevlig innergård med platsbyggda utemöbler, planteringar, ljusslingor, dynor och grill. Innergården går att boka. I föreningen finns en gemensam tvättstuga och cykelförråd (finns för ett fåtal cyklar).
Besök gärna föreningens hemsida för mer information: https://hemsida.nabo.se/brf-kroken-11
Parkering: I området gäller boendeparkering. För mer information se: www.stockholm.se
Överlåtelseavgift och pantsättning: En överlåtelseavgift tas ut om ca 2 058 kr som betalas av köparen. Vid belåning av bostaden tas en pantsättningsavgift ut om ca 882 kr/pant. Beloppen är beräknade på prisbasbeloppet för år 2025.
Hus
Byggår: 1927
Byggnadstyp: Gathus
Hiss: Hiss finns
Ventilation: Självdrag
Uppvärmning: Fjärrvärme
Tv och internet: Föreningen är ansluten till TV via Tele2 och bredband via Bredband2.
Renoveringar
1994 renoverades fasaden.
2006 byttes samtliga el-stigare ut, plåttaket mot gården byttes och trapphusen målades.
2006-2007 genomfördes en relining av V/A-stammarna.
2007 uppfördes nya balkonger.
2010 renoverades och målades alla fönster mot gården.
2012 renoverades hissen och uppgraderades till EU-standard.
2018 fiber installerades i fastigheten, OVK besiktning och åtgärdsplan för ej godkänd ventilation och fläktsystem.
2020 brevlådor för alla lägenheter installerades på entréplanet,
inköp inredning till samtliga vädringsbalkonger i A-huset, renovering av tak, fasad samt entréport, radonmätning och ny energideklaration, nya källarfönster i gatuplan ut mot Rutger Fuchsgatan.
2021 impregnerat fasaden med klotterskydd samt utsmyckat fasaden med konstmålning, ny värmeväxlare, stamspolning, installerat brandskydd och ny avloppsbrunn i källaren.
2022 upprustning av innergård med altan, pergola och platsbyggda möbler.
2023 nya dagvattenbrunnar och hålkälslister mot fasad.
2024 byte kodlås entrédörr och installation råttstopp i huvudstam avlopp.

Kommande underhåll/pågående (2025)
Sanering asbest källare under sommaren, nytt tätskick gård, byte fjärrvärmecentral, byte/konvertering av belysning i allmänna utrymmen och OVK.
2026 avser föreningen att bland annat renovera fasaden samt fönster på innergården och samtidigt utföra målning av balkonger och se över stuprör. (kontrollerat med styrelsen 21/8-25)

Driftkostnader

Totalsumma: 14 549 kr/år

I driftkostnaden ingår följande:
El: 8 000 kr/år
Försäkring: 3 480 kr/år
Övrigt: 3 069 kr/år

Driftkostnaden är beräknad på 5 personers hushåll.
I angiven driftskostnad för 5 personers hushåll varav 3 barn ingår hushållsel 8000 kr/år, gas 3069 kr/år samt hemförsäkring 3480 kr/år (enligt schablon). Kostnaderna kan både vara högre och lägre för ny ägare/boende.

  • Denna bostad
  • Bostäder till salu via Erik Olsson

En riktigt lyckad

bostadsaffär

När du hittat ditt drömboende hjälper vi dig gärna att sälja din nuvarande bostad. För oss är det viktigt att du känner dig trygg både när du köper och säljer bostad via Erik Olsson. Därför är våra mäklare bland de vassaste och mest engagerade i branschen. Vi anstränger oss gärna lite extra för att din bostadsförsäljning ska bli perfekt. Hos oss får du en riktigt lyckad bostadsaffär – och bäst betalt.

Intresseanmälan

Få kontakt med en mäklare som är expert på just ditt område.

✶ Obligatoriska fält

Tillbaka till toppen