Södermalm / Stockholm

Fatburs brunnsgata 21

Utgångspris: 8 995 000 kr
TIPSA
Högst upp i huset med utsikt över Södermalms takåsar och Fatbursparken

  • Högst upp i huset (7/7 våningar) – ingen insyn och fri utsikt
  • Fantastisk vy över Fatbörsparken och Södermalms takåsar från vardagsrummet
  • 96,5 kvm välplanerad yta med fönster i två väderstreck och rikligt ljusinsläpp
  • Tre rymliga sovrum – gott om plats för familj, gäster eller hemmakontor
  • Två smakfullt renoverade badrum – praktiskt och lyxigt
  • Stilrent, renoverat kök med vacker bänkskiva, svensktenntapet och bra arbetsytor
  • Generösa förvaringsmöjligheter med både stor och mindre klädkammare
  • Genomgående fina parkettgolv och klassiska detaljer som dubbeldörrar och fönster i fil
  • Stabil och välskött förening med många faciliteter och stark ekonomi tack vare stora lokalintäkter
  • Eftertraktat läge i Bofils båge på Södermalm – nära både park, citypuls och kommunikationer

Välkommen till denna välplanerade bostad om 96,5 kvm på attraktiva Fatburs Brunnsgata 21 – belägen på våning 7 av 7 i ikoniska Bofils båge. Här bor du med fönster i två väderstreck, rikligt ljusinsläpp och en unikt vacker utsikt.

Bostaden erbjuder tre generösa sovrum, två smakfullt renoverade badrum och ett vardagsrum med hänförande vyer över grönskande Fatbursparken och Södermalms charmiga taklandskap. Det stilrena köket är nyligen renoverat med vacker bänkskiva, gott om arbetsytor och förvaring, samt förhöjs av den exklusiva svensktenntapeten.

Lägenheten präglas av klassiska detaljer såsom vackra dubbeldörrar, fönster i fil och genomgående fina parkettgolv. Förvaringen är generös med både en stor walk-in closet och en mindre klädkammare.

Här bor du i en stabil och välskött förening med god ekonomi, stora lokalintäkter och många uppskattade faciliteter.

Ett boende som kombinerar stil, komfort och en av Södermalms mest eftertraktade adresser – varmt välkommen hem!

Snabbfakta
Avgift:
6 525 kr
I avgiften ingår värme och vatten. Tilläggsavgift för bredband om 75 kr/månad (valfritt).
Rum:
4 rum och kök
Boarea:
96,5 kvm
Våning:
7 av 7
Utgångspris:
8 995 000 kr
Byggnadsår:
1990
Planritning
e-prospekt
Visningar
  • Visning, anmäl dig gärna på mäklarens visning!
    Söndag 19 oktober 12:00 - 13:00
    Boka
  • Visning, anmäl dig gärna på mäklarens visning!
    Måndag 20 oktober 17:15 - 18:00
    Boka
Mäklare

Mikael

Rantala

ANSVARIG
MÄKLARE

Högst upp i huset med utsikt över Södermalms takåsar och Fatbursparken

  • Högst upp i huset (7/7 våningar) – ingen insyn och fri utsikt
  • Fantastisk vy över Fatbörsparken och Södermalms takåsar från vardagsrummet
  • 96,5 kvm välplanerad yta med fönster i två väderstreck och rikligt ljusinsläpp
  • Tre rymliga sovrum – gott om plats för familj, gäster eller hemmakontor
  • Två smakfullt renoverade badrum – praktiskt och lyxigt
  • Stilrent, renoverat kök med vacker bänkskiva, svensktenntapet och bra arbetsytor
  • Generösa förvaringsmöjligheter med både stor och mindre klädkammare
  • Genomgående fina parkettgolv och klassiska detaljer som dubbeldörrar och fönster i fil
  • Stabil och välskött förening med många faciliteter och stark ekonomi tack vare stora lokalintäkter
  • Eftertraktat läge i Bofils båge på Södermalm – nära både park, citypuls och kommunikationer

Välkommen till denna välplanerade bostad om 96,5 kvm på attraktiva Fatburs Brunnsgata 21 – belägen på våning 7 av 7 i ikoniska Bofils båge. Här bor du med fönster i två väderstreck, rikligt ljusinsläpp och en unikt vacker utsikt.

Bostaden erbjuder tre generösa sovrum, två smakfullt renoverade badrum och ett vardagsrum med hänförande vyer över grönskande Fatbursparken och Södermalms charmiga taklandskap. Det stilrena köket är nyligen renoverat med vacker bänkskiva, gott om arbetsytor och förvaring, samt förhöjs av den exklusiva svensktenntapeten.

Lägenheten präglas av klassiska detaljer såsom vackra dubbeldörrar, fönster i fil och genomgående fina parkettgolv. Förvaringen är generös med både en stor walk-in closet och en mindre klädkammare.

Här bor du i en stabil och välskött förening med god ekonomi, stora lokalintäkter och många uppskattade faciliteter.

Ett boende som kombinerar stil, komfort och en av Södermalms mest eftertraktade adresser – varmt välkommen hem!

Visningar
  • Visning, anmäl dig gärna på mäklarens visning!
    Söndag 19 oktober 12:00 - 13:00
    Boka
  • Visning, anmäl dig gärna på mäklarens visning!
    Måndag 20 oktober 17:15 - 18:00
    Boka
TIPSA

Mikael

Rantala

ANSVARIG
MÄKLARE

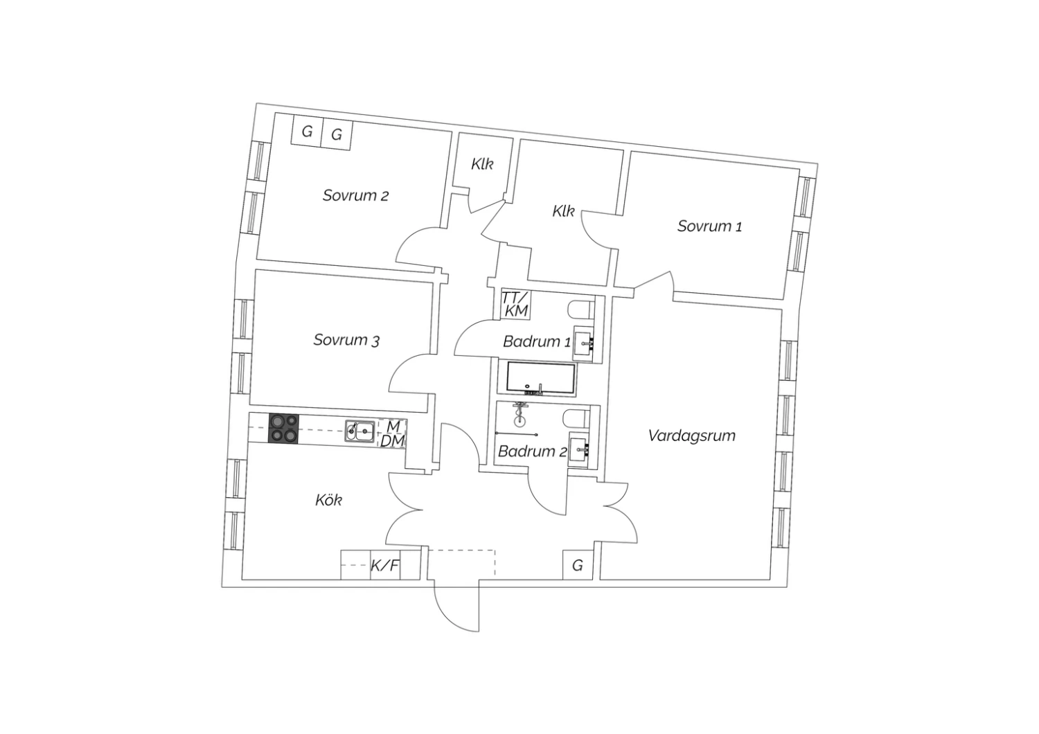
Rumsbeskrivning - Fatburs brunnsgata 21

HALL

Rymlig och välkomnande ljus hall med fina ljusflöden. Här finns en garderob, hatthylla, skohylla och plats för ytterligare garderober eller möblemang. Klinker i entrén som vidare övergår i ekparkett. Inre hall /passage, mot Sovrum 2 och 3 samt de två klädkammare för ytterligare bra förvaring.

KÖK

Skåpsluckor i sober ljusgrå färgsättning (2502-y), tapet från Svenskt Tenn och Holländsk parkett i ek. Ljus arbetsbänk i sten-komposit med infälld dubbelho, praktiskt blandare (Optima SemiPro Hybrid), varmluftsugn med induktionshäll, slimmad infälld fläkt, micro, tystgående diskmaskin (40db) samt rymlig kyl/frys. Gott om förvaring i många smarta lådor, vissa med automatiskt infälld belysning. Dimbara spots under överskåp. Alla vitvaror från 2023. Plats för matgrupp för ca 6 personer. Vackert ljusinsläpp via två fönster som även ger fin himmelskontakt och sol året om.

VARDAGSRUM

Ljusa väggar och parkettgolv. Gott om plats för soffgrupp samt matsalsmöbler för många gäster vid behov. Helt insynsskyddat läge, parkutsikt och härligt ljusinsläpp via fyra fönster. Fantastiskt läge för att bevittna nyårsfyrverkerier från Södermalm och Djurgården/innerstan.

BADRUM 1

Helkaklat badrum i naturnära färgsättning. Utrustat med wc, handfat med kommod, handdukstork, 2 vägghängda förvaringsskåp, tvättmaskin/kombimaskin (Miéle) samt badkar. Spegel med belysning samt dimmerspots i tak. Golvvärme.

BADRUM 2

Klassiskt vitt kakel och mönstrat högklassigt klinkergolv med golvvärme. Utrustat med wc, handfat med kommod, väggskåp samt dusch med glasväggar. Infälld hylla i kompositsten samt spegel med belysning. 2 st separata vertikala handdukstorkar (lågernergi). Dimmerspots i tak.

SOVRUM 1

Tapet på väggar och parkettgolv. Plats för dubbelsäng, sängbord eller annan valfri möblering. Helt insynsskyddat läge, parkutsikt samt fint ljusinsläpp via två fönster.

SOVRUM 2

Det största sovrummet har ljust målade väggar, parkettgolv samt 2 garderober. Plats för säng, sängbord samt annat valfritt möblemang. Fin himmelskontakt och ljusinsläpp via två fönster.

SOVRUM 3

Tapet på väggar och parkettgolv. Även detta rum rymmer dubbelsäng, med sängbord och garderober om så skulle önskas. Ljusinsläpp via två fönster.

WALK IN CLOSET

Holländsk ekparkett och sobert ljusa väggar. Elfainredning med väldigt goda förvaringsmöjligheter.

FÖRRÅD

Till bostadsrätten hör nyttjanderätten till ett vindsförråd.

Fakta – Fatburs brunnsgata 21

Bostadstyp: Bostadsrätt
Kommun: Stockholm
Storlek: 4 rum och kök, 96,5 kvm boarea
Areakälla: föreningens information
Våning: 7 av 7
Lägenhetsnummer: 0160 (1701)
Utgångspris: 8 995 000 kr
Månadsavgift: 6 525 kr
I avgiften ingår värme och vatten. Tilläggsavgift för bredband om 75 kr/månad (valfritt).
Andelstal: Andel i förening 0,452 %, andel av årsavgift 0,428 %
Indirekt nettoskuldsättning: 610 360 kr
Bostadsrättens indirekta nettoskuldsättning anger hur stor andel av bostadsrättsföreningens lån som indirekt belastar bostadsrätten. Andelen beräknas som andelstalet för avgifter multiplicerat med föreningens nettoskuldsättning. Den består av räntebärande skulder med avdrag för räntebärande tillgångar och likvida medel. Underlagen för beräkningen kommer från föreningen.
Energiprestanda: 119 kWh/kvm och år
Energiklass: E

Fakta – Bostadsrättsföreningen Bågen nr 223 i Stockholm

Äkta/oäkta förening: Äkta
Äger föreningen marken: Nej, tomträtt. Tomträttsavtalen löper med en första tidsperiod på 60 år räknat från år 1989 respektive år 1990, därefter tidsperioder om vardera fyrtio år. Avgälden regleras var tionde år.
Antal lägenheter: 283
Antal lokaler: 26
Allmänt om föreningen: Bostadsrättsföreningen Bågen nr 223 i Stockholm. Föreningen är en äkta bostadsrättsförening. I föreningen finns 283 lägenheter som upplåts med bostadsrätt samt 26 lokaler.

Gemensam tvättstuga finns att tillgå i varje trappuppgång. Föreningen har ett antal cykelrum och det finns barnvagnsrum i varje trappuppgång. I föreningen finns även bastu, snickarrum, festlokal och två övernattningslägenheter som föreningens medlemmar kan hyra.
Besök gärna föreningens hemsida för mer information: www.fatburen.org
Parkering: Föreningen ingår tillsammans med övriga tomträttsinnehavare inom Södra Stationsområdet i Södra Stations Garagesamfällighet (SSG) som totalt har 747 garageplatser. HSB Stockholm sköter förvaltningen av garageplatserna.
I övrigt råder boendeparkering i området. För mer information se: www.stockholm.se
Överlåtelseavgift och pantsättning: En överlåtelseavgift tas ut om ca 2 058 kr som betalas av köparen. Vid belåning av bostaden tas en pantsättningsavgift ut om ca 882 kr/pant. Beloppen är beräknade på prisbasbeloppet för år 2025.
Hus
Byggår: 1990
Byggnadstyp: Flerfamiljshus
Hiss: Hiss finns
Ventilation: Mekanisk, typ FTX, F med återvinning
Uppvärmning: Fjärrvärme
Tv och internet: Föreningen är ansluten till TV och bredband via Tele2. Föreningen har även ett eget nätverk för bredband (4Gb). Anslutning till föreningens närverk är inte obligatoriskt. Medlemmen kan välja vilket nätverk den vill.
https://www.fatburen.org/?rID=1145&#rID1145
Renoveringar
2006 Moderniserades värme- och ventilationssystem.
2007 Ny kylmaskin för lokalerna installerade.
2008 Säkerhetsprojektet, nytt entrésystem med taggar.
2011 Ombyggnad och moderniseringen av hissarna.
2014 Rengöring av fasaderna på Bågenhuset.
2015 Impregnering av balkongerna.
2016 Åtgärder i ventilationssystemet OVK i Bågenhuset.
2017 Åtgärder i ventilationssystemet OVK i Tempelhusen, installation av närvarostyrd belysning och led lampor i allmänna utrymmen.
2018 Omläggning av markplattor runt Bågenhuset.
2019 Utbyte av FIX ventilationsaggregat i Tempelhuset.
2021 Utbyte av FTX ventilationsaggregat i Bågenhuset, utbyte av undercentral i Tempelhuset.
2022 Renovering av blindfönster på södra sidan av Bågenhuset, utbyte av termostater och injustering av värmesystemet i Tempelhuset.
2023 Utbyte av undercentral i Bågenhuset, installation av nytt övergripande styrsystem för värme och ventilation, målning av taken på Bågen och Tempelhuset, renovering av blindfönster på södra sidan av Bågenhuset.
2024 Rengöring av fasaden på Bågenhuset, renovering och ombyggnad av den stora kontorslokalen i Tempelhuset i samband med byte av lokalhyresgäst, renovering av blindfönster på norra sidan av Bågenhuset och hela Tempelhuset, installation av solceller på båda fastigheternas tak.
2024-2025 Trapphus- byte till led lampor, utbyte av termostater och injustering av värmesystemet i Bågenhuset.
2025 Rengöring av fasad Tempelhuset och målning av källargolv.

Planerade underhåll 2025-2026:
Fasader, lagning av sprickor i betongen
Fasader, byte av mjukfogar mellan betong element.
Lås och passagesystem, utbyte och uppdatering

Driftkostnader

Totalsumma: 2 100 kr/år

I driftkostnaden ingår följande:
El: 300 kr/år
Försäkring: 1 800 kr/år

Driftkostnaden är beräknad på 1 persons hushåll.
I angiven driftskostnad för 3 persons hushåll ingår hushållsel ca 300 kr/år och hemförsäkring ca 1800 kr/år. Uppgifter kommer från säljaren. Kostnaderna kan både vara högre och lägre för ny ägare/boende.

  • Denna bostad
  • Bostäder till salu via Erik Olsson

En riktigt lyckad

bostadsaffär

När du hittat ditt drömboende hjälper vi dig gärna att sälja din nuvarande bostad. För oss är det viktigt att du känner dig trygg både när du köper och säljer bostad via Erik Olsson. Därför är våra mäklare bland de vassaste och mest engagerade i branschen. Vi anstränger oss gärna lite extra för att din bostadsförsäljning ska bli perfekt. Hos oss får du en riktigt lyckad bostadsaffär – och bäst betalt.

Intresseanmälan

Få kontakt med en mäklare som är expert på just ditt område.

✶ Obligatoriska fält

Tillbaka till toppen