/ Olofstorp

Bergums furåsväg 45

Utgångspris: 4 940 000 kr
TIPSA
Arkitektritat hem med stort ljusinsläpp, solig altan och utekök!

  • Altan med sol hela dagen
  • 8 minuter promenad till Älsjön för bad
  • Skolskjuts som stannar vid huset och vänder
  • Välplanerad planlösning
  • Gästhus om 28 kvm
  • Många sovrum
  • Två vardagsrum
  • Utekök och spabad
  • Välutrustade badrum
  • Goda förvaringsmöjligheter
  • Totalrenovering av huset 2022
  • Kort promenad till bad
  • Naturen intill
  • 10 min till Lerum centrum

Välkomna till detta arkitektritade hem med stort ljusinsläpp, solig altan och utekök! Här har det befintliga huset från 1950 bevarats i delar och totalrenoverats med fokus på god planlösning, generösa ytor och ett exklusivt uttryck. Resultatet är ett hem som både är funktionellt och estetiskt tilltalande – anpassat för familjer i olika storlekar med många sovrum och två rymliga vardagsrum. Köket är husets hjärta – öppet, rymligt och perfekt för både vardag och fest. Härifrån når du direkt den stora altanen med sol hela dagen, en naturlig samlingsplats för familj och vänner. Det integrerade uteköket gör sommarens måltider till en fröjd, och den avskilda delen av altanen skapar en härlig spakänsla med fri sikt mot den öppna himlen – din egen oas. Huset är högt beläget på ett berg med ett fantastiskt ljusflöde och utsikt, och altanerna löper generöst runt huset vilket skapar naturliga övergångar mellan inne och ute. Den lättskötta tomten lämnar utrymme för vidare utveckling för den med gröna fingrar eller kreativt sinne. Det ursprungliga garaget från 1950 är bevarat i sitt funktionella skick och används idag som verkstad och förvaringsplats. Det är målat i svart för att smälta in med det övriga huset och skapa en enhetlig helhet. Ett hem som erbjuder både karaktär, komfort och möjligheter – redo att välkomna nya ägare. Som en extra bonus finns ett fullt beboeligt gästhus om 28 kvm på tomten – isolerat och med indragen el – perfekt för gäster, tonårsbarn, hemmakontor eller uthyrning.

Ni har bara 10 minuter med bil till Lerums centrum, där ni hittar trevliga caféer, matbutiker som Hemköp, gym och restauranger. Söker ni lugnet men vill ändå ha närhet till storstaden och naturen, är detta hus perfekt för er och er familj. På bara 900 meters promenadavstånd når ni Älsjön, perfekt för härliga kvällsdopp. Området är känt för sin vackra natur, med grönskande skog och öppna landskap som skapar en avkopplande atmosfär. Bussförbindelser finns i närheten, vilket gör pendlingen enkel och smidig, så ni kan njuta av lugnet utan att ge avkall på stadens service och kommunikationer. Skolskjuts stannar vid huset och vänder där.
Här får ni allt: ett högt, fritt läge, fantastiska naturupplevelser och bekväm pendling.

Välkomna att kontakta ansvarig mäklare Knut Paxlind för mer information!

Snabbfakta
Rum:
8
Varav sovrum:
7
Boarea:
179 kvm
Tomtarea:
1711 kvm
Utgångspris:
4 940 000 kr
Byggnadsår:
1955
Fastighetsbeteckning:
Stenared 1:108
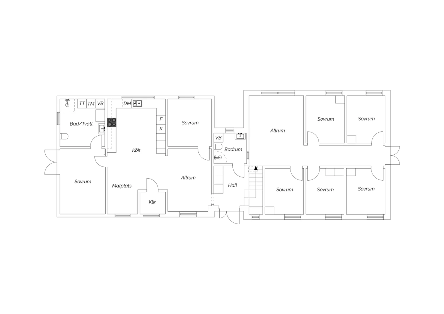
Planritning
Visningar
  • Visning
    Torsdag 16 oktober 13:00 - 13:30

    Kontakta mäklaren

Mäklare

Knut

Paxlind

ANSVARIG
MÄKLARE

Sarah

Gustafsson

REG. FASTIGHETSMÄKLARE

Arkitektritat hem med stort ljusinsläpp, solig altan och utekök!

  • Altan med sol hela dagen
  • 8 minuter promenad till Älsjön för bad
  • Skolskjuts som stannar vid huset och vänder
  • Välplanerad planlösning
  • Gästhus om 28 kvm
  • Många sovrum
  • Två vardagsrum
  • Utekök och spabad
  • Välutrustade badrum
  • Goda förvaringsmöjligheter
  • Totalrenovering av huset 2022
  • Kort promenad till bad
  • Naturen intill
  • 10 min till Lerum centrum

Välkomna till detta arkitektritade hem med stort ljusinsläpp, solig altan och utekök! Här har det befintliga huset från 1950 bevarats i delar och totalrenoverats med fokus på god planlösning, generösa ytor och ett exklusivt uttryck. Resultatet är ett hem som både är funktionellt och estetiskt tilltalande – anpassat för familjer i olika storlekar med många sovrum och två rymliga vardagsrum. Köket är husets hjärta – öppet, rymligt och perfekt för både vardag och fest. Härifrån når du direkt den stora altanen med sol hela dagen, en naturlig samlingsplats för familj och vänner. Det integrerade uteköket gör sommarens måltider till en fröjd, och den avskilda delen av altanen skapar en härlig spakänsla med fri sikt mot den öppna himlen – din egen oas. Huset är högt beläget på ett berg med ett fantastiskt ljusflöde och utsikt, och altanerna löper generöst runt huset vilket skapar naturliga övergångar mellan inne och ute. Den lättskötta tomten lämnar utrymme för vidare utveckling för den med gröna fingrar eller kreativt sinne. Det ursprungliga garaget från 1950 är bevarat i sitt funktionella skick och används idag som verkstad och förvaringsplats. Det är målat i svart för att smälta in med det övriga huset och skapa en enhetlig helhet. Ett hem som erbjuder både karaktär, komfort och möjligheter – redo att välkomna nya ägare. Som en extra bonus finns ett fullt beboeligt gästhus om 28 kvm på tomten – isolerat och med indragen el – perfekt för gäster, tonårsbarn, hemmakontor eller uthyrning.

Ni har bara 10 minuter med bil till Lerums centrum, där ni hittar trevliga caféer, matbutiker som Hemköp, gym och restauranger. Söker ni lugnet men vill ändå ha närhet till storstaden och naturen, är detta hus perfekt för er och er familj. På bara 900 meters promenadavstånd når ni Älsjön, perfekt för härliga kvällsdopp. Området är känt för sin vackra natur, med grönskande skog och öppna landskap som skapar en avkopplande atmosfär. Bussförbindelser finns i närheten, vilket gör pendlingen enkel och smidig, så ni kan njuta av lugnet utan att ge avkall på stadens service och kommunikationer. Skolskjuts stannar vid huset och vänder där.
Här får ni allt: ett högt, fritt läge, fantastiska naturupplevelser och bekväm pendling.

Välkomna att kontakta ansvarig mäklare Knut Paxlind för mer information!

Visningar
  • Visning
    Torsdag 16 oktober 13:00 - 13:30

    Kontakta mäklaren

TIPSA

Knut

Paxlind

ANSVARIG
MÄKLARE

Sarah

Gustafsson

REG. FASTIGHETSMÄKLARE

Rumsbeskrivning - Bergums furåsväg 45

ENTRÉVÅNING

HALL

Klinkergolv med underliggande golvvärme som övergår i laminat och väggar i vitt med träpanel. Här finns plats för avhängning. I taket sitter dimbara spotlights.

KÖK

Laminatgolv i ek och vita väggar. Köksinredning i ljusgrå och ovan arbetsbänken i laminat sitter ljust laminat. Köket är utrustat med kyl och frys i fullhöjd, induktionshäll, inbyggd ugn, fläkt, inbyggd mikro och diskmaskin. Förvaring sker i ett skafferi, här finns även ett städskåp. I taket sitter dimbara spotlights. Matplats för cirka 6 personer.

VARDAGSRUM

Laminatgolv i ek och vita väggar. Här finns plats för soffa med tillhörande möbler.

SOVRUM 1

Laminatgolv i ek och vita väggar med en fondtapet. Här finns plats för säng med tillhörande möbler.

SOVRUM 2

Laminatgolv i ek och vita väggar med en fondtapet. Här finns plats för säng med tillhörande möbler.

BADRUM 1

Exklusivt klinkergolv med underliggande golvvärme och väggar i matchande klinker. Badrummet är utrustat med WC, dubbla handfat med kommod, spegel, handdukstork, dusch, tvättmaskin och torktumlare. Här inne finns även en varmvattenberedare med en kapacitet på 200 liter. I taket sitter dimbara spotlights.

BADRUM 2

Klinkergolv med underliggande golvvärme och helkaklade väggar. Badrummet är utrustat med WC, handfat med kommod, spegel och dusch. I taket sitter dimbara spotlights.

KLÄDKAMMARE

Vinylgolv och vita väggar. Här inne finns ett Elfa-system.

ÖVRE PLAN

SOVRUM 3

Laminatgolv i ek och vita väggar. Här finns plats för säng med tillhörande möbler.

SOVRUM 4

Laminatgolv i ek och vita väggar. Här finns plats för säng med tillhörande möbler.

SOVRUM 5

Laminatgolv i ek och vita väggar. Här finns plats för säng med tillhörande möbler.

SOVRUM 6

Laminatgolv i ek och fondtapet med gröna väggar och taklist i guldfärg. Här finns plats för säng med tillhörande möbler.

SOVRUM 7

Laminatgolv i ek och vita väggar. Här finns plats för säng med tillhörande möbler.

ALLRUM

Parkettgolv och vita väggar med mörkt tak. Här finns plats för soffa med tillhörande möbler eller möbleras efter behov och önskemål. Härifrån nås genom två stora glasdörrar den insynsskyddade altanen.

RENOVERINGAR

2022: Totalrenovering av huset.

BOAREAN

Den uppmätta boarean är 179 kvm enligt säljarens uppgifter. Huset har en total boarea på: 179 m² +/- 3%. Yta enligt taxering 83 kvm.

Fakta – Bergums furåsväg 45

Bostadstyp: Villa
Kommun: Göteborg
Besiktad: Bostaden är förbesiktad av säljaren.
Fastighetsbeteckning: Stenared 1:108
Storlek: 8 rum, 179 kvm boarea
Varav sovrum: 7
Areakälla: säljarens information
Utgångspris: 4 940 000 kr
Energiprestanda: 227 kWh/kvm och år
Energiklass: F
Servitut, samfälligheter, etc: Gemensamhetsanläggning: Göteborg stenared ga:4 ändamål: Vägar
Avtalsservitut D-2021-00066269:1
Förmån: Avtalsservitut Brunn, D202000549699:1.1
Förmån: Avtalsservitut Infiltrationsanläggning, 14-IM1-97/2109.1
Förmån: Officialservitut Avlopp, 1480K-2008F341.1
Last: Avtalsservitut Avloppsledning, D202100066269:1.1
Upplåtelseform: Friköpt
Pantbrev: Det finns 3 st pantbrev uttaget om sammanlagt 3 467 000 kr
Taxeringsvärde: 2 540 000 kr
Taxeringsår: 2024
Byggnadsvärde: 1 409 000 kr
Markvärde: 1 131 000 kr
Fastighetsavgift: 10 074 kr/år
Tillträde: Enligt överenskommelse.

Fakta – Byggnaden

Hus
Byggnadstyp: Friliggande villa
Byggår: 1955
Fasad: Trä
Stomme: Trä
Fönster: 3-glas
Tak: Plåt
Grundläggning: Pålar
Uppvärmning: Direkt El
Vatten och avlopp: Enskilt vatten året om. Enskilt avlopp
Övrigt om byggnaden: 2022 – Start av totalrenovering
Totalrenovering av befintlig bostad påbörjades våren 2022. Alla icke-bärande väggar revs.
Bärande vägg i mitten togs bort, och en balk fälldes in i taket för att skapa ett öppet kök och matplats. All befintlig gips togs ner. Där det inte fanns plankor monterades OSB-skivor, därefter ny gips på alla väggar. Dåliga golvspån och golvreglar byttes i den gamla delen. Övriga delar var i toppskick och behölls. Bristfällig isolering byttes ut. Badrum totalrenoverades: Nya golvreglar, ny isolering, nytt golvspån och ny gips i väggar och tak. Befintliga takplankor sparades (i mycket gott skick). Nya rör drogs in samt ny varmvattenberedare (200 liter) installerades.
En altandörr från tidigare ägare flyttades till lilla vardagsrummet. Takrenovering: Nytt plåttak på gamla delen av huset. Dålig råspont byttes ut.
Ny takpapp över hela takytan.
Ny vindduk och ny träpanel monterades på hela den gamla delen. All el byttes ut och drogs om av behörig elektriker. Uppfarten började förbättras i etapper.

2023 – Köksrenovering och fortsättning utvändigt
Nytt kök från IKEA installerades av husägaren.
Vatten- och avloppsdragning utfördes av certifierad rörläggare. Delar av köksgolvet byttes (för installation av rör), men friska plankor behölls.
Nya ytskikt i kök: väggar och tak kläddes med OSB och gips. Utvändiga arbeten och uppfarten fortsatte.

2024 – Avlopp, gräsmatta och målning
Nytt avloppssystem (Ecobox) installerades, dimensionerat för 7 personer. Framsidans gräsmatta såddes och iordningställdes.
Träpanelen på gamla delen målades.
Dräneringsrör lades runt huset och vid garage, längs med vägen. Värmeslinga i PME-slang lades från pumphus till hus för frysskydd av vattenledning. Nya vatten- och avloppsrör lades hela vägen från pumphus till hus. Förberedelser för vatten och avlopp till förrådet (ej inkopplat ännu). Uppfarten färdigställdes ytterligare.

2025 – Slutfinish och förråd
Nybyggt förråd uppfört enligt husstandard – möjligt att bo i framtiden. Ny elmatarkabel installerad från elstolpe till väggskåp (av Göteborg Energi). Målning av panel på gamla huset avslutades. Badrum entréplan.

Altanbyggen slutfördes (projektet pågick 2022–2025).
Tomt, uteplats och bilplats
Tomtarea: 1711 kvm
Tomttyp: Trädgårdstomt
Beskrivning uteplats: Altan med utekök och spabad.
Beskrivning bilplats: Parkering på uppfart. Finns ett garage som idag används som verkstad och förvaring.

Driftkostnader

Totalsumma: 24 300 kr/år

I driftkostnaden ingår följande:
Uppvärmning: 17 000 kr/år
VA: 4 100 kr/år
Väg/samfällighetsavgift: 3 200 kr/år

Driftkostnaden är beräknad på 6 personers hushåll.
Angiven driftkostnad är beräknad enligt säljarens uppgifter (2 vuxna + 4 barn). Kostnaderna kan vara både högre och lägre för ny ägare/boende.
Fullvärde: Ja

Utöver detta tillkommer kostnad för fastighetsavgift/skatt på 10 074 kr/år.

  • Denna bostad
  • Bostäder till salu via Erik Olsson

En riktigt lyckad

bostadsaffär

När du hittat ditt drömboende hjälper vi dig gärna att sälja din nuvarande bostad. För oss är det viktigt att du känner dig trygg både när du köper och säljer bostad via Erik Olsson. Därför är våra mäklare bland de vassaste och mest engagerade i branschen. Vi anstränger oss gärna lite extra för att din bostadsförsäljning ska bli perfekt. Hos oss får du en riktigt lyckad bostadsaffär – och bäst betalt.

Intresseanmälan

Få kontakt med en mäklare som är expert på just ditt område.

✶ Obligatoriska fält

Tillbaka till toppen