Gråbo / Gråbo

Annesjövägen 37

Utgångspris: 2 495 000 kr
TIPSA
Möjlighet att förvärva en sjönära fastighet med stor utvecklingspotential! Bygg ut eller renovera.

  • Naturnära boende
  • Magiskt utsikt
  • Förberett för attefallshus
  • Förberett för garage
  • Stor tomt
  • Bygglov finns
  • Gångavstånd till bad
  • Stor potential
  • 15 min till Lerum centrum

Nu finns möjligheten att ta över en charmig och karaktärsfull scoutgård med ett fantastiskt läge – precis vid sjön. Här kan du skapa ditt drömboende eller fritidshus med naturen, vattnet och lugnet som närmsta granne. Renovera det befintliga huset eller bygg till, här har det även påbörjats grundarbeten för ett attefallshus samt ett garage.

Fastigheten ligger idylliskt med badplats i direkt närhet till tomten – perfekt för morgondopp eller stilla kvällar vid vattnet.

För fastigheten finns i dagsläget delar av startbesked, bland annat för rivning av befintlig komplementbyggnad samt nybyggnation av garage. Det tidigare Attefallshuset har löpt ut – här kan man antingen invänta de nya reglerna som förväntas börja gälla i december 2025, eller kontakta kommunen för att undersöka vilka möjligheter som finns redan nu.

Bygglov finns för att göra om befintligt hus från scoutgård till bostad med tillbyggnation. Observera att startbesked för detta ännu inte är utfärdat och behöver ansökas om innan byggnation kan påbörjas. Bygglovet gäller till år 2027.

Garaget bör uppföras innan vattenpumpen installeras, eftersom anläggningen är seriekopplad mellan garage, boningshus och attefallshus. Detta upplägg säkerställer att vattenledningen skyddas mot frysning. Djupborrad brunn finns men pump behöver kompletteras med, kontakt för att färdigställa detta arbete finnes.

Fastigheten ligger inom strandskyddsområde, vilket innebär att den nya ägaren bör kontakta kommunen för att få vägledning kring vilka regler och hänsyn som gäller vid framtida åtgärder.

Detta är en möjlighet som sällan återkommer – en fastighet med sjönära läge, stor potential och utrymme att skapa något helt unikt.

Välkommen att kontakta ansvarig mäklare Knut Paxlind för mer information!

Snabbfakta
Boarea:
80 kvm
Tomtarea:
1701 kvm
Utgångspris:
2 495 000 kr
Byggnadsår:
1960
Fastighetsbeteckning:
Lekstorp 3:14
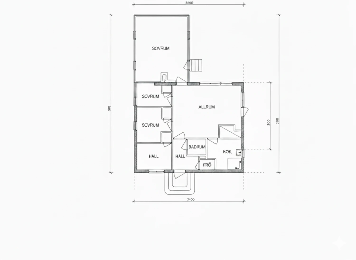
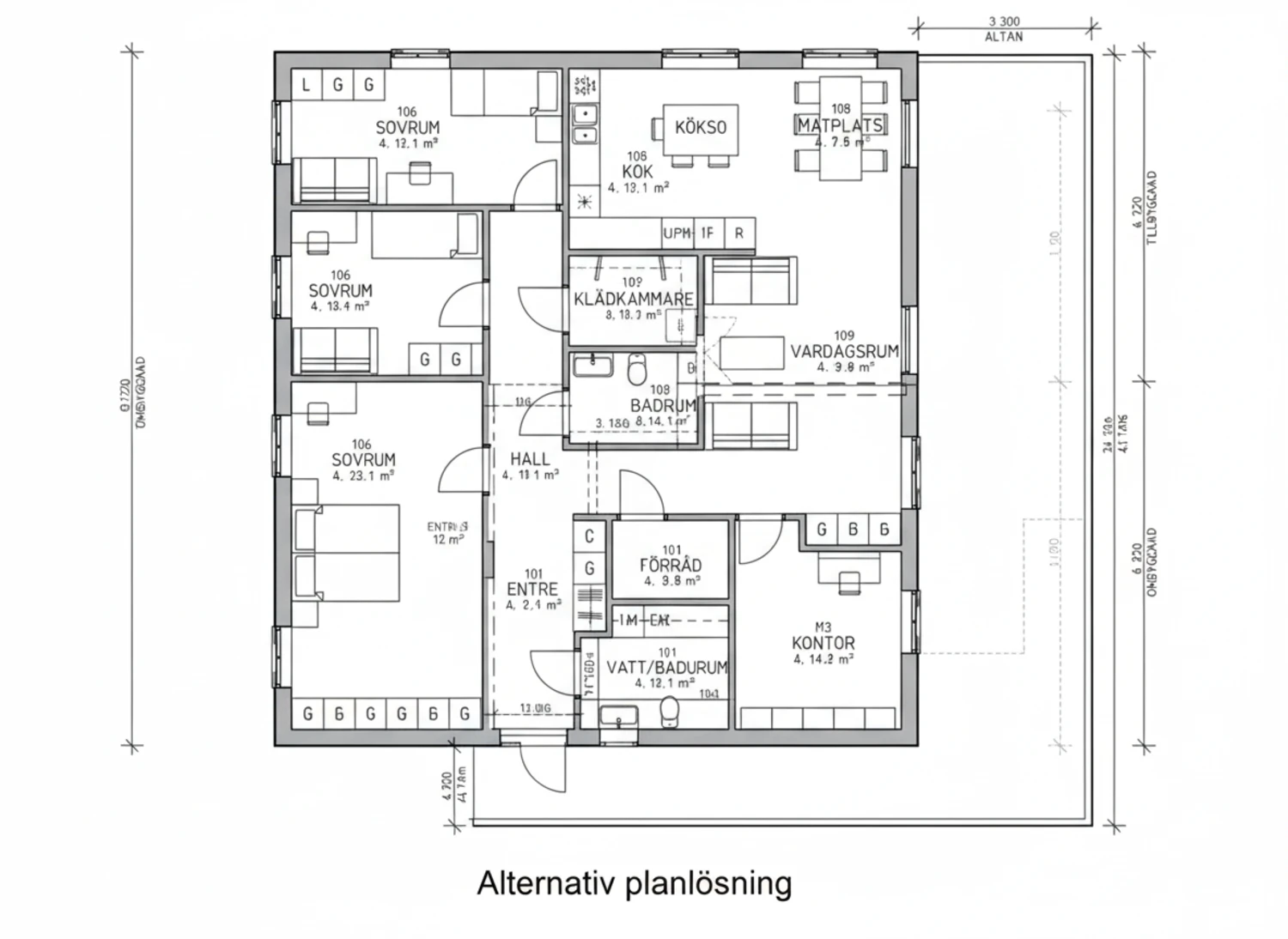
Planritning
Nuvarande planlösning Förslag på tillbyggnad Attefallshus exempel Attefallshus exempel
Visningar
  • Vänligen boka en tid för visning!
    Torsdag 16 oktober 12:00 - 12:30
    Boka
  • Kontakta mäklaren gällande visning!
    Söndag 19 oktober

    Kontakta mäklaren

Mäklare

Knut

Paxlind

ANSVARIG
MÄKLARE

Möjlighet att förvärva en sjönära fastighet med stor utvecklingspotential! Bygg ut eller renovera.

  • Naturnära boende
  • Magiskt utsikt
  • Förberett för attefallshus
  • Förberett för garage
  • Stor tomt
  • Bygglov finns
  • Gångavstånd till bad
  • Stor potential
  • 15 min till Lerum centrum

Nu finns möjligheten att ta över en charmig och karaktärsfull scoutgård med ett fantastiskt läge – precis vid sjön. Här kan du skapa ditt drömboende eller fritidshus med naturen, vattnet och lugnet som närmsta granne. Renovera det befintliga huset eller bygg till, här har det även påbörjats grundarbeten för ett attefallshus samt ett garage.

Fastigheten ligger idylliskt med badplats i direkt närhet till tomten – perfekt för morgondopp eller stilla kvällar vid vattnet.

För fastigheten finns i dagsläget delar av startbesked, bland annat för rivning av befintlig komplementbyggnad samt nybyggnation av garage. Det tidigare Attefallshuset har löpt ut – här kan man antingen invänta de nya reglerna som förväntas börja gälla i december 2025, eller kontakta kommunen för att undersöka vilka möjligheter som finns redan nu.

Bygglov finns för att göra om befintligt hus från scoutgård till bostad med tillbyggnation. Observera att startbesked för detta ännu inte är utfärdat och behöver ansökas om innan byggnation kan påbörjas. Bygglovet gäller till år 2027.

Garaget bör uppföras innan vattenpumpen installeras, eftersom anläggningen är seriekopplad mellan garage, boningshus och attefallshus. Detta upplägg säkerställer att vattenledningen skyddas mot frysning. Djupborrad brunn finns men pump behöver kompletteras med, kontakt för att färdigställa detta arbete finnes.

Fastigheten ligger inom strandskyddsområde, vilket innebär att den nya ägaren bör kontakta kommunen för att få vägledning kring vilka regler och hänsyn som gäller vid framtida åtgärder.

Detta är en möjlighet som sällan återkommer – en fastighet med sjönära läge, stor potential och utrymme att skapa något helt unikt.

Välkommen att kontakta ansvarig mäklare Knut Paxlind för mer information!

Visningar
  • Vänligen boka en tid för visning!
    Torsdag 16 oktober 12:00 - 12:30
    Boka
  • Kontakta mäklaren gällande visning!
    Söndag 19 oktober

    Kontakta mäklaren

TIPSA

Knut

Paxlind

ANSVARIG
MÄKLARE

Fakta – Annesjövägen 37

Bostadstyp: Villa
Kommun: Lerum
Fastighetsbeteckning: Lekstorp 3:14
Storlek: 80 kvm boarea
Areakälla: taxeringsinformation
Utgångspris: 2 495 000 kr
Energiprestanda: 137 kWh/kvm och år
Energiklass: F
Servitut, samfälligheter, etc: Gemensamhetsanläggning: Lerum hjällsnäs ga:22 ändamål: Vägar
Förmån: Avtalsservitut Brunn mm, 15-IM1-58/2768.1
Planbestämmelser: Detaljplan (2020-11-19) Detaljplan (2010-10-14) Detaljplan (2004-06-22) Detaljplan (2001-03-06) Detaljplan (2000-03-09) Detaljplan (1994-03-10) Detaljplan (1990-02-20) Byggnadsplan (1988-03-28) Stadsplan (1985-02-19) Byggnadsplan (1983-04-29) Landskapsbildsskydd (1971-05-10) Byggnadsplan (1968-11-15) Byggnadsplan (1960-03-18)
Upplåtelseform: Friköpt
Pantbrev: Det finns 4 st pantbrev uttaget om sammanlagt 11 000 kr
Taxeringsvärde: 1 813 000 kr
Taxeringsår: 2024
Byggnadsvärde: 363 000 kr
Markvärde: 1 450 000 kr
Fastighetsavgift: 10 074 kr/år
Tillträde: Enligt överenskommelse

Fakta – Byggnaden

Hus
Byggnadstyp: Frilligande villa
Byggår: 1960
Fasad: Trä
Stomme: Trä
Grundläggning: Krypgrund
Uppvärmning: Direkt El
Vatten och avlopp: Vatten saknas. Avlopp saknas
Övrigt om byggnaden: 2024
Borrat ny brunn, installerat nytt reningsverk, sprängt och gjort förberedande markarbeten, och förberett för gjutning för garage och attefallshus. Installerat duschkabin och toalett i ursprungsbyggnad.
Tomt, uteplats och bilplats
Tomtarea: 1701 kvm
Beskrivning bilplats: Parkering på uppfart.

Driftkostnader

Totalsumma: 794 kr/år

I driftkostnaden ingår följande:
Väg/samfällighetsavgift: 794 kr/år

Fullvärde: Ja

Utöver detta tillkommer kostnad för fastighetsavgift/skatt på 10 074 kr/år.

  • Denna bostad
  • Bostäder till salu via Erik Olsson

En riktigt lyckad

bostadsaffär

När du hittat ditt drömboende hjälper vi dig gärna att sälja din nuvarande bostad. För oss är det viktigt att du känner dig trygg både när du köper och säljer bostad via Erik Olsson. Därför är våra mäklare bland de vassaste och mest engagerade i branschen. Vi anstränger oss gärna lite extra för att din bostadsförsäljning ska bli perfekt. Hos oss får du en riktigt lyckad bostadsaffär – och bäst betalt.

Intresseanmälan

Få kontakt med en mäklare som är expert på just ditt område.

✶ Obligatoriska fält

Tillbaka till toppen