Enskede / ENSKEDEDALEN

Fyrvaktarkroken 68

Budgivning pågår
Högsta bud: 3 800 000 kr
Utgångspris: 3 795 000 kr
TIPSA
Näst högst upp - 8 kvm solig balkong - Fönster åt motsatta håll - Vy över gårdar - Optimalt planerad

Endast 200 meter från Blåsuts tunnelbana hittar du denna tvåa på femte våningen med stor himmelkontakt och utsikt mot gröna gårdar från alla fönster. Det fria läget näst högst upp i huset och breda fönsterpartier i två väderstreck ger ett otroligt ljusflöde genom hela bostaden. Västvänd balkong om ca 8 kvm bjuder på strålande sol från eftermiddag till kväll – perfekt för afterwork eller middag med familj och vänner!

Genomtänkt disposition och hög boendekomfort – rymliga och lättmöblerade rum, generös sällskapsyta, fullt utrustat kök med utbytt induktionshäll och köksfläkt, samtliga vitvaror från Electrolux, säkerhetsdörr, nymålade väggar samt badrum med tvättmaskin och torktumlare. Utmärkta förvaringsmöjligheter i walk in-closet som för närvarande används som kontor, garderober i hall och sovrum samt källarförråd om 6 kvm. Inglasning av balkong och montering av markis är tillåtet.

Äkta brf som äger marken och har mycket stabil ekonomi till följd av låg ränta på lån samt betydande intäkter från bland annat fyra kommersiella lokaler och 106 bilplatser. Amortering har skett med ca 3-4 mkr varje år de senaste åren. Fastigheten uppfördes 2013–2014 och kompletterades 2018 med konst i samtliga portar. Medlemmar har tillgång till en mängd faciliteter som kostnadsfritt gym, grovtvättstuga, miljörum med källsortering, tre soprum, flertal cykelförråd, barnvagnsrum i varje trapphus, extra förråd att hyra samt upprustad gård med lekplats och grill. Det finns även en bokningsbar föreningslokal med välutrustat kök, toaletter och 6 matgrupper. Installation av solpaneler pågår på föreningens tak.

Säljarens kommentar:
"Jag har verkligen trivts i min lägenhet, mycket tack vare den smarta planlösningen som gör att den känns både större och luftigare. På eftermiddagarna får bostaden ett fantastiskt vackert ljus som gör hemmet härligt att vara i.

Läget har också varit något jag alltid uppskattat. Det är gångavstånd till Södermalm, men samtidigt har jag nära till naturen i Nackareservatet. Där finns fina motionsspår och flera badplatser som jag gärna har tagit mig till för både träning och avkoppling. Kombinationen av närhet till både stad och natur är verkligen svårslagen.

En annan sak jag har tyckt mycket om är restaurangutbudet i Slakthusområdet. Mina absoluta favoriter har varit Solen, Hosoi och Bar Montan.

Det här har helt enkelt varit ett hem där jag både kunnat njuta av lugn och närhet till naturen, men också haft stadens puls och riktigt bra restauranger runt hörnet.”

Budhistorik
Bud Budgivare Tidpunkt
3 800 000 kr 1 2025-10-13 14:45
Snabbfakta
Avgift:
4 984 kr
I avgiften ingår värme, kallvatten, TV (bas), bredband (500/500 Mbit/s) och bostadsrättstillägg till hemförsäkring. Individuell mätning och debitering av varmvatten och hushållsel.
Rum:
2 rum
Boarea:
65 kvm
Våning:
5 av 6
Utgångspris:
3 795 000 kr
Byggnadsår:
2013-2014
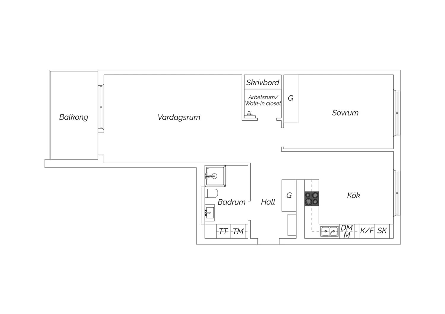
Planritning
Visningar
  • Obs vänligen boka vilken tid du planerar att besöka visningen
    Söndag 19 oktober 13:00 - 14:00
    Boka
Mäklare

Linda

Yu

ANSVARIG
MÄKLARE

Näst högst upp - 8 kvm solig balkong - Fönster åt motsatta håll - Vy över gårdar - Optimalt planerad

Endast 200 meter från Blåsuts tunnelbana hittar du denna tvåa på femte våningen med stor himmelkontakt och utsikt mot gröna gårdar från alla fönster. Det fria läget näst högst upp i huset och breda fönsterpartier i två väderstreck ger ett otroligt ljusflöde genom hela bostaden. Västvänd balkong om ca 8 kvm bjuder på strålande sol från eftermiddag till kväll – perfekt för afterwork eller middag med familj och vänner!

Genomtänkt disposition och hög boendekomfort – rymliga och lättmöblerade rum, generös sällskapsyta, fullt utrustat kök med utbytt induktionshäll och köksfläkt, samtliga vitvaror från Electrolux, säkerhetsdörr, nymålade väggar samt badrum med tvättmaskin och torktumlare. Utmärkta förvaringsmöjligheter i walk in-closet som för närvarande används som kontor, garderober i hall och sovrum samt källarförråd om 6 kvm. Inglasning av balkong och montering av markis är tillåtet.

Äkta brf som äger marken och har mycket stabil ekonomi till följd av låg ränta på lån samt betydande intäkter från bland annat fyra kommersiella lokaler och 106 bilplatser. Amortering har skett med ca 3-4 mkr varje år de senaste åren. Fastigheten uppfördes 2013–2014 och kompletterades 2018 med konst i samtliga portar. Medlemmar har tillgång till en mängd faciliteter som kostnadsfritt gym, grovtvättstuga, miljörum med källsortering, tre soprum, flertal cykelförråd, barnvagnsrum i varje trapphus, extra förråd att hyra samt upprustad gård med lekplats och grill. Det finns även en bokningsbar föreningslokal med välutrustat kök, toaletter och 6 matgrupper. Installation av solpaneler pågår på föreningens tak.

Säljarens kommentar:
"Jag har verkligen trivts i min lägenhet, mycket tack vare den smarta planlösningen som gör att den känns både större och luftigare. På eftermiddagarna får bostaden ett fantastiskt vackert ljus som gör hemmet härligt att vara i.

Läget har också varit något jag alltid uppskattat. Det är gångavstånd till Södermalm, men samtidigt har jag nära till naturen i Nackareservatet. Där finns fina motionsspår och flera badplatser som jag gärna har tagit mig till för både träning och avkoppling. Kombinationen av närhet till både stad och natur är verkligen svårslagen.

En annan sak jag har tyckt mycket om är restaurangutbudet i Slakthusområdet. Mina absoluta favoriter har varit Solen, Hosoi och Bar Montan.

Det här har helt enkelt varit ett hem där jag både kunnat njuta av lugn och närhet till naturen, men också haft stadens puls och riktigt bra restauranger runt hörnet.”

Visningar
  • Obs vänligen boka vilken tid du planerar att besöka visningen
    Söndag 19 oktober 13:00 - 14:00
    Boka
TIPSA

Linda

Yu

ANSVARIG
MÄKLARE

Rumsbeskrivning - Fyrvaktarkroken 68

RENOVERINGAR

2022 - Väggar målades i vardagsrum, sovrum och arbetsrum. Köksfläkt byttes. Bänkskiva monterades i arbetsrum. 2020 - Induktionshäll byttes. 2018 - Trätrall lades på balkong.

GENERELLT

Tvåluftsfönster i nischer med fönsterbänkar i gråbrunmelerad natursten. Alla fönsterpartier inklusive balkongdörr är utrustad med rullgardiner förutom i sovrum. Genomgående planlösning och golv i ekparkett från Kährs, låg golvlist i trä som matchar parketten, släta dörrar, målade väggar samt takhöjd om ca 250 cm. Samtliga vitvaror från Electrolux. All väggfast inredning går i vitt om inget annat anges.

HALL

Träfärgad säkerhetsdörr, hatthylla i trä från Essem Design, garderob, vita väggar och svart klinker på golv vid entrén.

VARDAGSRUM MED BALKONG

Dörrlös öppning leder in till sällskapsrum med väggar i sandbeige nyans. Ett fönster och en helglasad balkongdörr som vetter mot föreningens innergård. Väl tilltagen yta för soffa, soffbord, fåtöljer, mediamöbel, bokhyllor och matgrupp eller arbetshörna. Social balkong om ca 8 kvm i väst med sol mellan ca kl.14-19. Räcke i vitlackad metall med perforerad täckfront och trätrall på betonggolv. Utrymme för planteringar och större utemöbler som balkongsoffa eller solsäng. Föreningen tillåter inglasning av balkong och montering av markis.

ARBETSRUM/WALK-IN CLOSET

Kan användas som kontor eller enkelt återställas till klädkammare. Väggmonterad bänkskiva i trä samt väggar i vitt utöver en gråblå fondvägg.

SOVRUM

Ett fönster mot Fyrvaktarkroken och granngård. Dubbla takskenor för gardiner, garderob, och väggar i gråblått. Dubbelsäng, nattduksbord, sängbänk och stol ryms.

KÖK

Släta köksluckor och lådfronter med grepplister, rektangulära kakelplattor som stänkskydd, dubbelho med bågformad blandare samt arbetsbänk i delvis svart laminat och delvis rostfritt stål. Induktionshäll, inbyggnadsugn, underbyggnadsfläkt, inbyggd mikro i arbetshöjd, diskmaskin samt kombinerad kyl och frys. Vita väggar, rejäla arbetsytor och gott om förvaring. Matbord för åtta personer ryms vid ett fönster.

BADRUM

Vitt kakel på väggar och svart klinkergolv. Stor spegel med ovanbelysning och avställningshylla i mörkgråmelerad sten, infälld i nisch bakom vägghängd toalett. Handfat, kroklist, krokar, toalettpappershållare och takplafond. Duschhörn med handdusch och två raka svängbara glasdörrar. Tvättmaskin och torktumlare under arbetsbänk i laminat samt överskåp med släta luckor och belysning undertill.

FÖRRÅD

Till lägenheten hör ett källarförråd om ca 6 kvm med full takhöjd.

Fakta – Fyrvaktarkroken 68

Bostadstyp: Bostadsrätt
Kommun: Stockholm
Storlek: 2 rum, 65 kvm boarea
Areakälla: föreningens information
Våning: 5 av 6
Lägenhetsnummer: 31 (1403)
Utgångspris: 3 795 000 kr
Månadsavgift: 4 984 kr
I avgiften ingår värme, kallvatten, TV (bas), bredband (500/500 Mbit/s) och bostadsrättstillägg till hemförsäkring. Individuell mätning och debitering av varmvatten och hushållsel.
Andelstal: Andel i förening 0,629 %
Indirekt nettoskuldsättning: Bostadsrättens indirekta nettoskuldsättning anger hur stor andel av bostadsrättsföreningens lån som indirekt belastar bostadsrätten. Andelen beräknas som andelstalet för avgifter multiplicerat med föreningens nettoskuldsättning. Den består av räntebärande skulder med avdrag för räntebärande tillgångar och likvida medel. Underlagen för beräkningen kommer från föreningen.
Energiprestanda: 100 kWh/kvm och år
Energiklass: D
Tillträde: 3 mån eller enligt överenskommelse

Fakta – HSB Brf Perrongen i Stockholm

Äkta/oäkta förening: Äkta
Äger föreningen marken: Ja
Antal lägenheter: 152
Antal lokaler: 4
Allmänt om föreningen: HSB Brf Perrongen i Stockholm består av adresserna Sofielundsvägen 15 och 23, Hållövägen 11 och 13, Fyrvaktarkroken 66, 68 och 70 samt Vingavägen 2, 8 och 10.

Föreningens lokaler är upplåtna med hyresrätt och hyresgäster är Handlarn, D&G:s pizzeria och Ayas café.

Gemensam tvättstuga är belägen i källaren på Fyrvaktarkroken 70 och utrustad med två tvättmaskiner, ett torkskåp, en mangel och en lakanssträckare. Tvättstugan är endast till för grovtvätt då samtliga lägenheter är utrustade med tvättmaskiner och torktumlare.

Medlemmar har tillgång till kostnadsfritt gym i garaget närmast ingången till Hållövägen 11. Gymmet bokas per timme via schemat som sitter på dörren. Max tre pass à en timme per hushåll och vecka.

Bokningsbar föreningslokal finns i källaren på Hållövägen 11 men går även att nå genom garaget från övriga trapphus. Föreningslokalen har 6 bord, 40-tal stolar, två toaletter, städskåp med städartiklar samt kök med diskmaskin, spis och kylskåp.

5 cykelrum och 10 st barnvagnsrum/kombinerat rullstolsförråd.

Återbrukshörnan finns i cykelrummet intill Fyrvaktarkroken 66.

Det finns 12 extra källarförråd i varierande storlek mellan 1,5 - 9 kvm som föreningens medlemmar kan hyra.

Individuellt medlemskap i HSB Stockholm krävs.
Besök gärna föreningens hemsida för mer information: https://www.hsb.se/stockholm/brf/perrongen/
Parkering: I föreningen finns 36 parkeringsplatser, 70 garageplatser varav 21 med el-plats, 5 MC-platser och 2 mopedplatser.

Bilplats - Garage 1 127 kr/mån
Elbilsplats - Garage 1 389 kr/mån
Motorcykel - Garage 330 kr/mån
Moped - Garage 330 kr/mån
Uteplats 584 kr/mån

Priserna höjs årligen enligt senaste beslut från styrelsen med 1,5% per år.

Parkering och garageplatser samt kö till dessa sköts av Corepark, info@corepark.se eller telefon: 08-650 02 15.
Överlåtelseavgift och pantsättning: En överlåtelseavgift tas ut om ca 2 058 kr som betalas av säljaren. Vid belåning av bostaden tas en pantsättningsavgift ut om ca 882 kr/pant. Beloppen är beräknade på prisbasbeloppet för år 2025.
Hus
Byggår: 2013-2014
Byggnadstyp: Flerfamiljshus
Hiss: Hiss finns
Ventilation: Mekanisk (endast frånluft) med tilluft genom tilluftsdon
Uppvärmning: Fjärrvärme kompletterad med frånluftsvärmepumpar
Tv och internet: Föreningen är ansluten till TV och bredband via Telenor (Bredbandsbolaget).
Renoveringar
Utförda renoveringar i föreningen:
2025 Solpaneler
2022 Nya ladd-platser i garaget.
2021 Nya digitala lås har installerats på källardörrar till förråd och cykelrum.
2020 - Underhåll på innergården, byte av buskar samt utemöbler
2018 - Ombyggnad i källaren där två cykelrum blev föreningslokal, gym och styrelserum.

Brf Perrongen har en underhållsplan och inga större arbeten är planerade.

Driftkostnader

Totalsumma: 7 090 kr/år

I driftkostnaden ingår följande:
El: 3 167 kr/år
VA: 1 917 kr/år
Försäkring: 2 006 kr/år

Driftkostnaden är beräknad på 2 personers hushåll.
Angiven driftkostnad är beräknad enligt säljarens uppgifter. Kostnaderna kan vara högre eller lägre för ny ägare/boende.

  • Denna bostad
  • Bostäder till salu via Erik Olsson

En riktigt lyckad

bostadsaffär

När du hittat ditt drömboende hjälper vi dig gärna att sälja din nuvarande bostad. För oss är det viktigt att du känner dig trygg både när du köper och säljer bostad via Erik Olsson. Därför är våra mäklare bland de vassaste och mest engagerade i branschen. Vi anstränger oss gärna lite extra för att din bostadsförsäljning ska bli perfekt. Hos oss får du en riktigt lyckad bostadsaffär – och bäst betalt.

Intresseanmälan

Få kontakt med en mäklare som är expert på just ditt område.

✶ Obligatoriska fält

Tillbaka till toppen