Billdal / Billdal

Berghagavägen 1A

Utgångspris: 4 850 000 kr
TIPSA
Havsnära idyll med villakänsla och stor trädgård!

  • Villakänsla
  • Stor lättskött trädgård
  • Social och öppen planlösning
  • Genomgående golvvärme
  • Separat praktisk tvättstuga
  • Välskött och stabil förening
  • Nära badvikar och klippor
  • Lummiga promenadstråk intill
  • Nära Billdals Park
  • Fina skolor och förskolor
  • Serviceutbud i Nya Hovås
  • Nära golf och ridklubb
  • Smidig buss till city
  • Tryggt och naturnära läge

Välkommen till ett boende som lyckas med konststycket att både kännas modernt och ombonat, beläget i en grönskande oas där lugnet råder. Här bor ni med känslan av villaliv – med en stor uteplats att följa solen från morgon till kväll och en lättskött stor trädgård som bjuder in till grillkvällar, barnlek eller bara stilla kaffestunder i det fria.

Planlösningen är genomtänkt och social, där kök och vardagsrum samspelar i en öppen helhet som bjuder in till både spontana vardagsmöten och längre kvällar med vänner. Ett helkaklat badrum i tidlöst utförande som tillsammans med en separat tvättstuga som gör vardagen smidigare.

Bostaden är en del av en välordnad förening i ett område där naturen alltid är nära. Rofyllda stigar, glittrande badvikar och gröna parker finns inom räckhåll – perfekt för dig som värdesätter ett aktivt och naturnära liv. Samtidigt är närheten till Nya Hovås ett riktigt plus, med sitt generösa utbud av service, skolor, förskolor och caféer.

Med buss tar ni er enkelt till centrala Göteborg, men kanske väljer ni att stanna hemma – för här har ni hittat en plats som passar lika bra för barnfamiljen som för paret eller den som söker ett harmoniskt hem i ett av stadens mest omtyckta områden.

Snabbfakta
Avgift:
4 169 kr
I avgiften ingår parkering, samfällighetsavgift, vatten, sophantering
Rum:
3 rum och kök
Boarea:
77 kvm
Våning:
1 av 2
Utgångspris:
4 850 000 kr
Byggnadsår:
2012
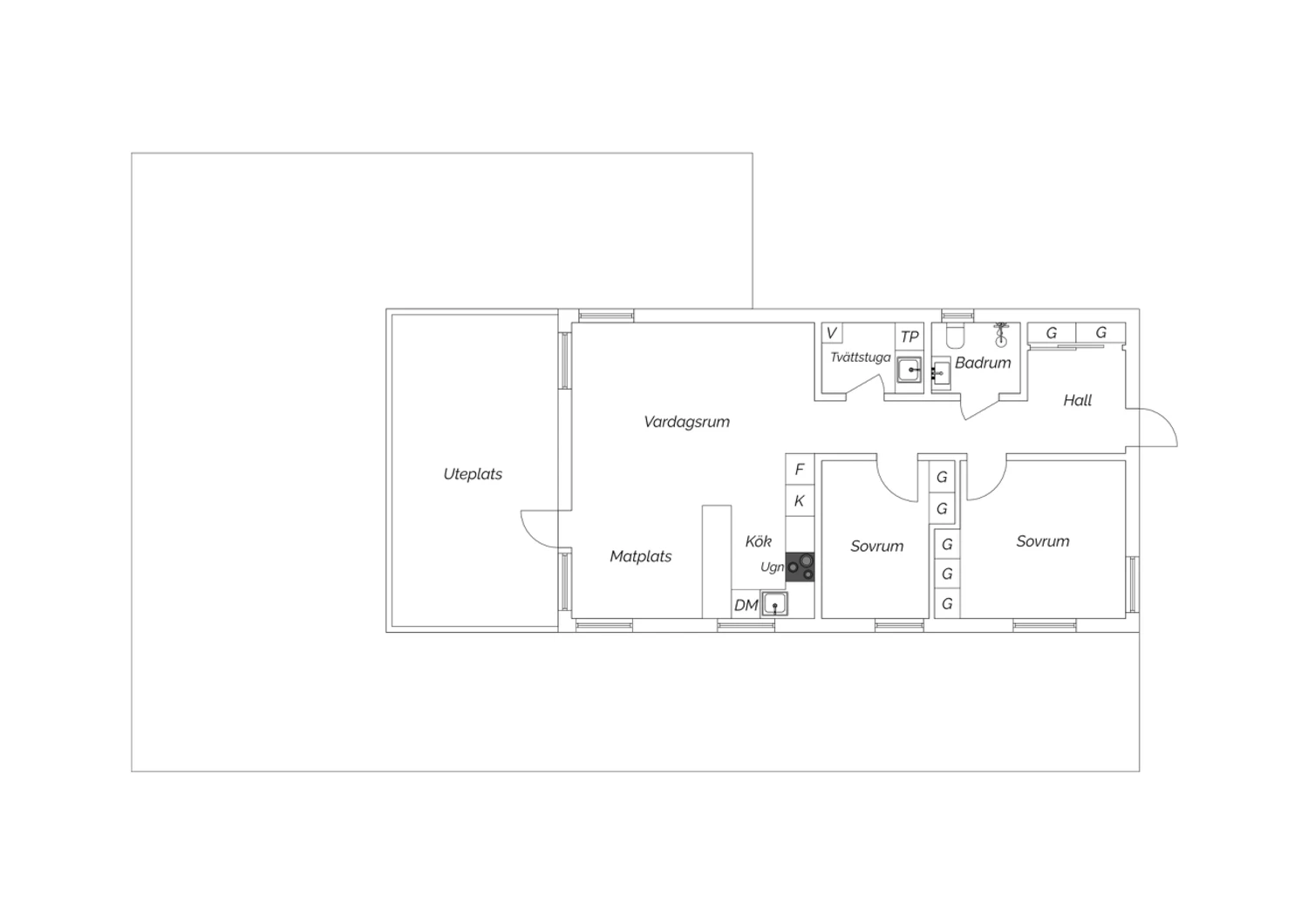
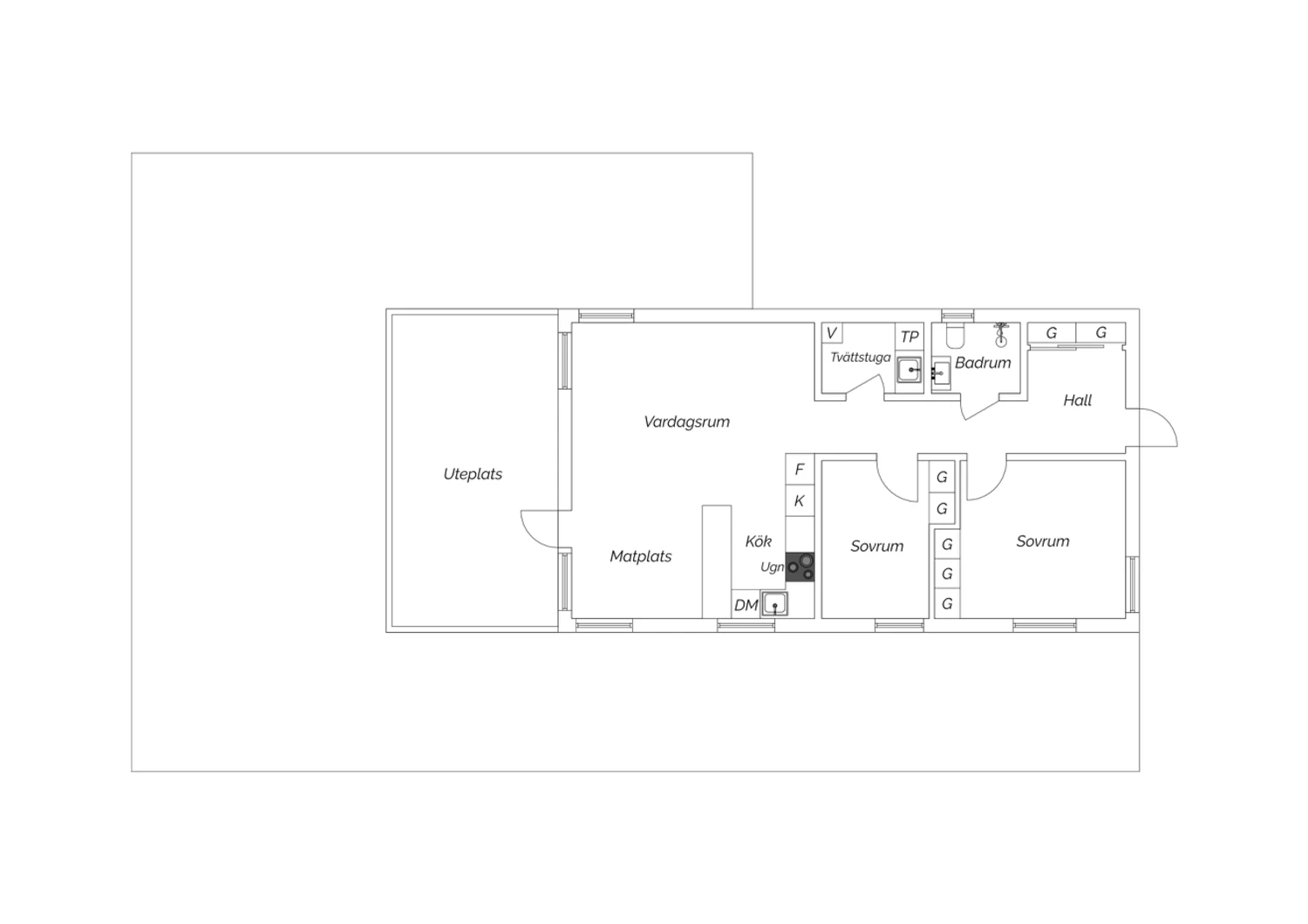
Planritning
e-prospekt
Visningar
  • Bokad visning! välkomna att boka visning på mäklarens hemsida.
    Lördag 18 oktober 13:00 - 13:30
    Boka
Mäklare

Fredrik

Hartman

ANSVARIG
MÄKLARE

Viktoriia

Pavlenko

REG. FASTIGHETSMÄKLARE

Havsnära idyll med villakänsla och stor trädgård!

  • Villakänsla
  • Stor lättskött trädgård
  • Social och öppen planlösning
  • Genomgående golvvärme
  • Separat praktisk tvättstuga
  • Välskött och stabil förening
  • Nära badvikar och klippor
  • Lummiga promenadstråk intill
  • Nära Billdals Park
  • Fina skolor och förskolor
  • Serviceutbud i Nya Hovås
  • Nära golf och ridklubb
  • Smidig buss till city
  • Tryggt och naturnära läge

Välkommen till ett boende som lyckas med konststycket att både kännas modernt och ombonat, beläget i en grönskande oas där lugnet råder. Här bor ni med känslan av villaliv – med en stor uteplats att följa solen från morgon till kväll och en lättskött stor trädgård som bjuder in till grillkvällar, barnlek eller bara stilla kaffestunder i det fria.

Planlösningen är genomtänkt och social, där kök och vardagsrum samspelar i en öppen helhet som bjuder in till både spontana vardagsmöten och längre kvällar med vänner. Ett helkaklat badrum i tidlöst utförande som tillsammans med en separat tvättstuga som gör vardagen smidigare.

Bostaden är en del av en välordnad förening i ett område där naturen alltid är nära. Rofyllda stigar, glittrande badvikar och gröna parker finns inom räckhåll – perfekt för dig som värdesätter ett aktivt och naturnära liv. Samtidigt är närheten till Nya Hovås ett riktigt plus, med sitt generösa utbud av service, skolor, förskolor och caféer.

Med buss tar ni er enkelt till centrala Göteborg, men kanske väljer ni att stanna hemma – för här har ni hittat en plats som passar lika bra för barnfamiljen som för paret eller den som söker ett harmoniskt hem i ett av stadens mest omtyckta områden.

Visningar
  • Bokad visning! välkomna att boka visning på mäklarens hemsida.
    Lördag 18 oktober 13:00 - 13:30
    Boka
TIPSA

Fredrik

Hartman

ANSVARIG
MÄKLARE

Viktoriia

Pavlenko

REG. FASTIGHETSMÄKLARE

Rumsbeskrivning - Berghagavägen 1A

HALL

Ni välkomnas av en hall med vita väggar och klinkerklätt golv med golvvärme. Förvaringen sker i en stor garderob med skjutdörrar.

KÖK

På golvet ligger parkett med golvvärme till målade vita väggar. Gott om förvaring bakom de vita köksluckor. Stänkskydd i svart kakel skänker ytterligare karaktär. Utrustningen består av kyl, frys, induktionshäll, inbyggd ugn och mikro samt diskmaskin.

VARDAGSRUM

Parkett med golvvärme och vita väggar. Öppen planlösning med köket, där både sittgruppen och matbordet har sin naturliga plats. Utgång till altanen.

SOVRUM 1

Härligt rymligt med parkett och golvvärme till de ljusa väggarna. Plats för dubbelsängen och för förvaringen finns hel garderobsvägg.

SOVRUM 2

Sovrum som rymmer en enkelsäng och tillhörande möblemang som exempelvis skrivbord eller sittgrupp. Parkettgolvet med golvvärme ger en skön komfort. Två garderober ger gott om förvaring.

BADRUM

Här ligger ett mörkt klinkergolv med golvvärme till vita kaklade väggar. Inredningen består av dusch med duschdörrar i glas samt handdukstork, toalett och spegelskåp.

TVÄTTSTUGA

Praktisk separat tvättstuga inredd med kaklat mörkgrått golv med golvvärme och vita målade väggar. Tvättmaskin och torktumlare samt gott om förvaring på hyllor och i skåp.

Fakta – Berghagavägen 1A

Bostadstyp: Bostadsrätt
Kommun: Göteborg
Storlek: 3 rum och kök, 77 kvm boarea
Areakälla: föreningens information
Våning: 1 av 2
Lägenhetsnummer: 1
Utgångspris: 4 850 000 kr
Månadsavgift: 4 169 kr
I avgiften ingår parkering, samfällighetsavgift, vatten, sophantering
Andelstal: Andel i förening 11,017 %, andel av årsavgift 11,017 %
Indirekt nettoskuldsättning: 497 514 kr
Bostadsrättens indirekta nettoskuldsättning anger hur stor andel av bostadsrättsföreningens lån som indirekt belastar bostadsrätten. Andelen beräknas som andelstalet för avgifter multiplicerat med föreningens nettoskuldsättning. Den består av räntebärande skulder med avdrag för räntebärande tillgångar och likvida medel. Underlagen för beräkningen kommer från föreningen.
Energiprestanda: 52 kWh/kvm och år

Fakta – BRF Billdalshöjden

Äkta/oäkta förening: Äkta
Äger föreningen marken: Ja
Antal lägenheter: 8
Allmänt om föreningen: Föreningen äger fastigheterna Hulan 513:1, Hulan 513:2, Hulan 513:3 och Hulan 513:4 i Göteborg kommun med därpå uppförda byggnader med 8 lägenheter. Byggnaderna är uppförda 2012. Fastigheternas adresser är Berghagavägen 1 A-B, 3 A-B, 5 A-B och 7 A-B i Göteborg.
Föreningen upplåter 8 lägenheter med bostadsrätt.
Parkering: Till varje bostadsrätt hör en parkering som ligger i anslutning till bostaden
Eventuell installation av laddplats ombesörjes och bekostas av enskild medlem.
Överlåtelseavgift och pantsättning: En överlåtelseavgift tas ut om ca 1 470 kr som betalas av köparen. Vid belåning av bostaden tas en pantsättningsavgift ut om ca 588 kr/pant. Beloppen är beräknade på prisbasbeloppet för år 2025.
Hus
Byggår: 2012
Byggnadstyp: Flerbostadshus
Hiss: Hiss finns ej
Ventilation: Mekanisk (endast frånluft) med återvinning
Uppvärmning: Frånluftsvärmepump
Tv och internet: Fiber
Renoveringar
2023 Service av värmepumpar
2020 Service av värmepumpar
2020 Spolning av dagvattensystem

Driftkostnader

Totalsumma: 18 000 kr/år

I driftkostnaden ingår följande:
El: 15 000 kr/år
Försäkring: 3 000 kr/år

Driftkostnaden är beräknad på 2 personers hushåll.
Driftskostnader enligt schablon

  • Denna bostad
  • Bostäder till salu via Erik Olsson

En riktigt lyckad

bostadsaffär

När du hittat ditt drömboende hjälper vi dig gärna att sälja din nuvarande bostad. För oss är det viktigt att du känner dig trygg både när du köper och säljer bostad via Erik Olsson. Därför är våra mäklare bland de vassaste och mest engagerade i branschen. Vi anstränger oss gärna lite extra för att din bostadsförsäljning ska bli perfekt. Hos oss får du en riktigt lyckad bostadsaffär – och bäst betalt.

Intresseanmälan

Få kontakt med en mäklare som är expert på just ditt område.

✶ Obligatoriska fält

Tillbaka till toppen