Porslinskvarteren/Gustavsberg / Gustavsberg

Maja Snis gata 6, 3 tr högst upp

Föreslagen budstart: 4 950 000 kr
TIPSA
Högst upp i huset med stor solig balkong och välplanerad planlösning - Garage

  • Stor solig balkong
  • Högst upp i huset
  • Soligt läge
  • Fönster i tre väderstreck
  • Rymliga ytor
  • Vitvaror från Siemens
  • Öppen och social planlösning
  • Dubbla badrum
  • Inbyggd förvaring
  • Övernattningslägenhet och hobbyrum i föreningen
  • I hjärtat av Porslinskvarteren
  • Välskött förening
  • Invid Gustavsbergs hamn
  • Nära buss
  • Närhet till träningsanläggningar & natur

I hjärtat av Porslinskvarteren finns nu möjlighet att förvärva en mycket välplanerad 4:a, möjligen 5:a om 102 kvm med fönster i tre väderstreck. Öppen planlösning mellan kök och vardagsrum, stor balkong med soligt läge och tre sovrum samt två badrum. Det finns möjlighet att skapa ett fjärde sovrum i vardagsrummet.
Här möts ni av ljusa och generösa ytor som bjuder in till umgänge med familj och vänner. Kök och vardagsrum ligger i en öppen och social planlösning och här finns även utgång till den stora balkongen i bästa solläge. Vardagsrum och kök ligger i vinkel och kantas av flera fönsterpartier vilket bidrar till den luftiga känslan. Stort ljusinsläpp och ett högt och fritt läge. Här finns gott om plats för ett stort matbord samt vardagsrumsmöbler. Den stora balkongen i sydväst har ett soligt läge och gott om plats för utemöbler och planteringar. Lägenheten har genomtänkta kvadratmeter och gott om förvaring i form av inbyggda garderober med stilrena skjutpartier. För bästa komfort har lägenheten dubbla badrum med ljus interiör, dusch, tvättmaskin och torktumlare. Det finns garage i huset där man kan ta hiss hela vägen upp till lägenheten.

Utanför porten väntar charmiga Gustavsbergs hamn på nära avstånd med restauranger och service samt fina naturstråk i vacker miljö. Buss kommunikationerna till stan går regelbundet och tar endast cirka 25 min till Slussen. Föreningen har även en trevlig lekplats på innergården förutom övernattningsrum samt hobbyrum och garage.

Snabbfakta
Avgift:
6 208 kr
I avgiften ingår värme och kallvatten. Varmvattnet debiteras efter förbrukning och läggs på avgiftsavierna. Obligatoriskt tillägg om 220 kr/mån för Triple play/Telia fiber.
Rum:
4 rum
Boarea:
102 kvm
Våning:
3 av 3
Föreslagen budstart:
4 950 000 kr
Byggnadsår:
2017-2018
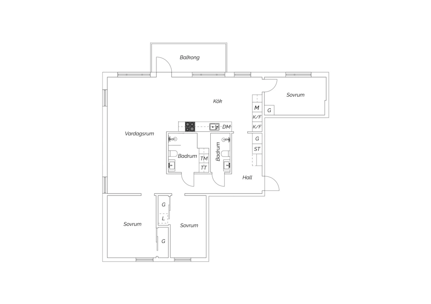
Planritning
e-prospekt
Visningar
  • Anmäl er gärna! välkomna!
    Söndag 19 oktober 12:15 - 12:45
    Boka
Mäklare

Helen

Larsson

ANSVARIG
MÄKLARE

Högst upp i huset med stor solig balkong och välplanerad planlösning - Garage

  • Stor solig balkong
  • Högst upp i huset
  • Soligt läge
  • Fönster i tre väderstreck
  • Rymliga ytor
  • Vitvaror från Siemens
  • Öppen och social planlösning
  • Dubbla badrum
  • Inbyggd förvaring
  • Övernattningslägenhet och hobbyrum i föreningen
  • I hjärtat av Porslinskvarteren
  • Välskött förening
  • Invid Gustavsbergs hamn
  • Nära buss
  • Närhet till träningsanläggningar & natur

I hjärtat av Porslinskvarteren finns nu möjlighet att förvärva en mycket välplanerad 4:a, möjligen 5:a om 102 kvm med fönster i tre väderstreck. Öppen planlösning mellan kök och vardagsrum, stor balkong med soligt läge och tre sovrum samt två badrum. Det finns möjlighet att skapa ett fjärde sovrum i vardagsrummet.
Här möts ni av ljusa och generösa ytor som bjuder in till umgänge med familj och vänner. Kök och vardagsrum ligger i en öppen och social planlösning och här finns även utgång till den stora balkongen i bästa solläge. Vardagsrum och kök ligger i vinkel och kantas av flera fönsterpartier vilket bidrar till den luftiga känslan. Stort ljusinsläpp och ett högt och fritt läge. Här finns gott om plats för ett stort matbord samt vardagsrumsmöbler. Den stora balkongen i sydväst har ett soligt läge och gott om plats för utemöbler och planteringar. Lägenheten har genomtänkta kvadratmeter och gott om förvaring i form av inbyggda garderober med stilrena skjutpartier. För bästa komfort har lägenheten dubbla badrum med ljus interiör, dusch, tvättmaskin och torktumlare. Det finns garage i huset där man kan ta hiss hela vägen upp till lägenheten.

Utanför porten väntar charmiga Gustavsbergs hamn på nära avstånd med restauranger och service samt fina naturstråk i vacker miljö. Buss kommunikationerna till stan går regelbundet och tar endast cirka 25 min till Slussen. Föreningen har även en trevlig lekplats på innergården förutom övernattningsrum samt hobbyrum och garage.

Visningar
  • Anmäl er gärna! välkomna!
    Söndag 19 oktober 12:15 - 12:45
    Boka
TIPSA

Helen

Larsson

ANSVARIG
MÄKLARE

Rumsbeskrivning - Maja Snis gata 6, 3 tr högst upp

HALL

Parkettgolv (ek 3-stav) och ljusa väggar. Hatthylla, garderob och städskåp.

KÖK

Parkettgolv (ek 3-stav) och ljusa väggar. Vita skåpsluckor och ljust kakel ovan arbetsytor i grå laminat. Kyl/frys, kyl/frys, induktionshäll, fläkt och diskmaskin samt micro. Två fönster.

BALKONG

Balkong med högt läge och gott om plats för utemöbler och egna planteringar.

VARDAGSRUM

Parkettgolv (ek 3-stav) och ljusa väggar. Tre fönster och utgång till balkong.

BADRUM 1

Grått klinkergolv och kaklade vita väggar. Handfat med kommod och spegelskåp. WC och dusch med glasvägg. Tvättmaskin och torktumlare under arbetsbänk med överskåp.

SOVRUM 1

Parkettgolv (ek 3-stav) och ljusa väggar. Inbyggd garderob med skjutpartier och fönster.

SOVRUM 2

Parkettgolv (ek 3-stav) och ljusa väggar. Inbyggd garderob med skjutpartier och fönster.

BADRUM 2

Grått klinkergolv och kaklade vita väggar. Handfat med spegelskåp, wc och dusch.

SOVRUM 3

Parkettgolv (ek 3-stav) och ljusa väggar. Garderob och fönster.

FÖRRÅD

Till lägenheten hör ett stort källarförråd.

Fakta – Maja Snis gata 6, 3 tr högst upp

Bostadstyp: Bostadsrätt
Kommun: Värmdö
Storlek: 4 rum, 102 kvm boarea
Areakälla: föreningens information
Våning: 3 av 3
Lägenhetsnummer: 51303 (1303)
Föreslagen budstart: 4 950 000 kr
Månadsavgift: 6 208 kr
I avgiften ingår värme och kallvatten. Varmvattnet debiteras efter förbrukning och läggs på avgiftsavierna. Obligatoriskt tillägg om 220 kr/mån för Triple play/Telia fiber.
Andelstal: Andel i förening 0,958 %, andel av årsavgift 0,958 %
Indirekt nettoskuldsättning: 1 081 909 kr
Bostadsrättens indirekta nettoskuldsättning anger hur stor andel av bostadsrättsföreningens lån som indirekt belastar bostadsrätten. Andelen beräknas som andelstalet för avgifter multiplicerat med föreningens nettoskuldsättning. Den består av räntebärande skulder med avdrag för räntebärande tillgångar och likvida medel. Underlagen för beräkningen kommer från föreningen.
Energiprestanda: 62 kWh/kvm och år
Energiklass: C

Fakta – Brf Ranka

Äkta/oäkta förening: Äkta
Äger föreningen marken: Ja
Antal lägenheter: 132
Allmänt om föreningen: Föreningen är ägare till fastigheten Gustavsberg 1:487 i Värmdö kommun. På fastigheten finns det tre flerbostadshus i fyra-fem våningar med 132 bostadsrättslägenheter, total boarea ca. 9 901 m². I föreningen finns övernattningslägenhet, hobbyrum och förråd. Cykelrum finns i källaren.
Besök gärna föreningens hemsida för mer information: https://hemsida.nabo.se/brf-ranka
Parkering: I garaget under husen och innergården finns det 104 parkeringsplatser samt 7 MC/Moped platser att hyra (kö kan förekomma). Av dessa platser är 5 st reserverade för personer med handikapptillstånd, 15 st är laddplatser för el/hybridbil. Bil- eller handikapp plats kostar 900 kr/mån, parkeringsplats för el/hybridbil kostar 1100kr/månad exkl. el. Priset är 2,50 kr/kWh inkl. moms för laddningen. MC/Moped platser kostar 200 kr/månad. I dagsläget finns lediga platser (2025-10-01)
Överlåtelseavgift och pantsättning: En överlåtelseavgift tas ut om ca 1 470 kr som betalas av köparen. Vid belåning av bostaden tas en pantsättningsavgift ut om ca 588 kr/pant. Beloppen är beräknade på prisbasbeloppet för år 2025.
Hus
Byggår: 2017-2018
Byggnadstyp: Flerfamiljshus
Hiss: Hiss finns
Ventilation: Mekanisk frånluft med energiåtervinning
Uppvärmning: Fjärrvärme och värmepump-frånluft (el)
Tv och internet: Föreningen är ansluten till fiber och digital TV via Telia.
Renoveringar
2024 Byte av elmätare för alla lägenheter och fastighetsel till nyare version via Vattenfall.
2024 Byte av varmvattenmätare i föreningens samtliga lägenheter.

Driftkostnader

Totalsumma: 9 828 kr/år

I driftkostnaden ingår följande:
El: 6 000 kr/år
VA: 2 256 kr/år
Försäkring: 1 572 kr/år

Driftkostnaden är beräknad på 5 personers hushåll.
Angiven driftkostnad är beräknad enligt säljarens uppgifter. Kostnaderna kan vara både högre och lägre för ny ägare/boende.

  • Denna bostad
  • Bostäder till salu via Erik Olsson

En riktigt lyckad

bostadsaffär

När du hittat ditt drömboende hjälper vi dig gärna att sälja din nuvarande bostad. För oss är det viktigt att du känner dig trygg både när du köper och säljer bostad via Erik Olsson. Därför är våra mäklare bland de vassaste och mest engagerade i branschen. Vi anstränger oss gärna lite extra för att din bostadsförsäljning ska bli perfekt. Hos oss får du en riktigt lyckad bostadsaffär – och bäst betalt.

Intresseanmälan

Få kontakt med en mäklare som är expert på just ditt område.

✶ Obligatoriska fält

Tillbaka till toppen