Öster / ÖREBRO

Lykttändargatan 5

Utgångspris: 3 395 000 kr
TIPSA
Öppet och ljus boende med två stora balkonger!

  • Nybyggd lägenhet
  • 4 rok
  • Två balkonger
  • Kvällssol
  • Söderläge
  • Fri utsikt
  • Öppen planlösning
  • Fina tillval
  • Badrum & Wc
  • Ljusa färger
  • Fint ljusinsläpp
  • Lugnt läge
  • Nära service
  • Gemensam takterrass
  • Bastu & gym i huset
  • Övernattningsrum
  • Närhet till naturreservat & strövområden
  • City 1,5km
  • Universitetet 2km
  • USÖ 2km

Denna nyproducerade bostadsrätt är verkligen något utöver det vanliga. Här möts du av en ljus och härlig atmosfär som genomsyrar hela lägenheten, med väl valda material och en stilren design. Det är en bostad som har tänkt på både funktion och estetik, där varje detalj är noggrant utvald för att skapa en harmonisk helhet.

Kök och vardagsrum flyter samman i en öppen planlösning som ger ett rymligt intryck och släpper in dagsljuset från fönster åt både söder och väster. Bostaden har valts med omsorg när det gäller material. Köket är ett drömkök från Marbodal, med den stilrena Lin-serien där luckorna är i en lugn och mjuk nyans som passar perfekt för moderna hem. Läderklädda handtag på underskåpen och en stor diskho ger köket både funktionalitet och elegans. I hela lägenheten möts du av fina golv och väggar i ljusa toner, som gör att varje rum känns ljust och luftigt. De exklusiva tillvalen, som de högkvalitativa dörrarna och det vackra stänkskyddet, bidrar till en känsla av kvalitet och omsorg om detaljer.

En annan fördel med denna bostad är den totala avsaknaden av insyn. Eftersom det inte finns några närliggande byggnader, kan du njuta av full privatliv. Detta gör att du kan koppla av i en lugn och rofylld miljö, utan att känna dig påpassad.
Badrummet fortsätter i samma stilrena anda med genomtänkta materialval och funktionalitet. Den högre toalettstolen ger extra komfort och det stiliga golvet i badrummet är både vackert och lätt att hålla rent. En extra finess är den fullängdsskåp-spegeln i sovrummet som skapar ett exklusivt intryck och en känsla av rymd. Här finns tre stycken ljusa hemtrevliga sovrum där ett av sovrummen är större för att rymma en dubbelsäng.

På balkongen åt väster kan du njuta av underbar kvällssol som värmer både uteplatsen och hela lägenheten. Det mjuka, varma ljuset flödar in i köket och vardagsrummet under de sena eftermiddagstimmarna, vilket gör denna del av bostaden extra inbjudande och avkopplande. Den andra stora balkongen vätter mot söder, så här kan soldyrkaren finna sin plats.

En stor takterrass på våning 9 ger dig en milsvidd utsikt över Örebro. Här kan du njuta av soliga dagar och vackra kvällar med panoramautsikt över staden. Takterrassen är en fantastisk oas för avkoppling och sociala stunder. Här finns även en rymlig inglasad terrass för festligheter och samkväm. Dessutom finns en gemensam bastu som höjer komforten ytterligare och erbjuder ett härligt sätt att koppla av efter en lång dag.

Utöver de estetiska och funktionella fördelarna får du också det bästa läget i nya Öster – ett lugnt område med närhet till stadens alla bekvämligheter. Här bor du i ett grönskande område med en fin park framför huset och gångavstånd till matbutiker, gym och Örebro Sportcentrum. För den naturintresserade är det dessutom nära till Oset och andra vackra strövområden i naturreservat.

Det här är en bostad som erbjuder så mycket mer än bara ett hem – det är en plats för att leva, trivas och njuta. Välkommen att boka en visning!

Snabbfakta
Avgift:
5 683 kr
Inkl värme och kallvatten. Obligatoriskt tillägg 169 kr/månTv/bredband. Föreningen läser av verklig förbrukning på el och varmvatten.
Rum:
4 rum och kök
Boarea:
91 kvm
Våning:
3 av 9
Utgångspris:
3 395 000 kr
Byggnadsår:
2024
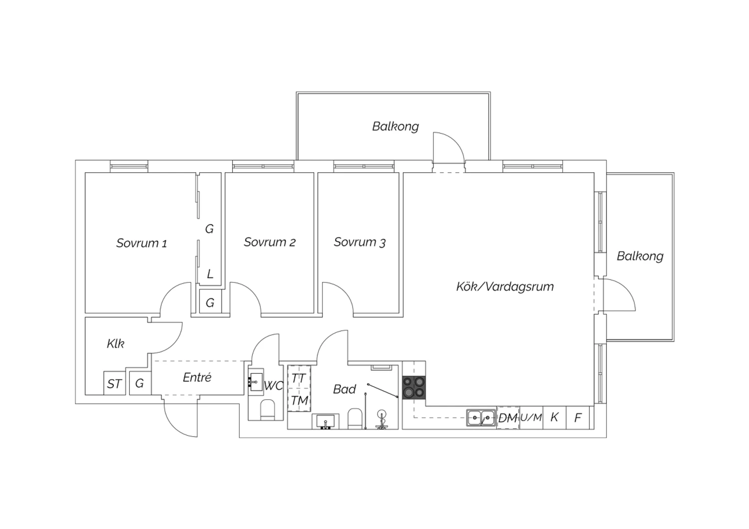
Planritning
e-prospekt
Visningar
  • Varmt välkommen att boka tid för visning via mäklarens annosn!
    Tisdag 21 oktober 17:00 - 17:30
    Boka
Mäklare

Carin

Liedström

ANSVARIG
MÄKLARE

Öppet och ljus boende med två stora balkonger!

  • Nybyggd lägenhet
  • 4 rok
  • Två balkonger
  • Kvällssol
  • Söderläge
  • Fri utsikt
  • Öppen planlösning
  • Fina tillval
  • Badrum & Wc
  • Ljusa färger
  • Fint ljusinsläpp
  • Lugnt läge
  • Nära service
  • Gemensam takterrass
  • Bastu & gym i huset
  • Övernattningsrum
  • Närhet till naturreservat & strövområden
  • City 1,5km
  • Universitetet 2km
  • USÖ 2km

Denna nyproducerade bostadsrätt är verkligen något utöver det vanliga. Här möts du av en ljus och härlig atmosfär som genomsyrar hela lägenheten, med väl valda material och en stilren design. Det är en bostad som har tänkt på både funktion och estetik, där varje detalj är noggrant utvald för att skapa en harmonisk helhet.

Kök och vardagsrum flyter samman i en öppen planlösning som ger ett rymligt intryck och släpper in dagsljuset från fönster åt både söder och väster. Bostaden har valts med omsorg när det gäller material. Köket är ett drömkök från Marbodal, med den stilrena Lin-serien där luckorna är i en lugn och mjuk nyans som passar perfekt för moderna hem. Läderklädda handtag på underskåpen och en stor diskho ger köket både funktionalitet och elegans. I hela lägenheten möts du av fina golv och väggar i ljusa toner, som gör att varje rum känns ljust och luftigt. De exklusiva tillvalen, som de högkvalitativa dörrarna och det vackra stänkskyddet, bidrar till en känsla av kvalitet och omsorg om detaljer.

En annan fördel med denna bostad är den totala avsaknaden av insyn. Eftersom det inte finns några närliggande byggnader, kan du njuta av full privatliv. Detta gör att du kan koppla av i en lugn och rofylld miljö, utan att känna dig påpassad.
Badrummet fortsätter i samma stilrena anda med genomtänkta materialval och funktionalitet. Den högre toalettstolen ger extra komfort och det stiliga golvet i badrummet är både vackert och lätt att hålla rent. En extra finess är den fullängdsskåp-spegeln i sovrummet som skapar ett exklusivt intryck och en känsla av rymd. Här finns tre stycken ljusa hemtrevliga sovrum där ett av sovrummen är större för att rymma en dubbelsäng.

På balkongen åt väster kan du njuta av underbar kvällssol som värmer både uteplatsen och hela lägenheten. Det mjuka, varma ljuset flödar in i köket och vardagsrummet under de sena eftermiddagstimmarna, vilket gör denna del av bostaden extra inbjudande och avkopplande. Den andra stora balkongen vätter mot söder, så här kan soldyrkaren finna sin plats.

En stor takterrass på våning 9 ger dig en milsvidd utsikt över Örebro. Här kan du njuta av soliga dagar och vackra kvällar med panoramautsikt över staden. Takterrassen är en fantastisk oas för avkoppling och sociala stunder. Här finns även en rymlig inglasad terrass för festligheter och samkväm. Dessutom finns en gemensam bastu som höjer komforten ytterligare och erbjuder ett härligt sätt att koppla av efter en lång dag.

Utöver de estetiska och funktionella fördelarna får du också det bästa läget i nya Öster – ett lugnt område med närhet till stadens alla bekvämligheter. Här bor du i ett grönskande område med en fin park framför huset och gångavstånd till matbutiker, gym och Örebro Sportcentrum. För den naturintresserade är det dessutom nära till Oset och andra vackra strövområden i naturreservat.

Det här är en bostad som erbjuder så mycket mer än bara ett hem – det är en plats för att leva, trivas och njuta. Välkommen att boka en visning!

Visningar
  • Varmt välkommen att boka tid för visning via mäklarens annosn!
    Tisdag 21 oktober 17:00 - 17:30
    Boka
TIPSA

Carin

Liedström

ANSVARIG
MÄKLARE

Rumsbeskrivning - Lykttändargatan 5

HALL

Hall med plats för avhängning och förvaring i garderob. Målade väggar och klinkergolv som övergår i parkettgolv.

KÖK

Stilrent kök med släta vita luckor, rostfria handtag och en praktisk laminatbänkskiva. Vitt kakel som stänkskydd och en underlimmad diskho med köksblandare från Mora ger en modern känsla. LED-belysning under väggskåpen och en spiskåpa med rostfri kantlist förstärker helhetsintrycket. Köket är fullt utrustat med vitvaror från Electrolux, inklusive induktionshäll, inbyggnadsugn, rostfri fläkt, kyl och frys alternativt kyl/frys, integrerad diskmaskin samt mikro. Målade väggar och parkettgolv.

VARDAGSRUM

Ljust och rymligt vardagsrum med stora fönster i vinkel som ger ett härligt ljusinsläpp. Här finns plats för både soffgrupp och matplats, och från rummet nås två balkonger. Den öppna planlösningen mot köket skapar en social och inbjudande atmosfär. Målade väggar och parkettgolv.

BADRUM

Rymligt helkaklat badrum med tvättavdelning. Handfaat med kommod från Vedum, spegelskåp, handukstork. tvättavdelning med tvättmaskin, torktumlare, arbetsbänk och väggskåp för förvaring.

SOVRUM

Rymligt sovrum med plats för dubbelsäng. gott om förvaring i garderobsvägg med skjutdörrar. Målade väggar och parkettgolv.

SOVRUM

Ett mångsidigt sovrum med utrymme för en enkelsäng och en praktisk arbetshörna. Perfekt som barnrum eller hemmakontor. Målade väggar och parkettgolv.

SOVRUM

Ett funktionellt sovrum med utrymme för en enkelsäng och skrivbord. Målade väggar och parkettgolv.

WC

Handfat med kommod, spegel, Wc. Kaklade väggar och klinkergolv.

BALKONGER

Det är som en förlängning av ditt hem och erbjuder en lugn och avkopplande plats där du kan fly från vardagens stress och bara njuta.

FÖRRÅD

Till lägenheten finns ett källarförråd.

Fakta – Lykttändargatan 5

Bostadstyp: Bostadsrätt
Kommun: Örebro
Storlek: 4 rum och kök, 91 kvm boarea
Areakälla: föreningens information
Våning: 3 av 9
Lägenhetsnummer: 1306
Utgångspris: 3 395 000 kr
Månadsavgift: 5 683 kr
Inkl värme och kallvatten. Obligatoriskt tillägg 169 kr/månTv/bredband. Föreningen läser av verklig förbrukning på el och varmvatten.
Andelstal: Andel i förening 2,377 %, andel av årsavgift 2,297 %
Indirekt nettoskuldsättning: 2 157 225 kr
Bostadsrättens indirekta nettoskuldsättning anger hur stor andel av bostadsrättsföreningens lån som indirekt belastar bostadsrätten. Andelen beräknas som andelstalet för avgifter multiplicerat med föreningens nettoskuldsättning. Den består av räntebärande skulder med avdrag för räntebärande tillgångar och likvida medel. Underlagen för beräkningen kommer från föreningen.
Omgivning
Allmänt om området: Öster är en av de mest populära stadsdelarna i Örebro. Närheten till centrum, Stadsparken, Wadköping och alla idrottsanläggningar runt Behrn Arena och idrottshuset samt flera matbutiker gör att det är lätt att trivas här. Det är heller inte långt till naturområdet Oset med Örebro småbåtshamn. Det finns flertalet förskolor, grundskolor samt även gymnasieskola i området.
Kommunikation: Stadsbussarna 2, 3, 10 och 22 trafikerar Öster. För dig som hellre promenerar eller cyklar finns finns fina promenad- och cykelstråk i området.

Fakta – BRF Bellevue I Örebro

Äkta/oäkta förening: Äkta
Äger föreningen marken: Ja
Allmänt om föreningen: Brf Bellevue:
Den gemensamma takterrassen med bastu är föreningens givna mötesplats för sköna soliga sommarkvällar. Här finns även ett mysigt orangeri som förlänger utesäsongen.
Här finns verkligen allt du behöver på hemmaplan. I källaren finns ett gym där du enkelt kan få till träningen i vardagen utan att lämna huset. Börja med ett träningspass i gymmet och avsluta med en avkopplande bastu. När gästerna kommer på besök bokar du enkelt föreningens gästrum, smidigt och bekvämt.

Cykelrum och cykelverkstad
Cykelparkering på gården, i entréplan och i källare. Cykelverkstad finns på entréplan.

Miljöhus
Miljörum på entréplan med källsortering.

Förråd
Till lägenheterna finns ett källarförråd.

Gemensamma utrymmen:
Takterrass, Orangeri, Bastu, Gym, Gästlägenhet, Co-working lokal
Elektroniskt passagesystem med taggar till gemensamma utrymmen.
Parkering: Parkering i intillliggande parkeringshus.
Överlåtelseavgift och pantsättning: En överlåtelseavgift tas ut om ca 2 058 kr som betalas av köparen. Vid belåning av bostaden tas en pantsättningsavgift ut om ca 882 kr/pant. Beloppen är beräknade på prisbasbeloppet för år 2025.
Hus
Byggår: 2024
Byggnadstyp: Flerfamiljshus
Hiss: Hiss finns
Fönster: 3-glas
Uppvärmning: Fjärrvärme
Tv och internet: Multimediacentral med vägguttag.
Tv, tele, och data via fibernät.
Telia Triple-play med bredband.TV och telefoni.

Driftkostnader

Totalsumma: 7 140 kr/år

I driftkostnaden ingår följande:
El: 4 500 kr/år
VA: 1 440 kr/år
Försäkring: 1 200 kr/år

Driftkostnaden är beräknad på 2 personers hushåll.

  • Denna bostad
  • Bostäder till salu via Erik Olsson

En riktigt lyckad

bostadsaffär

När du hittat ditt drömboende hjälper vi dig gärna att sälja din nuvarande bostad. För oss är det viktigt att du känner dig trygg både när du köper och säljer bostad via Erik Olsson. Därför är våra mäklare bland de vassaste och mest engagerade i branschen. Vi anstränger oss gärna lite extra för att din bostadsförsäljning ska bli perfekt. Hos oss får du en riktigt lyckad bostadsaffär – och bäst betalt.

Intresseanmälan

Få kontakt med en mäklare som är expert på just ditt område.

✶ Obligatoriska fält

Tillbaka till toppen