Bettorp / Örebro

Kornellvägen 18

Utgångspris: 1 750 000 kr
TIPSA
Trivsam trerummare högst upp i huset med dubbla balkonger

  • Högst upp i huset
  • Hörnläge
  • Två balkonger
  • Inglasad balkong som extra rum
  • Balkong mot innergård
  • Öppen och social planlösning
  • Helkaklat badrum med tvättmaskin & torktumlare
  • Fiber finns i huset
  • Nära motionsspår och naturreservat
  • Förskola ca 200 m, skola ca 1 km

Välkommen till Kornellvägen 18 – en modern och trivsam trerummare högst upp i huset. Här bor du bekvämt med välplanerade ytor och en social koppling mellan kök och vardagsrum som gör det lätt att umgås.

Lägenheten erbjuder två balkonger med olika karaktär: den inglasade blir som ett extra rum större delen av året, medan balkongen mot innergården ger en avskild plats för lugn och avkoppling. Tack vare läget flödar ljuset in från morgon till lunch i vardagsrum, hall och kök, medan sovrum och balkong badar i sol från tidig eftermiddag till sena kvällen under sommarmånaderna.

Hallen och resten av lägenheten har gott om förvaring vilket gör vardagen enkel, och köket är modernt utrustat med bra arbetsytor. Vardagsrummet är inbjudande och har plats för både soffhörna och matbord. Det större sovrummet rymmer generöst med förvaring, och badrummet är helkaklat och försett med både tvättmaskin och torktumlare.

Södra Bettorp är ett populärt och familjevänligt område som kombinerar närheten till naturen med enkel tillgång till stadsliv. Här finns motionsspår och naturreservat runt hörnet, perfekta för löpning, promenader och skidåkning vintertid. Skola och förskola ligger på bekvämt gångavstånd, och den som pendlar har både goda bussförbindelser samt E18/E20 och riksväg 50 inom räckhåll. Samtidigt når du city snabbt med cykel eller bil.

En välplanerad bostad med dubbla balkonger, högst upp i huset – redo för nästa ägare att flytta in och trivas!

För mer information vänligen kontakta mäklare Erik Landelius på 070-948 79 35 alt. erik.landelius@erikolsson.se

Snabbfakta
Avgift:
5 051 kr
I månadsavgiften ingår värme, vatten, TV, internet och bostadsrättstilägg.
Rum:
3 rum och kök
Boarea:
76 kvm
Våning:
4 av 4
Utgångspris:
1 750 000 kr
Byggnadsår:
2017
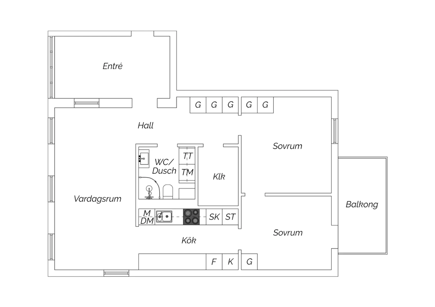
Planritning
Kornellvägen 18
Visningar
  • En att boka en visningstid genom mäklarens annons!
    Tisdag 21 oktober 17:30 - 18:15

    Kontakta mäklaren

Mäklare

Erik

Landelius

ANSVARIG
MÄKLARE

Trivsam trerummare högst upp i huset med dubbla balkonger

  • Högst upp i huset
  • Hörnläge
  • Två balkonger
  • Inglasad balkong som extra rum
  • Balkong mot innergård
  • Öppen och social planlösning
  • Helkaklat badrum med tvättmaskin & torktumlare
  • Fiber finns i huset
  • Nära motionsspår och naturreservat
  • Förskola ca 200 m, skola ca 1 km

Välkommen till Kornellvägen 18 – en modern och trivsam trerummare högst upp i huset. Här bor du bekvämt med välplanerade ytor och en social koppling mellan kök och vardagsrum som gör det lätt att umgås.

Lägenheten erbjuder två balkonger med olika karaktär: den inglasade blir som ett extra rum större delen av året, medan balkongen mot innergården ger en avskild plats för lugn och avkoppling. Tack vare läget flödar ljuset in från morgon till lunch i vardagsrum, hall och kök, medan sovrum och balkong badar i sol från tidig eftermiddag till sena kvällen under sommarmånaderna.

Hallen och resten av lägenheten har gott om förvaring vilket gör vardagen enkel, och köket är modernt utrustat med bra arbetsytor. Vardagsrummet är inbjudande och har plats för både soffhörna och matbord. Det större sovrummet rymmer generöst med förvaring, och badrummet är helkaklat och försett med både tvättmaskin och torktumlare.

Södra Bettorp är ett populärt och familjevänligt område som kombinerar närheten till naturen med enkel tillgång till stadsliv. Här finns motionsspår och naturreservat runt hörnet, perfekta för löpning, promenader och skidåkning vintertid. Skola och förskola ligger på bekvämt gångavstånd, och den som pendlar har både goda bussförbindelser samt E18/E20 och riksväg 50 inom räckhåll. Samtidigt når du city snabbt med cykel eller bil.

En välplanerad bostad med dubbla balkonger, högst upp i huset – redo för nästa ägare att flytta in och trivas!

För mer information vänligen kontakta mäklare Erik Landelius på 070-948 79 35 alt. erik.landelius@erikolsson.se

Visningar
  • En att boka en visningstid genom mäklarens annons!
    Tisdag 21 oktober 17:30 - 18:15

    Kontakta mäklaren

TIPSA

Erik

Landelius

ANSVARIG
MÄKLARE

Rumsbeskrivning - Kornellvägen 18

HALL

Välkomnande hall med plats för avhängning. Gott om förvaring i tre garderober. Målade väggar och parkettgolv.

KÖK

Ljust kök som erbjuder gott om förvaring i skåp och lådor, bänkskiva i laminat och kakel som stänkskydd. Maskinell utrustning i form av induktionshäll, fläkt, ugn, mikrovågsugn och diskmaskin samt kyl och frys i fullhöjd. Målade väggar och parkettgolv.

VARDAGSRUM

Ett ljust vardagsrum som smidigt integreras med köket, vilket skapar en öppen och luftig atmosfär i hemmet. Målade väggar och parkettgolv.

BADRUM

Ett komplett badrum med WC, dusch, handfat och spegelskåp. Dessutom finns en praktisk tvättavdelning med både tvättmaskin och torktumlare, arbetsbänk och förvaring i väggskåp. Väggarna är kaklade och golvet pryds av klinker, vilket ger en snygg och funktionell atmosfär.

SOVRUM

Ett mysigt sovrum med utrymme för en dubbelsäng och skrivbord. Förvaring i två garderober. Målade väggar och parkettgolv.

SOVRUM

Ett mångsidigt sovrum med utrymme för en enkelsäng och en praktisk arbetshörna. Garderob. Perfekt som barnrum.

KLÄDKAMMARE

Målade väggar och parkettgolv.

BALKONG

Till lägenheten finns två balkonger varav den ena är inglasad.

Fakta – Kornellvägen 18

Bostadstyp: Bostadsrätt
Kommun: Örebro
Storlek: 3 rum och kök, 76 kvm boarea
Areakälla: föreningens information
Våning: 4 av 4
Lägenhetsnummer: 6303 (tidigare förvaltare 6-1303)
Utgångspris: 1 750 000 kr
Månadsavgift: 5 051 kr
I månadsavgiften ingår värme, vatten, TV, internet och bostadsrättstilägg.
Andelstal: Andel i förening 1,545 %, andel av årsavgift 1,545 %
Indirekt nettoskuldsättning: 871 000 kr
Bostadsrättens indirekta nettoskuldsättning anger hur stor andel av bostadsrättsföreningens lån som indirekt belastar bostadsrätten. Andelen beräknas som andelstalet för avgifter multiplicerat med föreningens nettoskuldsättning. Den består av räntebärande skulder med avdrag för räntebärande tillgångar och likvida medel. Underlagen för beräkningen kommer från föreningen.
Energiprestanda: 76 kWh/kvm och år
Energiklass: D

Fakta – BRF Mandelkubben

Äkta/oäkta förening: Oäkta
Äger föreningen marken: Föreningen äger marken.
Antal lägenheter: 75
Allmänt om föreningen: Brf Mandelkubben i Örebro. Föreningen är en äkta bostadrättsförening. I föreningen finns 75 lägenheter som upplåts med bostdsrätt.

Föreningen äger fastigheten Mandelkubben 2 (äger marken).
Parkering: Föreningen har 74 parkeringsplatser varav 12 st platser med laddare för elbil.
Överlåtelseavgift och pantsättning: En överlåtelseavgift tas ut om ca 1 470 kr som betalas av säljaren. Vid belåning av bostaden tas en pantsättningsavgift ut om ca 588 kr/pant. Beloppen är beräknade på prisbasbeloppet för år 2025.
Hus
Byggår: 2017
Byggnadstyp: Flerfamiljshus
Hiss: Hiss finns
Fönster: 3-glas
Ventilation: FTX
Uppvärmning: Fjärrvärme
Renoveringar
Hösten 2024 har förbättring av värme/ventilationsaggregaten och rensning/rengöring av
ventilationskanalerna utförts.

Driftkostnader

Totalsumma: 7 640 kr/år

I driftkostnaden ingår följande:
El: 6 000 kr/år
Försäkring: 1 640 kr/år

  • Denna bostad
  • Bostäder till salu via Erik Olsson

En riktigt lyckad

bostadsaffär

När du hittat ditt drömboende hjälper vi dig gärna att sälja din nuvarande bostad. För oss är det viktigt att du känner dig trygg både när du köper och säljer bostad via Erik Olsson. Därför är våra mäklare bland de vassaste och mest engagerade i branschen. Vi anstränger oss gärna lite extra för att din bostadsförsäljning ska bli perfekt. Hos oss får du en riktigt lyckad bostadsaffär – och bäst betalt.

Intresseanmälan

Få kontakt med en mäklare som är expert på just ditt område.

✶ Obligatoriska fält

Tillbaka till toppen