Adolfsberg / Örebro

Ollonborrstigen 25

Föreslagen budstart: 4 095 000 kr
TIPSA
Smakfullt renoverat boende med dubbla badrum och uterum!

  • Renoverat kök
  • Barnvänlig gata
  • Öppen planlösning
  • Dubbla badrum
  • Stort uterum
  • Insynsskyddad trädgård
  • Fönster 2006
  • Yttertak 2006
  • Värmepanna 2020
  • Dubbla luftvärmepumpar
  • Elbilsladdare
  • Fjärrstyrd garageport
  • Förråd
  • Fiber
  • Gångavstånd till skola och förskola
  • Flera lekplatser i området

Här erbjuds ett smakfullt renoverat kedjehus där varje detalj är genomtänkt för att skapa ett hem fyllt av trivsel och harmoni. På den moderna bottenvåningen har samtliga ytskikt uppdaterats och resultatet är en härlig helhet med generösa sällskapsytor, ett socialt kök och en stilfull atmosfär.

Köket är husets hjärta med gott om arbetsytor och en öppen planlösning som gör det enkelt att umgås medan maten tillagas – perfekt för både vardagsmiddagar och sociala tillställningar. Härifrån nås även matplatsen som bjuder in till gemenskap.

På övre plan väntar två rofyllda sovrum samt till ett smakfullt badrum – en plats där hela familjen får gott om utrymme och möjlighet till avskildhet. Att huset dessutom erbjuder ytterligare ett badrum med tvättavdelning på entréplanet gör boendet extra smart och praktiskt i vardagen.

Ett stort plus är det inglasade uterummet och den fina trädäckade altanen. Här förlängs sommaren och det blir en självklar plats för umgänge, grillkvällar och avkoppling under årets varmare månader. På baksidan möts du av en lummig och insynsskyddad tomt med ett vackert äldre äppelträd – en riktig idyll.

För den som värdesätter bekvämlighet finns ett garage med fjärrstyrd port och plats för bil, samt en rymlig uppfart med plats för ytterligare tre bilar. Här finns också elbilsladdare installerad, vilket gör vardagen både smidigare och mer hållbar.

Området är lugnt, populärt och mycket barnvänligt. Här bor man med närhet till både skola, förskola, flera lekplatser och gröna omgivningar.

Snabbfakta
Rum:
4
Varav sovrum:
3
Boarea:
109 kvm
Tomtarea:
287 kvm
Föreslagen budstart:
4 095 000 kr
Byggnadsår:
1960
Fastighetsbeteckning:
Kullaberg 2
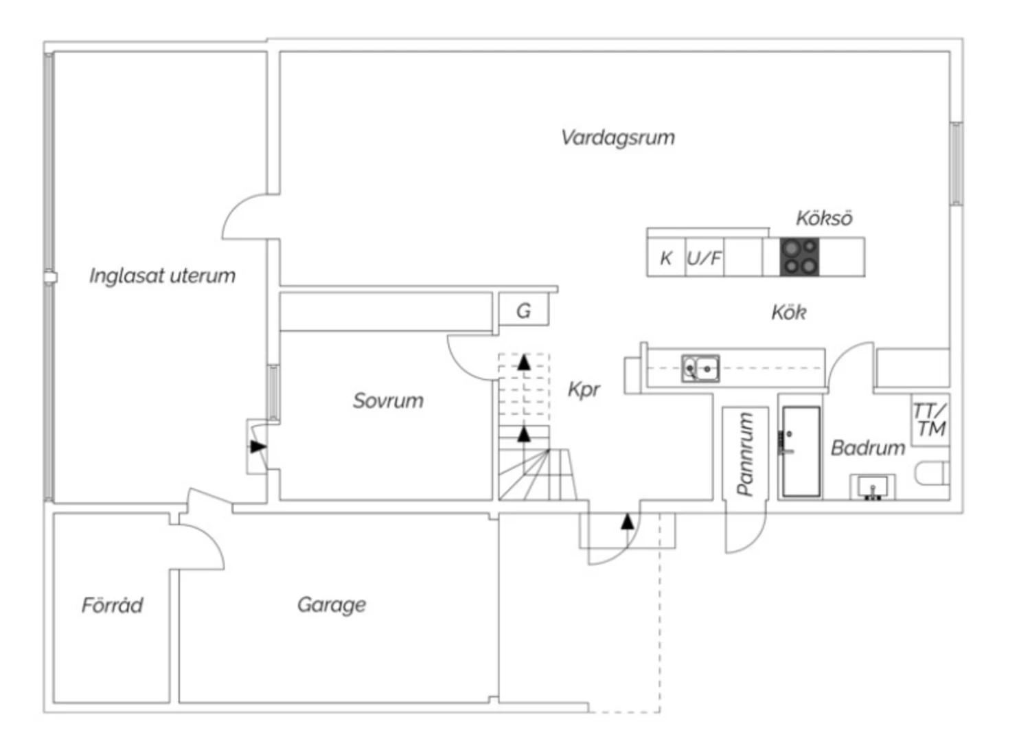
Planritning
Ollonborrstigen 25 Öv
Visningar
  • Bokad visning, anmälan krävs för bästa service!
    Söndag 19 oktober 15:00 - 15:30
    Boka
Mäklare

Beatrice

Henriksson

ANSVARIG
MÄKLARE

Smakfullt renoverat boende med dubbla badrum och uterum!

  • Renoverat kök
  • Barnvänlig gata
  • Öppen planlösning
  • Dubbla badrum
  • Stort uterum
  • Insynsskyddad trädgård
  • Fönster 2006
  • Yttertak 2006
  • Värmepanna 2020
  • Dubbla luftvärmepumpar
  • Elbilsladdare
  • Fjärrstyrd garageport
  • Förråd
  • Fiber
  • Gångavstånd till skola och förskola
  • Flera lekplatser i området

Här erbjuds ett smakfullt renoverat kedjehus där varje detalj är genomtänkt för att skapa ett hem fyllt av trivsel och harmoni. På den moderna bottenvåningen har samtliga ytskikt uppdaterats och resultatet är en härlig helhet med generösa sällskapsytor, ett socialt kök och en stilfull atmosfär.

Köket är husets hjärta med gott om arbetsytor och en öppen planlösning som gör det enkelt att umgås medan maten tillagas – perfekt för både vardagsmiddagar och sociala tillställningar. Härifrån nås även matplatsen som bjuder in till gemenskap.

På övre plan väntar två rofyllda sovrum samt till ett smakfullt badrum – en plats där hela familjen får gott om utrymme och möjlighet till avskildhet. Att huset dessutom erbjuder ytterligare ett badrum med tvättavdelning på entréplanet gör boendet extra smart och praktiskt i vardagen.

Ett stort plus är det inglasade uterummet och den fina trädäckade altanen. Här förlängs sommaren och det blir en självklar plats för umgänge, grillkvällar och avkoppling under årets varmare månader. På baksidan möts du av en lummig och insynsskyddad tomt med ett vackert äldre äppelträd – en riktig idyll.

För den som värdesätter bekvämlighet finns ett garage med fjärrstyrd port och plats för bil, samt en rymlig uppfart med plats för ytterligare tre bilar. Här finns också elbilsladdare installerad, vilket gör vardagen både smidigare och mer hållbar.

Området är lugnt, populärt och mycket barnvänligt. Här bor man med närhet till både skola, förskola, flera lekplatser och gröna omgivningar.

Visningar
  • Bokad visning, anmälan krävs för bästa service!
    Söndag 19 oktober 15:00 - 15:30
    Boka
TIPSA

Beatrice

Henriksson

ANSVARIG
MÄKLARE

Rumsbeskrivning - Ollonborrstigen 25

ENTRÉPLAN

HALL

Parkettgolv samt sandfärgade väggar. Rymlig hall som är möblerbar. Här finns plats för avhängning.

KÖK

Mycket smakfullt renoverat kök med parkettgolv samt målade väggar. Köksluckor i valnöt/sand med köksbänkar och stänkskydd i granitkeramik (Bricmate). Köket är fullt utrustat med vitvaror från 2023 då köket renoverades. För en extra lyxig känsla finns vinkyl, spotlights infällda i tak och köksskåp och vitrinskåp. Köket har motorer till nedre delen av kökslådorna på ena sidan. Platsbyggda elementskydd och fönsterbräda som följer kökets utseende på ett fint sätt!

MATRUM

Målade väggar samt parkettgolv.

VARDAGSRUM

Målade väggar och parkettgolv. Utgång till inglasat uterum. Här finns också platsbyggda elementskydd, tv-möbel och fönsterbräda.

UTERUM

Stort generöst uterum byggt 2018, stora fina fönsterpartier med skjutdörrar och kondensfritt tak. Isolerat vår/höst. Soldäck utanför.

BADRUM

Kaklade väggar och klinkergolv med golvvärme (el). Vägghängd WC, handfat, spegel, handdukstork samt badkar. Tvättmaskin och torktumlare (2021).

SOVRUM

Målade väggar samt parkettgolv. Idag används rummet som kontor men här finns plats för dubbelsäng. Platsbyggda garderober med skjutdörr. Utgång till inglasad uteplats.

ÖVERVÅNING

SOVRUM

Målade väggar i en blå kulör och parkettgolv. Perfekt som barnrum. Takfönster, spotlights samt golvvärme.

SOVRUM

Vitmålade väggar samt heltäckningsmatta. Takfönster, spotlights samt golvvärme.

BADRUM

Kaklade väggar i vitt och klinkergolv i mörkgrått med golvvärme (vattenburen). Vägghängd WC, handfat med kommod, spegel, handdukstork. Dusch med vikdörrar i glas.

ÖVRIGT

GARAGE

Garage med elstyrd port och ett stort förråd och parkering på uppfart. Här finns också en elbildsladdare. Ytan mellan huset och gatan är plattsatt, även här kan en bil parkeras.

Fakta – Ollonborrstigen 25

Bostadstyp: Villa
Kommun: Örebro
Fastighetsbeteckning: Kullaberg 2
Storlek: 4 rum, 109 kvm boarea
Varav sovrum: 3
Areakälla: taxeringsinformation
Föreslagen budstart: 4 095 000 kr
Energiprestanda: 119 kWh/kvm och år
Energiklass: D
Planbestämmelser: Tomtindelning (1960-11-19) Stadsplan (1959-07-16)
Upplåtelseform: Friköpt
Pantbrev: Det finns 6 st pantbrev uttaget om sammanlagt 3 272 500 kr
Omgivning
Kommunikation: Goda förbindelser med stadsbuss in till Citykärnan.
Allmänt om området: I Adolfsberg bor ni i ett barnvänligt och omtyckt bostadsområde. Inom gångavstånd finns förskolor, skola F-9, vårdcentral och pizzeria. Närhet till busshållplats med bra förbindelser in till Örebro city med ett brett nöjesutbud.
Närservice: Vid Brunnsparken finner du ICA Supermarket och Restaurang Parken, Adolfsbergs vårdcentral. Lite längre bort ligger Mariebergs köpcentrum.

Fakta – Byggnaden

Hus
Byggnadstyp: 1½-plansradhus
Byggår: 1960
Fasad: Eternit & trä
Stomme: Betong
Fönster: 3-glas 2006
Bjälklag: Trä
Utvändigt plåtarbete: Lackerad plåt
Tak: Betongpannor 2006
Grundläggning: Betongplatta
Uppvärmning: Elpanna 2020 & luftvärmepump.
Vatten och avlopp: Kommunalt vatten året om. Kommunalt avlopp
Ventilation: Självdrag
Övrigt om byggnaden: 2014 - Badrum ÖV
2018 - Uterum
2020 - Byte av värmepump (el-panna) och varmattenberedare
2021 - Tvättmaskin & Torktumlare
2021 - Bytt koddosa till garageporten.
2021 - Yale Doorman.
2022 - Nya luftvärmepumpar (2st). En på undervåning och en på övervåning.
2022 - Träpanelen ovanför uppfarten är bytt.
2023 - Renovering av undervåningen, alla rum utom badrummet.
- Öppnat upp i vardagsrum och kök.
- Nytt tak & golv. Bjelin-parkettgolv.
- Ny el överallt, spotar, plejd och ny elcentral. Bytt termostat till golvvärme i badrum undervåning.
- Nytt, fullutrustat och modernt Nordanro-kök med kompositstenskiva. Diskmaskin, Kyl, Frys från Miele. Häll/fläkt från Bora samt Vinkyl från Temptech.
- Elementskydd och tv-möbel installerad.
- Elbilsladdare
- Skjutdörrsgaraderober till undervåningen.
2025 - Nedtagning av träd/buskar på framsidan. Tillfixat med ny markduk och stenläggning.
Tomt, uteplats och bilplats
Tomtarea: 287 kvm
Tomttyp: Friköpt
Övriga byggnader
Garage med elstyrd port och ett stort förråd och parkering på uppfart.

Driftkostnader

Totalsumma: 48 531 kr/år

I driftkostnaden ingår följande:
El: 37 465 kr/år
VA: 4 449 kr/år
Försäkring: 6 617 kr/år

Driftkostnaden är beräknad på 2 personers hushåll.
Fullvärde: Ja

  • Denna bostad
  • Bostäder till salu via Erik Olsson

En riktigt lyckad

bostadsaffär

När du hittat ditt drömboende hjälper vi dig gärna att sälja din nuvarande bostad. För oss är det viktigt att du känner dig trygg både när du köper och säljer bostad via Erik Olsson. Därför är våra mäklare bland de vassaste och mest engagerade i branschen. Vi anstränger oss gärna lite extra för att din bostadsförsäljning ska bli perfekt. Hos oss får du en riktigt lyckad bostadsaffär – och bäst betalt.

Intresseanmälan

Få kontakt med en mäklare som är expert på just ditt område.

✶ Obligatoriska fält

Tillbaka till toppen