Villastaden / Gävle

Bragevägen 7B

Utgångspris: 7 990 000 kr
TIPSA
Arkitektritad souterrängvilla med solig trädgård, gäststuga och fjärrvärme i hjärtat av Villastaden

  • Arkitektritad villa av Per Lennart Berggren
  • Vattenburen golvvärme i hela huset & fjärrvärme
  • Solig, insynsskyddad tomt på 1 021 kvm med fruktträd
  • Timrad gäststuga med kök, dusch & vardagsrum
  • Luftigt vardagsrum med fönster från golv till tak
  • Master bedroom med marmorbadrum & utgång till altan
  • Generöst kök med matplats och god förvaring
  • Bastu, allrum & tre sovrum på nedre plan + kontorshörna

Välkommen till en unik villa i hjärtat av idylliska Villastaden, ett hem som kombinerar arkitektonisk finess med praktisk funktion och ett fantastiskt ljusflöde. Denna souterrängvilla, ritad av Per Lennart Berggren på Thurfjell Arkitektkontor och uppförd 1980, bjuder på ett boende utöver det vanliga – där varje detalj är genomtänkt och varje kvadratmeter välanvänd. Fastigheten är utrustad med fiber och uppvärmd via fjärrvärme med vattenburen golvvärme i hela huset. Den vackert anlagda trädgårdstomten om 1 021 kvm är en privat oas med sol från morgon till kväll, inramad av fruktträd och grönskande häckar. För barnen finns stora lekvänlig gräsmattor och för gäster en charmig timrad friggebod med kök, duschrum och vardagsrum.

Husets entréplan bjuder in med en välkomnande hall som öppnar upp mot en större inre hall. Genom vackra dubbeldörrar leds du vidare till det ljusa matrummet och den inglasade altanen. Matrummet övergår sömlöst i det luftiga vardagsrummet med öppen planlösning, som erbjuder generösa ytor med plats för två soffgrupper och ett fantastiskt ljusinsläpp från golv till tak. Intill ligger ett stort kök med goda förvaringsmöjligheter, fina arbetsytor och plats för ett matbord. Master bedroom är både generöst och stilfullt med platsbyggda garderober, fönster i två väderstreck och direkt utgång till altanen. Det privata badrummet, klätt i elegant marmor erbjuder både badkar och dusch. Ytterligare ett sovrum samt en separat WC kompletterar entréplanet. Nedre plan överraskar med ytor som passar hela familjen. Här finns ett ljust allrum perfekt som extra vardagsrum, tre rymliga sovrum med god förvaring samt en tvättstuga med bastu och separat duschrum. En smart kontorshörna kan enkelt skapas under trappen, ett bra utrymme för dig som arbetar hemifrån.

Till huset hör ett vidbyggt garage, carport och en generös uppfart med plats för flera bilar. Villastaden är ett av Gävles mest eftertraktade områden med charmig bebyggelse, närhet till stadspuls och natur. På kort promenadavstånd når du Boulognerskogen med promenadstråk, utomhusgym, caféer och badplats. I närområdet finns även Konserthuset, Fjärran höjderbadet, Gävle sjukhus, Högskolan och populära Solängsskolan samt den omtyckta Runebergs Kvarterskrog.

Varm välkommen att kontakta ansvarig mäklare vid intresse!

Snabbfakta
Rum:
7
Varav sovrum:
5 - 6
Boarea:
200 kvm
Biarea:
91 kvm
Tomtarea:
1021 kvm
Utgångspris:
7 990 000 kr
Byggnadsår:
1980
Fastighetsbeteckning:
Villastaden 22:21
Planritning
e-prospekt
Visningar
  • Bokad visning, anmälan krävs!
    Torsdag 23 oktober 17:30 - 18:00
    Boka
Mäklare

Robert

Brandt

ANSVARIG
MÄKLARE

Sofie

Dahlqvist

REG. FASTIGHETSMÄKLARE

Arkitektritad souterrängvilla med solig trädgård, gäststuga och fjärrvärme i hjärtat av Villastaden

  • Arkitektritad villa av Per Lennart Berggren
  • Vattenburen golvvärme i hela huset & fjärrvärme
  • Solig, insynsskyddad tomt på 1 021 kvm med fruktträd
  • Timrad gäststuga med kök, dusch & vardagsrum
  • Luftigt vardagsrum med fönster från golv till tak
  • Master bedroom med marmorbadrum & utgång till altan
  • Generöst kök med matplats och god förvaring
  • Bastu, allrum & tre sovrum på nedre plan + kontorshörna

Välkommen till en unik villa i hjärtat av idylliska Villastaden, ett hem som kombinerar arkitektonisk finess med praktisk funktion och ett fantastiskt ljusflöde. Denna souterrängvilla, ritad av Per Lennart Berggren på Thurfjell Arkitektkontor och uppförd 1980, bjuder på ett boende utöver det vanliga – där varje detalj är genomtänkt och varje kvadratmeter välanvänd. Fastigheten är utrustad med fiber och uppvärmd via fjärrvärme med vattenburen golvvärme i hela huset. Den vackert anlagda trädgårdstomten om 1 021 kvm är en privat oas med sol från morgon till kväll, inramad av fruktträd och grönskande häckar. För barnen finns stora lekvänlig gräsmattor och för gäster en charmig timrad friggebod med kök, duschrum och vardagsrum.

Husets entréplan bjuder in med en välkomnande hall som öppnar upp mot en större inre hall. Genom vackra dubbeldörrar leds du vidare till det ljusa matrummet och den inglasade altanen. Matrummet övergår sömlöst i det luftiga vardagsrummet med öppen planlösning, som erbjuder generösa ytor med plats för två soffgrupper och ett fantastiskt ljusinsläpp från golv till tak. Intill ligger ett stort kök med goda förvaringsmöjligheter, fina arbetsytor och plats för ett matbord. Master bedroom är både generöst och stilfullt med platsbyggda garderober, fönster i två väderstreck och direkt utgång till altanen. Det privata badrummet, klätt i elegant marmor erbjuder både badkar och dusch. Ytterligare ett sovrum samt en separat WC kompletterar entréplanet. Nedre plan överraskar med ytor som passar hela familjen. Här finns ett ljust allrum perfekt som extra vardagsrum, tre rymliga sovrum med god förvaring samt en tvättstuga med bastu och separat duschrum. En smart kontorshörna kan enkelt skapas under trappen, ett bra utrymme för dig som arbetar hemifrån.

Till huset hör ett vidbyggt garage, carport och en generös uppfart med plats för flera bilar. Villastaden är ett av Gävles mest eftertraktade områden med charmig bebyggelse, närhet till stadspuls och natur. På kort promenadavstånd når du Boulognerskogen med promenadstråk, utomhusgym, caféer och badplats. I närområdet finns även Konserthuset, Fjärran höjderbadet, Gävle sjukhus, Högskolan och populära Solängsskolan samt den omtyckta Runebergs Kvarterskrog.

Varm välkommen att kontakta ansvarig mäklare vid intresse!

Visningar
  • Bokad visning, anmälan krävs!
    Torsdag 23 oktober 17:30 - 18:00
    Boka
TIPSA

Robert

Brandt

ANSVARIG
MÄKLARE

Sofie

Dahlqvist

REG. FASTIGHETSMÄKLARE

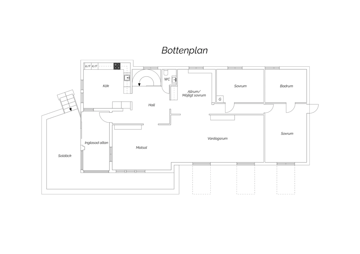
Rumsbeskrivning - Bragevägen 7B

ENTRÉPLAN

HALL

Marmorgolv med vattenburen golvvärme och ljusa väggar. Plats för avhängning.

KÖK

Plastmatta med vattenburen golvvärme och ljusa väggar. Den maskinella utrustningen består av spishäll, inbyggd ugn, inbyggd mikro, inbyggd diskmaskin samt kyl och frys. Matplats.

MATRUM

Parkettgolv med vattenburen golvvärme och ljusa väggar. Här finns plats för större matbord. Från matrummet nås bostaden inglasade altan.

VARDAGSRUM

Parkettgolv med vattenburen golvvärme och ljusa väggar. Här finns plats för två soffgrupper med tillhörande möblemang om så önskas.

SOVRUM

Parkettgolv med vattenburen golvvärme och ljusa väggar. Här finns plats för säng med tillhörande möblemang samt skrivbordshörna.

SOVRUM

Parkettgolv med vattenburen golvvärme och ljusa väggar. Här finns plats för säng med tillhörande möblemang samt skrivbordshörna. Förvaring i platsbyggd garderober med skjutdörrar. Från sovrummet nås trädgården och altanen.

BADRUM

Marmorgolv med vattenburen golvvärme. Badrummet är utrustad med vägghängd wc, handfat med kommod, vägghängd spegel med belysning, handdukstork, badkar samt dusch.

WC

Marmorgolv med vattenburen golvvärme och beiga väggar. Toaletten är utrustad med wc, handfat samt vägghängd spegel.

NEDRE PLAN

NEDRE HALL

Parkettgolv med vattenburen golvvärme och ljusa väggar. Här finns plats för skrivbord och lämpar sig bra för hemmakontor.

ALLRUM

Parkettgolv med vattenburen golvvärme och ljusa väggar. Här finns plats för soffgrupper med tillhörande möblemang.

SOVRUM

Parkettgolv med vattenburen golvvärme och ljusa väggar. Här finns plats för säng med tillhörande möblemang samt skrivbordshörna. Förvaring i platsbyggd garderob.

SOVRUM

Parkettgolv med vattenburen golvvärme och ljusa väggar. Här finns plats för säng med tillhörande möblemang samt skrivbordshörna. Förvaring i platsbyggd garderob med skjutdörrar i spegelglas.

SOVRUM

Parkettgolv med vattenburen golvvärme och ljusa väggar. Här finns plats för säng med tillhörande möblemang samt skrivbordshörna. Förvaring i platsbyggd garderob med skjutdörrar i spegelglas.

DUSCHRUM

Plastmatta med vattenburen golvvärme och ljusa väggar. Duschrummet är utrustat med vägghängd wc, handfat med kommod, vägghängd spegelskåp med belysning samt dusch.

TVÄTTSTUGA

Plastmatta med vattenburen golvvärme och ljusa väggar. Tvättstugan är utrustad med tvättmaskin, torktumlare, tvättho, arbetsbänk, förvaringsskåp samt bastu.

Fakta – Bragevägen 7B

Bostadstyp: Villa
Kommun: Gävle
Besiktad och försäkrad: Bostaden är besiktad och säljaren avser att teckna en försäkring mot dolda fel.
Fastighetsbeteckning: Villastaden 22:21
Storlek: 7 rum, 200 kvm boarea, 91 kvm biarea
Varav sovrum: 5 - 6
Areakälla: faktisk uppmätning
Utgångspris: 7 990 000 kr
Energiprestanda: 76 kWh/kvm och år
Energiklass: C
Planbestämmelser: Stadsplan (1935-09-20)
Upplåtelseform: Friköpt
Pantbrev: Det finns 3 st pantbrev uttaget om sammanlagt 2 000 000 kr
Taxeringsvärde: 5 029 000 kr
Taxeringsår: 2024
Byggnadsvärde: 2 915 000 kr
Markvärde: 2 114 000 kr
Fastighetsavgift: 10 074 kr/år
Tillträde: Enligt överenskommelse

Fakta – Byggnaden

Hus
Byggnadstyp: Souterrängvilla
Byggår: 1980
Fasad: Trä
Stomme: Trä
Fönster: 3-glas
Tak: Betongpannor
Grundläggning: Souterräng/källare
Uppvärmning: fjärrvärme med vattenburen golvvärme
Vatten och avlopp: Kommunalt vatten året om. Kommunalt avlopp.
Ventilation: Mekanisk till- och frånluft med värmeåtervinning (FTX)
Övrigt om byggnaden: PLANER OCH MARKREGLERINGAR
2180-3925 1988-06-06 Gävle
Status: Gällande
Beslutsdatum: 1935-09-20

ÅTGÄRDER
Avstyckning 1978-10-09 21-78:1161

PARKERING
Garage och carport

GEMENSAMHETSANLÄGGNINGAR
Inga gemensamhetsanläggningar.

Uppkoppling
Fiber via Gavlenet

ANDEL I SAMFÄLLIGHET
Inga andelar i samfällighet.

RÄTTIGHETER
Inga rättigheter.
Tomt, uteplats och bilplats
Tomtarea: 1021 kvm
Tomttyp: Friköpt tomt
Övriga byggnader
Timrad gäststuga/tonårsboende med pentry, dusch, wc och allrum med platsbyggd säng.

Driftkostnader

Totalsumma: 41 147 kr/år

I driftkostnaden ingår följande:
Uppvärmning: 19 000 kr/år
El: 9 000 kr/år
VA: 6 000 kr/år
Renhållning: 2 147 kr/år
Försäkring: 5 000 kr/år

Driftkostnaden är beräknad på 1 persons hushåll.
Angiven driftkostnad enligt säljarens uppgifter. De faktiska kostnaderna kan variera beroende på familjesammansättning och levnadssätt.
Fullvärde: Ja

Utöver detta tillkommer kostnad för fastighetsavgift/skatt på 10 074 kr/år.

  • Denna bostad
  • Bostäder till salu via Erik Olsson

En riktigt lyckad

bostadsaffär

När du hittat ditt drömboende hjälper vi dig gärna att sälja din nuvarande bostad. För oss är det viktigt att du känner dig trygg både när du köper och säljer bostad via Erik Olsson. Därför är våra mäklare bland de vassaste och mest engagerade i branschen. Vi anstränger oss gärna lite extra för att din bostadsförsäljning ska bli perfekt. Hos oss får du en riktigt lyckad bostadsaffär – och bäst betalt.

Intresseanmälan

Få kontakt med en mäklare som är expert på just ditt område.

✶ Obligatoriska fält

Tillbaka till toppen