Gävle Strand / GÄVLE

Redargatan 1

Föreslagen budstart: 2 090 000 kr
TIPSA
Ljus & luftig 3:a med dubbla uteplatser, 3 m takhöjd och garage, nära hav & stad

  • Inglasad balkong
  • Två balkonger i perfekt solläge
  • IR-bastu & helkaklat badrum
  • Egen bred loftgång med havsutsikt
  • Varmgarage med elbilsladdare
  • Nära hav, bad, båtplats & city

Välkommen till denna ljusa och välplanerade 3 rok med en generös takhöjd på hela 3 meter och en öppen planlösning som skapar en härligt luftig och inbjudande känsla. Här möts du av ett hem med genomtänkta detaljer, golvvärme och stora fönsterpartier som släpper in ett fantastiskt ljus från morgon till kväll.

Lägenheten erbjuder dubbla uteplatser i perfekt solläge, en inglasad balkong mot den lugna innergården med eftermiddags- och kvällssol, samt en härlig loftgång på framsidan med morgon- och förmiddagssol och utsikt mot havet. Loftgången är extra bred just här, vilket gör den möjlig att inreda och använda som en generös extrayta. Det rymliga vardagsrummet och köket binds samman i en öppen och social planlösning. Från vardagsrummet når du den stora västvända inglasade balkongen, där du kan njuta av solen från lunch till solnedgång och utsikten mot naturen omkring. Bostaden rymmer två välplanerade sovrum och ett stilrent, helkaklat duschrum utrustat med dusch, tvättmaskin och torktumlare samt en lyxig IR-bastu för extra vardagslyx.

Här bor du i ett lugnt och trevligt område med grannsamverkan och närhet till både stad och natur. Fastigheten byggd 2018, ligger ett stenkast från havet med gångavstånd till badplatser och möjligheten att hyra båtplats i området. Garage med elbilsladdare. I närområdet finns förskola, lekplats, gym, närbutik, hälsocentral, caféer och välbesökta restauranger som Tullhuset. Du har dessutom nära till Gävle centrum och centralstationen.

Varmt välkomna att kontakta ansvarig mäklare vid intresse!

Snabbfakta
Avgift:
6 889 kr
I avgiften ingår kallvatten, garageplats och bostadsrättstillägg. Obligatoriskt tillägg för TV/Bredband 325kr tillkommer. Kostnaden för el, värme och varmvatten debiteras månadsvis med tre månaders fördröjning, se under driftkostnad.
Rum:
3 rum och kök
Boarea:
81 kvm
Våning:
2 av 5
Föreslagen budstart:
2 090 000 kr
Byggnadsår:
2018
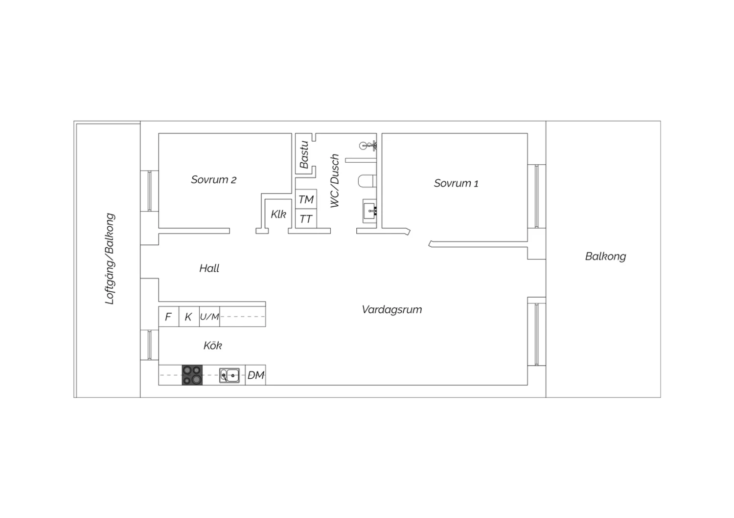
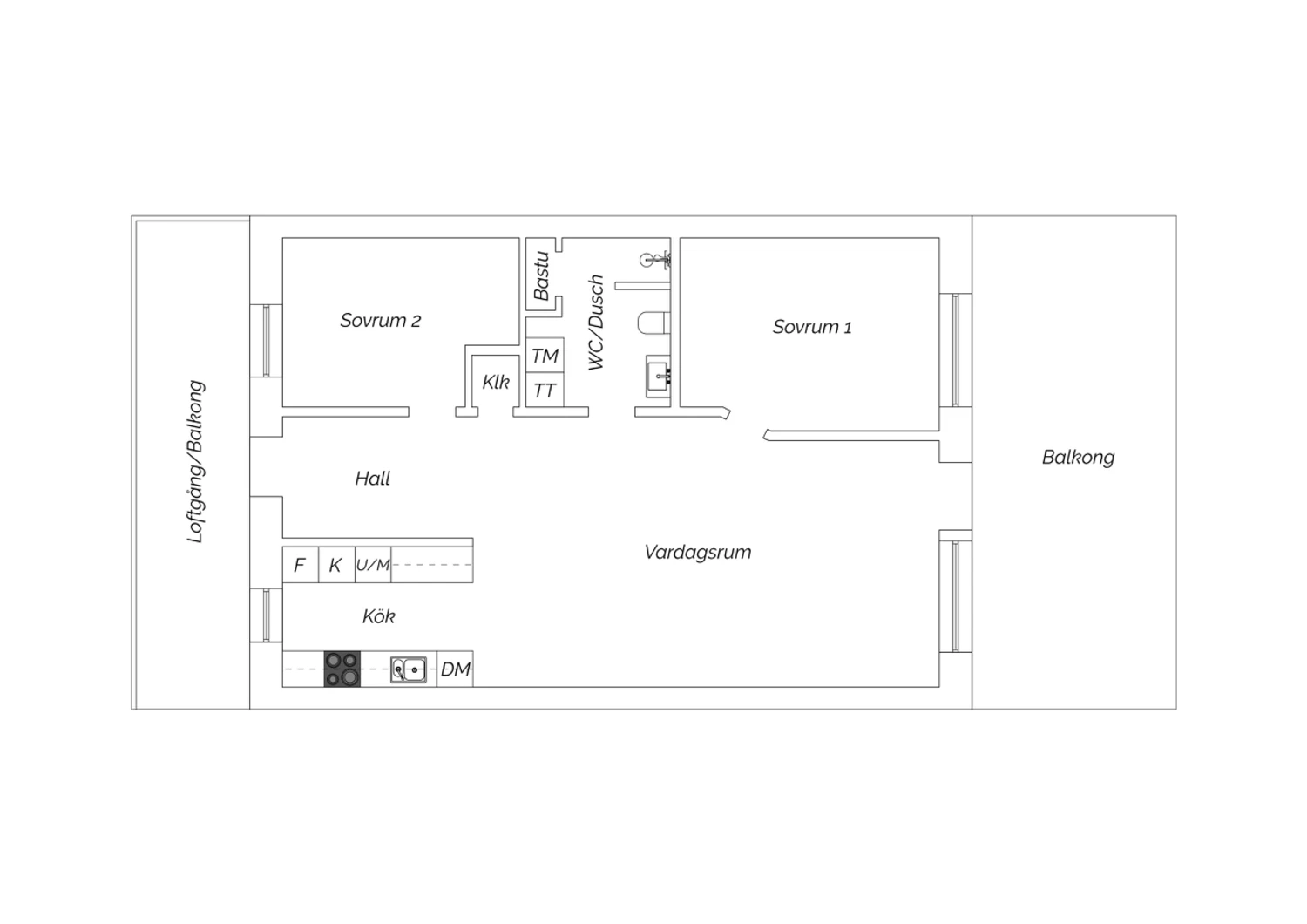
Planritning
e-prospekt
Visningar
  • Anmälan krävs!
    Söndag 19 oktober 14:30 - 15:00
    Boka
Mäklare

Jonas

Söderhäll

ANSVARIG
MÄKLARE

Alexander

Manuel Ibrahim

REG. FASTIGHETSMÄKLARE

Ljus & luftig 3:a med dubbla uteplatser, 3 m takhöjd och garage, nära hav & stad

  • Inglasad balkong
  • Två balkonger i perfekt solläge
  • IR-bastu & helkaklat badrum
  • Egen bred loftgång med havsutsikt
  • Varmgarage med elbilsladdare
  • Nära hav, bad, båtplats & city

Välkommen till denna ljusa och välplanerade 3 rok med en generös takhöjd på hela 3 meter och en öppen planlösning som skapar en härligt luftig och inbjudande känsla. Här möts du av ett hem med genomtänkta detaljer, golvvärme och stora fönsterpartier som släpper in ett fantastiskt ljus från morgon till kväll.

Lägenheten erbjuder dubbla uteplatser i perfekt solläge, en inglasad balkong mot den lugna innergården med eftermiddags- och kvällssol, samt en härlig loftgång på framsidan med morgon- och förmiddagssol och utsikt mot havet. Loftgången är extra bred just här, vilket gör den möjlig att inreda och använda som en generös extrayta. Det rymliga vardagsrummet och köket binds samman i en öppen och social planlösning. Från vardagsrummet når du den stora västvända inglasade balkongen, där du kan njuta av solen från lunch till solnedgång och utsikten mot naturen omkring. Bostaden rymmer två välplanerade sovrum och ett stilrent, helkaklat duschrum utrustat med dusch, tvättmaskin och torktumlare samt en lyxig IR-bastu för extra vardagslyx.

Här bor du i ett lugnt och trevligt område med grannsamverkan och närhet till både stad och natur. Fastigheten byggd 2018, ligger ett stenkast från havet med gångavstånd till badplatser och möjligheten att hyra båtplats i området. Garage med elbilsladdare. I närområdet finns förskola, lekplats, gym, närbutik, hälsocentral, caféer och välbesökta restauranger som Tullhuset. Du har dessutom nära till Gävle centrum och centralstationen.

Varmt välkomna att kontakta ansvarig mäklare vid intresse!

Visningar
  • Anmälan krävs!
    Söndag 19 oktober 14:30 - 15:00
    Boka
TIPSA

Jonas

Söderhäll

ANSVARIG
MÄKLARE

Alexander

Manuel Ibrahim

REG. FASTIGHETSMÄKLARE

Rumsbeskrivning - Redargatan 1

HALL

Klinkergolv och ljusa väggar. Plats för avhängning.

KÖK

Parkettgolv och ljusa väggar. Den maskinella utrustningen består av spishäll, spisfläkt, inbyggd ugn, inbyggd mikro, inbyggd diskmaskin samt kyl och frys.

VARDAGRUM

Parkettgolv och ljusa väggar. Här finns plats för soffa med tillhörande samt matbord. Från vardagsrummet nås bostaden inglasade balkong.

SOVRUM

Parkettgolv och grå väggar. Här finns plats för säng med tillhörande möblemang.

SOVRUM/KONTOR

Parkettgolv och ljusa väggar.

DUSCHRUM

Klinkergolv och helkaklade väggar. Duschrummet är utrustat med wc, handfat med kommod, vägghängd spegel, dusch med vikbara glasdörrar, tvättmaskin, torktumlare, förvaringsskåp samt IR bastu.

ÖVRIGT

Till lägenheten hör ett källarförråd.

Fakta – Redargatan 1

Bostadstyp: Bostadsrätt
Kommun: Gävle
Storlek: 3 rum och kök, 81 kvm boarea
Areakälla: föreningens information
Våning: 2 av 5
Lägenhetsnummer: 1109 (1109)
Föreslagen budstart: 2 090 000 kr
Månadsavgift: 6 889 kr
I avgiften ingår kallvatten, garageplats och bostadsrättstillägg. Obligatoriskt tillägg för TV/Bredband 325kr tillkommer. Kostnaden för el, värme och varmvatten debiteras månadsvis med tre månaders fördröjning, se under driftkostnad.
Andelstal: Andel i förening 1,039 %, andel av årsavgift 1,039 %
Energiprestanda: 73 kWh/kvm och år
Energiklass: C
Tillträde: Enligt överenskommelse

Fakta – BRF Stuveriet

Äkta/oäkta förening: Äkta
Äger föreningen marken: Ja
Antal lägenheter: 101
Allmänt om föreningen: BRF Stuveriet är en äkta bostadsrättsförening med 101 lägenheter. Föreningen bildades år 2016.

Besök föreningens hemsida https://www.egrannar.se/brfstuveriet

Under rådande läge med hög inflation och höjda energipriser kommer många bostadsrättsföreningar behöva se över sin ekonomi ordentligt och flertalet föreningar diskuterar behovet av avgiftshöjning inom de närmaste året/åren. För mer information kontakta föreningen.
Informationen ovan är tagen från styrelsen, föreningens årsredovisning samt stadgar. Vi råder dig som köpare att kontrollera fakta som är av vikt för dig. Vi som mäklare eller Erik Olsson ansvarar ej för att uppgifterna från dessa källor är korrekta. Senaste kontroll utfördes 2025-08-04
Parkering: 125 garageplatser varav 101 garageplatser för boende som ingår i månadsavgiften.

Varje lägenhet har en garageplats som tillhör lägenheten. Vid garageplatsen finns källarförrådet till lägenheten. Varje garageplats har möjlighet till elbilsladdning (3 fas/11kW).

Det finns 21 st extra garageplatser för uthyrning till både BRF Stuveriets medlemmar och de som ej är boende i fastigheten.
Överlåtelseavgift och pantsättning: En överlåtelseavgift tas ut om ca 1 470 kr som betalas av köparen. Vid belåning av bostaden tas en pantsättningsavgift ut om ca 588 kr/pant. Beloppen är beräknade på prisbasbeloppet för år 2025.
Hus
Byggår: 2018
Byggnadstyp: Flerfamiljshus
Hiss: Hiss finns
Fönster: Isolerglas
Ventilation: Mekanisk, typ FTX
Uppvärmning: Fjärrvärme
Tv och internet: Digital kabel-TV bas 1 ingår. Möjligt att uppgradera efter önskemål.
Gruppanslutning via GavleNet (1000/1000).
Renoveringar
Planerade:
2024: 5-årsbesiktning
Inga renoveringar/större investeringar är planerade.

Driftkostnader

Totalsumma: 11 432 kr/år

I driftkostnaden ingår följande:
Uppvärmning: 1 200 kr/år
El: 2 400 kr/år
VA: 1 800 kr/år
Försäkring: 2 132 kr/år
Övrigt: 3 900 kr/år

Driftkostnaden är beräknad på 2 personers hushåll.
Observera att driftskostnaderna som anges ovan baseras på säljarens faktiska kostnader det senaste året om inget annat särskilt anges. Vilka driftskostnader köparen kommer att ha beror på hur bostaden kommer att användas, vilka abonnemang som kommer att tecknas och övriga omständigheter i det enskilda fallet. Övrigt avser det obligatoriska tillägget för bredband.

  • Denna bostad
  • Bostäder till salu via Erik Olsson

En riktigt lyckad

bostadsaffär

När du hittat ditt drömboende hjälper vi dig gärna att sälja din nuvarande bostad. För oss är det viktigt att du känner dig trygg både när du köper och säljer bostad via Erik Olsson. Därför är våra mäklare bland de vassaste och mest engagerade i branschen. Vi anstränger oss gärna lite extra för att din bostadsförsäljning ska bli perfekt. Hos oss får du en riktigt lyckad bostadsaffär – och bäst betalt.

Intresseanmälan

Få kontakt med en mäklare som är expert på just ditt område.

✶ Obligatoriska fält

Tillbaka till toppen