Bomhus / Gävle

Stabbläggargatan 40

Föreslagen budstart: 3 950 000 kr
TIPSA
Välkommen till ett hemtrevligt paradis i barnvänliga Bomhus!

  • - Öppen planlösning med stora, ljusa rum
  • - Uppvärmd pool och inglasat uterum
  • - Lugn tomt med baksida mot skogen
  • - Odlingsmöjligheter & fruktträdgård
  • - Bastu och braskamin för extra komfort
  • - Nära till service, natur och kommunikationer

Här erbjuds en charmig och välplanerad 1 ½-plansvilla med det lilla extra här finns en plats där varje årstid har sin egen magi! Med stora, ljusa och luftiga rum i öppen planlösning bjuder hemmet på både rymd och trivsel. Här är det lätt att trivas oavsett om du söker plats för familjeliv, avkoppling eller sociala tillställningar.

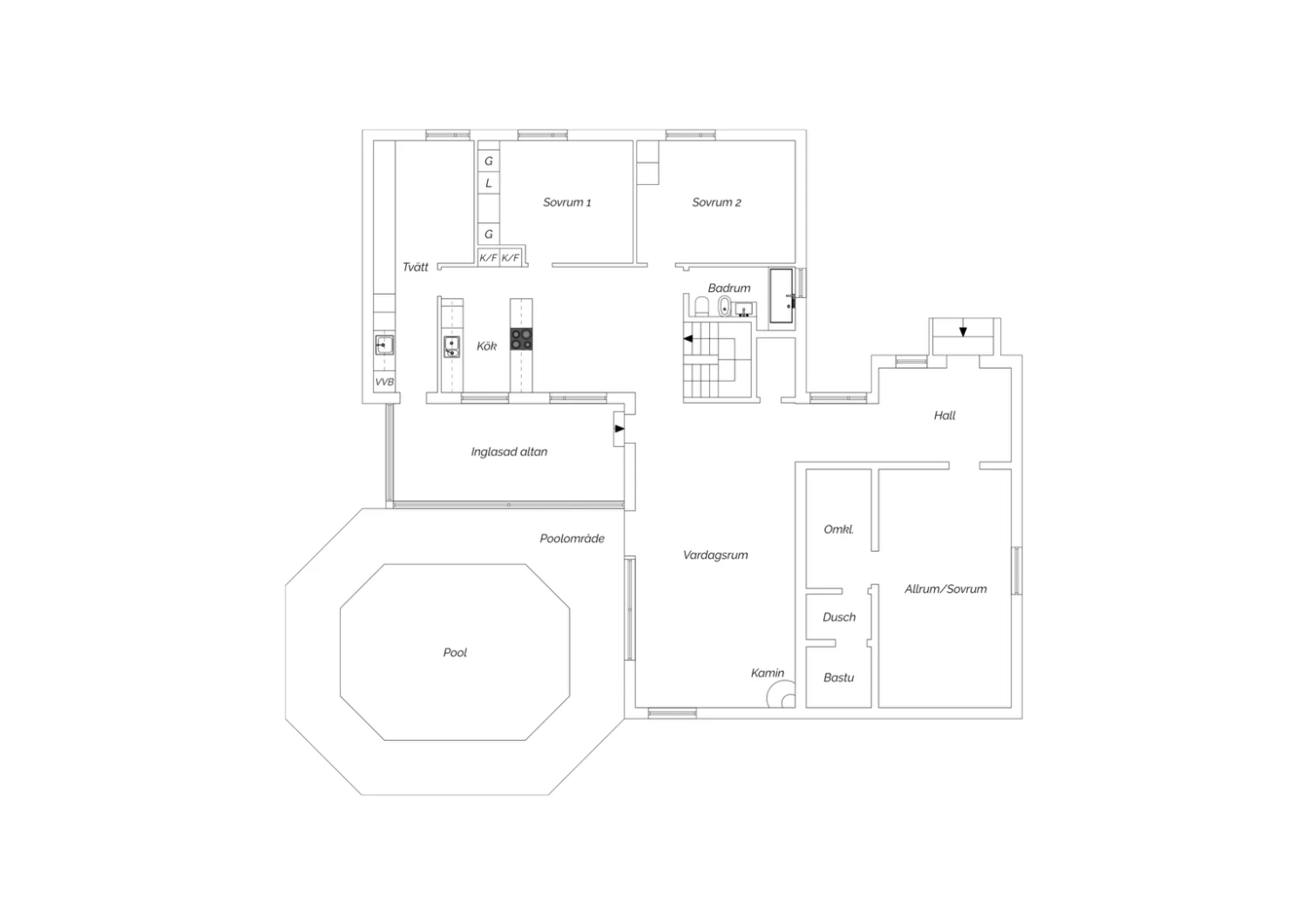
Villan har genomgående mycket goda förvaringsutrymmen som gör det enkelt att hålla ordning och reda. Huset är rymligt och är större än de flesta husen i området då det byggts ut med åren. Idag har du vardagsrum, allrum och fyra sovrum men allrummet skulle mycket väl kunna fungera som ett perfekt master bedroom och således ge fem sovrum. Utöver detta har du för ett fungerande vardagligt liv ett fräscht kök, badrum, gäst-wc, och tvättstuga.
För dig som gillar att njuta av livet utomhus väntar en fantastisk uteplats med en stor, uppvärmd pool, perfekt för lata sommardagar och härliga grillkvällar. Intill finns även ett inglasat uterum som blir ett extra vardagsrum under stora delar av året.

Tomten bjuder på ett lugnt och privat läge med baksidan i västerläge vänd mot skogen, ett idealiskt läge för dig som uppskattar tystnaden, naturens närhet och framförallt det bästa solläget. Det fridfulla området är fritt från genomfartstrafik och bjuder in till ett tryggt och barnvänligt boende.

För odlingsintresserade finns åtta stora pallkragar, redo för grönsakslandet du alltid drömt om. Trädgården pryds dessutom av päronträd med osedvanligt god frukt, samt äpple-, plommon-, krusbärs- och röda vinbärsbuskar. Här växer också rabarber och till midsommar sprider en blommande doftschersmin sin ljuvliga doft över hela tomten.

Under vintern blir huset en mysig tillflyktsort med en värmande braskamin och ett avkopplande dusch- och relaxrum med bastu – en perfekt plats att varva ner efter en lång dag. Intill finns skogsområden där barnen kan plocka blåbär på sommaren och åka pulka på vintern.

Till huset hör även ett praktiskt uthus med gott om plats för trädgårdsredskap och vedförvaring.

Läget är svårslaget med gång och cykelavstånd till det mesta:
Skola, förskola, mataffär, lekplatser, hälsocentral, apotek och busshållplats – allt inom bekvämt räckhåll!

Det här är ett hem att trivas i året om. Välkommen att upptäcka din framtida oas i Bomhus!

Snabbfakta
Rum:
6
Varav sovrum:
4 - 5
Boarea:
186 kvm
Tomtarea:
805 kvm
Föreslagen budstart:
3 950 000 kr
Byggnadsår:
1970
Fastighetsbeteckning:
Högsta 8:2
Planritning
e-prospekt
Visningar
  • Anmälan krävs!
    Söndag 19 oktober 10:45 - 11:15
    Boka
Mäklare

Jonas

Söderhäll

ANSVARIG
MÄKLARE

Alexander

Manuel Ibrahim

REG. FASTIGHETSMÄKLARE

Välkommen till ett hemtrevligt paradis i barnvänliga Bomhus!

  • - Öppen planlösning med stora, ljusa rum
  • - Uppvärmd pool och inglasat uterum
  • - Lugn tomt med baksida mot skogen
  • - Odlingsmöjligheter & fruktträdgård
  • - Bastu och braskamin för extra komfort
  • - Nära till service, natur och kommunikationer

Här erbjuds en charmig och välplanerad 1 ½-plansvilla med det lilla extra här finns en plats där varje årstid har sin egen magi! Med stora, ljusa och luftiga rum i öppen planlösning bjuder hemmet på både rymd och trivsel. Här är det lätt att trivas oavsett om du söker plats för familjeliv, avkoppling eller sociala tillställningar.

Villan har genomgående mycket goda förvaringsutrymmen som gör det enkelt att hålla ordning och reda. Huset är rymligt och är större än de flesta husen i området då det byggts ut med åren. Idag har du vardagsrum, allrum och fyra sovrum men allrummet skulle mycket väl kunna fungera som ett perfekt master bedroom och således ge fem sovrum. Utöver detta har du för ett fungerande vardagligt liv ett fräscht kök, badrum, gäst-wc, och tvättstuga.
För dig som gillar att njuta av livet utomhus väntar en fantastisk uteplats med en stor, uppvärmd pool, perfekt för lata sommardagar och härliga grillkvällar. Intill finns även ett inglasat uterum som blir ett extra vardagsrum under stora delar av året.

Tomten bjuder på ett lugnt och privat läge med baksidan i västerläge vänd mot skogen, ett idealiskt läge för dig som uppskattar tystnaden, naturens närhet och framförallt det bästa solläget. Det fridfulla området är fritt från genomfartstrafik och bjuder in till ett tryggt och barnvänligt boende.

För odlingsintresserade finns åtta stora pallkragar, redo för grönsakslandet du alltid drömt om. Trädgården pryds dessutom av päronträd med osedvanligt god frukt, samt äpple-, plommon-, krusbärs- och röda vinbärsbuskar. Här växer också rabarber och till midsommar sprider en blommande doftschersmin sin ljuvliga doft över hela tomten.

Under vintern blir huset en mysig tillflyktsort med en värmande braskamin och ett avkopplande dusch- och relaxrum med bastu – en perfekt plats att varva ner efter en lång dag. Intill finns skogsområden där barnen kan plocka blåbär på sommaren och åka pulka på vintern.

Till huset hör även ett praktiskt uthus med gott om plats för trädgårdsredskap och vedförvaring.

Läget är svårslaget med gång och cykelavstånd till det mesta:
Skola, förskola, mataffär, lekplatser, hälsocentral, apotek och busshållplats – allt inom bekvämt räckhåll!

Det här är ett hem att trivas i året om. Välkommen att upptäcka din framtida oas i Bomhus!

Visningar
  • Anmälan krävs!
    Söndag 19 oktober 10:45 - 11:15
    Boka
TIPSA

Jonas

Söderhäll

ANSVARIG
MÄKLARE

Alexander

Manuel Ibrahim

REG. FASTIGHETSMÄKLARE

Fakta – Stabbläggargatan 40

Bostadstyp: Villa
Kommun: Gävle
Besiktad och försäkrad: Bostaden är besiktad och säljaren avser att teckna en försäkring mot dolda fel.
Fastighetsbeteckning: Högsta 8:2
Storlek: 6 rum, 186 kvm boarea
Varav sovrum: 4 - 5
Areakälla: taxeringsinformation
Föreslagen budstart: 3 950 000 kr
Energiprestanda: 139 kWh/kvm och år
Energiklass: E
Planbestämmelser: Stadsplan (1969-05-21)
Upplåtelseform: Friköpt
Pantbrev: Det finns 16 st pantbrev uttaget om sammanlagt 3 145 000 kr
Taxeringsvärde: 3 156 000 kr
Taxeringsår: 2024
Byggnadsvärde: 2 279 000 kr
Markvärde: 877 000 kr
Fastighetsavgift: 10 074 kr/år

Fakta – Byggnaden

Hus
Byggnadstyp: 1½-plansvilla
Byggår: 1970
Ombyggt 1980
Fasad: Trä + tegel
Fönster: 3-glas & 2-glas
Tak: Plåt & papp
Grundläggning: Betongplatta
Uppvärmning: Luft/luftvärmepump, kamin & direkt-el
Vatten och avlopp: Kommunalt vatten året om. Kommunalt avlopp
Övrigt om byggnaden: - Hallen 2025 av yrkesman. Golv med golvvärme, innerväggar, innertak med spotlights. Flytt av ytterdörr. Yrkesman.
- pool: byggd 2012, ny pool liner 2020, ny poolpump 2023. Yrkesman.
- övervåning: nytt parkettgolv i alla sovrum och hall. Gjort själv.
- ny luftvärmepump 2023, Yrkesman.
- Renovering tvättstuga 2011
- Duschrum/relax byggdes 2018
- Ny toalett nedervåningen 2023
- Badrum nedervåningen renoverad 2007
- Fjärrstyrd garageport 2010, marklagd sten uppfart 2016.
- Takpapp garage 2018
- Ny panel hus 2014
- Höst och vinterisolering uterum 2016
Tomt, uteplats och bilplats
Tomtarea: 805 kvm
Övriga byggnader
- Garage
- Förråd

Driftkostnader

Totalsumma: 15 627 kr/år

I driftkostnaden ingår följande:
VA: 6 275 kr/år
Sotning: 600 kr/år
Renhållning: 2 752 kr/år
Försäkring: 6 000 kr/år

Driftkostnaden är beräknad på 4 personers hushåll.
Utöver dessa driftkostnader så tillkommer kostnad för el och nuvarande ägare har haft en förbrukning om 23 000 kWh/år. Angiven driftkostnad är enligt säljarens uppgifter. De faktiska kostnaderna kan variera beroende på familjesammansättning och levnadssätt.
Fullvärde: Ja

Utöver detta tillkommer kostnad för fastighetsavgift/skatt på 10 074 kr/år.

  • Denna bostad
  • Bostäder till salu via Erik Olsson

En riktigt lyckad

bostadsaffär

När du hittat ditt drömboende hjälper vi dig gärna att sälja din nuvarande bostad. För oss är det viktigt att du känner dig trygg både när du köper och säljer bostad via Erik Olsson. Därför är våra mäklare bland de vassaste och mest engagerade i branschen. Vi anstränger oss gärna lite extra för att din bostadsförsäljning ska bli perfekt. Hos oss får du en riktigt lyckad bostadsaffär – och bäst betalt.

Intresseanmälan

Få kontakt med en mäklare som är expert på just ditt område.

✶ Obligatoriska fält

Tillbaka till toppen