/ Alnö

Aktervägen 5

Utgångspris: 2 450 000 kr
TIPSA
1-plans villa med inredd källare för den mindre familjen på härligt grönskande trädgård/naturtomt!

Välkomna till Aktervägen 5!

Här möts vi av en öppen och ljust belägen trädgårds/naturtomt med ett underbart lugnt läge och fin utsikt. Här kan barnen leka på tomten och det finns god plats för den som är intresserad av att odla. Villan har en boyta om 79 kvm och 67 kvm biyta fördelat på 4 rum och kök varav 3 sovrum, två av dessa rum är belägna på källarplan. Rummen på källarplan kan användas till sovrum, arbetsrum allt efter behov. Tvättstuga/pannrum med utgång till tomt.

På tomten finns även en varmbonad gäststuga för åretruntbruk, byggd 2020/21.

Trädgården är som en förlängning av huset – insynsskyddad och full av möjligheter. Här finns gott om plats för både odlingslådor, blomsterprakt och kanske ett växthus för den som drömmer om gröna fingrar.

På Alnö bor du med närhet till allt du kan tänkas behöva, i Alnö centrum finns matbutik, vårdcentral, folktandvård, gym, bageri, bilverkstad, skolor, badhus, idrottsplats, förskola och busscentrum. Från Alnö centrum åker du med linje 1 som tar dig in till Sundsvalls centrum samt linje 75 som tar dig vidare ut mot de soliga stränderna på södra sidan av ön. Alnö är känt som Norrlands Hawaii med sina magnifika stränder och närliggande öar, här finns de allra finaste stränderna som Norrlandskusten kan erbjuda, underbara skogar, bär och svampplockning och elljusspår som används som skidspår under vintertid. Det finns även möjlighet till fallskärmshoppning och härliga rundvandringar om forntida Alnö och dess historia. Med gångavstånd från huset finns också strandpromenad som går från småbåtshamnen in till Alnö centrum samt restaurang Carlvikspiren och Virriga bakverk samt cykelavstånd till restaurang Vindhem och dess båthamn.

Varmt välkommen med din intresseanmälan!

Snabbfakta
Rum:
4
Varav sovrum:
1 - 3
Boarea:
79 kvm
Biarea:
67 kvm
Tomtarea:
2620 kvm
Utgångspris:
2 450 000 kr
Byggnadsår:
1937
Fastighetsbeteckning:
Älva 1:43
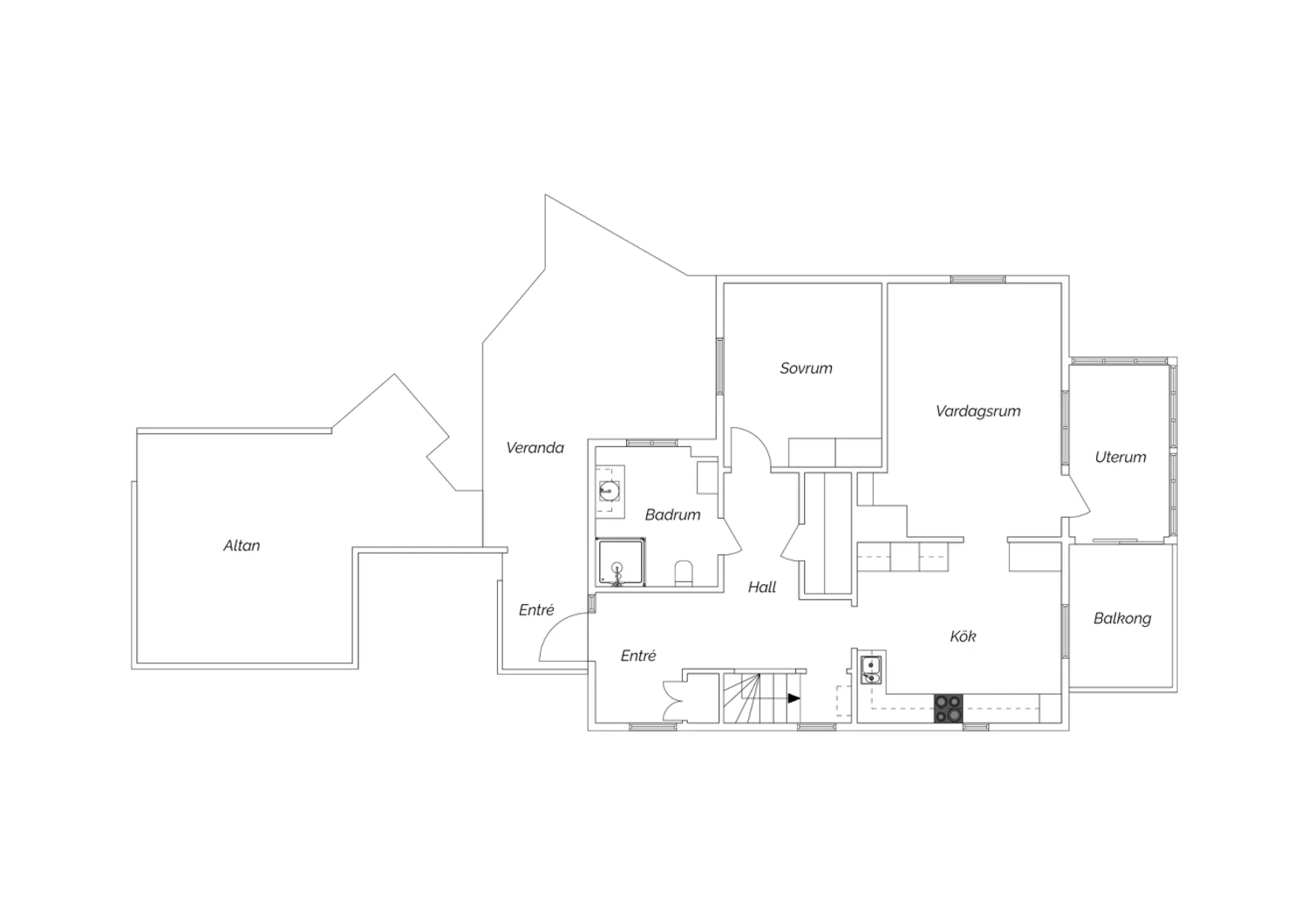
Planritning
Planritning Planritning
Visningar
  • Obligatorisk visningsanmälan, varmt välkomna!
    Söndag 19 oktober 15:00 - 15:45

    Kontakta mäklaren

Mäklare

Leif

Karlsson

ANSVARIG
MÄKLARE

Lena

Berglund

STYLIST - NORRLAND

1-plans villa med inredd källare för den mindre familjen på härligt grönskande trädgård/naturtomt!

Välkomna till Aktervägen 5!

Här möts vi av en öppen och ljust belägen trädgårds/naturtomt med ett underbart lugnt läge och fin utsikt. Här kan barnen leka på tomten och det finns god plats för den som är intresserad av att odla. Villan har en boyta om 79 kvm och 67 kvm biyta fördelat på 4 rum och kök varav 3 sovrum, två av dessa rum är belägna på källarplan. Rummen på källarplan kan användas till sovrum, arbetsrum allt efter behov. Tvättstuga/pannrum med utgång till tomt.

På tomten finns även en varmbonad gäststuga för åretruntbruk, byggd 2020/21.

Trädgården är som en förlängning av huset – insynsskyddad och full av möjligheter. Här finns gott om plats för både odlingslådor, blomsterprakt och kanske ett växthus för den som drömmer om gröna fingrar.

På Alnö bor du med närhet till allt du kan tänkas behöva, i Alnö centrum finns matbutik, vårdcentral, folktandvård, gym, bageri, bilverkstad, skolor, badhus, idrottsplats, förskola och busscentrum. Från Alnö centrum åker du med linje 1 som tar dig in till Sundsvalls centrum samt linje 75 som tar dig vidare ut mot de soliga stränderna på södra sidan av ön. Alnö är känt som Norrlands Hawaii med sina magnifika stränder och närliggande öar, här finns de allra finaste stränderna som Norrlandskusten kan erbjuda, underbara skogar, bär och svampplockning och elljusspår som används som skidspår under vintertid. Det finns även möjlighet till fallskärmshoppning och härliga rundvandringar om forntida Alnö och dess historia. Med gångavstånd från huset finns också strandpromenad som går från småbåtshamnen in till Alnö centrum samt restaurang Carlvikspiren och Virriga bakverk samt cykelavstånd till restaurang Vindhem och dess båthamn.

Varmt välkommen med din intresseanmälan!

Visningar
  • Obligatorisk visningsanmälan, varmt välkomna!
    Söndag 19 oktober 15:00 - 15:45

    Kontakta mäklaren

TIPSA

Leif

Karlsson

ANSVARIG
MÄKLARE

Lena

Berglund

STYLIST - NORRLAND

Rumsbeskrivning - Aktervägen 5

ENTRÈVERANDA

Invid entrén möts vi av två trivsamma verandor, direkt vid entrén finns verandan för morgonfikat och med plats för många, vid entrén tar du några trappsteg upp till nybyggd solig altan där grillplats finns och även här är det plats för många - bara att njuta.

HALL

Entréhall i vinkel med klinker/laminatgolv, tapetserade väggar, klädhylla, garderob och klädkammare samt vindslucka.

VARDAGSRUM

Vardagsrum med parkettgolv och målade väggar, fönster i två väderstreck och utgång till inglasat uterum samt solaltan. I rummet finns möjlighet att montera braskamin.

SOVRUM

Rogivande sovrum med laminatgolv och målad/tapetserade väggar samt garderobsvägg.

KÖK

Praktiskt kök med matplats, utrustning i köket är elhäll spis, fläkt, kyl/frys, skafferi och städskåp. Bra arbetsbänkar samt liten buffébänk. Många skåp för god förvaring.

BADRUM

Badrum med plastmatta och våtrumstapet, duschhörna, wc, kommod och fönster.

KÄLLARPLAN

HALL

Hall i vinkel med klinkergolv och målade väggar. Förråd under trappan och garderob.

RUM

På källarplanet finns tre rum som kan disponeras till sovrum, TV-rum, arbetsrum och förråd. Rummen har trägolv och målade väggar och större källarfönster.

TVÄTTSTUGA/PANNRUM

Tvättstuga med klinkergolv och 3/4 kaklade väggar. Här finns tvättmaskin och ECODAN luft/vatten pump för god värmekomfort samt utgång till tomt.

Fakta – Aktervägen 5

Bostadstyp: Villa
Kommun: Sundsvall
Fastighetsbeteckning: Älva 1:43
Storlek: 4 rum, 79 kvm boarea, 67 kvm biarea
Varav sovrum: 1 - 3
Areakälla: taxeringsinformation
Utgångspris: 2 450 000 kr
Energideklaration: Beställd
Servitut, samfälligheter, etc: Samfällighet: Sundsvall älva s:10
Samfällighet: Sundsvall älva s:2
Samfällighet: Sundsvall älva s:4
Samfällighet: Sundsvall älva s:5
Samfällighet: Sundsvall älva s:6
Samfällighet: Sundsvall älva s:7
Samfällighet: Sundsvall älva s:8
Skattetal: mål 27/200
Planbestämmelser: Byggnadsplan (1965-10-04)
Upplåtelseform: Friköpt
Pantbrev: Det finns 7 st pantbrev uttaget om sammanlagt 1 785 000 kr
Taxeringsvärde: 1 532 000 kr
Taxeringsår: 2024
Byggnadsvärde: 778 000 kr
Markvärde: 754 000 kr
Fastighetsavgift: 10 074 kr/år

Fakta – Byggnaden

Hus
Byggnadstyp: 1-plansvilla med källare
Byggår: 1937
Ombyggt 1994
Fasad: Trä
Stomme: Trä
Fönster: 2+1 fönster
Bjälklag: Trä
Tak: Plåt
Grundläggning: Grund sulor
Uppvärmning: Luft/vatten pump
Vatten och avlopp: Kommunalt vatten året om. Kommunalt avlopp
Övrigt om byggnaden: Byte panel och målning 2018. Byggnation av friggebod 2020/21. Nytt värmesystem 2022. Altan/grillplats 2024.
Tomt, uteplats och bilplats
Tomtbeskrivning: Härlig gräsyta på nersidan av huset med äppelträd, rabarber och svarta vinbär
Tomtarea: 2620 kvm
Tomttyp: Trädgård/naturtomt
Beskrivning bilplats: På infarten
Övriga byggnader
Äldre gårdshus med förråd, snickarrum och vedbod

Driftkostnader

Totalsumma: 55 653 kr/år

I driftkostnaden ingår följande:
Uppvärmning: 13 914 kr/år
El: 26 892 kr/år
VA: 8 794 kr/år
Renhållning: 1 930 kr/år
Försäkring: 4 123 kr/år

Driftkostnaden är beräknad på 2 personers hushåll.
EL: Kostnaden för den årliga elnäts avgiften.
Fullvärde: Ja
Elförbrukning: 23 163 kWh/år

Utöver detta tillkommer kostnad för fastighetsavgift/skatt på 10 074 kr/år.

  • Denna bostad
  • Bostäder till salu via Erik Olsson

En riktigt lyckad

bostadsaffär

När du hittat ditt drömboende hjälper vi dig gärna att sälja din nuvarande bostad. För oss är det viktigt att du känner dig trygg både när du köper och säljer bostad via Erik Olsson. Därför är våra mäklare bland de vassaste och mest engagerade i branschen. Vi anstränger oss gärna lite extra för att din bostadsförsäljning ska bli perfekt. Hos oss får du en riktigt lyckad bostadsaffär – och bäst betalt.

Intresseanmälan

Få kontakt med en mäklare som är expert på just ditt område.

✶ Obligatoriska fält

Tillbaka till toppen