Trädlyckan / VARBERG

Trädlyckevägen 118

Utgångspris: 1 475 000 kr
TIPSA
Rymlig markplansetta med renoveringsbehov och stort inglasat uterum

  • Inglasat uterum
  • Luftigt allrum
  • Stort kök
  • Platsbyggd förvaring
  • Helkaklat badrum
  • Mycket välskött förening
  • Gym och samlingslokal
  • Trevliga innergårdar med grillplats
  • Populärt område
  • Centrumnära
  • Kort avstånd till hav och natur
  • Mataffär runt hörnet
  • Ca 200 m till busshållplats

Välkommen till denna inbjudande etta i markplan där varje kvadratmeter är smart planerad för att skapa både trivsel och funktion. Här väntar ett stort inglasat uterum med nålfiltsmatta, öppningsbara glaspartier och gott om plats för bekväma loungemöbler. Från uterummet blickar du ut mot den rofyllda innergården, en grönskande miljö som bjuder in till avkoppling. En perfekt plats för långa sköna sommarkvällar eller för att kyla dryck och frukt under årets kalla månader.

Lägenheten erbjuder allt du kan tänkas behöva och tack vare platsbyggd förvaring och plats för en inbjudande sovalkov finns här rum för både hemarbete, fest, middagar och vardagsmys. Det luftiga köket har alla förutsättningar att bli ett riktigt drömkök tack vare den generösa ytan och den fina utsikten över föreningens lummiga gård. Det stora badrummet är helkaklat i klassisk färgskala.

Brf Trädlyckan är den största bostadsrättsföreningen i Varbergs kommun och är mycket omtyckt av föreningens medlemmar. Här finns faciliteter som bland annat gym, pingishall, samlingslokal m.m. att utnyttja för en mindre avgift. Ett stenkast bort ligger den nya is- och simhallen, som stod klar hösten 2021, med bad, ishall, gym och café under samma tak. På gångavstånd når du även Varbergs innerstad med torghandel samt hav och natur. Ett svårslaget läge som kombinerar det bästa av två världar.

Med lite kärlek och omvårdnad kommer den här lägenheten bli en riktig pärla.

Välkommen att boka in dig på visning redan idag!

Då det är ett dödsbo så säljs lägenheten med friskrivningsklausul.

Snabbfakta
Avgift:
2 888 kr
I avgiften ingår värme, vatten och bostadsrättstillägget i hemförsäkringen. Till avgiften tillkommer 165 kr/mån för TV, Internet och IP-telefoni. Även kostnad för hushållsel tillkommer, individuell elmätning sker för varje lägenhet. Varje månad avsätts mellan 61 kr till en inre reparationsfond för lägenheten.
Rum:
1 rum
Boarea:
49 kvm
Utgångspris:
1 475 000 kr
Byggnadsår:
1970
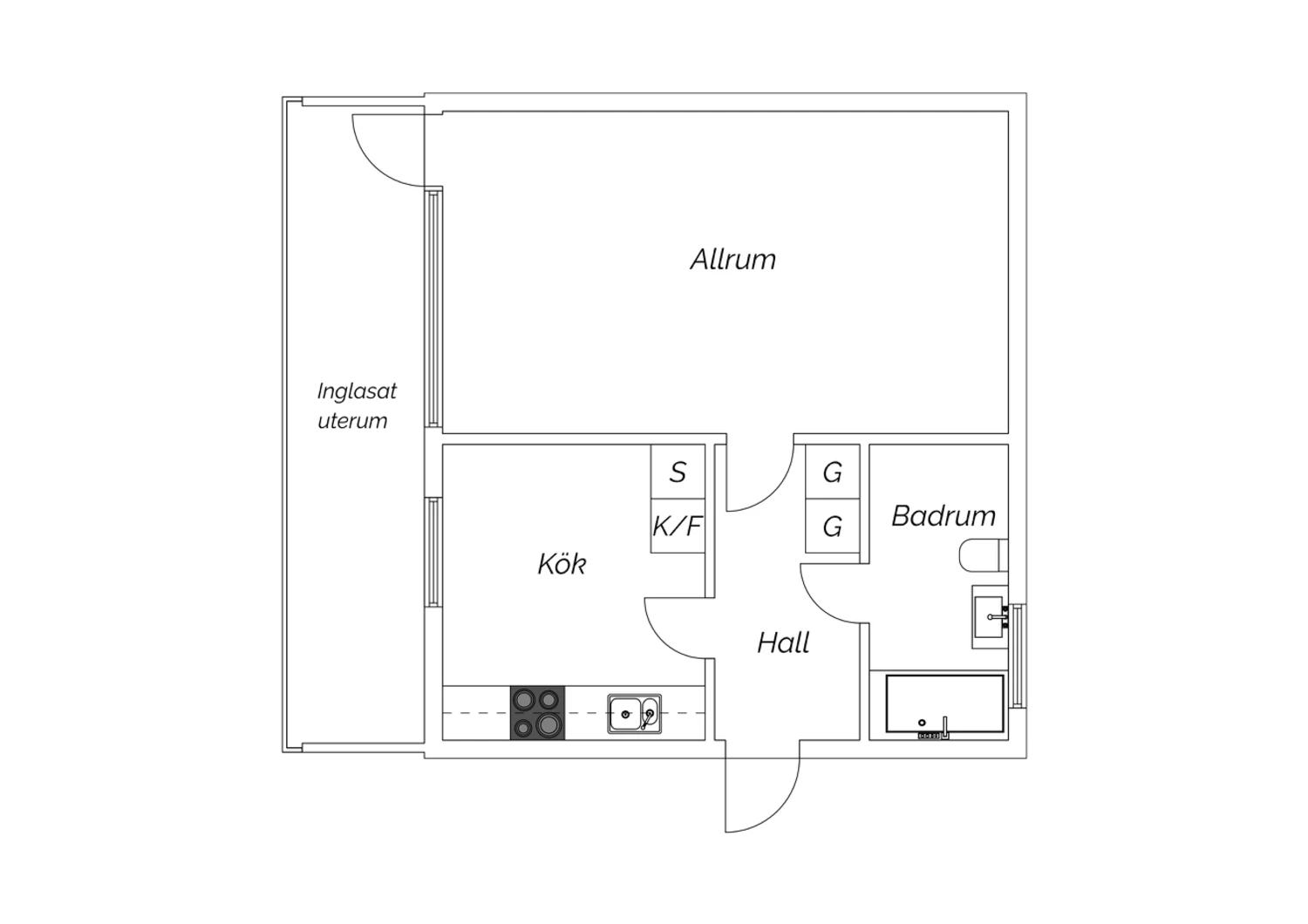
Planritning
e-prospekt
Visningar
  • Visning
    Söndag 19 oktober 12:30 - 13:15
    Boka
Mäklare

Natascha

Auer

ANSVARIG
MÄKLARE

Urban

Ackre

REG. FASTIGHETSMÄKLARE / FRANCHISETAGARE

Rymlig markplansetta med renoveringsbehov och stort inglasat uterum

  • Inglasat uterum
  • Luftigt allrum
  • Stort kök
  • Platsbyggd förvaring
  • Helkaklat badrum
  • Mycket välskött förening
  • Gym och samlingslokal
  • Trevliga innergårdar med grillplats
  • Populärt område
  • Centrumnära
  • Kort avstånd till hav och natur
  • Mataffär runt hörnet
  • Ca 200 m till busshållplats

Välkommen till denna inbjudande etta i markplan där varje kvadratmeter är smart planerad för att skapa både trivsel och funktion. Här väntar ett stort inglasat uterum med nålfiltsmatta, öppningsbara glaspartier och gott om plats för bekväma loungemöbler. Från uterummet blickar du ut mot den rofyllda innergården, en grönskande miljö som bjuder in till avkoppling. En perfekt plats för långa sköna sommarkvällar eller för att kyla dryck och frukt under årets kalla månader.

Lägenheten erbjuder allt du kan tänkas behöva och tack vare platsbyggd förvaring och plats för en inbjudande sovalkov finns här rum för både hemarbete, fest, middagar och vardagsmys. Det luftiga köket har alla förutsättningar att bli ett riktigt drömkök tack vare den generösa ytan och den fina utsikten över föreningens lummiga gård. Det stora badrummet är helkaklat i klassisk färgskala.

Brf Trädlyckan är den största bostadsrättsföreningen i Varbergs kommun och är mycket omtyckt av föreningens medlemmar. Här finns faciliteter som bland annat gym, pingishall, samlingslokal m.m. att utnyttja för en mindre avgift. Ett stenkast bort ligger den nya is- och simhallen, som stod klar hösten 2021, med bad, ishall, gym och café under samma tak. På gångavstånd når du även Varbergs innerstad med torghandel samt hav och natur. Ett svårslaget läge som kombinerar det bästa av två världar.

Med lite kärlek och omvårdnad kommer den här lägenheten bli en riktig pärla.

Välkommen att boka in dig på visning redan idag!

Då det är ett dödsbo så säljs lägenheten med friskrivningsklausul.

Visningar
  • Visning
    Söndag 19 oktober 12:30 - 13:15
    Boka
TIPSA

Natascha

Auer

ANSVARIG
MÄKLARE

Urban

Ackre

REG. FASTIGHETSMÄKLARE / FRANCHISETAGARE

Rumsbeskrivning - Trädlyckevägen 118

HALL

Laminatgolv och väggar klädda i ljus tapet. Plats för avhängning och förvaring i två inbyggda garderober med överskåp.

ALLRUM

Laminatgolv och vitmålade väggar. Plats för soffgrupp, kontorsmöbel och sovhörna. Utgång till inglasad uteplats med nålfiltsmatta. Här ryms bord, stolar och loungemöbel.

KÖK

Grått golv och vitmålade väggar delvis klädda i ljus tapet. Köksinredning i vitt med bänkskiva i rostfritt stål och trälaminat. Ovan arbetsytor är väggen klädd i beigemålat kakel. Köket är utrustat med spis, fläkt och kyl/frys.

BADRUM

Mörkgrått klinkergolv och väggar klädda i vitt kakel med mörkgrå detalj. Här finns handfat, spegel, dusch med draperi och toalett.

FÖRRÅD

Lägenheten har tillgång till ett förråd i källaren.

Fakta – Trädlyckevägen 118

Bostadstyp: Bostadsrätt
Kommun: Varberg
Storlek: 1 rum, 49 kvm boarea
Lägenhetsnummer: 232 (0902)
Utgångspris: 1 475 000 kr
Månadsavgift: 2 888 kr
I avgiften ingår värme, vatten och bostadsrättstillägget i hemförsäkringen. Till avgiften tillkommer 165 kr/mån för TV, Internet och IP-telefoni. Även kostnad för hushållsel tillkommer, individuell elmätning sker för varje lägenhet. Varje månad avsätts mellan 61 kr till en inre reparationsfond för lägenheten.
Andelstal: Andel i förening 0,201 %, andel av årsavgift 0,201 %
Indirekt nettoskuldsättning: 158 420 kr
Bostadsrättens indirekta nettoskuldsättning anger hur stor andel av bostadsrättsföreningens lån som indirekt belastar bostadsrätten. Andelen beräknas som andelstalet för avgifter multiplicerat med föreningens nettoskuldsättning. Den består av räntebärande skulder med avdrag för räntebärande tillgångar och likvida medel. Underlagen för beräkningen kommer från föreningen.
Reparationsfond: 13 136 kr
Energiprestanda: 132 kWh/kvm och år
Energiklass: E

Fakta – HSB Brf Trädlyckan

Äkta/oäkta förening: Äkta
Äger föreningen marken: Ja.
Antal lägenheter: 322
Antal lokaler: 30
Allmänt om föreningen: HSB Brf Trädlyckan köpte fastigheten i samband med byggnationen runt 1970. Föreningen bildades 1969. Till föreningen hör adresserna: Trädlyckevägen 48-142.

För att bli godkänd som medlem i föreningen krävs att man blir medlem i HSB Göta. Det tillkommer en medlemsavgift till HSB om 300 kr/år för köparen. Andelsavgiften i HSB är 500 kr/person och betalas tillbaka vid eventuellt utträde.

På området finns 10 tvättstugor och 1 grovtvättstuga som alla har tillgång till belägen i hus C. Tvättstugorna är utrustade med självdoserande tvättmaskiner, samt torktumlare och torkskåp. Bokning sker genom föreningsappen eller elektronisk anslagstavla och det är lätt att få tvättider.

I föreningen finns samlingslokal, bordtennislokal och motionslokal samt extraförråd och matkällare att hyra.

Gemensamma gårdar med lekplatser, utemöbler och två grillplatser. Här finns även biltvättsplats, tennisplan och basketkorg.

Föreningen höjde avgiften med 3,5% 2025-01-01. Föreningen har som mål att höja avgiften med cirka 3% varje år för att möta ökade driftskostnader och för att bygga upp medel till framtida renoveringar.

Informationen om föreningen är hämtad från styrelsen, föreningens årsredovisning samt stadgar. Vi råder dig som köpare att kontrollera fakta som är av vikt för dig. Vi som mäklare eller Erik Olsson ansvarar ej för att uppgifterna från dessa källor är korrekta. Senaste datum för kontroll: 2025-10-08.
Besök gärna föreningens hemsida för mer information: www.brftradlyckan.se
Parkering: I föreningen finns 128 st garageplatser, 208 st parkeringsplatser (varav 17 är elbilsplatser) och 6 st husvagnsplatser att hyra. Kösystem gäller.

Parkeringsplats kostar 176 kr/mån, elbilsplats 176 kr/mån + fn. 3,40 kr/kWh inkl moms, husvagn-och husbilsparkering 228 kr/mån, enkelgarage 350-662 kr/mån, gemensamhetsgarage 400- 549 kr/mån, mopedplats 145 kr/mån och MC-plats i gemensamhetsgarage 140-279 kr/mån. Föreningen förfogar över en biltvättsplats.

Föreningen höjer avgiften för parkeringsplatser med i genomsnitt 3% varje år. Varje höst görs en budget som bestämmer vilken avgiftshöjning som blir året efter.

Just nu har föreningen ingen kö till parkeringsplats och det finns ett antal lediga platser samt även lediga garage. Man kan få hyra antingen en parkering ute eller en garageplats per lägenhet. (2025-10-08).

På området finns även 27 besöksparkeringar fördelat på 19 st 10-timmar, 7 st 5-timmar och 2 st 3-timmarsparkeringar. Det är inte tillåtet för Trädlyckans boende att parkera på besöksparkeringarna, då dessa ska vara tillgängliga för besökare.

På området finns även 27 besöksparkeringar fördelat på 19 st 10-timmar, 5 st 5-timmar och 2 st 3-timmarsparkeringar, 1 st 4-timmars elbilsparkering. Det är inte tillåtet för Trädlyckans boende att parkera på besöksparkeringarna, då dessa ska vara tillgängliga för besökare.

Biltvätt: Finns vid panncentralen. Lägenhetsnyckel passar till slangskåp.
Överlåtelseavgift och pantsättning: En överlåtelseavgift tas ut om ca 1 470 kr som betalas av köparen. Vid belåning av bostaden tas en pantsättningsavgift ut om ca 588 kr/pant. Beloppen är beräknade på prisbasbeloppet för år 2025.
Hus
Byggår: 1970
Byggnadstyp: Flerbostadshus
Hiss: Hiss finns ej
Ventilation: Mekanisk (endast frånluft)
Uppvärmning: Fjärrvärme
Tv och internet: Brf Trädlyckan har ett kollektivt medieavtal från Telenor där alla medlemmar erhåller följande via fiber:
Tv Bas Plus, 30-tal HD-kanaler + Telenor Stream
Bredband upp till 1000/1000 Mbit/s
Telenor serviceavtal
Hårdvara: lån av wifi-router och TV-Hubb
En obligatorisk avgift om 165 kr/mån ingår i månadsavgiften och finns som en synlig punkt på avin..
Renoveringar
2014 genomfördes total renovering och uppgradering av samtliga tvättstugor.
Cirka 2015-2017 installerades ny led-belysning i ute- och innemiljö. Under samma period genomfördes optimering av värmesystem.
2016 renoverades ett antal garage och källarfönster byttes ut.
2016-2020 genomfördes stamrenovering av samtliga avloppsstammar med metoden relining.
2017 uppfördes ett nytt lekhus uppfördes på lekplatsen.
2018 genomfördes OVK (obligatorisk ventilationskontroll) i samtliga byggnader.
2019 utfördes energideklaration samt radonmätning (med godkänt resultat).
2020 avslutades stamrenovering av de sista avloppsstammarna.
2021 utfördes en fasadrenovering på föreningens hus. 18 laddstolpar för elbilsladdning installerades. A och B-gården asfalterades och lite markarbete och plantering utfördes.
2022 sattes skärmtak och väggar upp vid cykelnedfarterna.
2024 utfördes arbeten med innergårdarna.

Föreningen planerar att se över de återstående garagen de närmsta åren. Inga större renoveringar är inplanerade de närmsta åren (2025-10-08). Inga vidare beslut är tagna i dagsläget.

Driftkostnader

Totalsumma: 3 700 kr/år

I driftkostnaden ingår följande:
El: 2 500 kr/år
Försäkring: 1 200 kr/år

Angiven driftkostnad är beräknad enligt säljarens uppgifter. Kostnaderna kan vara både högre och lägre för ny ägare/boende.

  • Denna bostad
  • Bostäder till salu via Erik Olsson

En riktigt lyckad

bostadsaffär

När du hittat ditt drömboende hjälper vi dig gärna att sälja din nuvarande bostad. För oss är det viktigt att du känner dig trygg både när du köper och säljer bostad via Erik Olsson. Därför är våra mäklare bland de vassaste och mest engagerade i branschen. Vi anstränger oss gärna lite extra för att din bostadsförsäljning ska bli perfekt. Hos oss får du en riktigt lyckad bostadsaffär – och bäst betalt.

Intresseanmälan

Få kontakt med en mäklare som är expert på just ditt område.

✶ Obligatoriska fält

Tillbaka till toppen