Finntorp / Nacka

Becksjudarvägen 45, 3 tr

Föreslagen budstart: 3 350 000 kr
TIPSA
Högst upp! Trevlig lägenhet med social planlösning och två sovrum i bra storlek! Balkong i söder!

  • Välplanerad 3:a
  • Lättmöblerat kök/vardagsrum
  • Balkong i söderläge
  • Närhet till butiker, gym etc.
  • Sickla köpkvarter på gångavstånd
  • Stabil BRF med låga avgifter

Välkommen till Becksjudarvägen 45 i Nacka – där trivsel möter stil! Drömmer du om ett hem högst upp i huset som förenar modern komfort med klassiska detaljer - här väntar en lägenhet som både inspirerar och imponerar. Här möts du av ljusa, välplanerade ytor som genast skapar en inbjudande känsla. Den genomtänkta interiören ger ett hem att trivas i – perfekt för både avkoppling och sociala tillställningar. Bostadsrättsföreningen är stabil och välskött, med en låg skuld på endast ca 3 000 kr/kvm, vilket ger dig en trygg och långsiktig investering. Detta är ett hem för dig som vill kombinera hög standard och genomtänkta lösningar med ett attraktivt läge i Nacka. Här bor du i en harmonisk miljö med närhet till både stadens puls och naturens grönska.

Välkommen på visning – kanske är det här ditt nästa drömhem!

Snabbfakta
Avgift:
4 202 kr
I avgiften ingår värme och vatten. Obligatorisk tilläggsavgift för el om 40 kr/månad samt för bredband om 125 kr/månad. Föreningen tillämpar individuell eldebitering som efterdebiteras var tredje månad.
Rum:
3 rum och kök
Boarea:
70 kvm
Våning:
3 av 3
Föreslagen budstart:
3 350 000 kr
Byggnadsår:
1954
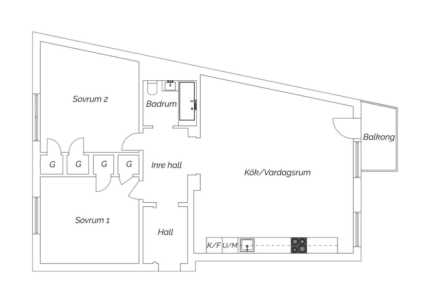
Planritning
Visningar
  • Öppen visning - anmäl er gärna!
    Söndag 19 oktober 12:30 - 13:15
    Boka
  • Visning
    Måndag 20 oktober

    Kontakta mäklaren

Mäklare

Niklas

Zander

ANSVARIG
MÄKLARE

Jennifer

Ström Soussi

REG. FASTIGHETSMÄKLARE / PARTNER

Högst upp! Trevlig lägenhet med social planlösning och två sovrum i bra storlek! Balkong i söder!

  • Välplanerad 3:a
  • Lättmöblerat kök/vardagsrum
  • Balkong i söderläge
  • Närhet till butiker, gym etc.
  • Sickla köpkvarter på gångavstånd
  • Stabil BRF med låga avgifter

Välkommen till Becksjudarvägen 45 i Nacka – där trivsel möter stil! Drömmer du om ett hem högst upp i huset som förenar modern komfort med klassiska detaljer - här väntar en lägenhet som både inspirerar och imponerar. Här möts du av ljusa, välplanerade ytor som genast skapar en inbjudande känsla. Den genomtänkta interiören ger ett hem att trivas i – perfekt för både avkoppling och sociala tillställningar. Bostadsrättsföreningen är stabil och välskött, med en låg skuld på endast ca 3 000 kr/kvm, vilket ger dig en trygg och långsiktig investering. Detta är ett hem för dig som vill kombinera hög standard och genomtänkta lösningar med ett attraktivt läge i Nacka. Här bor du i en harmonisk miljö med närhet till både stadens puls och naturens grönska.

Välkommen på visning – kanske är det här ditt nästa drömhem!

Visningar
  • Öppen visning - anmäl er gärna!
    Söndag 19 oktober 12:30 - 13:15
    Boka
  • Visning
    Måndag 20 oktober

    Kontakta mäklaren

TIPSA

Niklas

Zander

ANSVARIG
MÄKLARE

Jennifer

Ström Soussi

REG. FASTIGHETSMÄKLARE / PARTNER

Rumsbeskrivning - Becksjudarvägen 45, 3 tr

HALL

Entréhallen välkomnar dig med gott om platsbyggd förvaring för ytterkläder och skor – en praktisk och stilfull lösning som håller hemmet välorganiserat från första steget in.

KÖK/VARDAGSRUM

Det stilrena köket är både funktionellt och inbjudande – här lämnas inget åt slumpen. Generösa arbetsytor gör matlagningen till ett nöje och den rymliga matplatsen invid fönstret skapar en perfekt miljö för härliga middagar med familj och vänner. Den maskinella utrustningen består av ugn, mikro, kyl/frys, utdragbar fläkt, häll samt integrerad diskmaskin. I anslutning till köket öppnar vardagsrummet upp med gott om plats för en stor soffgrupp, tv-möbel och kompletterande möbler som vitrinskåp eller bokhyllor – en naturlig samlingsplats för umgänge och avkoppling.

BALKONG

Från kök/vardagsrum nås den soliga balkongen i bästa söderläge. Här kan du njuta av solen, dricka morgonkaffet eller bara luta dig tillbaka och omges av grönskande omgivningar – en oas mitt i vardagen.

SOVRUM 1 & 2

Bostaden erbjuder två rymliga sovrum, båda utrustade med platsbyggda garderober som ger generös förvaring. Här får du en lugn och rofylld miljö, perfekt för återhämtning och god natts sömn.

BADRUM

Det helkaklade badrummet är klassiskt och tidlöst med vitt kakel och en dekorativ blå rand, kombinerat med ljusgrått klinkergolv. Här finns handfat med kommod, spegelskåp med belysning, wc samt badkar – en plats för både vardagsrutiner och avkopplande stunder. Förberett för tvättmaskin.

FÖRRÅD

Lägenheten disponerar ett källarförråd om ca 6 kvm.

Fakta – Becksjudarvägen 45, 3 tr

Bostadstyp: Bostadsrätt
Kommun: Nacka
Storlek: 3 rum och kök, 70 kvm boarea
Areakälla: föreningens information
Våning: 3 av 3
Lägenhetsnummer: 064 (1301)
Föreslagen budstart: 3 350 000 kr
Månadsavgift: 4 202 kr
I avgiften ingår värme och vatten. Obligatorisk tilläggsavgift för el om 40 kr/månad samt för bredband om 125 kr/månad. Föreningen tillämpar individuell eldebitering som efterdebiteras var tredje månad.
Andelstal: Andel i förening 0,576 %, andel av årsavgift 0,576 %
Indirekt nettoskuldsättning: 188 561 kr
Bostadsrättens indirekta nettoskuldsättning anger hur stor andel av bostadsrättsföreningens lån som indirekt belastar bostadsrätten. Andelen beräknas som andelstalet för avgifter multiplicerat med föreningens nettoskuldsättning. Den består av räntebärande skulder med avdrag för räntebärande tillgångar och likvida medel. Underlagen för beräkningen kommer från föreningen.
Reparationsfond: 338 kr
Energiprestanda: 75 kWh/kvm och år
Energiklass: C

Fakta – HSB Brf Bergakungen i Nacka

Äkta/oäkta förening: Äkta
Äger föreningen marken: Ja
Antal lägenheter: 172
Antal lokaler: 1
Allmänt om föreningen: HSB Brf Bergakungen i Nacka är en äkta bostadsrättsförening och består av 172 lägenheter som upplåts med bostadsrätt samt 1 lokal. Föreningen köpte huset 1952 (äger marken).

Härlig innergård med utemöbler och grillmöjligheter.

I föreningen finns det cykelrum där även barnvagnar kan ställas, övernattningslägenhet på ca 30 kvm med dusch, trinettkök och sovplats för 5 personer, föreningslokal på ca 60 kvm som möjliggör 50 gäster samt ett sophus mellan 30- och 40-huset för återvinning.

De 3 gemensamma tvättstugorna finns på adresserna Becksjudrvägen 53, Becksjudrvägen 45 och Becksjudrvägen 33-35 (med ingång i valvet).

Köparen/köparna måste vara medlemmar i HSB innan beslut om medlemskap i föreningen tas. Medlemsandel i HSB kostar 500 kr/person (föreningen står för denna kostnad) och medlemsavgiften är 310 kr/hushåll/år. Ansökan om medlemskap görs på https://blimedlem.hsb.se.
Besök gärna föreningens hemsida för mer information: http://www.hsb.se/stockholm/bergakungen
Parkering: Föreningen har 5 garageplatser som kan hyras av medlemmar. I dagsläget råder kö på ca 10 år till samtliga platser. Styrelsen förvaltar köhanteringen. I området gäller boendeparkering, för mer info se www.nacka.se.
Överlåtelseavgift och pantsättning: En överlåtelseavgift tas ut om ca 1 470 kr som betalas av säljaren. Vid belåning av bostaden tas en pantsättningsavgift ut om ca 588 kr/pant. Beloppen är beräknade på prisbasbeloppet för år 2025.
Hus
Byggår: 1954
Byggnadstyp: Flerfamiljshus
Hiss: Hiss finns ej
Ventilation: Mekanisk till- och frånluft med värmeåtervinning
Uppvärmning: Bergvärme
Tv och internet: Föreningen är ansluten till bredband via Bahnhof och kabel-tv via Tele2.
Renoveringar
1985 Byttes takpannor och tilläggsisolerade vindarna på Becksjudarvägen 41-45
1990 Hissrenovering på Becksjudarvägen 31-39
1992 Fasadrenovering och åtgärder i skyddsrummet
2001 Installerades bredband
2002-2004 Byte av V/A stammar och elstigare ut på Becksjudarvägen 31-37. Byggde nytt övernattningsrum på Becksjudarvägen 35. Installation av en ny kvarterslokal/föreningslokal
2003 Dränerades grunden på Becksjudarvägen 41-49. Byte av V/A stammar och el-stigare på Becksjudarvägen 39-55 byttes. Ny tvättstuga på Becksjudarvägen 53 och en renovering av tvättstugan på Becksjudarvägen 45
2005 Tilläggsisolering av krypvind på Becksjudarvägen 41-49 samt 31-37
2005-2015 Hyreslokaler byggs om till lägenheter och ombildas till bostadsrätter
2007 Föreningens oljeeldande värmeanläggning byts ut till bergvärme. Vid stark kyla används olja som förstärkning. Införande av enhetsmätning el. Målning av trapphus på Becksjudarvägen 31-55 och installation av postfack i entréplanen
2008 Målades källargångarna och renoverade källarförråd på Becksjudarvägen 41 efter en vattenskada. Renovering av grovsoprummet
2009 Byggdes nya soprum
2010 Renoverades terrassbjälklaget på Becksjudarvägen 31-39
2012 Byttes samtlig trapphusarmatur. Samma år gjordes en ny takbeläggning på grovsoprummet
2013 Byttes glasen på entrédörrarna på Becksjudarvägen 31-39 och nya rökluckor i trapphusen sattes in
2014 Man flyttade värmepumpsanläggningen och oljetanken till nedre delen av pannrummet och bytte oljetanken
2015 Justerades anläggningen för produktion av varmvatten. I samband med flytten av värmepumpen och oljetanken blev den förra placeringen garage. Man byggde också om två fläktrum och installerade två nya ytterdörrar till cykelrummen
2016-2017 Byttes samtliga fönster och balkongdörrar. Nytt låssystem installerades och föreningen har arbetat med att energieffektivisera fastigheten
2018 OVK
2019 Har rabatter längs fasaden på 30-huset (port 31-39) planterats samt kompletterats med ny växtlighet och kantsten mellan rabatt och trottoar. Samtliga torktumlare, torkskåp och tvättmaskiner (exklusive grovtvättmaskinen) har bytts ut i 40-huset (port 41-49), tvättstugan har även fräschats upp i form av målning av väggar. Samtliga dag- och spillvattenbrunnar i 50-huset (port 51-55) har spolats och filmats
2020 Påbörjas ombyggnationen av hyresrättslokalen
2020 Färdigställande av 2 st nybildade lägenheter hösten, sålda januari 2021
2022 All utrustning i tvättstugan port 53 och port 33-35 (ingång i valvet) utbytt mot nytt
2023 Samtliga avloppsstammar och grenledningar spolades
2024 Fullständig renovering av balkongerna i 30-huset genomfördes

Föreningen utför och planerar följande åtgärder under de närmaste 5 åren:
- Radonmätning
- OVK (Obligatorisk Ventilationskontroll
- Relining av avlopp i källargolv
- Balkong- och fasadrenovering 40-huset
- Balkongrenovering 50-huset
- Takunderhåll

Driftkostnader

Totalsumma: 2 400 kr/år

I driftkostnaden ingår följande:
El: 2 400 kr/år

Driftkostnaden är beräknad på 1 persons hushåll.
Uppgifter gällande driftkostnad är hämtad från säljaren och ej ytterligare kontrollerad. Kostnaderna kan både vara högre och lägre för ny ägare/boende. Utöver ovan driftkostnader har säljaren en försäkring som kostar ca 3 250 kr/år.

  • Denna bostad
  • Bostäder till salu via Erik Olsson

En riktigt lyckad

bostadsaffär

När du hittat ditt drömboende hjälper vi dig gärna att sälja din nuvarande bostad. För oss är det viktigt att du känner dig trygg både när du köper och säljer bostad via Erik Olsson. Därför är våra mäklare bland de vassaste och mest engagerade i branschen. Vi anstränger oss gärna lite extra för att din bostadsförsäljning ska bli perfekt. Hos oss får du en riktigt lyckad bostadsaffär – och bäst betalt.

Intresseanmälan

Få kontakt med en mäklare som är expert på just ditt område.

✶ Obligatoriska fält

Tillbaka till toppen