Centrala Tyresö / Tyresö

Siklöjevägen 7

Utgångspris: 3 295 000 kr
TIPSA
Välplanerad bostad med två balkonger och centralt läge i Tyresö!

  • Ljus gavellägenhet
  • Genomgående trägolv
  • Extra takhöjd
  • Två balkonger i olika väderstreck
  • Inglasad balkong året runt
  • Smart planerad fyrarummare
  • Ursprungligen trea omgjord till fyra
  • Tre välplanerade sovrum
  • Badrum och separat duschrum
  • Eget uteförråd
  • Enkel tillgång till parkering
  • Välskött HSB-förening
  • Fint skötta gårdar och planteringar
  • Nära skolor och förskolor
  • 10 min till Tyresö centrum
  • Goda kommunikationer till City

Här erbjuds en fräsch gavellägenhet om 92 m² med genomgående fina trägolv, stilrena materialval och ett härligt ljusflöde tack vare fönster i flera väderstreck. Ursprungligen en trea, men smart omgjord till en fyrarummare med tre sovrum som ger plats för hela familjen eller för dig som önskar både gästrum och hemmakontor. Den generösa takhöjden bidrar till en luftig och trivsam känsla genom hela bostaden. Planlösningen är både praktisk och social med ett ljust och rymligt kök som rymmer stor matplats samt ett vardagsrum med utgång till en härlig inglasad balkong som kan nyttjas året runt. På entrésidan finns dessutom ytterligare en balkong i västläge där man njuter av solen till sen kväll. Här bor du bekvämt med både badrum och duschrum, gott om förvaring samt tillgång till eget uteförråd och enkel tillgång till parkering. Föreningen är välskött med fint skötta gräsmattor och planteringar, och det är lätt att trivas i den lugna, trygga miljön.

Läget är utmärkt med bara tio minuters promenad till Tyresö centrum med butiker, restauranger och service. I närområdet finns både Stimmets skola, cirka 400–500 meter bort samt flera förskolor. För den aktiva ligger Tyresövallen, ishallen, Aquarena med gym, rackethall och golfbana inom bekvämt avstånd. Bussar mot Gullmarsplan, Stockholm C, Haninge och Nacka avgår bara ett par minuter bort och i närheten finns även bensinmack och McDonald’s för snabba ärenden.

En bostad som kombinerar modern komfort, välplanerade ytor och ett mycket bra läge. Här är det bara att flytta in och börja trivas.

Snabbfakta
Avgift:
6 971 kr
I månadsavgiften ingår värme, vatten, IP-TV och bredband (fiber) via Tele 2. Elen är gemensamt upphandlad för att få lägsta möjliga pris och direktavläses. Förbrukningen redovisas och faktureras på månadsavin. Avgiftsförändring: Föreningen håller på med budgeten just nu, den är inte klar ännu. En avgiftshöjning lär det bli till nästa år (kontrollerat 2025-10-10).
Rum:
4 rum
Boarea:
92 kvm
Våning:
1 av 4
Utgångspris:
3 295 000 kr
Byggnadsår:
2008
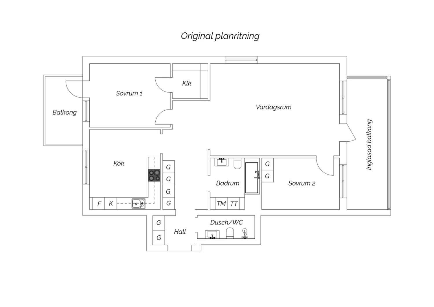
Planritning
e-prospekt
Visningar
  • Visning
    Söndag 19 oktober 14:00 - 14:30
    Boka
  • Visning
    Tisdag 21 oktober 17:30 - 18:00
    Boka
Mäklare

Jörgen

Lundgren

ANSVARIG
MÄKLARE

Välplanerad bostad med två balkonger och centralt läge i Tyresö!

  • Ljus gavellägenhet
  • Genomgående trägolv
  • Extra takhöjd
  • Två balkonger i olika väderstreck
  • Inglasad balkong året runt
  • Smart planerad fyrarummare
  • Ursprungligen trea omgjord till fyra
  • Tre välplanerade sovrum
  • Badrum och separat duschrum
  • Eget uteförråd
  • Enkel tillgång till parkering
  • Välskött HSB-förening
  • Fint skötta gårdar och planteringar
  • Nära skolor och förskolor
  • 10 min till Tyresö centrum
  • Goda kommunikationer till City

Här erbjuds en fräsch gavellägenhet om 92 m² med genomgående fina trägolv, stilrena materialval och ett härligt ljusflöde tack vare fönster i flera väderstreck. Ursprungligen en trea, men smart omgjord till en fyrarummare med tre sovrum som ger plats för hela familjen eller för dig som önskar både gästrum och hemmakontor. Den generösa takhöjden bidrar till en luftig och trivsam känsla genom hela bostaden. Planlösningen är både praktisk och social med ett ljust och rymligt kök som rymmer stor matplats samt ett vardagsrum med utgång till en härlig inglasad balkong som kan nyttjas året runt. På entrésidan finns dessutom ytterligare en balkong i västläge där man njuter av solen till sen kväll. Här bor du bekvämt med både badrum och duschrum, gott om förvaring samt tillgång till eget uteförråd och enkel tillgång till parkering. Föreningen är välskött med fint skötta gräsmattor och planteringar, och det är lätt att trivas i den lugna, trygga miljön.

Läget är utmärkt med bara tio minuters promenad till Tyresö centrum med butiker, restauranger och service. I närområdet finns både Stimmets skola, cirka 400–500 meter bort samt flera förskolor. För den aktiva ligger Tyresövallen, ishallen, Aquarena med gym, rackethall och golfbana inom bekvämt avstånd. Bussar mot Gullmarsplan, Stockholm C, Haninge och Nacka avgår bara ett par minuter bort och i närheten finns även bensinmack och McDonald’s för snabba ärenden.

En bostad som kombinerar modern komfort, välplanerade ytor och ett mycket bra läge. Här är det bara att flytta in och börja trivas.

Visningar
  • Visning
    Söndag 19 oktober 14:00 - 14:30
    Boka
  • Visning
    Tisdag 21 oktober 17:30 - 18:00
    Boka
TIPSA

Jörgen

Lundgren

ANSVARIG
MÄKLARE

Rumsbeskrivning - Siklöjevägen 7

HALL

Ljus och välkomnande hall med trägolv som löper genom hela bostaden. Förvaring finns i garderober med dörrar i spegelglas och längre in i hallen finns ytterligare garderober som ger bra med förvaringsmöjligheter.

BADRUM

Badrummet är stilrent med ljusgrått klinkergolv och vitt kakel. Här finns tvättmaskin och torktumlare under bänk, handdukstork, wc, badkar, handfat samt spegelskåp med belysning.

DUSCH/WC

Ljusgrått klinkergolv och vitt kakel skapar ett fräscht intryck. Utrustningen består av wc, handfat, spegelskåp med belysning samt dusch bakom draperi.

KÖK

Trivsamt kök med ljusa väggar och trägolv. Här finns plats för matbord för 4–6 personer framför fönstret. Köket är från Vedum med vit köksinredning, mörkgrå bänkskiva och vitt kakel.

VARDAGSRUM

Ljust och rymligt vardagsrum med trägolv och utgång till balkong.

INGLASAD BALKONG

En ca 13 m² balkong med morgon- och förmiddagssol. Utrymmet har filtmatta och blir ett uppskattat extrarum året runt.

SOVRUM 1

Ljust sovrum med trägolv och egen klädkammare. Plats finns för dubbelsäng med tillhörande möblemang, och rummet har utgång till balkongen.

BALKONG

En ca 6 m² balkong med eftermiddags- och kvällssol. Perfekt för avkoppling i lugnt läge.

SOVRUM 2

Ljust sovrum med trägolv och plats för både säng och skrivbord. Två fristående garderober ger god förvaring.

SOVRUM 3

Tillbyggt i vardagsrummet, kan tas bort om så önskas. Passar som sovrum, gästrum eller arbetsrum.

FÖRRÅD

Ett förråd i markplan om ca 5 m² tillhör bostaden.

VITVAROR

2024: Fläkt - LGG. 2008: Kyl, frys, spis med ugn, torktumlare - Electrolux. 2008: Tvättmaskin - Cylinda. Efter 2008: Mikro - Whirlpool. Efter 2008: Diskmaskin - Cylinda.

Fakta – Siklöjevägen 7

Bostadstyp: Bostadsrätt
Kommun: Tyresö
Storlek: 4 rum, 92 kvm boarea
Areakälla: föreningens information
Våning: 1 av 4
Lägenhetsnummer: 1 (1101)
Utgångspris: 3 295 000 kr
Månadsavgift: 6 971 kr
I månadsavgiften ingår värme, vatten, IP-TV och bredband (fiber) via Tele 2. Elen är gemensamt upphandlad för att få lägsta möjliga pris och direktavläses. Förbrukningen redovisas och faktureras på månadsavin. Avgiftsförändring: Föreningen håller på med budgeten just nu, den är inte klar ännu. En avgiftshöjning lär det bli till nästa år (kontrollerat 2025-10-10).
Andelstal: Andel i förening 2,587 %, andel av årsavgift 2,587 %
Indirekt nettoskuldsättning: 574 449 kr
Bostadsrättens indirekta nettoskuldsättning anger hur stor andel av bostadsrättsföreningens lån som indirekt belastar bostadsrätten. Andelen beräknas som andelstalet för avgifter multiplicerat med föreningens nettoskuldsättning. Den består av räntebärande skulder med avdrag för räntebärande tillgångar och likvida medel. Underlagen för beräkningen kommer från föreningen.
Energiprestanda: 76 kWh/kvm och år
Energiklass: D

Fakta – HSB:s Bostadsrättsförening Siklöjan i Tyresö

Äkta/oäkta förening: Äkta
Äger föreningen marken: Ja
Antal lägenheter: 48
Allmänt om föreningen: HSB Brf Siklöjan i Tyresö bildades 2005 och har org.nr. 769613-1577. Föreningen äger och förvaltar fastigheten Gäddan 14 i Tyresö kommun. Fastigheterna färdigställdes 2008. Det finns 48 lägenheter i föreningen i olika storlekar från ettor till fyror. Hiss finns i samtliga hus. Medlemmarna har tillgång till tvättstuga och förråd.

Medlemskap i HSB Stockholm:
För att medlemskapsansökan i Brf Siklöjan ska kunna handläggas behöver köparen vara medlem i HSB Stockholm.
Ansökan om medlemskap görs via HSB:s webbplats: https://blimedlem.hsb.se/
Vid ansökan deponeras 500 kr, vilket återbetalas vid utträde.
Köparen betalar även en årsavgift på 155 kr till HSB Stockholm.

Det finns stort förråd, två rum för cykel och barnvagnsförvaring, däckförvaring, soprum och tvättstuga (Port 11).
Parkering: Det finns 12 carport platser med sedumtak samt 36 parkeringsplatser med motorvärmare att hyra. Carport kostar 450 kr/mån att hyra och parkeringsplats 300 kr/mån. Flertalet parkeringsplatser med elstolpar, elförbrukning faktureras månadsvis. Separat kö till carport och parkeringsplats. För tillfället finns det lediga parkeringsplatser (kontrollerade 2025-10-10). Det finns även gatuparkering.
Överlåtelseavgift och pantsättning: En överlåtelseavgift tas ut om ca 2 058 kr som betalas av säljaren. Vid belåning av bostaden tas en pantsättningsavgift ut om ca 882 kr/pant. Beloppen är beräknade på prisbasbeloppet för år 2025.
Hus
Byggår: 2008
Byggnadstyp: Flerfamiljshus
Hiss: Hiss finns
Ventilation: Frånluft
Uppvärmning: Fjärrvärme
Tv och internet: Ansluten till kabelnät. Leverantör: Tele2. Grundutbud ingår i månadsavgiften.
Internet: Bredband (100 Mbit/s) och IP-telefoni ingår i månadsavgiften
Renoveringar
2017 målades utemöbler. Frånluftsfläkt byttes och brandbesiktning utfördes.
2018 målades kallförråd och carportar.
2024 Målningsarbeten har utförts vid portar och en av carportarna.
2024 Målning av utemöbler (garantijobb).

2025 Byte av styr- och reglerenhet för vattenburen värme samt tappvarmvatten.

Enligt föreningens nuvarande underhållsplan ska ett flertal betydande åtgärder utföras de närmaste fem åren, exempelvis byte av motorvärmaruttag, hisslinor, takfläktar och tvättmaskin/torkskåp i den gemensamma tvättstugan. Föreningens styrelse riktar nu därför särskild uppmärksamhet åt dessa delar för att dels med förebyggande underhåll förlänga den tekniska livslängden, dels med noggranna inspektioner precisera livslängden.

Driftkostnader

Totalsumma: 7 600 kr/år

I driftkostnaden ingår följande:
El: 4 000 kr/år
Försäkring: 3 600 kr/år

Driftkostnaden är beräknad på 2 personers hushåll.
Driftkostnaden är hämtad från nuvarande ägare som är två personer i hushållet och är ej ytterligare kontrollerad. Kostnaderna för ny ägare/boende kan antingen vara högre eller lägre än angivet belopp.

  • Denna bostad
  • Bostäder till salu via Erik Olsson

En riktigt lyckad

bostadsaffär

När du hittat ditt drömboende hjälper vi dig gärna att sälja din nuvarande bostad. För oss är det viktigt att du känner dig trygg både när du köper och säljer bostad via Erik Olsson. Därför är våra mäklare bland de vassaste och mest engagerade i branschen. Vi anstränger oss gärna lite extra för att din bostadsförsäljning ska bli perfekt. Hos oss får du en riktigt lyckad bostadsaffär – och bäst betalt.

Intresseanmälan

Få kontakt med en mäklare som är expert på just ditt område.

✶ Obligatoriska fält

Tillbaka till toppen