Kungsholmen / STOCKHOLM

Kungsholms Strand 171

Utgångspris: 3 295 000 kr
TIPSA
Välplanerad etta med utsikt över Karlbergs slott & kanal

  • Utsikt över Karlbergs slott & kanal
  • Ljust vardagsrum med plats för både soffa, sovdel och matplats
  • Stilrent kök med diskmaskin
  • Fräscht helkaklat badrum
  • Generös takhöjd
  • Hiss i huset
  • Bra förvaringslösningar
  • Tillhörande vindsförråd
  • Välskött förening med låg skuldsättning
  • Fiber indraget i fastigheten
  • Lugnt läge vid vattnet men nära stadens puls
  • Närhet till T-bana, bussar & service

På eftertraktade Kungsholms Strand finner du denna smakfullt planerade etta om 32 kvm med en underbar vy över Karlbergs kanal och slott. Lägenheten erbjuder ett ljust och rymligt vardagsrum, ett stilrent kök med diskmaskin samt ett fräscht badrum. Här bor du i ett lugnt och trevligt läge vid vattnet, men med stadens puls och kommunikationer runt hörnet. Föreningen är välskött med god ekonomi. Ett hem att trivas i från första stund.

Snabbfakta
Avgift:
2 185 kr
I avgiften ingår värme och vatten.
Rum:
1 rum och kök
Boarea:
32 kvm
Våning:
1 av 6
Utgångspris:
3 295 000 kr
Byggnadsår:
1930
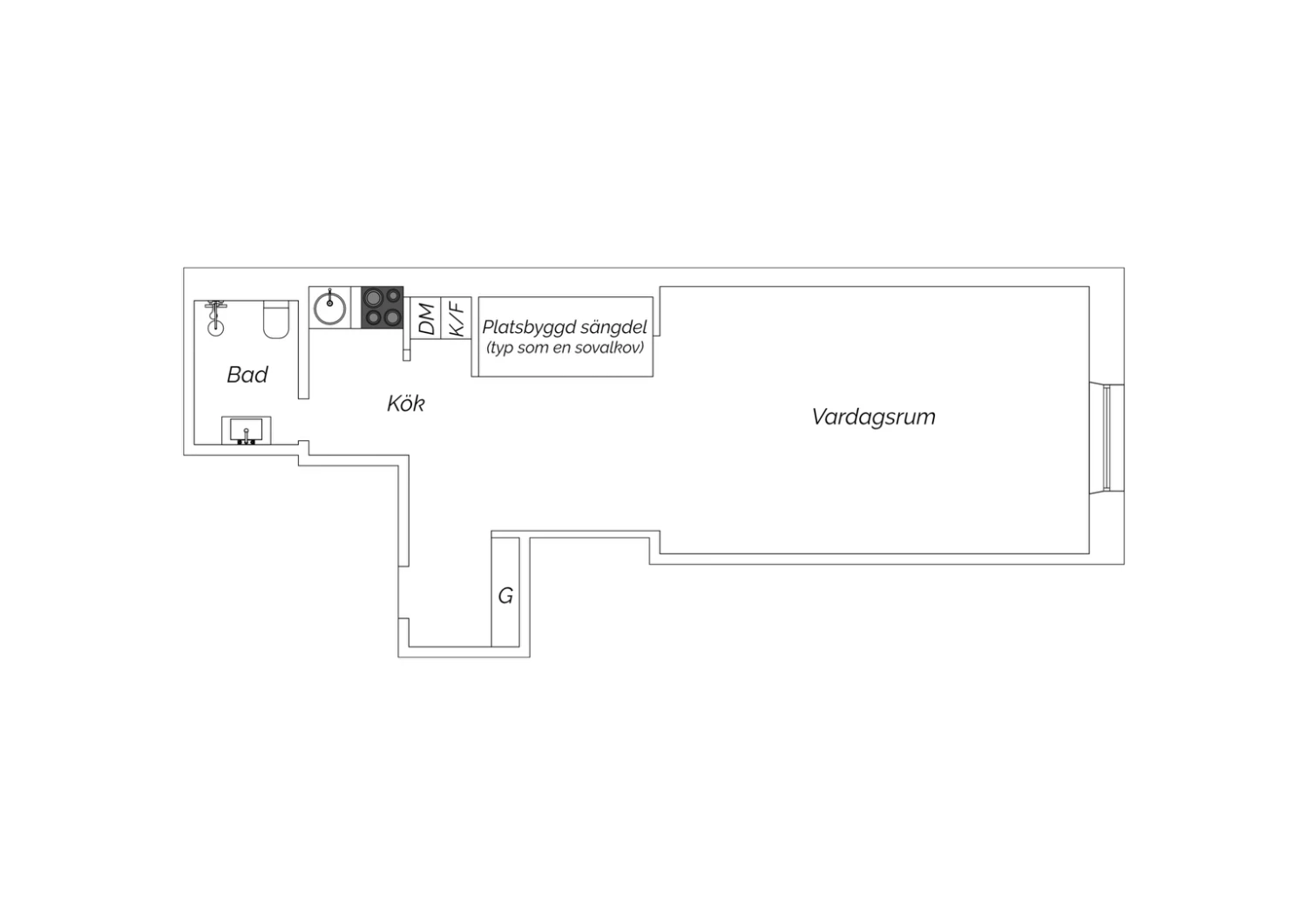
Planritning
e-prospekt
Visningar
  • Visning
    Söndag 19 oktober 13:30 - 14:00

    Kontakta mäklaren

Mäklare

Danis

Ayoubi

ANSVARIG
MÄKLARE

Välplanerad etta med utsikt över Karlbergs slott & kanal

  • Utsikt över Karlbergs slott & kanal
  • Ljust vardagsrum med plats för både soffa, sovdel och matplats
  • Stilrent kök med diskmaskin
  • Fräscht helkaklat badrum
  • Generös takhöjd
  • Hiss i huset
  • Bra förvaringslösningar
  • Tillhörande vindsförråd
  • Välskött förening med låg skuldsättning
  • Fiber indraget i fastigheten
  • Lugnt läge vid vattnet men nära stadens puls
  • Närhet till T-bana, bussar & service

På eftertraktade Kungsholms Strand finner du denna smakfullt planerade etta om 32 kvm med en underbar vy över Karlbergs kanal och slott. Lägenheten erbjuder ett ljust och rymligt vardagsrum, ett stilrent kök med diskmaskin samt ett fräscht badrum. Här bor du i ett lugnt och trevligt läge vid vattnet, men med stadens puls och kommunikationer runt hörnet. Föreningen är välskött med god ekonomi. Ett hem att trivas i från första stund.

Visningar
  • Visning
    Söndag 19 oktober 13:30 - 14:00

    Kontakta mäklaren

TIPSA

Danis

Ayoubi

ANSVARIG
MÄKLARE

Rumsbeskrivning - Kungsholms Strand 171

HALL

Välkomnande hall med plats för avhängning samt förvaring i garderob. Säkerhetsdörr installerad.

KÖK

Stilrent och yteffektivt kök utrustat med diskmaskin, gasspis, fläkt samt kyl/frys, arbetsytor och skåpförvaring.

BADRUM

Fräscht helkaklat badrum med duschhörna, wc, handfat och spegel.

VARDAGSRUM

Ljust och luftigt vardagsrum med plats för soffa & matplats. Stort fönsterparti med härlig utsikt mot Karlbergs kanal och slott.

Sovutrymme

Platsbyggd sängdel med extra förvaringsutrymme.

FÖRRÅD

Till lägenheten hör ett rymligt vindsförråd.

Fakta – Kungsholms Strand 171

Bostadstyp: Bostadsrätt
Kommun: Stockholm
Storlek: 1 rum och kök, 32 kvm boarea
Areakälla: föreningens information
Våning: 1 av 6
Lägenhetsnummer: 00002 (1102)
Utgångspris: 3 295 000 kr
Månadsavgift: 2 185 kr
I avgiften ingår värme och vatten.
Andelstal: Andel i förening 2,094 %, andel av årsavgift 2,149 %
Indirekt nettoskuldsättning: 40 063 kr
Bostadsrättens indirekta nettoskuldsättning anger hur stor andel av bostadsrättsföreningens lån som indirekt belastar bostadsrätten. Andelen beräknas som andelstalet för avgifter multiplicerat med föreningens nettoskuldsättning. Den består av räntebärande skulder med avdrag för räntebärande tillgångar och likvida medel. Underlagen för beräkningen kommer från föreningen.
Energiprestanda: 159 kWh/kvm och år
Energiklass: F

Fakta – Brf Isbrytaren 24

Äkta/oäkta förening: Äkta
Äger föreningen marken: Ja.
Antal lägenheter: 33
Antal lokaler: 1
Allmänt om föreningen: Brf Isbrytaren 24 köpte fastigheten 1982. Föreningens lokal upplåtes med hyresrätt. Till föreningen hör Kungsholms Strand 171.

Inga planerade avgiftshöjningar, men det diskuteras på sikt för att följa med inflation i priser (kontrollerat 2025-08-26).

I föreningen finns cykelförråd samt tvättstuga i källaren.
Parkering: I området råder boendeparkering. För ytterligare information se;
www.stockholm.se
Överlåtelseavgift och pantsättning: En överlåtelseavgift tas ut om ca 1 470 kr som betalas av säljaren. Vid belåning av bostaden tas en pantsättningsavgift ut om ca 588 kr/pant. Beloppen är beräknade på prisbasbeloppet för år 2025.
Hus
Byggår: 1930
Byggnadstyp: Flerfamiljshus
Hiss: Hiss finns
Uppvärmning: Fjärrvärme
Tv och internet: Ingen leverantör, medlemmen beställer själv. GlobalConnect driftar nätet.
Renoveringar
1988 fasaden och fönster mot gatan målades.
1998 tvättstugan renoverades.
1999 färrvärme installerades.
2000 balkonger mot gård byggdes för vissa lägenheter.
2001 elstigare från källare till elcentral byttes i samtliga lägenheter.
2001 hissen renoverades.
2001-2002 fasaden och fönster mot gården samt taket målades.
2003 gården rustades upp.
2005 säkerhetsdörrar installerades.
2006 entré och trapphus målades.
1968-2003 stammarna i föreningen har bytts i omgångar.
2010 stamspolning av samtliga köksstammar utförd.
2010 översyn av element.
2011 maskinpark i tvättstuga byttes ut.
2011 radonmätning utförd.
2015 återställning vattenskada.
2017 OVK.
2018 installation av fiber (för TV/internet/telefon).
2018 filmning och spolning av fyra stammar.
2019 energideklaration.
2021 stambyte 3, 4, 10 & 11.
2022 byte av radiatorventiler och termostater (lägenheter & entré).
2022 installation av handdukstorkar (i de lägenheter som fick sin värmestam frånkopplad i samband med stambyte 2021).
2023 vattenskada hyreslokal, entré och lgh vån 1. Arbete i hyreslokal.
2023 OVK, korrigering av anmärkningar (godkänd efter korrigeringar).
2025 Liten åtgärd på rör i lokalen (ej den uthyrda utan den som ägs av en person), plantering innergård och arborist har klippt till föreningens stora träd på innergården, lagad torktumlare, anlitat firma för teknisk förvaltning.

Beslutade planerade renoveringar: Fasad och byta balkongdörrar på 6 lägenheter (kontrollerat 2025-09-09).
Planerade renoveringar/underhåll på sikt: Måla om tak, byta galvade rör i källaren, se över fönster/fasad (kontrollerat 2025-08-26).

Driftkostnader

Totalsumma: 10 656 kr/år

I driftkostnaden ingår följande:
El: 4 200 kr/år
Försäkring: 2 856 kr/år
Övrigt: 3 600 kr/år

Driftkostnaden är beräknad på 1 persons hushåll.
I angiven driftkostnad för 1 persons hushåll ingår hushållsel 4 200 kr/år, gas 3600 kr/år samt hemförsäkring 2 856 kr/år. Kostnaderna kan både vara högre och lägre för ny ägare/boende.
Nätbolag: Ellevio AB

  • Denna bostad
  • Bostäder till salu via Erik Olsson

En riktigt lyckad

bostadsaffär

När du hittat ditt drömboende hjälper vi dig gärna att sälja din nuvarande bostad. För oss är det viktigt att du känner dig trygg både när du köper och säljer bostad via Erik Olsson. Därför är våra mäklare bland de vassaste och mest engagerade i branschen. Vi anstränger oss gärna lite extra för att din bostadsförsäljning ska bli perfekt. Hos oss får du en riktigt lyckad bostadsaffär – och bäst betalt.

Intresseanmälan

Få kontakt med en mäklare som är expert på just ditt område.

✶ Obligatoriska fält

Tillbaka till toppen