Eriksberg / GÖTEBORG

Monsungatan 65A

Utgångspris: 2 590 000 kr
TIPSA
Välplanerad tvåa med stor balkong med utsikt mot vattnet!

  • Utsikt över hamninloppet
  • Egen tvättutrustning
  • Öppen planlösning
  • Socialt utformad
  • Moderna faschiliteter
  • Bra förvaringsutrymmen
  • Välplanerad
  • Goda förvaringsmöjligheter
  • Attraktivt havsnära läge
  • Härliga kajpromenader
  • Närhet till natur
  • Flertalet träningsanläggningar
  • Bra serviceutbud
  • Mysiga caféer och restauranger
  • Båt & busskommunikationer
  • Intill grönområde

Drömmig Eriksbergstvåa med vacker utsikt över hamninloppet från bostadens rymliga balkong! Ett bekvämt och havsnära boende med öppen planlösning och moderna faschiliteter. Rymligt sovrum, bra förvaringsmöjligheter och helkaklat badrum med egen tvättutrustning. Här bor man i ett av de bästa lägena på Västra Eriksberg. Husen har låg energiförbrukning och alla lägenheterna är välplanerade. I närområdet ligger den grönskande Färjenäsparken och längs Eriksbergskajen är det en fröjd att strosa omkring och ta del av den uppsjö av restauranger och mysiga caféer som samsas längs kajkanten. Bra kommunikationer med både båt och buss in till city.

Varmt välkommen att kontakta ansvarig mäklare Simon Petkovski för mer information!

Snabbfakta
Avgift:
2 551 kr
I avgiften ingår värme, tv, bredband (100/100 Mbit/s) och bredbandstelefoni via Telia Triple Play. Hushållsel, varm- & kallvatten debiteras efter egen förbrukning. Av den totala månadsavgiften avser 1078kr/mån avgift kapital, andelstal 2.
Rum:
2 rum och kök
Boarea:
36 kvm
Våning:
6 av 9
Utgångspris:
2 590 000 kr
Byggnadsår:
2015
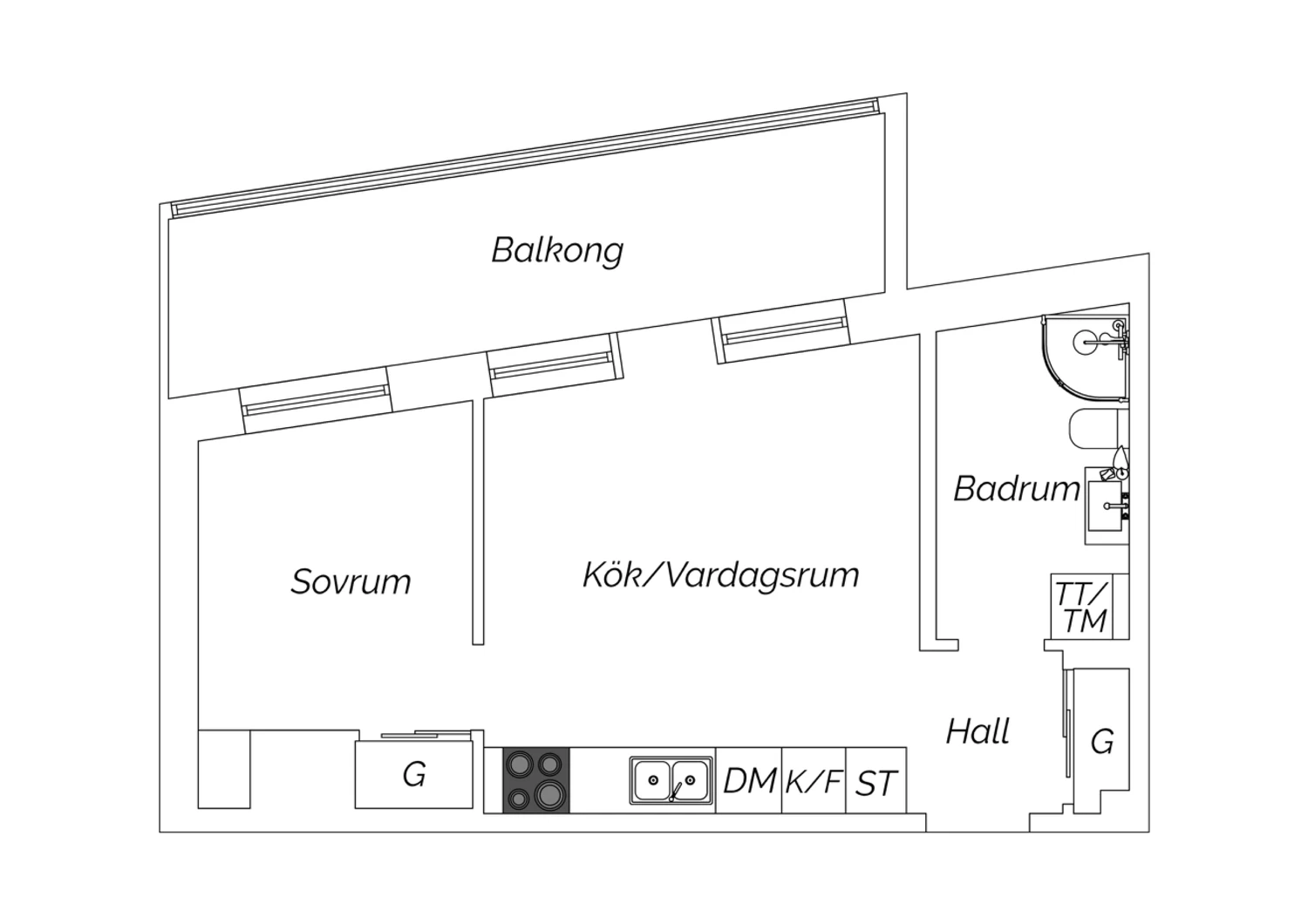
Planritning
Visningar
  • Visning
    Söndag 19 oktober 13:00 - 13:30

    Kontakta mäklaren

Mäklare

Simon

Petkovski

ANSVARIG
MÄKLARE

Fredrik

Wiland

REG. FASTIGHETSMÄKLARE / FRANCHISETAGARE

Välplanerad tvåa med stor balkong med utsikt mot vattnet!

  • Utsikt över hamninloppet
  • Egen tvättutrustning
  • Öppen planlösning
  • Socialt utformad
  • Moderna faschiliteter
  • Bra förvaringsutrymmen
  • Välplanerad
  • Goda förvaringsmöjligheter
  • Attraktivt havsnära läge
  • Härliga kajpromenader
  • Närhet till natur
  • Flertalet träningsanläggningar
  • Bra serviceutbud
  • Mysiga caféer och restauranger
  • Båt & busskommunikationer
  • Intill grönområde

Drömmig Eriksbergstvåa med vacker utsikt över hamninloppet från bostadens rymliga balkong! Ett bekvämt och havsnära boende med öppen planlösning och moderna faschiliteter. Rymligt sovrum, bra förvaringsmöjligheter och helkaklat badrum med egen tvättutrustning. Här bor man i ett av de bästa lägena på Västra Eriksberg. Husen har låg energiförbrukning och alla lägenheterna är välplanerade. I närområdet ligger den grönskande Färjenäsparken och längs Eriksbergskajen är det en fröjd att strosa omkring och ta del av den uppsjö av restauranger och mysiga caféer som samsas längs kajkanten. Bra kommunikationer med både båt och buss in till city.

Varmt välkommen att kontakta ansvarig mäklare Simon Petkovski för mer information!

Visningar
  • Visning
    Söndag 19 oktober 13:00 - 13:30

    Kontakta mäklaren

TIPSA

Simon

Petkovski

ANSVARIG
MÄKLARE

Fredrik

Wiland

REG. FASTIGHETSMÄKLARE / FRANCHISETAGARE

Rumsbeskrivning - Monsungatan 65A

HALL

Ekparkett och vitmålade väggar. En stor skjutdörrsgarderob tar hand om förvaringen.

KÖK

Ekparkett och vitmålade väggar. Köksinredning i vitt och ovan bänkskivan i vit laminat sitter vitt kakel. Den maskinella utrustningen består av häll, inbyggnadsugn, fläkt, inbyggnadsmikro, integrerad diskmaskin samt kombinerad kyl och frys. Matplats för ca 4 personer och öppen planlösning mot vardagsrum.

VARDAGSRUM

Ekparkett och vitmålade väggar. Plats för soffgrupp med tillhörande möblemang och utgång till bostadens balkong med utsikt över hamninloppet.

SOVRUM

Ekparkett och vitmålade väggar. Plats för dubbelsäng med tillhörande sängbord samt förvaringsmöbel.

BADRUM

Ljusgrått klinkergolv och helkaklade väggar i vitt. Badrumsinredningen består av WC, handfat med kommod, spegelskåp med belysning, dusch med vikbara duschdörrar, handdukstork samt tvättmaskin och torktumlare. Infällda dimbara spotlights i taket.

FÖRRÅD

Till lägenheten hör ett källarförråd.

Fakta – Monsungatan 65A

Bostadstyp: Bostadsrätt
Kommun: Göteborg
Storlek: 2 rum och kök, 36 kvm boarea
Areakälla: föreningens information
Våning: 6 av 9
Lägenhetsnummer: 2A1602 (1602)
Utgångspris: 2 590 000 kr
Månadsavgift: 2 551 kr
I avgiften ingår värme, tv, bredband (100/100 Mbit/s) och bredbandstelefoni via Telia Triple Play. Hushållsel, varm- & kallvatten debiteras efter egen förbrukning. Av den totala månadsavgiften avser 1078kr/mån avgift kapital, andelstal 2.
Andelstal: Andel i förening 0,589 %, andel av årsavgift 0,605 %
Indirekt nettoskuldsättning: Bostadsrättens indirekta nettoskuldsättning anger hur stor andel av bostadsrättsföreningens lån som indirekt belastar bostadsrätten. Andelen beräknas som andelstalet för avgifter multiplicerat med föreningens nettoskuldsättning. Den består av räntebärande skulder med avdrag för räntebärande tillgångar och likvida medel. Underlagen för beräkningen kommer från föreningen.
Energiklass: C
Allmänt om lägenheten: ANDELSTAL : 0,58858 %.
ANDELSTAL ÅRSAVGIFT: 0,60532 %.
ANDELSTAL KAPITALAVGIFT: 1,90476 %

Fakta – Brf Kajen Ett

Äkta/oäkta förening: Äkta
Äger föreningen marken: Äger
Antal lägenheter: 83
Antal lokaler: 3
Allmänt om föreningen: Brf Kajen Ett. Föreningen registrerades 2012 och köpte fastigheten 2014. Det finns tre hyresrättslokaler. Till föreningen hör adresserna: Monsungatan 65 A-B, 67, 69 A-B, 92 A-B, 94 A-C.

I föreningen finns cykel- och rullstolsrum belägna på entréplan i varje huskropp. Två gemensamma gårdar med utemöbler.

Fastigheten ingår i en gemensamhetsanläggning avseende sopsugsanläggning för området samt en 3D-fastighetsbildning gällande burspråk. Ledningsdragning har säkerställts genom servitut.

I föreningen finns lägenheter som valt att göra kapitaltillskott vid upplåtelsen, se föreningens stadgar för mer info.

Informationen ovan är tagen från styrelsen, föreningens årsredovisning samt stadgar. Vi råder dig som köpare att kontrollera fakta som är av vikt för dig. Vi som mäklare eller Erik Olsson ansvarar ej för att uppgifterna från dessa källor är korrekta. Senaste kontroll utfördes 2025-10-14.
Besök gärna föreningens hemsida för mer information: https://brfkajenett.se/
Parkering: I föreningen finns 60 garageplatser under husen/gården. Varje plats är försedd med laddstolpe. Parkeringsplats kan hyras till en kostnad om ca 1 150 kr/månad utan el samt ca 1 350 kr/månad + förbrukning om man önskar nyttja laddare. Föreningen förfogar även över 3 MC-platser som kan hyras till en kostnad om ca 500 kr/månad. I dagsläget är det kö till samtliga platser.

I Deckshuset på Östra Eriksbergsgatan 77 välkomnas alla att parkera. För ansökan om abonnemang och mer information, vänligen se https://deckshuset.se/

I området finns avgiftsbelagda besöksplatser, för mer information se www.parkeringgoteborg.se. Tidsbegränsade avgiftsfria platser finns även i området.

Båtplatser: Det finns totalt 116 båtplatser i Eriksbergsdockan. All uthyrning och köhantering går via Grefab, Göteborgsregionens Fritidshamnar AB, som är ett kommunägt bolag som förvaltar en rad hamnar för fritidsbåtar i Göteborgsområdet.
Överlåtelseavgift och pantsättning: En överlåtelseavgift tas ut om ca 1 470 kr som betalas av säljaren. Vid belåning av bostaden tas en pantsättningsavgift ut om ca 588 kr/pant. Beloppen är beräknade på prisbasbeloppet för år 2025.
Hus
Byggår: 2015
Byggnadstyp: Flerbostadshus
Hiss: Hiss finns
Ventilation: FTX
Uppvärmning: Fjärrvärme
Tv och internet: Föreningen är ansluten till TV och bredband via Telia Triple Play (fiberanslutning).
Renoveringar
2018 utfördes 2-årsbesiktning (garantibesiktning) och en obligatorisk ventilationskontroll (OVK).
2019 installerades kameraövervakning samt skalskydd på dörrar.
2020 genomfördes 5-årsbesiktningen.
2022 installerades laddstolpar i garagen. Samtliga lampor i föreningen har bytts ut till LED-lampor.

Inga vidare beslut tagna i dagsläget.

Driftkostnader

Totalsumma: 4 200 kr/år

I driftkostnaden ingår följande:
El: 1 500 kr/år
VA: 1 500 kr/år
Försäkring: 1 200 kr/år

Driftkostnaden är beräknad på 2 personers hushåll.
Angiven driftkostnad är tagen från säljarens uppgifter. De faktiska kostnaderna kan variera beroende på familjesammansättning och levnadssätt.

  • Denna bostad
  • Bostäder till salu via Erik Olsson

En riktigt lyckad

bostadsaffär

När du hittat ditt drömboende hjälper vi dig gärna att sälja din nuvarande bostad. För oss är det viktigt att du känner dig trygg både när du köper och säljer bostad via Erik Olsson. Därför är våra mäklare bland de vassaste och mest engagerade i branschen. Vi anstränger oss gärna lite extra för att din bostadsförsäljning ska bli perfekt. Hos oss får du en riktigt lyckad bostadsaffär – och bäst betalt.

Intresseanmälan

Få kontakt med en mäklare som är expert på just ditt område.

✶ Obligatoriska fält

Tillbaka till toppen