Hisings Kärra / Hisings Kärra

Svankällevägen 27

Föreslagen budstart: 6 600 000 kr
TIPSA
Hemtrevlig villa med magisk utemiljö och avskilt läge!

Varmt välkomna till Svankällevägen 27 och detta underbara enplanshus med källarvåning! Redan vid ankomst möts ni av en unik och romantisk trädgård som bjuder på färg och grönska året runt. Här prunkar japansk lönn, kinesiskt körsbärsträd, hortensior, rhododendron och syrén. Ett vattenfall sprider rogivande ljud och i en stämningsfull Koidamm rör sig färgglada fiskar stilla i vattnet. Trädgårdens hjärta är det charmiga lusthuset, där ni kan slå er ner och njuta av den milsvida utsikten. Den enorma altanen löper runt husets solsidor och blir en naturlig samlingspunkt för både stora sammankomster och stillsamma stunder i solen. Tack vare den egna infarten och det insynsskyddade läget får ni fullständig avskildhet och ro. Invändigt väntar ett stort och luftigt vardagsrum med tre meters takhöjd som badar i ljus och skapar en härlig känsla av rymd. Köket är socialt utformat och ger även plats för matbord. Tre till fyra sovrum och två badrum finns också beläget på samma våningsplan. Husets bottenvåning erbjuder stor potential med möjlighet till uthyrning, generationsboende eller kanske en egen studio. Dessutom finns ett inbyggt garage med plats för bil och mycket förvaring, gott om plats för flera bilar på uppfarten och möjlighet att ladda elbil.

Här bor ni barnvänligt i ett grönskande område med bara några kilometer från mataffär, service och grundskola i Kärra centrum. Fritidsaktiviteter, 4H-gård och simhall i närområdet och endast cirka 10 minuters bilväg till Bäckebol Köpcenter och 15 till Backaplans stora utbud. Bra busskommunikationer tar er till centrala Göteborg var 10:e minut under rusningstid.

Varmt välkomna att kontakta ansvarig mäklare Natasha Vasic för mer information om bostaden!

Snabbfakta
Rum:
6
Varav sovrum:
3 - 4
Boarea:
147 kvm
Biarea:
90 kvm
Tomtarea:
1362,4 kvm
Föreslagen budstart:
6 600 000 kr
Byggnadsår:
2003
Fastighetsbeteckning:
Kärra 12:10
Planritning
Visningar
  • Välkommen att boka dig för visning via mäklarens hemsida!
    Söndag 19 oktober 11:30 - 12:00
    Boka
Mäklare

Natasha

Vasic

ANSVARIG
MÄKLARE

Hemtrevlig villa med magisk utemiljö och avskilt läge!

Varmt välkomna till Svankällevägen 27 och detta underbara enplanshus med källarvåning! Redan vid ankomst möts ni av en unik och romantisk trädgård som bjuder på färg och grönska året runt. Här prunkar japansk lönn, kinesiskt körsbärsträd, hortensior, rhododendron och syrén. Ett vattenfall sprider rogivande ljud och i en stämningsfull Koidamm rör sig färgglada fiskar stilla i vattnet. Trädgårdens hjärta är det charmiga lusthuset, där ni kan slå er ner och njuta av den milsvida utsikten. Den enorma altanen löper runt husets solsidor och blir en naturlig samlingspunkt för både stora sammankomster och stillsamma stunder i solen. Tack vare den egna infarten och det insynsskyddade läget får ni fullständig avskildhet och ro. Invändigt väntar ett stort och luftigt vardagsrum med tre meters takhöjd som badar i ljus och skapar en härlig känsla av rymd. Köket är socialt utformat och ger även plats för matbord. Tre till fyra sovrum och två badrum finns också beläget på samma våningsplan. Husets bottenvåning erbjuder stor potential med möjlighet till uthyrning, generationsboende eller kanske en egen studio. Dessutom finns ett inbyggt garage med plats för bil och mycket förvaring, gott om plats för flera bilar på uppfarten och möjlighet att ladda elbil.

Här bor ni barnvänligt i ett grönskande område med bara några kilometer från mataffär, service och grundskola i Kärra centrum. Fritidsaktiviteter, 4H-gård och simhall i närområdet och endast cirka 10 minuters bilväg till Bäckebol Köpcenter och 15 till Backaplans stora utbud. Bra busskommunikationer tar er till centrala Göteborg var 10:e minut under rusningstid.

Varmt välkomna att kontakta ansvarig mäklare Natasha Vasic för mer information om bostaden!

Visningar
  • Välkommen att boka dig för visning via mäklarens hemsida!
    Söndag 19 oktober 11:30 - 12:00
    Boka
TIPSA

Natasha

Vasic

ANSVARIG
MÄKLARE

Rumsbeskrivning - Svankällevägen 27

ENTRÉVÅNING

HALL

Klinkergolv och vita väggar med en skiljevägg i tegel mot köket. Plats för kappavhängning och förvaring i en skjutdörrsgarderob med spegelglas.

KÖK/MATPLATS

Klinkergolv och vita väggar. Köksinredning i vitt och ovan arbetsbänken sitter kakel som stänkskydd. Den maskinella utrustningen består av kyl och frys i fullhöjd, inbyggd ugn och mikro, spis och köksfläkt. Gott om plats för stort matsalsbord intill burspråksfönster.

VARDAGSRUM

Laminatgolv och blå/grå väggar. Plats för stor soffgrupp med tillhörande möblemang och matsalsbord. Här finns ett stort hörnfönsterparti och en kamin. Utgång till bostadens altan och utemiljö.

SOVRUM 1

Laminatgolv och tapetserade väggar. Plats för dubbelsäng med tillhörande sidobord och önskvärt möblemang. Utgång till altanen och direkt access till badrummet.

SOVRUM 2

Laminatgolv och vita väggar med en ljusblå fondvägg. Plats för säng, sällskapsmöbel eller annat önskvärt möblemang.

SOVRUM 3

Laminatgolv och beigea väggar. Plats för säng med tillhörande sidobord och önskvärt möblemang.

ALLRUM

Laminatgolv och tapetserade väggar. Plats för antingen soffgrupp eller säng med tillhörande möblemang.

BADRUM

Klinkergolv och helkaklade väggar. Badrumsinredningen består av WC-stol, handfat med kommod, spegel och hörnbadkar.

WC/DUSCH

Klinkergolv och helkaklade väggar. Badrumsinredningen består av WC-stol, handfat med kommod, spegel, handdukstork och dusch med mönstrad glasvägg.

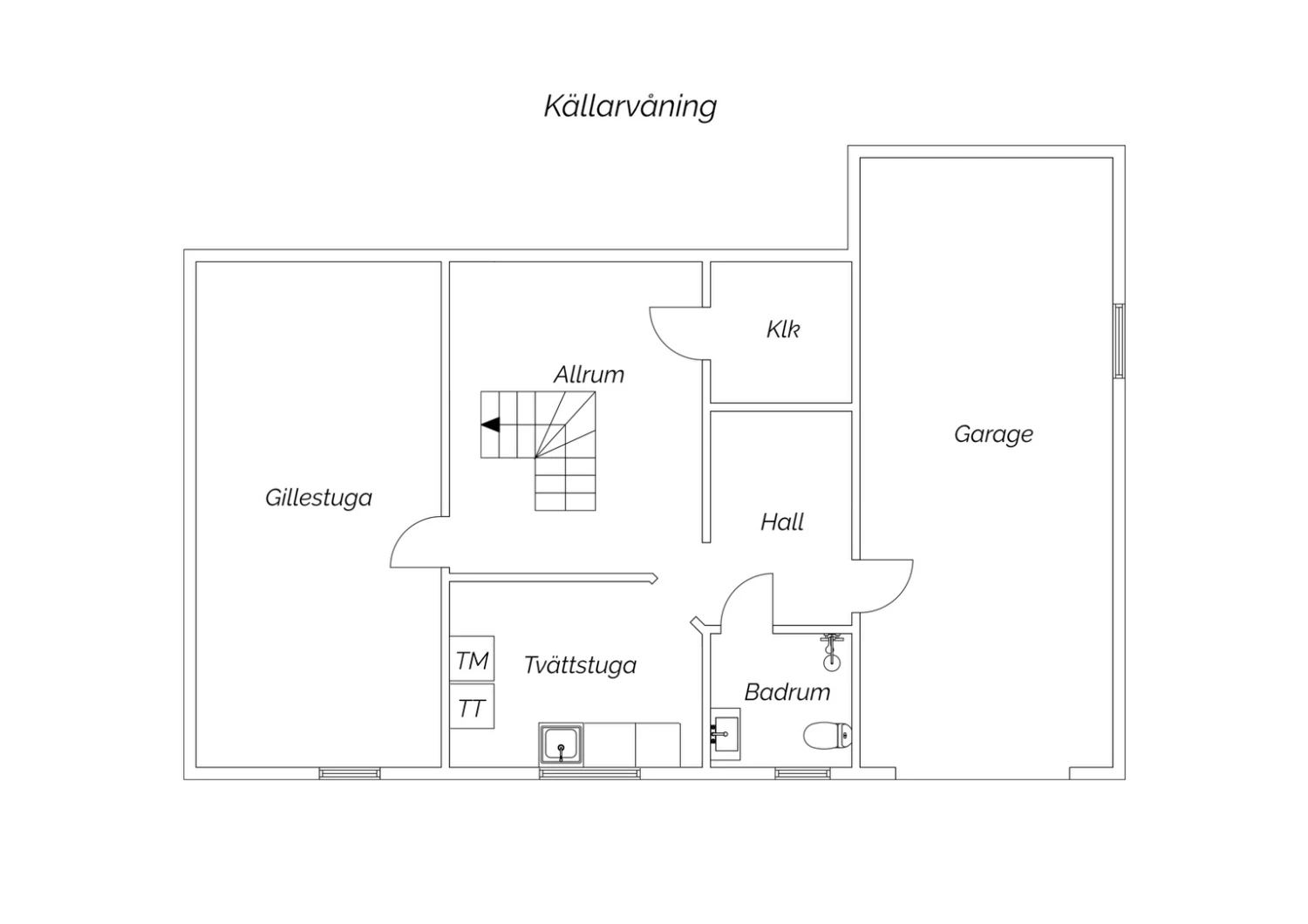
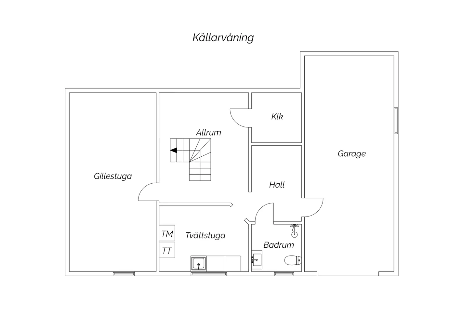
KÄLLARVÅNING

HALL/ALLRUM

Klinkergolv och tapetserade väggar. Gott om förvaringsutrymme i flera garderober och klädkammare.

GILLESTUGA

Laminatgolv och bruna väggar. Plats för säng med tillhörande sidobord och sällskapsmöblemang. Förvaringsutrymme i garderober.

TVÄTTSTUGA

Klinkergolv och gråa väggar. Här finns tvättmaskin, torktumlare, tvättho med arbetsbänk och förvaringsskåp.

BADRUM

Klinkergolv och helkaklade väggar. Badrumsinredningen består av WC-stol, handfat med kommod, spegel och dusch med glasvägg.

Fakta – Svankällevägen 27

Bostadstyp: Villa
Kommun: Göteborg
Fastighetsbeteckning: Kärra 12:10
Storlek: 6 rum, 147 kvm boarea, 90 kvm biarea
Varav sovrum: 3 - 4
Areakälla: taxeringsinformation
Föreslagen budstart: 6 600 000 kr
Energiprestanda: 202 kWh/kvm och år
Energiklass: F
Servitut, samfälligheter, etc: Gemensamhetsanläggning: Göteborg kärra ga:10 ändamål: Vägar
Gemensamhetsanläggning: Göteborg kärra ga:43
Gemensamhetsanläggning: Göteborg kärra ga:44
Gemensamhetsanläggning: Göteborg kärra ga:45
Gemensamhetsanläggning: Göteborg kärra ga:72
Förmån: Officialservitut Vattenledning, 1480K-1997F105.4
Last: Officialservitut Avlopp, 1480K-2003F43.1
Last: Officialservitut Va, 1480K-1997F105.5
Planbestämmelser: Vattenskyddsområde (1999-01-18) Detaljplan (1992-12-03)
Upplåtelseform: Friköpt
Pantbrev: Det finns 9 st pantbrev uttaget om sammanlagt 3 850 000 kr
Taxeringsvärde: 5 083 000 kr
Taxeringsår: 2024
Byggnadsvärde: 2 652 000 kr
Markvärde: 2 431 000 kr
Fastighetsavgift: 10 074 kr/år

Fakta – Byggnaden

Hus
Byggnadstyp: Friliggande villa
Byggår: 2003
Fasad: Stående träpanel
Stomme: Betongsten/Trä
Fönster: 3-glas isolerfönster
Tak: Valmat tak med betongpannor på läkt, papp, råspont
Grundläggning: Mekaniskt ventilerad krypgrund/ Källare
Uppvärmning: Värmepump-frånluft (el) och värmepump-luft/luft (el)
Vatten och avlopp: Kommunalt vatten året om. Kommunalt avlopp
Ventilation: F med återvinning
Övrigt om byggnaden: 2021 inreddes nedervåningen med garderober och väggar.
2024 sattes ny avfuktare in i krypgrunden.
2025 renoverades entrén och trallen i första delen av altanen samt badrummet totalrenoverades på övervåningen.
Tomt, uteplats och bilplats
Tomtarea: 1362,4 kvm
Beskrivning uteplats: Altan i sydvästläge och balkong i österläge.
Beskrivning bilplats: Parkering för bil i garage och uppfart.

Driftkostnader

Totalsumma: 51 708 kr/år

I driftkostnaden ingår följande:
Uppvärmning: 28 364 kr/år
VA: 14 024 kr/år
Sotning: 480 kr/år
Försäkring: 7 340 kr/år
Övrigt: 1 500 kr/år

Driftkostnaden är beräknad på 4 personers hushåll.
Angiven driftkostnad är beräknad enligt säljarens uppgifter. Kostnad för hushållsel ingår i beloppet för uppvärmning och kostnad om 1 500 kr avser underhåll av väg in till huset och ägs tillsammans med grannen. Nuvarande ägare betalar även 751 kr/år för larm. De faktiska kostnaderna kan variera beroende på familjesammansättning och levnadssätt.
Fullvärde: Ja

Utöver detta tillkommer kostnad för fastighetsavgift/skatt på 10 074 kr/år.

  • Denna bostad
  • Bostäder till salu via Erik Olsson

En riktigt lyckad

bostadsaffär

När du hittat ditt drömboende hjälper vi dig gärna att sälja din nuvarande bostad. För oss är det viktigt att du känner dig trygg både när du köper och säljer bostad via Erik Olsson. Därför är våra mäklare bland de vassaste och mest engagerade i branschen. Vi anstränger oss gärna lite extra för att din bostadsförsäljning ska bli perfekt. Hos oss får du en riktigt lyckad bostadsaffär – och bäst betalt.

Intresseanmälan

Få kontakt med en mäklare som är expert på just ditt område.

✶ Obligatoriska fält

Tillbaka till toppen