Vik / Simrishamn

Lugnadalsvägen 10

Föreslagen budstart: 15 700 000 kr
TIPSA
Stillhet, hav och hästar – en plats få förunnad. 9ha mark, ridhus, stall och utebana!

  • Fantastiskt läge på Lugnadal – stillhet, natur och närhet till havet.
  • 9 hektar mark – stora ytor för hästhållning, odling eller framtida utveckling.
  • Komplett hästanläggning – ridhus, stall m 7 boxar och utebana.
  • Generösa ridvägar i området – oändliga möjligheter för ridturer i naturskön miljö.
  • Ståtligt bostadshus – karaktärsfullt hem med rymliga ytor.
  • Privat innergård med poolmiljö – en exklusiv plats för avkoppling och umgänge.
  • Verkstad och ekonomibyggnader – perfekt för hobby, förvaring eller verksamhet.
  • Lugnt läge på återvändsgata – minimal trafik och ostörd tillvaro.
  • Nära havet och fiskeläget Vik – bara några minuter bort.
  • Unik kombination av lantliv och kustliv – sällsynt att finna båda så nära.

Adressen säger allt – Lugnadal. Här råder ett påtagligt lugn, endast några minuter från havet och det charmiga fiskeläget Vik. Gården är vackert inbäddad i naturen med betesmarker och skog, längst in på en återvändsgata där stillheten är påtaglig. Från det höga läget skimrar havet i blickfånget och påminner om närheten till kusten.

Detta är en renodlad hästgård som erbjuder allt man kan önska sig – ett generöst ridhus, stall, utebana, verkstad och ett ståtligt bostadshus. På innergården möts du av en fantastisk poolmiljö där havet återigen visar sig i fonden och skapar en unik atmosfär.

Till gården hör hela 9 hektar mark, vilket gör fastigheten både unik och mycket attraktiv. Ytterligare möjlighet att arrendera ca 6 ha finns. Här finns utrymme att leva lantlivet fullt ut, med alla bekvämligheter nära till hands. Ridvägarna i området är närmast oändliga och omgivningen ger en livskvalitet som få får möjlighet att uppleva.

Detta är en plats där drömmar om livet på landet möter närheten till havet – en hästgård utöver det vanliga.

Snabbfakta
Rum:
6
Varav sovrum:
4
Boarea:
190 kvm
Markareal:
8,975 hektar
Byggnadsår:
1978
Fastighetsbeteckning:
Gladsax 22:10
Föreslagen budstart:
15 700 000 kr
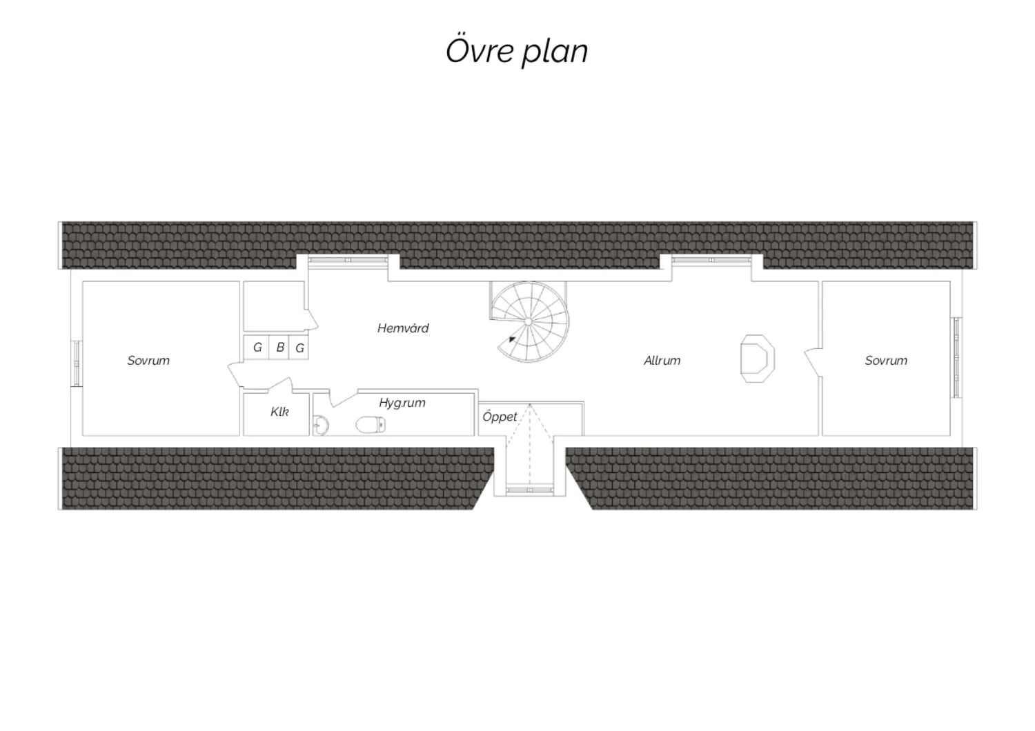
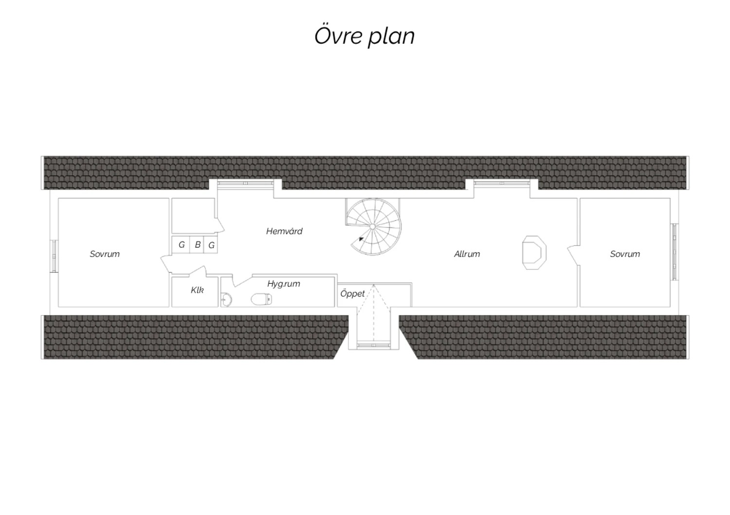
Planritning
e-prospekt
Visningar
  • Bokad visning, välkomna!
    Söndag 19 oktober

    Kontakta mäklaren

Mäklare

Lovisa

Björnberg

ANSVARIG
MÄKLARE

Johan

Sassersson

REG. FASTIGHETSMÄKLARE / PARTNER

Stillhet, hav och hästar – en plats få förunnad. 9ha mark, ridhus, stall och utebana!

  • Fantastiskt läge på Lugnadal – stillhet, natur och närhet till havet.
  • 9 hektar mark – stora ytor för hästhållning, odling eller framtida utveckling.
  • Komplett hästanläggning – ridhus, stall m 7 boxar och utebana.
  • Generösa ridvägar i området – oändliga möjligheter för ridturer i naturskön miljö.
  • Ståtligt bostadshus – karaktärsfullt hem med rymliga ytor.
  • Privat innergård med poolmiljö – en exklusiv plats för avkoppling och umgänge.
  • Verkstad och ekonomibyggnader – perfekt för hobby, förvaring eller verksamhet.
  • Lugnt läge på återvändsgata – minimal trafik och ostörd tillvaro.
  • Nära havet och fiskeläget Vik – bara några minuter bort.
  • Unik kombination av lantliv och kustliv – sällsynt att finna båda så nära.

Adressen säger allt – Lugnadal. Här råder ett påtagligt lugn, endast några minuter från havet och det charmiga fiskeläget Vik. Gården är vackert inbäddad i naturen med betesmarker och skog, längst in på en återvändsgata där stillheten är påtaglig. Från det höga läget skimrar havet i blickfånget och påminner om närheten till kusten.

Detta är en renodlad hästgård som erbjuder allt man kan önska sig – ett generöst ridhus, stall, utebana, verkstad och ett ståtligt bostadshus. På innergården möts du av en fantastisk poolmiljö där havet återigen visar sig i fonden och skapar en unik atmosfär.

Till gården hör hela 9 hektar mark, vilket gör fastigheten både unik och mycket attraktiv. Ytterligare möjlighet att arrendera ca 6 ha finns. Här finns utrymme att leva lantlivet fullt ut, med alla bekvämligheter nära till hands. Ridvägarna i området är närmast oändliga och omgivningen ger en livskvalitet som få får möjlighet att uppleva.

Detta är en plats där drömmar om livet på landet möter närheten till havet – en hästgård utöver det vanliga.

Visningar
  • Bokad visning, välkomna!
    Söndag 19 oktober

    Kontakta mäklaren

TIPSA

Lovisa

Björnberg

ANSVARIG
MÄKLARE

Johan

Sassersson

REG. FASTIGHETSMÄKLARE / PARTNER

Fakta – Lugnadalsvägen 10

Allmänt
Typ: Gård
Kommun: Simrishamn
Storlek: 6 rum, 190 kvm boarea
Varav sovrum: 4
Markareal: 8,975 hektar
Antal skiften: 1
Fastighetsbeteckning: Gladsax 22:10
Energideklaration: Beställd
Servitut, samfälligheter, etc: Samfällighet: Simrishamn gladsax s:7
Förmån: Officialservitut Väg, 1291-2474.2
Last: Officialservitut Väg, 1181-989.1
Last: Officialservitut Väg, 1291-2022/18.3
Last: Officialservitut Väg, 1291-2474.1
Last: Officialservitut Väg, 1291-2474.3
Skattetal: mantal 145/1536
Tillträde: Våren 2026
Vägbeskrivning: hitta.se
Ekonomi
Föreslagen budstart: 15 700 000 kr
Byggnadsvärde: 2 809 000 kr
Markvärde: 2 889 000 kr
Taxeringsvärde: 5 698 000 kr
Taxeringsår: 2023
Fastighetsavgift: 10 074 kr/år
Pantbrev: Det finns 3 st pantbrev uttaget om sammanlagt 2 767 000 kr

Byggnader

Bostadshus

Fakta

Byggår: 1978
Byggnadstyp: 1 1/2 plans bostad
Fasad: Puts
Stomme: Tegel
Fönster: Trä/aluminium
Bjälklag: Trä
Utvändigt plåtarbete: Koppar
Tak: Skiffer
Grundläggning: Gjutet
Uppvärmning: Jordvärme
Vatten & Avlopp: Enskilt vatten via borrad brunn. Nyrenoverad med ny pump 2024. Enskilt avlopp (trekammarbrunn med infiltrationsbädd).
Ventilation: Självdrag, pax fläktar i badrum
Energideklaration: Beställd
Tomt: Tomtarea 2000 m².
Renoveringar: 2022 pool (4x8 meter) och poolmiljö anlagd
2021 uterum byggt
2020 växthus ca 15 kvm
2018 Jacuzzi
2013 kök och badrum nytt
2013 nya vattenledningar hela huset.

Taxeringsuppgifterna för marken är baserad på en samtaxering om totalt 12 ha mark (det som tillhör gården är 9 ha mark).

Interiör

Antal rum: 6
Antal sovrum: 4
Boarea: 190 kvm

Rumsbeskrivning

Hall

Bostaden välkomnar med två entréer – en representativ huvudentré och en praktisk vardagsentré. Här finns gott om plats för att hänga av sig ytterkläder och skapa en trivsam första känsla när man kliver in i hemmet. Kombinationen av stil och funktion gör att både vardag och fest tas emot på bästa sätt.

Kök

Hemmets hjärta är det underbara köket – öppet, socialt och precis så som många drömmer om. Köket totalrenoverades 2013 och kombinerar stilren design med funktionalitet. Här finns gott om skåpsförvaring och generösa arbetsytor. Köksön blir en självklar samlingspunkt för både vardag och fest, och härifrån bjuds en utsikt som gör matlagningen till en njutning – över de egna ägorna och mot havets glimrande horisont.

Sällskapsrum

I direkt anslutning till köket öppnar det fantastiska sällskapsrummet upp sig – en inbjudande yta där den majestätiska kaminen i rummets mitt sätter tonen. Här samlas familj och vänner för avkoppling, umgänge och värme, i en miljö som både imponerar och omfamnar. Ett rum att slå sig ner i och verkligen njuta av.

Uterum

År 2021 tillkom det härliga uterummet som förlänger bostaden och bjuder in naturen året runt. Här flödar ljuset in och skapar en luftig känsla, samtidigt som rummet blir en självklar plats att samlas på för både vardag och fest. Att sitta här och blicka ut över hagarna med hästarna i blickfånget är en upplevelse som gör livet på gården alldeles extra speciellt.

Gästtoalett

Invid kök och hall finns en praktisk gästtoalett – smidigt placerad för både familj och besökare. Här finns wc och handfat i en tidlös stil.

Sovrum

I husets västra gavel ligger ett generöst sovrum med stora ytor och harmonisk atmosfär. Från fönstren blickar man ut över det böljande landskapet, där naturen och ljuset skapar en rofylld inramning – en plats för vila, återhämtning och lugn.

Klädkammare/sovrum

Vägg i vägg med det andra sovrummet finns ett mångsidigt rum som idag används som klädkammare/förvaringsrum, men som också fungerar utmärkt som sovrum. Rummet har en generös storlek och erbjuder flexibilitet för olika behov – perfekt som extra sovplats, arbetsrum eller organiserad förvaringsyta.

Tvättstuga

Praktisk och uppskattad av alla i hushållet – här finns en fullutrustad tvättstuga med gott om plats för både tvätt och förvaring. Funktionella ytor och smart planering gör vardagens sysslor enklare och mer trivsamma, samtidigt som rummet behåller en luftig och ordnad känsla.

Badrum

Ett fräscht och stilrent badrum som renoverades 2013, utrustat med wc, handfat och dusch. Helkaklade ytor kombineras med golvvärme, vilket skapar en behaglig och modern känsla. Här finns både funktion och komfort samlat i en elegant och välplanerad miljö.

Ovanplan

Ett underbart och rymligt ovanplan med generösa ytor och ljusinsläpp från takkupor och fönster, vilket ger en genomgående ljus och luftig känsla. Här finns idag två generösa sovrum i vardera gavel, och i mitten av våningsplanet finns utrymme som kan användas för sociala sammanhang eller som extra sovdel efter behov. Utsikten över havet är hänförande – en magisk plats att vakna upp till varje dag. För extra bekvämlighet finns även en badrum med wc, handfat och dusc på detta plan.

Ekonomibyggnader

Stall

Stallet erbjuder en modern och genomtänkt miljö för både hästar och ryttare. Med ett generöst utvändigt mått på ca 220 kvm rymmer byggnaden sju välplanerade boxar, utformade för att skapa trivsel och funktion i vardagen. Här möts gedigen byggkvalitet med praktiska lösningar – ett stall som är lika vackert att se på som det är enkelt att använda.
Uppfräschat/nymålat 2025.

Garage/förråd/kontor

På gården finns även en mångsidig byggnad om totalt ca 112 kvm som erbjuder både praktiska utrymmen och en trivsam arbetsmiljö. Här ryms generösa garage- och förrådsytor med gott om plats för maskiner, verktyg och förvaring. I byggnaden finns också ett kontor om ca 25 kvm, smakfullt inrett och skapat 2017 då den tidigare sadelkammaren byggdes om. En perfekt plats för gårdens administration, hemmakontor eller för den som önskar en lugn arbetsyta i direkt anslutning till gårdslivet.

Ridhus

Ridhuset, uppfört 2008, mäter imponerande 22 x 60 meter och erbjuder hela 1 320 kvm träningsyta. Underlaget är sviktande och dämpande med sand i topplager – en kombination som skapar optimala förutsättningar för både häst och ryttare. Tack vare sprinklersystemet kan banan enkelt hållas välvattnad och dammfri, medan den goda belysningen gör att ridning kan ske året runt och under dygnets alla timmar. Ett professionellt ridhus som ger både funktion och komfort, oavsett ambitionsnivå.

Ekonomibyggnad/verkstad

Den praktiska ekonomibyggnaden uppfördes 2019 och mäter ca 130 kvm utvändigt. Byggnaden är isolerad och utrustad med luft/luft-värmepump för effektiv uppvärmning, vilket gör den användbar året runt. Här finns gott om utrymme för verkstadsarbete, maskiner, förvaring eller andra verksamhetsbehov – en flexibel byggnad som ger gården både funktion och framtida möjligheter.

Skärmtak

Under det generösa skärmtaket om ca 174 kvm finns stora ytor som idag erbjuder praktiska förvaringsmöjligheter och skydd. Här ges också utmärkta förutsättningar att utveckla vidare – exempelvis genom att inreda fler hästboxar eller skapa andra funktioner som gårdens behov kan kräva. En flexibel yta som öppnar för både nuvarande och framtida användning.

Sammanställning mark

Typ av mark Beskrivning
Skogsmark Areal: 1 ha.
Åkermark Areal: 6 ha.
Betesmark/tomtmark Areal: 2 ha.

Driftkostnader

Totalsumma: 69 563 kr/år

I driftkostnaden ingår följande:
El: 50 400 kr/år
VA: 1 506 kr/år
Renhållning: 1 872 kr/år
Försäkring: 15 785 kr/år

Nätbolag: Eon

Utöver detta tillkommer kostnad för fastighetsavgift/skatt på 10 074 kr/år.

  • Denna bostad
  • Bostäder till salu via Erik Olsson

En riktigt lyckad

bostadsaffär

När du hittat ditt drömboende hjälper vi dig gärna att sälja din nuvarande bostad. För oss är det viktigt att du känner dig trygg både när du köper och säljer bostad via Erik Olsson. Därför är våra mäklare bland de vassaste och mest engagerade i branschen. Vi anstränger oss gärna lite extra för att din bostadsförsäljning ska bli perfekt. Hos oss får du en riktigt lyckad bostadsaffär – och bäst betalt.

Intresseanmälan

Få kontakt med en mäklare som är expert på just ditt område.

✶ Obligatoriska fält

Tillbaka till toppen