Holmsund / Holmsund

Skolgatan 6

Föreslagen budstart: 2 250 000 kr
TIPSA
Stor villa med dubbelgarage, bästa solläge och toppläge nära skola!

  • - Generös tomt om ca 1 595 kvm i bästa solläge
  • - Dubbelgarage och gott om uppställningsplats
  • - Inglasat uterum som förlänger säsongen
  • - Två kompletta kök och flexibel planlösning
  • - Bergvärme från 2020 och energiklass C

I ett av Holmsunds mest omtyckta områden, långt in på en lugn återvändsgata och med Skärgårdsskolan bara några steg bort, hittar du denna rymliga villa om ca 182 kvm boarea och 62 kvm biarea. Fastigheten erbjuder en generös tomt om ca 1 595 kvm i bästa solläge, ett inglasat uterum och ett rymligt dubbelgarage. Här bor du i ett tryggt och familjevänligt läge med kort avstånd till centrum, service, hav och fina naturområden.

Tomten har bästa möjliga solläge och gott om plats för lek, odling och sociala tillställningar. På uppfarten finns bra parkeringsmöjligheter och dubbelgaraget rymmer både bilar och förvaring. Det inglasade uterummet förlänger säsongen och blir en naturlig samlingsplats under vår och sommar.


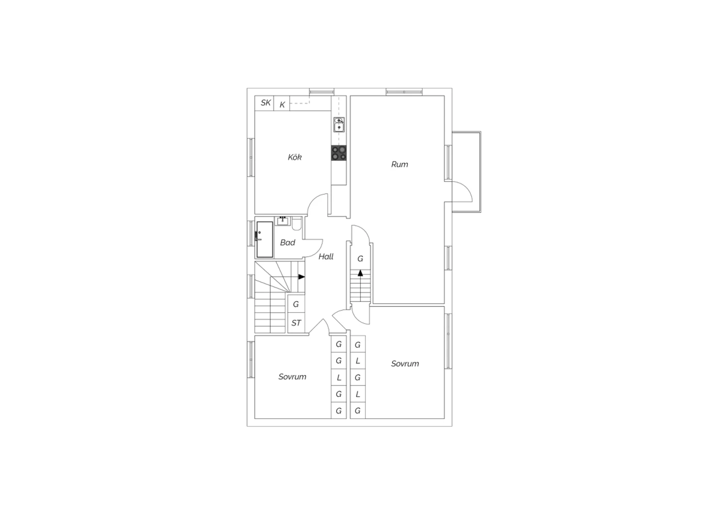
Huset är uppfört i 2 plan med loft och utan källare, med gott om förvaringsutrymmen och klassiska teknikrum på entréplanet. Planlösningen rymmer flera sovrum, två kompletta kök – ett på varje plan – och generösa sällskapsytor. Möjligheterna är många och huset passar dig som söker gott om yta och vill skapa ett hem helt i din egen stil.

Invändigt är mycket i äldre skick, vilket ger friheten att uppdatera efter egen smak. Samtidigt är vissa större åtgärder redan gjorda: bergvärme (borrhål) installerades 2020, badrummet på övre plan renoverades 2014, fasaden målades 2015–2016 och uterummets tak byttes 2017.

Holmsund – kustnära liv med närhet till stan

Holmsund är ett havsnära samhälle cirka 15 minuter från Umeå. Här samsas småstadskänsla och närhet till naturen med goda kommunikationer och ett brett serviceutbud. För barnfamiljen finns både förskolor, Skärgårdsskolan (F–3) och Storsjöskolan (åk 4–9), samt idrottsanläggningar, motionsspår och simhallen Aquaarena. Närheten till havet ger fina möjligheter till båtliv, bad och friluftsliv, och i grannorten Obbola väntar flera populära stränder och vandringsleder.

Snabbfakta
Rum:
7
Varav sovrum:
5
Boarea:
182 kvm
Biarea:
62 kvm
Tomtarea:
1595 kvm
Föreslagen budstart:
2 250 000 kr
Byggnadsår:
1953
Fastighetsbeteckning:
Hjorten 15
Planritning
e-prospekt
Visningar
  • Bokad visning, anmäl dig via hemsidan!
    Fredag 17 oktober 08:30 - 09:00
    Boka
Mäklare

Robin

Stegeby

ANSVARIG
MÄKLARE

Stor villa med dubbelgarage, bästa solläge och toppläge nära skola!

  • - Generös tomt om ca 1 595 kvm i bästa solläge
  • - Dubbelgarage och gott om uppställningsplats
  • - Inglasat uterum som förlänger säsongen
  • - Två kompletta kök och flexibel planlösning
  • - Bergvärme från 2020 och energiklass C

I ett av Holmsunds mest omtyckta områden, långt in på en lugn återvändsgata och med Skärgårdsskolan bara några steg bort, hittar du denna rymliga villa om ca 182 kvm boarea och 62 kvm biarea. Fastigheten erbjuder en generös tomt om ca 1 595 kvm i bästa solläge, ett inglasat uterum och ett rymligt dubbelgarage. Här bor du i ett tryggt och familjevänligt läge med kort avstånd till centrum, service, hav och fina naturområden.

Tomten har bästa möjliga solläge och gott om plats för lek, odling och sociala tillställningar. På uppfarten finns bra parkeringsmöjligheter och dubbelgaraget rymmer både bilar och förvaring. Det inglasade uterummet förlänger säsongen och blir en naturlig samlingsplats under vår och sommar.


Huset är uppfört i 2 plan med loft och utan källare, med gott om förvaringsutrymmen och klassiska teknikrum på entréplanet. Planlösningen rymmer flera sovrum, två kompletta kök – ett på varje plan – och generösa sällskapsytor. Möjligheterna är många och huset passar dig som söker gott om yta och vill skapa ett hem helt i din egen stil.

Invändigt är mycket i äldre skick, vilket ger friheten att uppdatera efter egen smak. Samtidigt är vissa större åtgärder redan gjorda: bergvärme (borrhål) installerades 2020, badrummet på övre plan renoverades 2014, fasaden målades 2015–2016 och uterummets tak byttes 2017.

Holmsund – kustnära liv med närhet till stan

Holmsund är ett havsnära samhälle cirka 15 minuter från Umeå. Här samsas småstadskänsla och närhet till naturen med goda kommunikationer och ett brett serviceutbud. För barnfamiljen finns både förskolor, Skärgårdsskolan (F–3) och Storsjöskolan (åk 4–9), samt idrottsanläggningar, motionsspår och simhallen Aquaarena. Närheten till havet ger fina möjligheter till båtliv, bad och friluftsliv, och i grannorten Obbola väntar flera populära stränder och vandringsleder.

Visningar
  • Bokad visning, anmäl dig via hemsidan!
    Fredag 17 oktober 08:30 - 09:00
    Boka
TIPSA

Robin

Stegeby

ANSVARIG
MÄKLARE

Fakta – Skolgatan 6

Bostadstyp: Villa
Kommun: Umeå
Fastighetsbeteckning: Hjorten 15
Storlek: 7 rum, 182 kvm boarea, 62 kvm biarea
Varav sovrum: 5
Areakälla: taxeringsinformation
Föreslagen budstart: 2 250 000 kr
Energiprestanda: 90 kWh/kvm och år
Energiklass: C
Planbestämmelser: Stadsplan (1955-04-22) Tomtindelning (1944-09-09)
Upplåtelseform: Friköpt
Pantbrev: Det finns 12 st pantbrev uttaget om sammanlagt 2 016 000 kr
Taxeringsvärde: 2 600 000 kr
Taxeringsår: 2024
Byggnadsvärde: 1 619 000 kr
Markvärde: 981 000 kr
Fastighetsavgift: 10 074 kr/år
Omgivning
Kommunikation: Holmsund har goda förbindelser med Umeå, både med bil, buss och cykel. Bussar trafikerar området regelbundet med cirka 20 minuters restid till centrum. Obbolabron binder samman Holmsund med grannorten Obbola och skapar smidiga pendlingsmöjligheter, även för cyklister.
Parkering: Det finns goda parkeringsmöjligheter i hela området. Många bostäder har egna uppfarter eller garage, och i centrum finns fri parkering. Flerfamiljsområden erbjuder ofta parkerings- eller motorvärmarplatser via förening eller hyresvärd.
Allmänt om området: Holmsund är ett havsnära samhälle cirka 15 minuter från Umeå, där natur, lugn och närhet till service samverkar på ett sätt som tilltalar både barnfamiljer och pendlare. Bebyggelsen består till största delen av villor, radhus och mindre flerfamiljshus, och området växer med nya bostadsprojekt.

Här finns två grundskolor – Skärgårdsskolan (F–3) och Storsjöskolan (åk 4–9). Storsjöskolan är samlokaliserad med bibliotek, gym, sporthall och det populära badhuset Aqua Arena, vilket skapar en praktisk vardag för både elever och föräldrar.
Närservice: I Holmsund finns det mesta du behöver för vardagen: en välsorterad Coop-butik, apotek, vårdcentral, tandläkare, restaurang, flera pizzerior och caféer, Circle K, frisörer, hudterapeut, blomsteraffärer och andra lokala verksamheter. För övernattning finns både Västerbacken hotell/vandrarhem och Bedtime vandrarhem.
Övrigt: Fritidsutbudet i Holmsund är brett och uppskattat. Här finns två sporthallar, två gym, fotbollsplaner, fina motionsspår samt simhallen Aqua Arena med äventyrsdel. Närheten till havet ger möjligheter till båtliv, paddling och sommarbad, och i grannorten Obbola – bara några minuter bort – finns flera fina badstränder och friluftsområden.

Skärgårdens sågverksmuseum och den historiska miljön på Västerbacken knyter an till Holmsunds rötter som hamn- och sågverkssamhälle. Orten fortsätter att utvecklas genom nya bostäder och satsningar på infrastruktur, vilket gör Holmsund till ett attraktivt val för dig som söker ett naturnära boende med stadens utbud inom räckhåll.

Fakta – Byggnaden

Hus
Byggnadstyp: 2-plansvilla
Byggår: 1953
Fasad: Puts
Stomme: Betong
Fönster: 2-glas
Bjälklag: Betong
Grundmur: Betong
Tak: Tegel
Grundläggning: Betongplatta
Uppvärmning: Bergvärme
Vatten och avlopp: Kommunalt vatten året om. Kommunalt avlopp
Ventilation: Självdrag
Tomt, uteplats och bilplats
Tomtbeskrivning: Stor tomt med bästa solläget
Tomtarea: 1595 kvm
Beskrivning bilplats: Dubbelgarage med asfalterad uppfart

Driftkostnader

Totalsumma: 58 049 kr/år

I driftkostnaden ingår följande:
Uppvärmning: 15 153 kr/år
El: 15 237 kr/år
VA: 4 439 kr/år
Renhållning: 16 523 kr/år
Försäkring: 6 382 kr/år
Övrigt: 315 kr/år

Övrigt är dagvatten
Fullvärde: Ja
Nätbolag: Umeå Energi
Elleverantör: Umeå Energi
Elförbrukning: 21 587 kWh/år

Utöver detta tillkommer kostnad för fastighetsavgift/skatt på 10 074 kr/år.

  • Denna bostad
  • Bostäder till salu via Erik Olsson

En riktigt lyckad

bostadsaffär

När du hittat ditt drömboende hjälper vi dig gärna att sälja din nuvarande bostad. För oss är det viktigt att du känner dig trygg både när du köper och säljer bostad via Erik Olsson. Därför är våra mäklare bland de vassaste och mest engagerade i branschen. Vi anstränger oss gärna lite extra för att din bostadsförsäljning ska bli perfekt. Hos oss får du en riktigt lyckad bostadsaffär – och bäst betalt.

Intresseanmälan

Få kontakt med en mäklare som är expert på just ditt område.

✶ Obligatoriska fält

Tillbaka till toppen