Kattrumpan / Kalmar

Storgatan 71 & 73

Föreslagen budstart: 6 490 000 kr
TIPSA
Charmigt hus med möjligheter på Kattrumpan!

  • Otroligt läge!
  • Badrocksavstånd till Kattrumpan
  • Lugn gata
  • Centralt!
  • Byggår tidigt 1800-tal
  • Promenadavstånd till allt
  • Rymlig innergård
  • Möjlighet till uthyrning
  • Två kök
  • Charmigt
  • Eldstäder & Kakelugnar
  • Separat tvättstuga
  • Lummigt och frodigt
  • Vackra rosenbuskar
  • Gammal handelsbod
  • Fiber

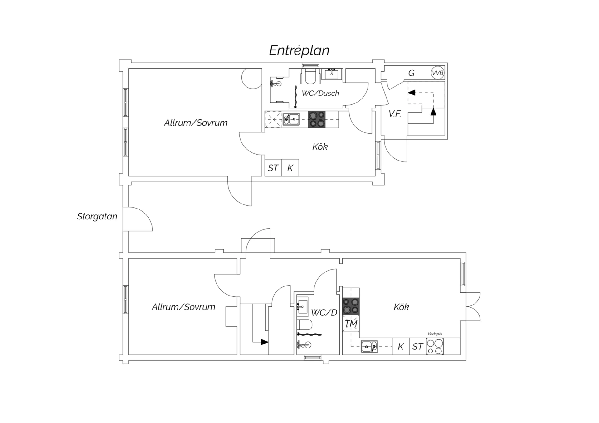
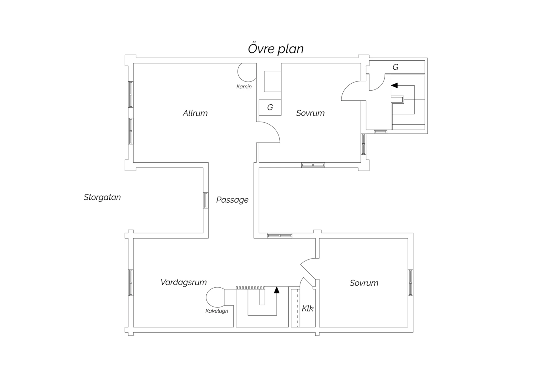
Äldre stadsgård med två gavelvända bostadshus i 2 våningar, troligen uppfört strax efter branden 1800. Huset är byggt med furu- och grantimmer och med ryggåstak. Den äldre planlösningen tyder på att det uppfördes som en enkelstuga av traditionellt slag. Byggnaden fungerade från omkring 1870 som handelsbod. 1983 byggdes huset via en modern länk ihop med grannhuset. Vid samma tillfälle sattes även ny träpanel upp och fönster samt tak byttes. Stommen av det gamla huset finns dock kvar under det nya materialet. Fasaderna är idag klädda med sågad lockläktpanel målad i rött, med vita knutar och snickerier. Taket är utformat som sadeltak. Entrén till byggnaden döljs av en port ut mot gatan. Porten är klädd med liggande panel och kan vara samma som på bilder från 1912-1915. Fönsterna består av vitmålade träfönster i två lufter med två rutor i varje och bidrar genom sin utformning till byggnadens tidstypiska karaktär.

Förbered er gärna genom att:
- Åk förbi och bekanta dig med området.
- Låt oss hjälpa dig med att ordna lånelöfte.
- Har du ett ägt boende? Boka en kostnadsfri, muntlig värdering av din nuvarande bostad.
Kontakta mig på 070-284 66 15 eller pal.pettersson@erikolsson.se

Snabbfakta
Rum:
6
Varav sovrum:
3 - 4
Boarea:
145 kvm
Biarea:
10 kvm
Tomtarea:
334 kvm
Föreslagen budstart:
6 490 000 kr
Byggnadsår:
Tidigt 1800-tal
Fastighetsbeteckning:
Repslagaren 16 & 17
e-prospekt
Visningar
  • Välkommen att boka tid via vår hemsida, anmälan krävs.
    Torsdag 16 oktober 15:00 - 15:45
    Boka
Mäklare

Pål

Pettersson

ANSVARIG
MÄKLARE

Rebecka

Gryfelt

REG. FASTIGHETSMÄKLARE

Charmigt hus med möjligheter på Kattrumpan!

  • Otroligt läge!
  • Badrocksavstånd till Kattrumpan
  • Lugn gata
  • Centralt!
  • Byggår tidigt 1800-tal
  • Promenadavstånd till allt
  • Rymlig innergård
  • Möjlighet till uthyrning
  • Två kök
  • Charmigt
  • Eldstäder & Kakelugnar
  • Separat tvättstuga
  • Lummigt och frodigt
  • Vackra rosenbuskar
  • Gammal handelsbod
  • Fiber

Äldre stadsgård med två gavelvända bostadshus i 2 våningar, troligen uppfört strax efter branden 1800. Huset är byggt med furu- och grantimmer och med ryggåstak. Den äldre planlösningen tyder på att det uppfördes som en enkelstuga av traditionellt slag. Byggnaden fungerade från omkring 1870 som handelsbod. 1983 byggdes huset via en modern länk ihop med grannhuset. Vid samma tillfälle sattes även ny träpanel upp och fönster samt tak byttes. Stommen av det gamla huset finns dock kvar under det nya materialet. Fasaderna är idag klädda med sågad lockläktpanel målad i rött, med vita knutar och snickerier. Taket är utformat som sadeltak. Entrén till byggnaden döljs av en port ut mot gatan. Porten är klädd med liggande panel och kan vara samma som på bilder från 1912-1915. Fönsterna består av vitmålade träfönster i två lufter med två rutor i varje och bidrar genom sin utformning till byggnadens tidstypiska karaktär.

Förbered er gärna genom att:
- Åk förbi och bekanta dig med området.
- Låt oss hjälpa dig med att ordna lånelöfte.
- Har du ett ägt boende? Boka en kostnadsfri, muntlig värdering av din nuvarande bostad.
Kontakta mig på 070-284 66 15 eller pal.pettersson@erikolsson.se

Visningar
  • Välkommen att boka tid via vår hemsida, anmälan krävs.
    Torsdag 16 oktober 15:00 - 15:45
    Boka
TIPSA

Pål

Pettersson

ANSVARIG
MÄKLARE

Rebecka

Gryfelt

REG. FASTIGHETSMÄKLARE

Fakta – Storgatan 71 & 73

Bostadstyp: Villa
Kommun: Kalmar
Besiktad: Bostaden är förbesiktad av säljaren.
Fastighetsbeteckning: Repslagaren 16 & 17
Storlek: 6 rum, 145 kvm boarea, 10 kvm biarea
Varav sovrum: 3 - 4
Areakälla: taxeringsinformation
Föreslagen budstart: 6 490 000 kr
Energideklaration: Beställd
Planbestämmelser: Stadsplan (1948-07-16) Fornlämning (1 st)
Upplåtelseform: Friköpt
Pantbrev: Det finns 5 st pantbrev uttaget om sammanlagt 853 500 kr
Taxeringsvärde: 5 031 000 kr
Taxeringsår: 2024
Byggnadsvärde: 2 648 000 kr
Markvärde: 2 383 000 kr
Fastighetsavgift: 10 074 kr/år
Tillträde: Enligt överenskommelse

Fakta – Byggnaden

Hus
Byggnadstyp: 1½-plansvilla
Byggår: Tidigt 1800-tal
Ombyggt 1983 och 1993
Fasad: Trä
Stomme: Trä
Fönster: 2-glas
Tak: Betongpannor
Grundläggning: Krypgrund
Uppvärmning: Direkt El och kompletterande eldstäder
Vatten och avlopp: Kommunalt vatten året om. Kommunalt avlopp
Ventilation: Självdrag
Tomt, uteplats och bilplats
Tomtarea: 334 kvm
Övriga byggnader
Tvättstuga med en liten källare.

Förråd för redskap och utemöbler.

Driftkostnader

Totalsumma: 49 650 kr/år

I driftkostnaden ingår följande:
El: 35 000 kr/år
VA: 11 500 kr/år
Sotning: 500 kr/år
Renhållning: 2 650 kr/år

Driften kan variera beroende på nyttjande.
Fullvärde: Ja

Utöver detta tillkommer kostnad för fastighetsavgift/skatt på 10 074 kr/år.

  • Denna bostad
  • Bostäder till salu via Erik Olsson

En riktigt lyckad

bostadsaffär

När du hittat ditt drömboende hjälper vi dig gärna att sälja din nuvarande bostad. För oss är det viktigt att du känner dig trygg både när du köper och säljer bostad via Erik Olsson. Därför är våra mäklare bland de vassaste och mest engagerade i branschen. Vi anstränger oss gärna lite extra för att din bostadsförsäljning ska bli perfekt. Hos oss får du en riktigt lyckad bostadsaffär – och bäst betalt.

Intresseanmälan

Få kontakt med en mäklare som är expert på just ditt område.

✶ Obligatoriska fält

Tillbaka till toppen