Lindsdal / Kalmar

Kalles gränd 1

Föreslagen budstart: 2 995 000 kr
TIPSA
Rymligt & renoverat enplanshus på hörntomt i familjevänliga Lindsdal!

  • Enplanshus med renoverade ytor
  • Ljus och solig hörntomt
  • Spabad för avkoppling året runt
  • Stora sällskapsytor och flera sovrum
  • Egen avdelning med badrum och separat utgång
  • Stort badrum med integrerad tvättavdelning
  • Uppvärmning via fjärrvärme
  • Välplanerat och familjevänligt

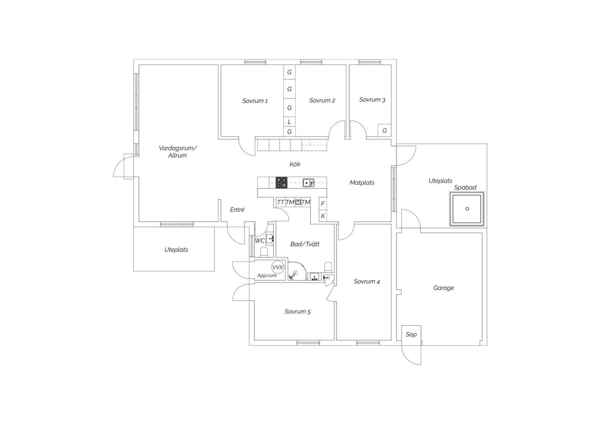
Vi välkomnar nu till ett mycket trivsamt och välplanerat enplanshus med belägenhet på en solig hörntomt i populära och barnvänliga Lindsdal. Området är idag ett av Kalmars mest eftertraktade områden för barnfamiljer.

Här bor du bekvämt med allt i ett plan och bostaden erbjuder mycket generösa ytor om totalt 160 kvm i ett plan, något som skapar enkelhet för både vardagsliv och socialt umgänge. Huset har genomgått flertalet renoveringar och är i gott skick – ett hem du kan flytta rakt in i och börja trivas från första stund. Ett perfekt hem för den större familjen!

Det luftiga vardagsrummet erbjuder plats för hela familjen och har en naturlig kontakt med både kök och matplats om man önskar, tack vare den öppna ytan. Köket är nytt, rymligt och har goda arbetsytor samt gott om plats för förvaring. Härifrån når du även den fina uteplatsen på baksida med det härliga spabadet. En uteplats som är perfekt för avkoppling året om!

Flera sovrum, idag erbjuds upp till 5 stycken, vilka ger gott om plats för både barn, gäster och hemmakontor. En avdelning i huset erbjuder dessutom ett egen avdelning med eget mindre duschutrymme samt en helt egen utgång – idealiskt som tonårsdel, generationsboende eller för uthyrning!

Det stora badrummet har belägenhet intill huvudentrén och är generöst tilltaget. Det gjordes om för ett par år sedan och rymmer en smart tvättavdelning med tvättmaskin och torktumlare med bra bänk för avlastning och vika tvätt tillsammans med bra förvaring. Lösningar som gör vardagen både smidig och funktionell. Dusch, wc och handfat med kommod finns också i det helkaklade badrummet.
Utöver allt detta finns en toalett med wc och handfat intill samt bra med förvaringsutrymmen, både inomhus och utomhus, vilket gör huset mycket praktiskt även för den stora familjen.

Uppvärmningen är smidig och enkel då den sköts via fjärrvärme – en både energieffektiv och bekväm lösning.

Trädgården är lättskött med gräsmatta och mindre antal buskage och rabatter. Fin hörntomt och möjlighet för ytterligare odling eller uteplatser finns gott om. En lekstuga som idag erbjuder lek eller ytterligare plats för förvaring utöver garage och mindre förråd.

Lindsdal är ett av Kalmars mest populära bostadsområden – och det är lätt att förstå varför. Här bor du nära skolor, förskolor, mataffär, vårdcentral, sporthall och fina grönområden, samtidigt som du har god kollektivtrafik in till centrala Kalmar. Området har en trygg och välkomnande atmosfär, perfekt för barnfamiljen eller dig som söker lugn samt närhet till allt. Avstånd som är lite extra nämnvärda: Förskolan Smedjan i Fjölebro, 600m. Sjöängsskolan, 850m. Busshållplats Lindsdal Södra, 300m.

Besiktningsprotokoll finns länkat via hemsidan.

Kalles Gränd 1 är ett perfekt boende för dig som söker ett praktiskt, trivsamt och stilrent hem! Belägenheten i ett lugnt område där barnen leker tryggt, grannarna hälsar glatt och vardagen flyter på. Här finns plats för livet – välkommen till ditt nya hem!

Snabbfakta
Rum:
6
Varav sovrum:
5
Boarea:
160 kvm
Tomtarea:
744 kvm
Föreslagen budstart:
2 995 000 kr
Byggnadsår:
1975
Fastighetsbeteckning:
Tant grön 6
e-prospekt
Visningar
  • Välkommen att boka tid via vår hemsida!
    Torsdag 23 oktober 17:00 - 17:45

    Kontakta mäklaren

Mäklare

Johanna

Rathjen

ANSVARIG
MÄKLARE

Rymligt & renoverat enplanshus på hörntomt i familjevänliga Lindsdal!

  • Enplanshus med renoverade ytor
  • Ljus och solig hörntomt
  • Spabad för avkoppling året runt
  • Stora sällskapsytor och flera sovrum
  • Egen avdelning med badrum och separat utgång
  • Stort badrum med integrerad tvättavdelning
  • Uppvärmning via fjärrvärme
  • Välplanerat och familjevänligt

Vi välkomnar nu till ett mycket trivsamt och välplanerat enplanshus med belägenhet på en solig hörntomt i populära och barnvänliga Lindsdal. Området är idag ett av Kalmars mest eftertraktade områden för barnfamiljer.

Här bor du bekvämt med allt i ett plan och bostaden erbjuder mycket generösa ytor om totalt 160 kvm i ett plan, något som skapar enkelhet för både vardagsliv och socialt umgänge. Huset har genomgått flertalet renoveringar och är i gott skick – ett hem du kan flytta rakt in i och börja trivas från första stund. Ett perfekt hem för den större familjen!

Det luftiga vardagsrummet erbjuder plats för hela familjen och har en naturlig kontakt med både kök och matplats om man önskar, tack vare den öppna ytan. Köket är nytt, rymligt och har goda arbetsytor samt gott om plats för förvaring. Härifrån når du även den fina uteplatsen på baksida med det härliga spabadet. En uteplats som är perfekt för avkoppling året om!

Flera sovrum, idag erbjuds upp till 5 stycken, vilka ger gott om plats för både barn, gäster och hemmakontor. En avdelning i huset erbjuder dessutom ett egen avdelning med eget mindre duschutrymme samt en helt egen utgång – idealiskt som tonårsdel, generationsboende eller för uthyrning!

Det stora badrummet har belägenhet intill huvudentrén och är generöst tilltaget. Det gjordes om för ett par år sedan och rymmer en smart tvättavdelning med tvättmaskin och torktumlare med bra bänk för avlastning och vika tvätt tillsammans med bra förvaring. Lösningar som gör vardagen både smidig och funktionell. Dusch, wc och handfat med kommod finns också i det helkaklade badrummet.
Utöver allt detta finns en toalett med wc och handfat intill samt bra med förvaringsutrymmen, både inomhus och utomhus, vilket gör huset mycket praktiskt även för den stora familjen.

Uppvärmningen är smidig och enkel då den sköts via fjärrvärme – en både energieffektiv och bekväm lösning.

Trädgården är lättskött med gräsmatta och mindre antal buskage och rabatter. Fin hörntomt och möjlighet för ytterligare odling eller uteplatser finns gott om. En lekstuga som idag erbjuder lek eller ytterligare plats för förvaring utöver garage och mindre förråd.

Lindsdal är ett av Kalmars mest populära bostadsområden – och det är lätt att förstå varför. Här bor du nära skolor, förskolor, mataffär, vårdcentral, sporthall och fina grönområden, samtidigt som du har god kollektivtrafik in till centrala Kalmar. Området har en trygg och välkomnande atmosfär, perfekt för barnfamiljen eller dig som söker lugn samt närhet till allt. Avstånd som är lite extra nämnvärda: Förskolan Smedjan i Fjölebro, 600m. Sjöängsskolan, 850m. Busshållplats Lindsdal Södra, 300m.

Besiktningsprotokoll finns länkat via hemsidan.

Kalles Gränd 1 är ett perfekt boende för dig som söker ett praktiskt, trivsamt och stilrent hem! Belägenheten i ett lugnt område där barnen leker tryggt, grannarna hälsar glatt och vardagen flyter på. Här finns plats för livet – välkommen till ditt nya hem!

Visningar
  • Välkommen att boka tid via vår hemsida!
    Torsdag 23 oktober 17:00 - 17:45

    Kontakta mäklaren

TIPSA

Johanna

Rathjen

ANSVARIG
MÄKLARE

Fakta – Kalles gränd 1

Bostadstyp: Villa
Kommun: Kalmar
Besiktad och försäkrad: Bostaden är besiktad och säljaren avser att teckna en försäkring mot dolda fel.
Fastighetsbeteckning: Tant grön 6
Storlek: 6 rum, 160 kvm boarea
Varav sovrum: 5
Areakälla: säljarens information
Föreslagen budstart: 2 995 000 kr
Energideklaration: Beställd
Planbestämmelser: Stadsplan (1973-08-28)
Upplåtelseform: Friköpt
Pantbrev: Det finns 7 st pantbrev uttaget om sammanlagt 2 250 000 kr
Taxeringsvärde: 2 128 000 kr
Taxeringsår: 2024
Byggnadsvärde: 1 564 000 kr
Markvärde: 564 000 kr
Fastighetsavgift: 10 074 kr/år

Fakta – Byggnaden

Hus
Byggnadstyp: 1-plansvilla
Byggår: 1975
Fasad: Mexisten samt träpanel
Stomme: Trä
Fönster: 2-glas
Bjälklag: Trä
Utvändigt plåtarbete: Lackerad plåt
Tak: Betongpannor
Grundläggning: Platta på mark
Uppvärmning: Fjärrvärme
Vatten och avlopp: Kommunalt vatten året om. Kommunalt avlopp
Ventilation: Mekanisk frånluft med mekanisk fläkt på taket
Övrigt om byggnaden: Renoveringar:
2025 Kök, Ballingslöv
2025, ytskikt sovrum/arbetsrum och delar av bostaden. I övrigt löpande renovering av ytskikten.
2020 Altandäck baksida
2020 Spabad
2018 Badrum med tvättavdelning
2017 Tak behandlat, tvättat och målat
2017 Träfasad målad
2016 Ombyggnation av planlösning, fler sovrum
Tomt, uteplats och bilplats
Tomtbeskrivning: Hörntomt med gräsmatta samt buskage, trädgårdsland och en uppvuxen häck och staket/plank som omger tomten.
Tomtarea: 744 kvm
Tomttyp: Trädgårdstomt
Beskrivning uteplats: Uteplats erbjuds i östligt, såväl som sydväsligt läge. Uteplats med spabad på baksidan. Uteplats under tak vid entrén sett samt möjlighet till uteplats intill vardagsrum/allrum.
Beskrivning bilplats: Integrerat garage med plats för 1 bil samt parkering på uppfart, plats för 1-2 bilar. Lekstuga.

Driftkostnader

Totalsumma: 36 400 kr/år

I driftkostnaden ingår följande:
Uppvärmning: 20 000 kr/år
VA: 14 000 kr/år
Renhållning: 2 400 kr/år

Driftkostnaden är beräknad på 6 personers hushåll.
Kostnader för uppvärmning och el under samma kostnad. Driftkostnaderna kan komma att variera beroende av antal personer i hushållet, val av leverantörer samt förbrukning.
Fullvärde: Ja

Utöver detta tillkommer kostnad för fastighetsavgift/skatt på 10 074 kr/år.

  • Denna bostad
  • Bostäder till salu via Erik Olsson

En riktigt lyckad

bostadsaffär

När du hittat ditt drömboende hjälper vi dig gärna att sälja din nuvarande bostad. För oss är det viktigt att du känner dig trygg både när du köper och säljer bostad via Erik Olsson. Därför är våra mäklare bland de vassaste och mest engagerade i branschen. Vi anstränger oss gärna lite extra för att din bostadsförsäljning ska bli perfekt. Hos oss får du en riktigt lyckad bostadsaffär – och bäst betalt.

Intresseanmälan

Få kontakt med en mäklare som är expert på just ditt område.

✶ Obligatoriska fält

Tillbaka till toppen