Drag / Rockneby

Södra Dragsviken 724

Föreslagen budstart: 2 950 000 kr
TIPSA
Lättskött enplanshus på natursköna Drag!

  • Vacker natur
  • Kustnära
  • Flera bad- och båtplatser
  • Rogivande skog
  • Fin gemenskap
  • 20 min från centrala Kalmar
  • Två rymliga sovrum
  • Gott om förvaring
  • Öppen planlösning
  • Två burspråk
  • Kakelugn
  • Helkaklat badrum
  • Carport med förråd
  • Altandäck med pergola
  • Inglasat uterum
  • Medelhavsträdgård
  • Stenmur
  • Havsglimt

Välkomna till Södra Dragsviken 724 - ett lättskött och väl omhändertaget enplanshus byggt 2004. Tillfälle för er som söker en bekymmersfri vardag och vill kunna njuta av vacker natur och havsmiljö. Bostaden erbjuder två rymliga sovrum med bra förvaring, välutrustat kök i öppen planlösning mot trivsamt vardagsrum med kakelugn och burspråk, tvättstuga samt ett helkaklat badrum. Härlig och välskött trädgårdstomt med stenläggningar, medelhavsträdgård, altandäck med pergola, soldäck med havsglimt och inglasat uterum. På fastigheten finns även carport med tillhörande förråd och uppfart samt ett förråd.

Drag ligger på vackra Skäggenäs ca 20 min norr om centrala Kalmar och är ett mycket lugnt och naturskönt område som senare åren har expanderat i stadig takt. Här omgärdas man av vacker havsmiljö med flertalet bad- och båtplatser och gott om joggingspår och promenadstråk i rogivande skog. Området präglas av stark gemenskap med många barnfamiljer och flera aktiva föreningar. Bland annat anordnas varje år en uppskattad cykelfest med många deltagare från hela halvön. På bygdegården Sanna anordnas bland mycket annat pubaftnar, bokcirklar och bridgekvällar. Längst ut på halvön ligger Revsudden med badplatser och småbåtshamn - fram till 1972 gick färja härifrån till Stora rör.

I Rockneby, knappt åtta minuters bilfärd från huset finns skola F-6, flera förskolor, fotbollsplaner, omtyckt ICA-butik, allaktivitetshus med bibliotek och sporthall, gym, pizzeria, thaimatsrestaurang, populära Tjorven-muséet med café samt en vacker kyrka. För er som pendlar går skolbuss från Revsudden till Rockneby och härifrån kan man ta sig vidare i länet.

Ett utmärkt läge för er som söker lugnet och vill njuta av vacker, kustnära natur!

Snabbfakta
Rum:
3
Varav sovrum:
2
Boarea:
95 kvm
Biarea:
8 kvm
Tomtarea:
996 kvm
Föreslagen budstart:
2 950 000 kr
Byggnadsår:
2004
Fastighetsbeteckning:
Söregärde 3:87
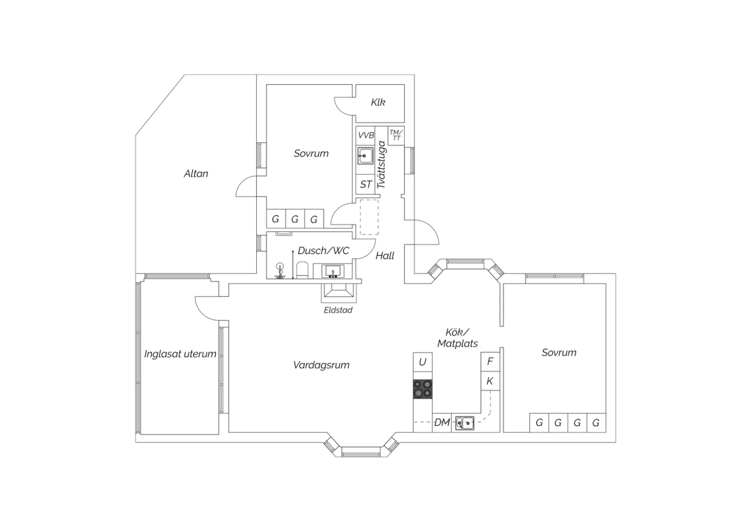
Planritning
e-prospekt
Visningar
  • Välkommen att boka tid via vår hemsida!
    Lördag 18 oktober
    Boka
Mäklare

Eric

Giljam

ANSVARIG
MÄKLARE

Lättskött enplanshus på natursköna Drag!

  • Vacker natur
  • Kustnära
  • Flera bad- och båtplatser
  • Rogivande skog
  • Fin gemenskap
  • 20 min från centrala Kalmar
  • Två rymliga sovrum
  • Gott om förvaring
  • Öppen planlösning
  • Två burspråk
  • Kakelugn
  • Helkaklat badrum
  • Carport med förråd
  • Altandäck med pergola
  • Inglasat uterum
  • Medelhavsträdgård
  • Stenmur
  • Havsglimt

Välkomna till Södra Dragsviken 724 - ett lättskött och väl omhändertaget enplanshus byggt 2004. Tillfälle för er som söker en bekymmersfri vardag och vill kunna njuta av vacker natur och havsmiljö. Bostaden erbjuder två rymliga sovrum med bra förvaring, välutrustat kök i öppen planlösning mot trivsamt vardagsrum med kakelugn och burspråk, tvättstuga samt ett helkaklat badrum. Härlig och välskött trädgårdstomt med stenläggningar, medelhavsträdgård, altandäck med pergola, soldäck med havsglimt och inglasat uterum. På fastigheten finns även carport med tillhörande förråd och uppfart samt ett förråd.

Drag ligger på vackra Skäggenäs ca 20 min norr om centrala Kalmar och är ett mycket lugnt och naturskönt område som senare åren har expanderat i stadig takt. Här omgärdas man av vacker havsmiljö med flertalet bad- och båtplatser och gott om joggingspår och promenadstråk i rogivande skog. Området präglas av stark gemenskap med många barnfamiljer och flera aktiva föreningar. Bland annat anordnas varje år en uppskattad cykelfest med många deltagare från hela halvön. På bygdegården Sanna anordnas bland mycket annat pubaftnar, bokcirklar och bridgekvällar. Längst ut på halvön ligger Revsudden med badplatser och småbåtshamn - fram till 1972 gick färja härifrån till Stora rör.

I Rockneby, knappt åtta minuters bilfärd från huset finns skola F-6, flera förskolor, fotbollsplaner, omtyckt ICA-butik, allaktivitetshus med bibliotek och sporthall, gym, pizzeria, thaimatsrestaurang, populära Tjorven-muséet med café samt en vacker kyrka. För er som pendlar går skolbuss från Revsudden till Rockneby och härifrån kan man ta sig vidare i länet.

Ett utmärkt läge för er som söker lugnet och vill njuta av vacker, kustnära natur!

Visningar
  • Välkommen att boka tid via vår hemsida!
    Lördag 18 oktober
    Boka
TIPSA

Eric

Giljam

ANSVARIG
MÄKLARE

Rumsbeskrivning - Södra Dragsviken 724

Hall

Öppen hall med klinkergolv med golvvärme. Vidare in i bostaden ligger ett parkettgolv som enhetligt är genomgående.

Tvättstuga

Till höger om hallen ligger en praktisk tvättstuga med förvaring, bänkyta, tvättho, tvättmaskin och torktumlare. Ljusinsläpp från fönster.

Dusch/WC

Rakt fram i hallen ligger det helkaklade badrummet. Bekvämt utrustat med golvvärme. I övrigt finns här handfat med kommod, wc, dusch med glasvägg, handdukstork och fönster.

Sovrum

Rymligt sovrum med generös förvaring i såväl klädkammare som tre garderober. Härifrån tar man sig ut på altanen.

Vardagsrum

Ljust och trivsamt vardagsrum med burspråk, utgång till altan och vacker, värmande kakelugn. Den öppna planlösningen mot köket garanterar en härlig samvaro.

Kök

Smakfullt renoverat med gott om förvaring, fina matlagningsytor och utrustning bestående av kyl/frys, diskmaskin, inbyggnadsugn och induktionshäll med integrerad kolfilterfläkt. Matbordet har sin givna plats vid burspråket.

Sovrum

Sovrum i bra storlek med suverän klädförvaring i hel garderobsvägg.

Fakta – Södra Dragsviken 724

Bostadstyp: Villa
Kommun: Kalmar
Besiktad: Bostaden är förbesiktad av säljaren.
Fastighetsbeteckning: Söregärde 3:87
Storlek: 3 rum, 95 kvm boarea, 8 kvm biarea
Varav sovrum: 2
Areakälla: taxeringsinformation
Föreslagen budstart: 2 950 000 kr
Energiklass: E
Servitut, samfälligheter, etc: Gemensamhetsanläggning: Kalmar söregärde ga:2 ändamål: Vägar, Grönområden
Planbestämmelser: Detaljplan (1992-04-09)
Upplåtelseform: Friköpt
Pantbrev: Det finns 6 st pantbrev uttaget om sammanlagt 2 744 000 kr
Taxeringsvärde: 2 846 000 kr
Taxeringsår: 2024
Byggnadsvärde: 1 967 000 kr
Markvärde: 879 000 kr
Fastighetsavgift: 10 074 kr/år

Fakta – Byggnaden

Hus
Byggnadstyp: Friliggande 1-plans hus
Byggår: 2004
Fasad: Stående träpanel
Stomme: Trä
Fönster: 3-glas fönster med isolerkassett
Bjälklag: Betong/trä
Tak: Betongpannor
Grundläggning: Betongplatta på mark med underliggande isolering
Uppvärmning: Direktverkande el - Luft/luftvärmepump, kakelugn, kompl elradiatorer & golvvärme
Vatten och avlopp: Kommunalt vatten året om. Kommunalt avlopp
Ventilation: Självdrag
Övrigt om byggnaden: 2020 - Utvändig målning. Installation av luft/luftvärmepump. Ny diskmaskin. Inglasning och utbyggnad av altan och soldäck.
2021 - Ny torktumlare
2022 - Trädäck med pergola
2024 - Ombyggnad och renovering av kök. Ommålning luckor, ny kyl/frys, induktionshäll och installation av integrerad kolfilterfläkt.
Service luft/luftvärmepump. Montering av tarkettgolv i inglasat uterum.
Tomt, uteplats och bilplats
Tomtbeskrivning: Trädgårdstomt med gräsmatta, träd, stenläggning, planteringar, medelhavsträdgård och vackert omgärdad av stenmur.
Tomtarea: 996 kvm
Beskrivning uteplats: På tomten finns flera uteplatser som erbjuder såväl sol som skugga under dagen.

Altandäck med pergola, inglasat uterum och soldäck.
Beskrivning bilplats: Carport med plats för en bil och tillhörande uppfart med plats för fler bilar.
Övriga byggnader
Förråd intill carporten samt fristående förråd.

Driftkostnader

Totalsumma: 32 000 kr/år

I driftkostnaden ingår följande:
El: 10 400 kr/år
VA: 11 800 kr/år
Sotning: 400 kr/år
Väg/samfällighetsavgift: 1 500 kr/år
Renhållning: 5 400 kr/år
Försäkring: 2 500 kr/år

Driftkostnaden är beräknad på 2 personers hushåll.
Uppgifter enligt säljaren. I kostnaden för el ingår även uppvärmning.
Fullvärde: Ja

Utöver detta tillkommer kostnad för fastighetsavgift/skatt på 10 074 kr/år.

  • Denna bostad
  • Bostäder till salu via Erik Olsson

En riktigt lyckad

bostadsaffär

När du hittat ditt drömboende hjälper vi dig gärna att sälja din nuvarande bostad. För oss är det viktigt att du känner dig trygg både när du köper och säljer bostad via Erik Olsson. Därför är våra mäklare bland de vassaste och mest engagerade i branschen. Vi anstränger oss gärna lite extra för att din bostadsförsäljning ska bli perfekt. Hos oss får du en riktigt lyckad bostadsaffär – och bäst betalt.

Intresseanmälan

Få kontakt med en mäklare som är expert på just ditt område.

✶ Obligatoriska fält

Tillbaka till toppen